Баня с сараем под одной крышей проекты: как совместить баню с хозблоком
как совместить баню с хозблоком
Такая постройка на даче способна совместить экономичность использования территории дачного участка с комфортом качественно выполненной бани. В этой сфере есть проекты, требующие различного объёма затрат. Прочтя эту статью, можно будет обоснованно выбрать проект бани с хозблоком под одной крышей.
Что такое баня с хозблоком
Прежде всего, нужно разобраться, о чём конкретно здесь идёт речь.
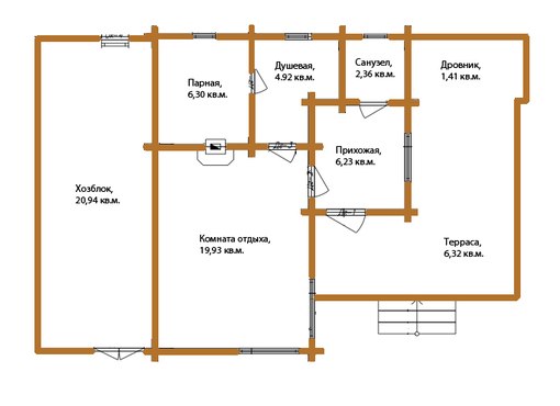
Когда говорят о бане, обычно имеется в виду помещение, где можно помыться. В минимальном варианте здесь может идти речь об одном душе. Но для того, чтобы сделать баню, в которой удобно мыться, здесь нужно будет добавить ещё несколько помещений:
- Часто вместе с душем ставят парилку.
- Будет удобно, если в этом же строении есть туалет.
- В комнате отдыха можно будет отдохнуть
после мытья.
- Некоторые в отдельной комнате этого здания предусматривают небольшой бассейн.
Что такое хозблок – формально не определено. В большинстве случаев речь идёт о помещении, где хранятся различные инструменты. Однако не исключено устраивать здесь помещения другого типа, в соответствии с замыслом владельца. Например, можно устроить мастерскую или оборудовать кухню. Разумеется, можно его использовать также для других аналогичных целей.
Когда на участке строят частный дом, существует необходимость для него дополнительно сделать и другие постройки. При этом нужно учитывать, что место на участке ограничено и его необходимо экономить.
Как совместить баню с хозблоком
Если построить их в одном здании – это будет владельцу выгодно, однако, чтобы это осуществить, потребуется решить определённые проблемы:- Баня создаёт повышенную влажность.
Для того, чтобы справиться с этим необходимо обеспечить качественную влагоизоляцию. - Поскольку для мытья необходимо поступление горячей воды, потребуется подвести соответствующую коммуникацию к этому дому. В некоторых случаях для подогрева воды может быть поставлена печка. Её установка существенно повысит риск возникновения пожара. Строение должно быть сделано таким образом, чтобы иметь высокую пожарозащищённость.
- Выбирая место для рассматриваемого строения нужно помнить, что риск возгорания может представлять опасность для домов и строений на соседних участках земли и располагать баню вместе с хозблоком на достаточном удалении от них.
- Входы в хозблок и в баню должны быть разделены.
- Для работы бани необходимо подвести к зданию водоснабжение горячей и холодной водой.
ruВот ещё несколько советов:
- Хотя отопление при использовании в течение летнего периода не востребовано, однако это позволит использовать баню также и в холодное время года.
- Нужно будет предусмотреть отвод канализационных стоков. Они должны быть отдельными для бани, туалета или хозблока (если в нём имеются помещения, где предусмотрены стоки – например, кухня)
- Если здесь используется комната отдыха, то её можно оборудовать таким образом, чтобы в дальнейшем использовать в качестве гостиной.
Принципы планирования
Если есть планы поставить такую постройку, то к этому возможно приступить различными способами:
- Можно построить отдельное здание, в котором распланированы соответствующие помещения.
- Если на участке уже есть баня, одним из возможных решений будет сделать к ней пристройку и оборудовать в ней хозяйственный блок.
- Сделать наоборот – баню пристройкой, к уже существующему хозблоку.
- В некоторых случаях оптимальным решением будет сделать баню с хозблоком в виде пристройки к жилому дому.
Важно понимать, что если достраивать без определённого плана, «на глазок», то получившееся сооружение может быть создано с серьёзными недочётами. Особенно высок риск сделать нарушения, относящиеся к противопожарной безопасности постройки.
Вот преимущества такого подхода:
- Если действовать таким образом, можно быть уверенным в высокой надёжности возводимого здания.
- Точное знание того, что необходимо для строительства позволит контролировать стоимость проекта на каждом этапе.

- В рассматриваемой ситуации, возможно разделить сложный процесс строительства на отдельные этапы. В конце каждого из них можно увидеть, что сделано и проконтролировать качество проведённых работ.
Как выбрать нужный проект
Прежде всего необходимо решить, требуется ли строить сооружение, в котором одновременно находятся баня и хозблок. Такое решение обычно наиболее востребовано там, где участок земли невелик.
Если решено заняться таким строительством, то на следующем этапе необходимо выбрать такую схему помещения, которая устроит владельца наилучшим образом. Реализовать совмещение бани и хозблока можно различным образом, также необходимо определить состав помещений в доме. При планировании нужно учесть имеющиеся в наличии финансовые возможности.
После того, как будет определено, какой проект подходит, необходимо составить смету расходов.
Нужно предусмотреть подведение коммуникаций. Их можно условно разделить на те, без которых нельзя обойтись и такие, которые желательно провести для удобства.
К первой группе относится необходимость обеспечить слив воды, а также важность хорошей вентиляции.
Кроме этого нужно учитывать, что для душа и парной потребуется подогрев воды. Чтобы его обеспечить, можно действовать двумя способами:
- Можно обеспечить подвод горячей воды из жилого дома.
- Подогревать воду в бане. Для этого необходимо устройство для её нагрева.
Ко второй группе относится наличие водопровода и электричества. noy-kryshey/
Электричество может понадобиться не только внутреннее, но и для наружного освещенияИсточник houzz.comВажно правильно выбрать место для этой постройки.
Рекомендуется располагать недалеко от линий коммуникаций, к которым впоследствии нужно будет подсоединить.
Важно, чтобы рядом не находился колодец. Также нужно контролировать близость постройки к домам и вспомогательным сооружениям соседей.
Фундаменты для бани: какой лучше, какой дешевле
Конечно, угловая баня с хозблоком и верандой должна по своему дизайну гармонично вписываться в окружающую обстановку.
Примеры проектов
При выборе наиболее подходящего варианта нужно остановиться на том, который устраивает по финансовым причинам и при этом подходит по своему качеству. Вот несколько различных примеров построек рассматриваемого типа.
Простой вариант
Если есть желание выбрать относительно недорогой вариант, нужно, чтобы стены были сделаны в виде деревянного каркаса, обшитого вагонкой. Крышу в большинстве случаев делают двухскатную, общую и для бани и для хозблока. В этом случае рекомендуется выбрать проект, где есть минимальное число помещений.
К сожалению, кроме дешевизны и простоты у данного варианта трудно найти достоинства. В этом случае стены недолговечны, через несколько лет их придётся менять. Из-за слабой теплоизоляции отапливать этот домик зимой смысла не имеет.
comПоскольку в большинстве случаев потребуется осуществлять нагрев воды с помощью дров, баня с сараем должны быть дополнены дровяником.
Компактный проект
Если здание сделать из бруса, это придаст ему долговечность и надёжность. Проект можно сделать, включив в него самое необходимое. Вот как он, например, может выглядеть.
Примеры красивых бань: 30 фото интересных стилевых и архитектурных решений
Если построить стены из кирпича или шлакоблока, а затем обшить их деревом, качество таких покрытий будет не хуже деревянного, а прочность, надёжность и долговечность возрастут многократно. Баня с сараем под одной крышей простоят много лет.
Баня с хозблоком 4×8
Совмещение бани и хозяйственного помещения может быть сделано как комфортное место для отдыха.
Рассмотрим следующий проект.
В нём можно предусмотреть наличие кухни, а в комнате отдыха поставить диван. Если здесь имеется отопление, в таком домике можно не только мыться или готовить, но и принимать гостей или жить в течение некоторого времени.
Разумеется, это только один из возможных вариантов. Существуют проекты, где в таком доме имеется второй этаж, где, например, может находиться мастерская или баня, хозблок и веранда под одной крышей.
Пользуются популярностью также проекты, в которых дом построен углом.Таким образом расположенные баня и сарай под одной крышей являются более компактными по сравнению с линейным вариантом.
Материал для строительства
Принято считать, что, если строится баня, сарай, выгоднее всего использовать дерево.
Оно обладает рядом преимуществ:
- Поскольку этот материал дышит, он менее уязвим для влаги и заражения грибком.
- В деревянных помещениях обеспечивается более качественная циркуляция воздуха.
- Деревянный брус и доски обладают собственным приятным запахом под воздействием горячей температуры, типичной для банного помещения, этот запах ещё больше усиливается.
- Если для деревянных строительных материалов использовать породы хвойных деревьев, то их аромат окажет дополнительное лечебное воздействие.
В видео можно увидеть хозблок с баней:
Баня размером 6 на 3: планировка и комплектация
Заключение
Поскольку такая постройка делается надолго, к выбору наиболее подходящего варианта нужно подходить очень внимательно.
Качественно и надёжно построенное здание будет радовать владельца в течение многих лет.
Баня с беседкой под одной крышей: 40 фото примеров, проекты
Подыскивая проект бани, вы, безусловно, задумываетесь о том, чтобы постройка была максимально комфортной: как для банных процедур, так и для расслабленного отдыха. Мы подобрали для вас разнообразные проекты бань с примыкающими беседками, террасами, верандами и навесами — это варианты, которые позволят вам в полной мере насладиться времяпровождением на природе после баньки.
Одноэтажные бани
Одноэтажное здание с открытой беседкой под одной крышей — удачный вариант планировки бани для неспешного отдыха. Вы можете построить такую баньку не только из традиционного бруса или бревна. Кирпичная баня тоже очень удобна в эксплуатации, а ее фасады в сочетании темными деревянными деталями и зеленой крышей выглядят достаточно эффектно.
В беседке, пристроенной к бане, вы сможете расположить зону отдыха с ротанговым диваном и креслами или обеденный стол со стульями, а если позволит площадь — уличный камин и летнюю кухню.
Альтернатива беседке как пристройке — навес над обеденной зоной, расположенной около бани. Обратите внимание, насколько самобытно смотрится баня не стандартной, квадратной или прямоугольной планировки, а постройка со скругленными торцами под соломенной крышей.
Бани с мансардой
Чтобы рационально использовать подкровельное пространство бани, присмотритесь к проектам построек с мансардой, в которой будет находиться либо гостиная, либо гостевая спальня. На фото вы видите именно такой вариант бани, построенной из бревна в современном стиле кантри — здесь урбанистический дух прослеживается в сплошном остеклении мансардного этажа.
Совместив баню с беседкой под одной крышей, вы получаете сразу две зоны отдыха — одну в помещении, а другую на улице, причем, чтобы подышать воздухом после баньки, вам не придется идти в другой конец своего участка. При такой планировке у вас будет еще одно удобное пространство для трапезы или задушевной беседы в непосредственной близости к парной.
Смотрите также: Красивые крыши частных домов: фото, варианты дизайна, виды
Бани с бассейном
На фото — оригинальное планировочное решение бани, состоящей из трех пространств: основной постройки с парной, зоны бассейна под стеклянной крышей и беседки. Все части здания построены из бревна, а крыша выступает объединяющим элементом, придающим бане архитектурную целостность.
Просторная баня из дерева с беседкой под одной крышей станет еще комфортнее для отдыха, если к зданию будет примыкать бассейн. А чтобы облегчить переход из бани к бассейну, пол в беседке и настил вокруг бассейна укладывают в одном уровне, например, террасной доской.
Бани из бруса
Вы можете построить свою баньку из бруса, причем основное здание с парной и помывочной сделать небольшим, а к нему пристроить открытую беседку с летней кухней. Когда зона отдыха вынесена на улицу, отапливаемая площадь бани значительно уменьшится, соответственно, расходы по ее эксплуатации будут не столь велики.
Самый бюджетный вариант бани — сборная конструкция из бруса под односкатной кровлей из Ондулина. Такая банька, как на фото, — это постройка с маленькой парной и достаточно вместительной зоной отдыха на открытом воздухе.
Красивы по архитектуре одноэтажные брусовые бани с верандой или беседкой под двускатной крышей из гибкой черепицы. Особенно колоритно смотрятся фасады из бруса, окрашенного в светлые тона и скомбинированного с темным кровельным покрытием.
Эффектный вариант — баня с беседкой под одной крышей вальмового типа. Отдых после баньки будет особенно приятным, если в беседке обустроить уличный камин или зону барбекю.
Смотрите также: Ондулин: Красивые фото кровли домов, виды крыш
Бани из бревна
Бани из бревна обладают выразительным русским колоритом, который может быть подчеркнут еще больше, если настелить крышу камышом и пристроить небольшую беседку для пребывания на воздухе после парной.
Отличным дополнением к экстерьеру бани с многогранной беседкой из сруба станет ограждение из резных балясин в русском стиле.
Интересный штрих в дизайн постройки внесет коричневая крыша из металлочерепицы.
Эффектно выглядит и бревенчатая баня, и пристройка к ней в виде беседки под разноуровневыми двускатными крышами, смещенными относительно друг друга. Такой асимметричный фронтон придаст постройке необычный колорит, несмотря на привычную деревенскую стилистику архитектуры.
Чтобы оттенить светлые фасады бани из хвойного сруба, настелите кровлю коричневым, красным или зеленым Ондулином — такое решение будет и бюджетным, и красивым.
Если вы любитель современного стиля — постройте баню из сруба с просторной террасой под односкатной кровлей выгнутой формы. Бревенчатые фасады в комбинации с наклонными опорами, металлическим кровельным настилом и каменным цоколем будут выглядеть очень нестандартно.
Бани с планировочными решениями
1. На фото — проект одноэтажной каркасной бани площадью 40 кв. м с парной, душевой, санузлом, тамбуром и комнатой отдыха. К бане примыкает веранда с каминной зоной и восьмигранная беседка под шатровой крышей.
Проект: Архитектурная мастерская «Е-квадрат»
2. Двухэтажная баня на фото — деревянная постройка площадью 67 м2 с уютной квадратной беседкой под одной крышей. Планировочное решение бани включает просторную парную, душевую, санузел, гостиную и хозяйственное помещение, а также антресольный этаж с дополнительной зоной для отдыха.
Проект: ГК Народный дом
3. Хотите построить баню в колоритном деревенском стиле — присмотритесь к проекту на фото — это постройка из бревна, украшенная эффектными резными деталями, напоминающими белое кружево. Площадь бани — около 60 м кв. — здесь достаточно места для парной или сауны, санузла, комнаты для переодевания и зоны для отдыха на открытом воздухе. Просторная прямоугольная беседка, примыкающая к постройке, вмещает большую обеденную группу и летнюю кухню с мангалом.
Проект: ГК Народный дом
4. Компактная баня площадью 24 м2 — практичный вариант для небольшого загородного участка.
Несмотря на небольшую площадь, здесь есть все необходимое для приятного времяпровождения: парная, душевая и гостиная, совмещенная с кухней. Одно из преимуществ этого проекта — наличие небольшой крытой террасы, мне можно устроить застолье после банных процедур или просто подышать воздухом, расположившись в шезлонге.
Проект: Архитектурная мастерская «Е-квадрат»
5. На фото — проект бани площадью 31 м2, построенной из пеноблоков с последующей отделкой белой штукатуркой. Особую выразительность экстерьеру бани придают деревянные детали: обшивка стен, несущие колонны и ограждение веранды.
Проект: Архитектурная мастерская «Е-квадрат»
6. Проект бани в современном стиле — это лаконичная архитектура без каких-либо элементов деревенского стиля на фасадах. Абсолютно гладкие стены, оштукатуренные, а затем окрашенные в контрастной гамме, и плоская кровля — это признаки модерна в экстерьере здания. У входа в баню предусмотрена небольшая площадь с настилом из террасной доски — здесь можно обустроить беседку под одной крышей с основной постройкой.
Проект: Dom4M
7. Баня в современной стилистике на фото — здание площадью 43 м кв. с парной, бассейном, душевой, санузлом и гостиной. При входе в баню обустроена небольшая терраса, на которой можно разместить обеденную зону и зону барбекю.
Проект: Dom4M
8. На фото — проект большой деревянной бани площадью 60 м2 с террасой 40 м2. В планировке внутреннего пространства бани предусмотрены холлы, комната отдыха, помывочная с душем, парная и санузел. Здесь также есть вспомогательные помещения: бойлерная и хозблок. Большая крытая терраса имеет достаточную площадь для просторной обеденной зоны и летней кухни с мангалом.
Проект: Кировская архитектурно-проектная компания
Смотрите также: Фото красивых домов и коттеджей в России
Проекты бани совмещенной с хозблоком под одной крышей: брус, сруб или оцилиндровка
Баню, совмещенную с хозяйственной постройкой или гаражом не редко можно встретить на дачных или приусадебных участках.
Такое сооружение позволяет сэкономить имеющуюся свободную площадь небольшого участка, совместив в себе функции бани, кухни, кладовой, гаража и других незаменимых в быту помещений.
Угловая баня с хозблоком и гаражом
На сегодняшний день имеется множество готовых проектов совмещенных с хозблоком бань, различающихся размерами, использующимися при строительстве материалами, количеством внутренних помещений и, конечно же, стоимостью.
Наиболее рациональным для небольшого участка можно назвать угловое расположение бани, позволяющее совместить в одном сооружении и хозблок, и гараж. Соединение различных по своему назначению построек под одной крышей, несомненно, имеет свои плюсы.
Обычно проект сооружения предполагает разделение совмещенного здания на несколько изолированных друг от друга помещений с отдельными входами и располагается буквой Г.
С короткой стороны сооружения размещается сама баня со всеми необходимым помещениями – комнатой отдыха, моечной, парилкой, душевой.
Конкретное расположение комнат определяется индивидуально, но в большинстве случаев, окно комнаты для отдыха и вход в баню выходят на своеобразную угловую террасу.
С длинной стороны постройки размещают вход в хозяйственный блок, который может выполнять функции небольшой домашней мастерской, дровника, летней кухни или сарая.
В зависимости от расположения и удобства въезда на участок, возможны два варианта размещения гаража: с торца длинной стороны сооружения или рядом со входом в хозблок.
Важнейшую функцию выполняет небольшая угловая терраса, расположившись на которой можно устроить дружеские посиделки с чашкой чая после совместного принятия банных процедур или устроить небольшую вечеринку с барбекю либо шашлыками.
Как совместить баню и хозблок?
Разработка индивидуального проекта бани с гаражом и хозяйственным блоком намного сложнее, чем проектирование обычной бани. Сложности объясняются тем, что проекте должно быть предусмотрено и учтено огромное количество требований, предъявляющихся одновременно ко всем расположенным под одной крышей постройкам различного назначения.
При совмещении бани и хозблока под одной крышей в состав проекта включаются:
- проходы внутри помещений;
- теплообменные сети;
- система водоснабжения;
- конструкция кровли;
- безопасность использования раздельных помещений.
Для предотвращения попадания внутрь помещений атмосферной влаги, возникновения сырости и появления грибков, кровля совмещенной постройки обязательно должна быть общей.
Использующиеся для внутренней отделки стен материалы должны обеспечивать одновременное безопасное пользование и бани, и хозблока.
Входы в различные по назначению помещения должны быть предусмотрены раздельными, что не исключает возможности устройства внутренних переходов.
В зависимости от назначения хозяйственного отделения необходимо предусмотреть систему подвода холодной воды в помещения бани и ее отвода. Если в совмещенной бане планируется наличие туалета, следует предусмотреть также и устройство септика.
При использовании бани на даче или приусадебном участке в зимний период, не обойтись без утепления канализационных и водных коммуникаций, сооружения системы отопления, которая также не будет лишней и в гараже, и в хозблоке.
Построить совмещенную с хозблоком или гаражом баню можно как самостоятельно, так и обратившись в специализирующуюся на выполнении таких работ “под ключ” компанию.
Популярные проекты у нас на сайте
Оптимальный вариант: брус, сруб или оцилиндровка
Лучшими материалами для строительства совмещенных с хозблоком бань являются те же натуральные материалы, использующиеся и для возведения бань обычных:
- брус;
- сруб;
- оцилиндрованное бревно.
Каждый из этих материалов обладает своими достоинствами и недостатками, а потому выбор оптимального варианта: брус, сруб или оцилиндровка, зависит от индивидуальных предпочтений и сметы строительства.
Брус является идеальным материалом для постройки бани с хозблоком. Преимущества применения натурального бруса очевидны и неоспоримы:
- не требуется сооружение заглубленного фундамента;
- отсутствие усадки;
- отличная износоустойчивость;
- высокая теплоемкость;
- долговечность;
- обеспечение прекрасного микроклимата;
- высокие эстетические характеристики.

Единственным, но достаточно серьезным недостатком бруса является его цена.
Издревле на Руси бани строились из сруба, и в наши дни сохранившего свою популярность благодаря многочисленным преимуществам:
- создание прекрасного микроклимата в помещении;
- низкая степень теплопроводности;
- высокие звуко- и теплоизоляционные характеристики;
- продолжительный срок службы;
- возможность претворения в жизнь проекта любой сложности – от строительства обычной бани до сооружения бани с гаражом и хозблоком.
Помимо этого, сруб можно назвать и самым доступным и недорогим вариантом.
Из недостатков бревен необходимо отметить высокую пожароопасность, вероятность появления трещин и деформаций материала при осадке здания, а также необходимость периодической обработки поверхности конструкций предотвращающими гниение составами.
Еще одним материалом, часто использующимся для строительства бани с хозблоком, является оцилиндрованное бревно.
Несмотря на то, что оцилиндровка по своей сути – пиломатериал, ей присущи все свойства и преимущества цельного бревна, к которым добавляется чрезвычайная простота сборки.
Существенными недостатками оцилиндрованного материала является необходимость в назначении длительного перерыва в строительстве, связанного с продолжительной усадкой постройки, выполнение конопатки стен и периодическом ремонте наружных поверхностей.
Баня-временный дом: детали интерьера
На нашем сайте представлен ряд проектов срубов, например:
https://www.domastroim.ru/category/proekty-domov/proekty-srubov-domov-ploshhadyu-svyshe-200-kv-m/
Или вы можете посмотреть все цены на срубы.
Вы можете посчитать нужный вам дом или баню с максимальной точностью, используя наш калькулятор стоимости сруба.
Для того, чтобы заказать и купить сруб, звоните:
- Вологда (911) 502-03-67
- Москва (495) 532-74-09, (903) 243-10-51
Оставить комментарий
С этим материалом читали еще:
- Деревянный дом из бруса с гаражом: проекты и фото тут
- как брус торцевать ссылка
готовые проекты одноэтажных саун и с эркером, с бильярдом и с джакузи, жилых и с хозблоком под одной крышей, другие
Каждый владелец частного дома обязан иметь баню или хотя бы стремиться к этому.
Ведь баня – это не только ритуал, но и красота, здоровье, молодость и долголетие. Чтобы обзавестись собственным оздоровительным комплексом на жилом или дачном участке, нужен проект, визуализирующий желания и возможности заказчика, а также особенности строения.
Нормы проектирования
Любой банный проект можно завершить уже на стадии постройки или даже ее окончания, однако наиболее правильный подход — заранее готовая планировка. Это обусловливает оптимальное размещение объекта на участке, подводку коммуникаций, наиболее удобный доступ и практичное использование возможного функционала.
Например, если баня планируется с террасой, то важно ее ориентирование относительно сторон света и эстетической точки зрения. Если же в баню будет организована доставка воды из колодца, то и располагаться она должна неподалеку, причем так, чтобы было удобно носить воду ведрами — не ходить вокруг строения кругами, а расположить вход напротив.
Одним словом, очень важно предусмотреть многие нюансы заранее, и в этом поможет хорошо продуманный готовый проект — исправлять неудобства, связанные с расположением в готовом виде уже будет поздно. Более того, возможно, в связи с постройкой бани придется производить какие-либо модернизационные работы с коммуникациями, перепланировкой, в чем также поможет готовый проект.
Например, запланировать место под будущие декоративные посадки там, где ими можно будет любоваться с террасы, из панорамного окна эркера и т. д.
Качественный проект должен учитывать все требования, относящиеся к этому типу помещений.
- Выполнять все обязательные банные функции.

- Предусматривать комфорт и простоту в использовании.
- Отвечать требованиям пожарной, экологической безопасности.
- Иметь наиболее удобное расположение на участке — со свободным доступом и обеспечением всех коммуникаций.
- Вписываться в окружающий ландшафт, составлять единый архитектурный ансамбль с уже имеющимися постройками.
Традиционная баня всем знакома, этапы ее строительство отработаны веками. Однако надо помнить о современных технологических достижениях, способных не только оптимизировать затраты на строительство, но и существенно улучшить качество бани.
Каким образом создается проект?
Проект можно заказать в архитектурном бюро, а можно разработать самостоятельно, тем более что вся необходимая для этого информация находится в свободном доступе, как и масса готовых проектов.
Приступая к выполнению задуманного, вначале надо набросать эскиз будущей бани с примерной планировкой.
При этом в расчет берут желаемые размеры, строительные и отделочные материалы, которые понадобятся для строительства бани, планируемое оборудование, а также:
- какого типа печь будет установлена;
- будет ли в бане санузел, душ, бассейн, купель;
- какой дизайн интерьера предполагается использовать;
- планируемая архитектура — один или два этажа, мансарда или эркер, крыльцо, веранда, терраса.
Все эти моменты должны быть учтены заранее, еще на первоначальном этапе проектирования, как и обязательное составление сметы. После этого проделывают основную работу над проектом, доводя его до завершающего этапа — готовая планировка мест подведения и прокладки коммуникаций, расположение комнат и оборудования, вплоть до полного оформления внутренних помещений.
Строительные материалы для бани
Самый распространенные из них — бревно (дикое или калиброванное), брус (профилированный, клееный и т. д.). Далее по популярности следует камень, который тоже нередко используется для поднятия стен (кирпич, газо-, пенобетон, арболит). Ну и еще одна технология — каркасное строение — наиболее бюджетный, облегченный вариант, чье явное преимущество — скорость возведения.
Любой из этих вариантов имеет преимущества и недостатки, но поскольку речь идет о проектах, а не о самом строительстве, то о них следует упомянуть лишь вкратце — в виде таблицы.
Из какого бы материала ни строили домашнюю баню — каркасную или из бруса, блоков или кирпича, правильный проект – это основа прочности и качества строения.
Типовые проекты одноэтажных бань
Вариантов проектирования бань – бесконечное количество, и практически все они индивидуальны — ведь стоит внести даже небольшое изменение, и любая планировка становится эксклюзивной. Однако есть типовые проекты, которые служат основой для разработки собственной схемы.
Бани могут быть мини-размеров — 2х2, 2х3 с ограниченным количеством помещений. Это может большой комплекс, предназначенный для жилья и совмещенный с баней: 8х8, 7 на 10, 9х9, 10х10 м — с отдельной парилкой, с просторным предбанником, с полноценной комнатой отдыха.
Кроме того, баня может быть выстроена в традиционном стиле — 2 на 3. Если площадь и финансы позволяют, то реально осуществить проект намного больше — с парной, моечной, комнатой отдыха и прочее. Здание можно выстроить полноценным комплексом — с кухней, гостиной с эркером, камином.
Отличный вариант – это баня 70 кв. м, достаточно просторная, чтобы вместить все необходимые и дополнительные помещения. Например, санузел, душевая кабина. Все это вполне реально, если грамотно продумать планировку и выполнить точные чертежи.
С крыльцом
Поскольку баня – это строение специфического назначения, ее часто устанавливают на цоколе, чья средняя высота равна 30–50 см.
В этом случае конструкция нуждается в небольшом крыльце — 2–3 ступени. Если высота цоколя выше, то и крыльцо строят выше. Когда для подъема нужно всего пару ступеней, их делают без перил, если же выше, то уже желательно наличие ограничителей. Варианты конструкций:
- маленькое, отдельно пристроенное крыльцо под козырьком;
- большой вариант на одном фундаменте с баней под общей крышей.
Кроме того, просторное крыльцо зачастую возводят вместе с террасой закрытого или открытого типа, пристраивая к бане на отдельном фундаменте.
Со спальней
Для этой цели наиболее подходит строение в двух уровнях — полноценное двухэтажное или с мансардой.
Такую баню можно использовать как гостевой или жилой дом. На нижнем уровне обустроена баня со всем сопутствующим оборудованием, а верхний поделен на зоны, в зависимости от размеров здания — спальня, возможно, бильярдная, выход на балкон.
Нужно учитывать, что второй этаж автоматически увеличивает расходы на строительство и коммуникации — второй этаж надо обогревать, если дом предназначен для круглогодичного использования.
С зоной отдыха
Дополнительный функционал в виде оборудованной во внешнем пространстве зоны отдыха с барбекю, беседкой, плитой для приготовления пищи, садовой мебелью повышает уровень комфорта. Оптимальный вариант – это расположение под одной крышей, чтобы можно было выйти после бани сразу на свежий воздух, без лишнего передвижения по участку.
Такая планировка обеспечивает широкий спектр использования, который можно еще повысить, предусмотрительно защитив от насекомых, позаботившись об освещении. Таким образом, зоной можно пользоваться в вечернее и ночное время.
С санузлом
Наличие комнаты с туалетом в бане — удобная функция, если строение достаточно просторное, чтобы там была организована полноценная зона отдыха с кухней-столовой, бильярдной и т. д. То есть, там можно проводить много времени, и наличие санузла избавит владельцев от необходимости ходить в жилой дом.
Это особенно актуально, если на улице стоит холодная промозглая погода. Для размещения унитаза хватит помещения с размером 0,8х1,2 м. Если пространство гораздо больше, то там можно оборудовать зону с душем, раковиной.
С бильярдом
Сегодня наличие бильярдной зоны в бане уже никого не удивляет, как это было до недавнего времени.
Население научилось ценить высокий уровень комфорта, а наличие бильярда является эффективным отдыхом для ценителей подобного времяпровождения. Вряд ли можно отказаться от возможности не просто помыться, а поправить здоровье и насладиться сауной, окунуться после этого в бассейн, сыграть партию-другую с друзьями и единомышленниками.
В последнее время такие комплексы пользуются все большей популярностью, и речь не идет о коммерческих предприятиях. Все чаще этот вариант применяется для собственного пользования на частных участках
.Для правильного оборудования бильярда в бане нужно соблюсти несколько условий.
- Бильярдная должна быть полностью изолирована от парной, мойки, купели. Это поможет не допустить негативного влияния влаги на дорогую древесину игрового стола.

- Специфика требует организованного места, поэтому для установки стола понадобится подиум или специальный фундамент.
- Вокруг стола должно быть не менее полутора метров.
Наличие окон только приветствуется, а общая рекомендуемая площадь — в пределах 30–40 метров.
С джакузи или с бассейном
Собственная баня с бассейном — мечта многих, и подобные проекты пользуются все большим спросом, при этом бассейн может быть как внутри, так и снаружи бани. Наиболее удачной планировкой является тот вариант, при котором в бассейн можно попасть прямо из парилки, а также моечной и комнаты отдыха.
Оборудование зависит от размеров — можно приобрести готовую чашу, причем выбор моделей, их глубина предлагаются в большом ассортименте.
Можно выполнить его с нуля, но для этого понадобятся специалисты, и стоит такая работа намного дороже. Бассейн всегда можно заменить купелью, если вдруг для бассейна не хватает места.
С хозблоком под одной крышей
Очень удобный проект — когда все находится под одной крышей, зона с дровником, веники, дополнительные банные и печные принадлежности. Для строения такого типа предстоит обеспечить выполнение некоторых обязательных условий.
- Чтобы не допустить проникновения влаги, придется использовать качественную гидроизоляцию.
- Присутствие топлива в общей зоне требует расширения мер пожарной предосторожности.
В связи с этим баня с хозблоком должна находиться отдельно от жилого дома и других строений, а вход в хозяйственную быть отдельным.
Форма бани и планировка комнат
Во время построения чертежа бани нужно одновременно заниматься планировкой внутренних помещений.
Именно такой подход позволит создать гармоничный интерьер и функционально удобное пространственное размещение.
Кроме того, надо обязательно продумать, как грамотно вписать декоративные элементы, акцентные аксессуары. Для этого придется учитывать такие параметры:
- размер и рельеф участка;
- количество и назначение комнат, их размеры — максимальная площадь отдается комнате отдыха, минимальная — тамбуру;
- составление сметы и примерный расчет необходимого запаса расходных материалов.
Уже после этого можно принять решение, какой формы будет будущее строение — Г-образное, треугольное, буквой А (шале), традиционное, или это будет пятистенок. Решение в пользу узких вытянутых форм обусловлено особенностью участка, например, если он сильно вытянут, имеет очертания пенала.
В выборе стиля нужно также определиться заранее — кантри или прованс, шале или русский стиль.
Обязательные отсеки для бани:
- мойка;
- парная;
- предбанник;
- комната отдыха (она может совмещаться с предбанником).
Дополнительные помещения, повышающие комфорт и уют:
- душ;
- санузел;
- бассейн;
- спальня;
- бильярдная;
- кухня-гостиная;
- терраса с барбекю и солярием.
Во время работы над проектом нужно всегда помнить о его безопасности, экологичности, практичности. Гармоничное сочетание всех этих требований и параметров позволит построить «живую» баню, с «душой», всеобщую любимицу, где будут рады собираться и общаться члены семьи, их родственники и друзья.
Планировка сауны со вторым этажом
Несмотря на удорожание строительства, расходы в двухуровневом строении более оправданы, поскольку финальный результат намного эффективнее — строение выходит просторным и комфортным. Оно может служить для постоянного проживания, функциональных комнат в нем намного больше, как и возможностей. Преимущества двухэтажных бань:
- экономия занятого пространство на участке — уменьшается пятно застройки;
- оптимизация пространства — строение позволяет совмещать большее количество хозяйственных, специализированных, вспомогательных помещений;
- универсальность — второй этаж можно использовать как место для отдыха, организовать там спальню, детскую, кабинет и т. д.;
- привлекательный и солидный внешний вид — двухэтажное строение смотрится намного презентабельнее, чем его одноэтажный собрат.

Впоследствии появляется возможность организовать первый этаж со спортзалом. В целях экономии полноценный верхний уровень зачастую заменяет мансарда — ее наличие позволяет применить интересный дизайн из стекла и дерева по индивидуальному желанию владельца, разместить спальню, детскую, позже они будут служить гостевыми комнатами.
На сегодняшний день все больше двухэтажных бань появляется на загородных участках. Как правило, такие варианты предусматривают их эксплуатацию в качестве гостевых домов, и возводятся они в первую очередь, служат временным жилищем, пока строится жилой дом. На все время строительства дома владельцы обеспечены жилым пространством и баней.
Дизайн интерьера
Поскольку в баню идут за чистотой, здоровьем, релаксом, душевным и телесным отдыхом, интерьер должен отвечать этим целям.
Наиболее гармоничным будет оформление всего комплекса в едином стиле.
- Минимализм — в наборе аксессуаров и отделочных материалов присутствуют только необходимые предметы, все должно быть лаконичным и функциональным.
- Деревенский стиль — «дикое» дерево, резьба, отделка вагонкой, пучки сушеных трав и т. д.
- Прованс — белый и бежевый оттенки с вкраплением средиземноморской палитры, имитация старины, винтажные элементы, текстиль с мелким растительным рисунком.
- Античный стиль — наличие кафеля, керамики, каменная стена, возможно, из натурального полудрагоценного минерала — нефрит, яшма, жадеит, плиток гималайской соли.
Возможны декорации в виде фальшколонн, светильников, статуэток.
Стилей может быть множество, и наилучшим решением будет точное соблюдение законов выбранного стиля. Баня с панорамным остеклением делает отдых не просто приятным — красивый вид умиротворяет, успокаивает, украшает, делает банный день незабываемым.
Красивые примеры
В качестве примеров ниже показаны лучшие готовые проекты, необычные, элитные и бюджетные.
- Русский стиль. Традиционный стиль для русского человека, исконный и национальный. Его характеристики — резные элементы и детали, самотканые половики и дорожки, берестяная, плетеная и деревянная посуда, самовар, чугунки, вышивка.
Лавки в предбаннике, веники в парилке, пучки зверобоя и полынника в комнате отдыха.
- Шале. Важный прием в оформлении — упор на гендерную энергетику. Баня с мужским началом – это кованые предметы, коллекционное оружие, охотничьи и рыболовные трофеи. Женское помещение – это картины с пейзажами, керамикой, вышитым салфетками, душистыми травами, заплетенными в венки, пучки высушенных лекарственных растений. Грубое дерево, открытые потолочные балки, панорамные или окна второго света.
- Лофт. Это, скорее, мужской стиль, брутальный и грубоватый.
Приглушенные темные холодные тона, четкая геометрия, наличие натурального камня, металла, дерева, стекла. При этом прослеживается грамотное сочетание традиций и современных технологий.
- Прованс. Этот стиль наиболее близок по духу женщинам — изящный и утонченный, винтажный и ароматный. Его запах – это аромат лета, лаванды, французских трав. Гармония в цвете — белый, бежевый, морская палитра. Вышитые полотенца и наволочки на диванных подушках, винтажные полочки, этажерки, панно-тарелки и т. д. Изящная мебель на фигурных ножках, натуральный текстиль.
- Рустик.
Можно посчитать, что это одно и то же, что и русский стиль, однако разница имеется. Рустик – это природные материалы в грубой обработке, иногда и вовсе не обработанные. При этом приветствуется сочетание натурального «рваного» камня и состаренного бревна, кованой, бронзовой, посуды, латуни и меди.
Любой выбранный стиль должен отвечать духовному началу своего владельца. Только тогда баня станет местом покоя и будет способствовать релаксации и стабилизации эмоционального фона.
проекты, особенности компоновки и строительства
Чтобы перейти к разбору темы баня с беседкой под одной крышей, надо пояснить, что с точки зрения архитектуры, собой представляют два этих сооружения по отдельности.
Начнём с беседки, как с самого простого строения.
Это постройка некапитального типа лёгкая и отдельно стоящая. Единственные в её конструкции капитальные элементы – стойки (опоры, столбы), на которые упирается кровельное сооружение. При этом беседки могут иметь различную форму и размеры, пространство между стойками может быть открытым или закрываться лёгкими решётками.
Что собой представляет баня. Это капитальное строение с несущими стенами, которые должны защищать внутреннее пространство от внешних температур и природных нагрузок. Покрывают её капитальной крышей, обычно утеплённой.
Получается так, что оба сооружения друг от друга отличаются разительно. Но всё чаще их общий симбиоз возводят на загородных участках. Поэтому проекты бань с беседкой, покрытые общей крышей, сегодня очень востребованы. Правда, надо обозначить один момент, который касается архитектурных терминов.
Сама по себе беседка – это уже отдельно стоящее сооружение. Если говорить о банях с открытой пристройкой, то правильно это называть баня с верандой или террасой под одной крышей.
Но в народе употребляют термин баня с беседкой под одной крышей. Поэтому и в статье нами будет употребляться этот термин.
Преимущества сдвоенного сооружения
Хотелось бы в самом начале обозначить именно преимущества бани, совмещённой с беседкой.
- Это экономичный по занимаемой площади вариант строительства. Он более компактный, поэтому легко будет на дачном участке найти для него место.
- Все коммуникационные сети делаются для двух частей сразу. Особенно это касается питания от электрической сети. То есть для сдвоенной постройки надо будет установить один электрический щит, заполнив его требуемыми приборами.
- Беседку используют как зону отдыха в независимости от того, будет ли использована баня. Здесь устанавливают барбекю или мангал, столы со стульями или мягкую мебель.
- Значительно экономиться строительный бюджет. Всегда сдвоенные постройки требует меньших капитальных вложений.
- Экономится и время на строительство. Весь комплекс возводят за один строительный сезон.
Если она небольших размеров, то достаточно одного месяца.
Проектирование
Проекты бань с открытыми беседками представлены огромным списком предложений. Выбрать из них что-то достойное не представляет большого труда. Но необходимо обозначить, что при выборе во главу угла, даже самый обеспеченный заказчик, ставит ценовую составляющую будущей постройки. А она зависит от размеров и материалов, из которых возводится, а также функционального назначения.
Что подразумевается под последним. К примеру, если по проекту сооружается барбекю из кирпича или камня. Кстати, баня с барбекю под одной крышей – часто встречаемые проекты. Для этого очень важно учесть несколько моментов, которые касаются пожаробезопасности строения:
- пол сооружается из негорючих материалов: керамическая плитка, кирпич, камень плиточный или колотый, бетонная плитка;
- барбекю сооружается так, чтобы своей стеной она загораживала беседку от порывов ветра, это поможет дополнительно не переносить искры от горящих дров или угля;
- барбекю устанавливают напротив входной двери в баню, хотя архитекторы предлагают и другие безопасные варианты.

Теперь о том, из каких материалов возводятся эти строения. Здесь нет строгих ограничений. Всё дело во вкусе заказчика. Чаще для этого используют пиломатериалы. Сама баня издревле считалась строением деревянным, где бревно было основным стройматериалом. И сегодня оно не уступает по своей популярности другим. Правда, современное бревно сильно отличается от тех, используемых десятки лет тому назад.
Производители пиломатериалов предлагают брёвна и брусы с точными геометрическими размерами. Поэтому возведённые из них бани и беседки выглядят достойно. Конструкция бани обладает превосходными эксплуатационными характеристиками, где нет места ни сквознякам, ни потерям теплоты. При этом надо отдать должное, что деревянные бани, совмещённые с беседками под одной крышей, здания не только надёжные в плане их долгосрочной эксплуатации, но и пожаробезопасные. Брёвна и брусы обрабатывают антипиренными составами ещё на стадии их изготовления.
Следующий материал – кирпич и блоки.
Насколько актуальны проекты, в которых возводимые здания поднимаются из этих штучных стройматериалов. В принципе, если говорить просто о бане, то такие проекты являются часто встречаемыми, потому что банный сруб – удовольствие не из дешёвых. Даже если его собирать самостоятельно. Хотя этого делать не рекомендуется. Слишком сложная технология строительства, где большое количество различных технологических нюансов.
Построить здание из кирпича или блоков проще, если говорить о самострое. Но у такой конструкции достаточно большой вес. Поэтому под неё придётся закладывать хороший фундамент, на который выделяется немало денег. Но опять-таки всё зависит от размеров постройки. Небольшие бани возводятся и на мелкозаглубленных дешёвых фундаментах.
Теперь, что касается беседки из кирпича. Насколько эта конструкция себя оправдывает в плане строительства. Если подойти к разработке проекта с фантазией, то пристройка из кирпича или блоков – реальное красивое сооружение. Для этого просто формируют стойки (опоры) из штучного материала с обвязкой по верхним торцам.
А вот здесь можно поиграть материалами. В качестве обвязки подойдёт армирующий пояс из бетонного раствора или деревянные брусы, выполняющие функции балок перекрытия. Главная задача – создать опору для кровли и связать между собой опорные стойки для беседки.
Кстати, о каменных стойках. Под них обязательно заливается бетонный фундамент сечением в два раза больше сечения стойки. При этом глубина выбирается из расчёта массы кирпичей или блоков, плюс вес кладочного раствора. Под деревянные стойки заливается столбчатый фундамент из бетона или собираются подставки из того же кирпича или бетонных блоков. Важно – провести хорошую гидроизоляцию подставок.
Комбинированный вариант
Что подразумевается под термином «комбинированный». В принципе, здесь позиция одна – баня из камня, беседка из древесины (хотя приемлем и обратный вариант). Насколько будет такой симбиоз хорошо смотреться. Как показывает статистика, именно такие проекты банных комплексов, покрытых одной крышей, самые востребованные.
Причин несколько, но главная – упростить сложность строительного процесса, уменьшить себестоимость здания. Что касается сочетаемости двух соединяемых строения, то здесь дело техники. Благо различных отделочных материалов на рынке огромное количество. К примеру:
- отделка стен бани облицовочным кирпичом, который прекрасно сочетается с деревянными изделиями;
- облицовка стен сайдингом под дерево или блок-хаусом, можно использовать обычную деревянную вагонку;
- штукатурка стен фасадными смесями, которые имитируют природный камень, например, травертин.
То есть сегодня найти вариант сочетания деревянной беседки с баней, возведённой из кирпича или бетонных блоков, огромное количество. Надо просто включить фантазию. Но если к этому делу подключить архитектора, то он предложит серьёзный выбор. То есть сегодня это не проблема.
Крыша для бани с беседкой
Так как разговор идёт об общей крыше, то надо сразу на стадии проектирования решить, какой она будет.
Предложения всё те же: одно- или двухскатная, вальмовая, шатровая.
Односкатная крыша
У этой конструкции одно преимущество – один скат, на который уходит меньше всего строительных материалов. Используют эту разновидность кровельных конструкций для покрытия бани с беседкой нечасто, потому что само строение имеет довольно большую длину по сравнению с шириной. Хотя есть вариант сделать скат с уклоном, с боковую сторону постройки. Не всегда такое сооружение имеет презентабельный внешний вид. Но для некоторых застройщиков подчас это единственный выход из положения малого наличия денег.
Встречаются постройки, в которых скаты двух частей комплекса сделаны в разные стороны. К примеру, баня покрывается кровлей с уклоном к задней стене, беседка к боковой. Но это уже не будет одна крыша.
Двускатная
Это оптимальный вариант, потому что двускатная крыша спокойно закрывает два пристроенных друг к другу сооружения. Поучается единая архитектурная конструкция, под которой не видно, что состоит она из двух разных построек.
К тому же этот вариант несложен в сооружении и по ценовой составляющей не самый дорогой.
Вальмовая крыша тоже неплохой вариант. Она накрывает единой конструкцией и баню, и беседку. Единственное – кровельная конструкция не так проста, в ней много дополнительных элементов, плюс большие отходы кровельного материала за счёт формы скатов: трапеция и треугольник.
В этом плане шатровая крыша используется также редко. Реже, даже чем вальмовая, причина – она может накрывать собой строения, стоящих на квадратном участке. В этом плане такие проекты бани с беседкой встречаются очень редко.
Габариты строения
Как уже говорилось выше, баня с барбекю под одной крышей может иметь разную форму и размеры. И стоять относительно друг друга две части одного единого здания могут по-разному. Здесь огромное разнообразие проектных предложений. Нас же интересуют размеры, отчего они зависят.
В первую очередь от размеров самого загородного участка. Если территория позволяет, то размахнуться можно основательно.
Если дачный участок в пару соток, то и фантазировать нет никакого смысла. Придётся довольствоваться небольшой постройкой.
Если размеры территории позволяют поиграть габаритами банного комплекса, то рекомендуется учитывать количество человек, которые одновременно будут париться и отдыхать. А так как парилка – сердце русской бани, соответственно ей надо выделить площадь побольше. Моечную тоже лучше не обделять пространством. Хотя сегодня многие ей не придают особого значения. Это помещения постепенно упрощают, устанавливая душ (одну или две кабинки). И, как показывает практика, этого достаточно даже на 10–12 человек.
Не забываем о санузле и котельной (топочной). Эти две комнаты в бане должны быть обязательно. И, конечно, комната отдыха, совмещённая с раздевалкой. Её надо делать также большой, потому что зимой на открытой террасе не посидишь.
Теперь разберёмся с размерами беседки. Здесь опять-таки всё упирается в количество людей. Но придётся учитывать и наличие барбекю или мангала, а может быть целого печного комплекса.
Если размеры и финансы позволяю, и вы любите принимать гостей, то не стоит ограничиваться небольшой постройкой. Конечно, если вы любите тишину и уединение, то пристройка шириною в два метра – более чем достаточна. Переносной мангал или барбекю, пара кресел и небольшой столик на такой площадке легко поместятся.
Примеры проектов
Хотелось бы разобрать несколько примеров бань с беседками разного типа. На фото ниже один из самых популярных вариантов, имеется в виду по стыковке двух частей, размерам и форме.
Это линейное сооружение, где беседка становится продолжением бани, и всё это располагается под одной двускатной крышей. Интересен вариант ещё и тем, что на беседочной площадке размещён печной комплекс со встроенным барбекю и мангалом. При функциональности строение оно на самом деле достаточно компактно. При этом очень правильно учтена роза ветров – беседка от ветра закрыта одной сплошной стеной.
Обратите внимание! По типу используемых материалов это комплексная постройка.
Здесь баня собрана из брёвен, а веранда из кирпича. Это касается не только стены, но и опорных столбов, подпирающих крышу.
Учтена и пожаробезопасность конструкции:
- печь располагается в самом дальнем углу от деревянной конструкции;
- пол покрыт тротуарной плиткой;
- сама печка выложена огнеупорным кирпичом.
Предлагаемый проект на самом деле универсальный. То есть при необходимости можно удлинить беседку, вложив в неё небольшие деньги. Это позволяет сделать и двускатная крыша. Если кровля, к примеру, была вальмовой, то проблем было бы больше.
Второй проект – это банный комплекс, покрытый шатровой крышей. Смотрится такая архитектурная форма уютно и компактно. Обратите внимание, что сама баня построена буквой «Г». То есть за счёт уменьшения площади открытой террасы были решены некоторые пространственные и функциональные проблемы банного помещения. В ответвлении бани можно расположить санузел или топочную.
Но зато терраса получилась великолепной.
Она небольших размеров. Это чисто зона отдыха без функциональных изысков. Но как точно подобрана мебель, как правильно организовано пространство.
На фото не совсем понятно, из какого материала все сооружение возводилось, потому что с виду это вагонка или виниловый сайдинг. Поэтому можно предположить, что здание строилось или из штучных материалов (кирпич, блоки), или это деревянное строение, даже может быть каркасное. Но надо отметить, что изготовитель проекта учёл все мелочи: декоративные, размерные и функциональные.
Третий проект подтверждает наше предложение, которое касается возможностей владельца большого загородного участка. То есть если размеры территории позволяют, и к вам приезжает много гостей, то вот такая баня с беседкой – отличный вариант.
Начнём с того, что проект этого здание – постройка основательная, выстроенная из кирпича или блоков. Это касается всего строения полностью, даже открытой террасы. На её площадке сооружён печной комплекс. Он достаточно большой, поэтому можно говорить о том, что это полноценная кухня, на которой можно готовить каждый день любые поварские изыски.
Обратите внимание на крышу. Она как бы не является единой. То есть беседка накрыта кровельной конструкцией, которая ниже крыши основного здания. Надо отметить, что это чисто архитектурный приём, когда автор проекта хочет подчеркнуть индивидуальность каждой части комплекса. Но при этом над верандой просто кровля без потолка, что позволяет увеличить воздушное пространство, плюс визуально увеличить саму кровлю изнутри.
Четвёртый проект – здание с двумя односкатными крышами. Как уже говорилось выше, не всегда возможности дачного участка позволяют строить здания линейной формы. Это как раз такой случай. Получается так, что баня к беседке построена под прямым углом. Отсюда и сложности сборки единого кровельного пространства.
Автор проекта пошёл по пути экономии средств заказчика. Но при этом смог чётко скомпоновать два объекта, покрыв их отдельными кровлями. Конечно, единая крыша смотрится куда эффективнее. Такая конструкция в несколько раз презентабельнее, чем двойная на этом проекте.
Но и такие варианты сегодня предлагаются. Тем более по функциональности и эффективности использования они ничем от вышеописанных не отличаются.
Заключение по теме
Итак, нами разобраны проекты различных бань с беседками под одной крышей. Это всего лишь ничтожная часть того, что предлагают архитекторы. Но, в общем, вы получили информацию о том, как и какими средствами оба сооружения компонуются. Как всегда, выбор остаётся за хозяином загородного участка.
планировка дома-бани с зоной для барбекю, идеи двухэтажной конструкции с местом для отдыха, обустройство площади 3х6 и 5х6 м своими руками
Баня в русской традиции – это не только водные процедуры, но и вид досуга, любимого многими нашими соотечественниками. В бане приятно посидеть с друзьями после напряженной рабочей недели, отдохнуть всей семьей, полноценно очистить поры тела и снять накопившуюся психологическую усталость.
Помимо совместного отдыха с чаепитиями и шашлыками, в бане нередко устраиваются мужские и женские посиделки по интересам. Например, мужской компании будет интересно обсудить свои дела, а женщины устраивают в бане целые косметические ритуалы, не уступающие спа-салонам.
Для проведения такого разностороннего досуга необходимо, чтобы баня имела, кроме парной, моечной и раздевалки, еще и вместительное место для отдыха. Таким местом может стать функциональная веранда, находящаяся под одной крышей с банным строением.
Преимущества бань с верандой
Одним из основных преимуществ является экономия квадратных метров участка. С верандой, пристроенной к бане, можно исключить дополнительные постройки на участке, освободив место для цветников или огородных культур. На веранде может расположиться летняя кухня, беседка, место для барбекю или небольшой бассейн.
Объединение сразу нескольких функциональных объектов под одной крышей существенно снизит затраты на строительство и материалы. Полотно кровли для совмещенной постройки обойдется дешевле, нежели для нескольких сооружений. Кроме того, возведение бани с верандой позволит выдержать единый дизайн для всего мини-комплекса.
С точки зрения удобства, такой банный мини-комплекс позволит проводить полноценный досуг в одном месте, не переходя от строения к строению.
Варианты строений
Какой будет веранда, пристроенная к бане, зависит от вкуса заказчика, его финансовых возможностей и наличия свободной площади на участке. Архитектурные агентства предлагают множество готовых проектов на любой вкус, а также помогут разработать компьютерную версию по индивидуальному запросу.
Даже если вы собираетесь строить баню с верандой своими руками, просмотр такого наглядного проекта не будет лишним.
Рассмотрим наиболее часто встречающиеся типы проектов.
- Баня как отдельное строение. В этом случае веранда может быть расположена с любой стороны банного строения или даже вдоль него. Все зависит от расположения самой бани и предполагаемых функций веранды.
Если пристройка расположена сбоку строения, то к ней может вести небольшой открытый или закрытый переход. В случае двухэтажных строений, веранда может располагаться на втором этаже, что существенно сэкономит место на участке.
- Угловая баня с верандой – образец компактности и вместительности сооружения. Она может занять самый затемненный угол участка, не использующийся под высаживание растений.
Благодаря угловой форме внутри помещения будет достаточно пространства для размещения как самой бани, так и прилегающей зоны отдыха.
Кроме того, угловое расположение бани с верандой способно придать завершенный вид архитектурной композиции всего участка.
- Баня, пристроенная к дому. Такой способ планировки позволяет увеличить площадь дома, уменьшив при этом застройку самого участка. Веранда в этом варианте постройки служит отличным местом отдыха сразу для двух строений – дома и бани. Но стоит помнить, что такой вариант требует дополнительных затрат на гидроизоляцию и вентиляцию, чтобы избежать сырости в доме.
Стандартные и наиболее удачные параметры веранд имеют размеры 3х6, 5х6, 4х8, 5х4 метров.
Типы и формы веранд
Веранда – это крытая летняя пристройка к дому, в классическом исполнении имеющая стены, оконные проемы, фундамент и крышу. Веранды могут быть как открытыми, так и закрытыми.
Открытые веранды отличаются тем, что могут иметь только одну стену со стороны дома и крышу. Они проще по конструкции и представляют собой просторное крыльцо с перилами и несущими столбами. Закрытая веранда – это летняя неотапливаемая комната отдыха, защищенная стенами и окнами от осадков и ветра.
При проектировании не будет лишним рассмотреть и различные формы веранд. Вместо традиционной прямоугольной или квадратной формы, можно выбрать полукруглые, овальные или даже треугольные сооружения оригинального дизайна. Такая постройка станет архитектурной изюминкой в ландшафтном дизайне участка и нестандартным местом для сбора гостей.
Варианты проектов
- Классическая баня с верандой. Отдельно стоящее банное сооружение станет центром досуга для всей семьи, если заранее включить в проект постройки просторную веранду. Здесь можно устраивать семейные торжества, поставить диваны или плетеную мебель, организовать барбекю или бильярдную площадку.
- Двухэтажная баня. В этом варианте веранда может быть узким помещением, предназначенным только для подъема на второй этаж в комнату отдыха. Если баня такого типа предназначена, прежде всего, для проведения досуга, то застекленная веранда с ведущей на второй этаж лестницей станет украшением участка.
Для комнаты отдыха необязательно пристраивать полноценный второй этаж, можно обойтись просторной мансардой под односкатной крышей и одной пристроенной стеной над баней.
Баня с узкой верандой и мансардой значительно экономит квадратные метры участка.
- Баня с летней кухней. Отличный вариант для небольших земельных угодий или для владельцев, еще не закончивших строительство основного дома. Такая баня пригодна для постоянного проживания в летний период и вместит в себя все необходимые бытовые элементы.
Летняя кухня служит для приготовления и приема пищи, банное помещение с парной – для водных процедур. На веранде-кухне можно организовать и место для отдыха и сна.
- Баня с бассейном.
Душевая кабина или обливание холодной водой не приносят столько радости, сколько возможность окунуться в воду сразу после парной. Если поблизости нет водоема, такую возможность может предоставить даже самая простенькая емкость с водой. Небольшого размера бассейн можно установить прямо в углублении веранды. Сооружение полноценного бассейна из пеноблоков – задача технически сложная, требующая соблюдения множества нюансов и разработки отдельного проекта. Упростить задачу можно выбором покупной пластиковой купели на 10-20 кв. метров.
В продаже представлены пластиковые емкости самых разных форм и размеров, которые можно вписать в любое помещение. Как правило, с ними в комплекте идут все необходимые аксессуары – полки, лестницы, коврики.
Планировка веранды
Рассматривая различные проекты бань с верандой, следует уделить особое внимание расположению пристройки, ее ориентированию по сторонам света.
От этого будет зависеть комфорт и функциональность этого помещения. Определитесь с основной задачей веранды как помещения для досуга. Учтите, что с южной и юго-западной стороны на веранде будет слишком много солнца, а это может быть неудобным для комфортного времяпровождения. В то же время южная сторона для веранды и входа в баню станет спасением от северных ветров и заносов снегом в зимнее время года.
Окна веранды, выходящие на запад, обеспечат более длительное солнечное освещение в летнее время года, ведь баню чаще всего затевают к вечеру.
Для установки барбекю определите основное направление ветров на вашем участке. Желательно, чтобы веранда была защищена от порывов ветра строением бани.
Еще одна немаловажная деталь при выборе расположения веранды – эстетическое восприятие. Отдыхая на веранде, лучше любоваться живописным пейзажем, чем видом забора или хозяйственных сооружений.
Возведение постройки
Как правило, веранда под одной крышей с баней планируется еще на стадии проекта, и материалы для нее выбираются такие же, как и для бани. Но это не обязательное условие – вполне достаточно одной общей крыши и фундамента, а вот сама веранда может быть, например, деревянной на фоне кирпичного банного строения.
Следует помнить, что пристройка веранды из другого материала возможна только на переход от тяжелых к легким материалам. Можно пристроить легкую конструкцию из дерева к кирпичной бане, но никак не наоборот.
Еще один вариант – пристройка к уже готовой бане, например, в ситуации, когда крыша банного строения требует ремонта и замены.
Планируя поменять кровлю, можно заодно расширить банное пространство, добавив в проект строительство веранды.
Фундамент для веранды к бане
Закладка основания – самый ответственный момент строительства, от которого зависит долговечность конструкции. Работы по укладке фундамента начинаются с определения уровня грунтовых вод и степени пучинистости почв.
Это особенно важно, если веранда строится уже после возведения бани, с отдельным фундаментом. Бывает так, что в нескольких метрах от основного фундамента грунт имеет другую структуру и близкий проток вод, а это может привести к размыванию основания и трещинам в стенах.
Фундамент под веранду и баню может быть нескольких типов.
- Ленточный – самый экономичный вариант, пригоден для стабильной почвы, хорошо выдерживает тяжелые конструкции. Процесс укладки состоит в создании траншеи по периметру предполагаемого строения, монтировании простой опалубки из подручных материалов, укладки армирующего каркаса и заливки бетонной смеси. После окончательного застывания бетона можно приступать к возведению стен.
- Столбчатый. В подготовленный заранее котлован вкапываются готовые бетонные блоки или столбы из кирпичей. На дно котлована выстилается «подушка» из щебня и песка, столбы плотно утрамбовываются, а нижняя часть столбов заливается битумной мастикой. Столбы обязательно должны находиться на одном уровне по высоте и стоять не дальше, чем в 2 метрах друг от друга. Пространство между столбами засыпают щебнем. Далее, как и в первом случае, производится заливка бетона.
- Свайный.
Этот способ подходит для проблемных почв с высоким уровнем грунтовых вод. Пробуриваются скважины в запланированных проектом точках, укладывается гидроизоляция в виде рубероидного конуса, заливается бетон. На поверхности сваи соединяются между собой ростверком – железобетонной рамой. - Свайно-винтовой. Еще один несложный способ, предполагающий вкручивание в почву металлических труб с винтовой резьбой на наконечниках. Важно, чтобы трубы были покрыты антикоррозийным составом.
Полы
Укладка чернового пола производится на полностью высохшее бетонное основание. Лучше всего использовать древесину с деформационным зазором, поскольку этот материал имеет свойство расширяться от перепада температур.
Дерево обязательно должно быть обработано антисептиком и водоотталкивающими составами. Как правило, строительный рынок предлагает множество вариантов уже пропитанных и обработанных досок для чернового пола.
При выборе чистового напольного покрытия следует уделить внимание износоустойчивым, морозостойким и нескользким материалам. Баня отапливается только в определенные периоды, а в зимнее время года подвержена промерзанию. Обычная древесина может дать трещину в морозы, а плитка не всегда пригодна для бани из-за повышенной скользкости. Оптимальным вариантом будет выбор вагонки или террасной доски из определенной породы древесины, уже обработанной специальными составами.
Для открытых террас применяется обычно древесина лиственницы или сосны.
Благодаря смолистым свойствам, она не гниет и не теряет прочности, что существенно продлевает срок службы пола. В продаже также имеются и комбинированные варианты на основе древесины и полимеров.
Если на веранде планируется место под барбекю, необходимо заранее сделать основание под мангал, соблюдая все правила пожарной безопасности, как при установке печи в бане.
Стены
Каркас веранды возводится на готовом фундаменте и может состоять из различных материалов: сборных металлических профилей, брусьев древесины, пеноблоков, строительного кирпича. Выбор материала во многом зависит от типа самой веранды. Для открытого типа достаточно легкого каркаса из дерева, а закрытое теплое сооружение потребует основательных стен и утеплителя.
Нередко веранды по максимуму остекляют или защищают от ветра и сквозняков прозрачным поликарбонатом.
Оконные проемы могут полностью заменять стены на манер «французских окон» от пола до потолка, или возводиться частично, например, начиная от перил на уровне пояса. Интересен вариант остекления части проемов витражной мозаикой. Это придает веранде оригинальный вид и защищает от прямых лучей летнего солнца.
Крыльцо
Размеры и высота крыльца будут зависеть от высоты напольного настила веранды. Крыльцо может быть выполнено из древесины, кирпича или бетона. Иногда для украшения перил применяются кованые металлические изделия.
Основное требование к открытому крыльцу – ступени должны быть прочными и нескользкими.
Стилевые направления
Веранда под одной крышей с баней предполагает единство композиции всего сооружения и является продолжением банного интерьера.
Если баня выдержана в стиле русской классики, то деревянная веранда с резными перилами и столбами, мебель из бруса, расшитые подушки и скатерти дополнят неповторимый колорит стиля кантри.
Более строгий вариант кантри – шале, предполагает спокойную роскошь и элегантность интерьера. Для этого варианта подойдет полное остекление, шезлонги для принятия солнечных ванн, чайный столик современного дизайна.
Восточный стиль тяготеет к экзотическим элементам декора, здесь будут уместны низкие кушетки и столик, яркие подушки, украшения китайской или японской тематики. Многогранная или полукруглая форма веранды придаст особый шик этому стилю.
Для стиля эко или этно подойдет плетеная мебель из натурального или искусственного ротанга, плетеные перегородки проемов открытой веранды, элементы растительного мира в интерьере.
В южных регионах, где солнца в избытке, веранда может служить местом отдыха в тени и прохладе. Здесь будет особенно уместен средиземноморский кантри или просто морская тематика. Холодные синие, голубые и белые тона не будут слишком притягивать солнечные лучи, создавая атмосферу свежести и морского бриза.
Советы по декору
Завершающим и самым приятным этапом в обустройстве банной пристройки, несомненно, является ее декорирование.
В зависимости от стиля, для украшения стен подойдут картины с видами природы или цветочные панно.
На пол просторной веранды можно поставить кадки с живыми растениями или высадить под неостекленные проемы плетущиеся растения – розы, клематисы, дикий виноград. Вьющиеся многолетники со временем обовьют веранду и станут естественной защитой от яркого солнца. Самым неприхотливым растением в этом плане является дикий виноград. Он не требует особого ухода, а его листья до глубокой осени будут радовать яркими красными оттенками.
Не стоит забывать и про вечернее оформление веранды. Кроме проведения электричества, можно позаботиться и об альтернативных источниках света. Подойдут декоративные фонарики, ночники и светильники на солнечных батареях.
Обзор бани с верандой смотрите в следующем видео.
Проекты бань из бревна с хозблоком. Комплекс летняя кухня баня хозблок проекты
Каждый человек, который любит банные процедуры, мечтает иметь у себя дома помещение, в котором можно было бы вдоволь попариться. Для начала нужно заказать проект бани с хозблоком, а уже потом заниматься непосредственным строительством.
Стоит отметить, что бани, которые строятся из бруса и при этом имеют хозяйственный блок, пользуются большей популярностью. Это вполне объяснимо, ведь любой человек стремится к тому, чтобы любое помещение, в котором он проводит много времени, было одновременно уютным и многофункциональным.
Еще нужно сказать и о том, что баня с хозблоком под одной крышей очень популярны среди хозяев небольших участков или, к примеру, дач, тем более, что проекты подобных строений очень легко заказать.
Если говорить о достоинствах вышеуказанных сооружений, то самым главным считается высокая функциональность.
Ведь подобная конструкция не занимает много места и вместе с тем сочетает в себе функции бани, кладовки, кухни и помещения с любым другим предназначением. Кстати, что касается стоимости подобных сооружений, то она также позволит сэкономить финансы владельцам бань. Ведь намного дешевле построить одно помещение, чем возводить несколько отдельно стоящих зданий. Главное, конечно, продумать данный процесс до мелочей. Чтобы не упустить никаких важных деталей. И тогда полученный результат будет радовать не только хозяина помещения, но и всех его гостей.
Причины популярности сооружений
Как известно, прогресс не стоит на месте, и баня, совмещенная с хозблоком, начала пользоваться спросом буквально недавно, еще 2-3 года назад такие проекты мало кто заказывал.
Все дело в том, что сейчас в мире присутствует мода на функциональность и экономность. Причем абсолютно во всех проявлениях.
Неважно, о чем идет речь, главное, чтобы это все было многофункциональным и позволяло экономить средства и другие ресурсы пользователя. То же самое касается и строительства. Проект бани с хозблоком под одной крышей имеет следующие преимущества:
- Теперь отдыхать и париться в бане намного комфортней, ведь можно сразу же из парилки перейти в кухню или другое помещение. При этом не нужно выходить на улицу.
- Строение является качественным и отличается долговечностью.
- Идеально подходит для небольших участков, где ограничено пространство для строительства.
- Если присутствует такая необходимость, то подобное сооружение можно использовать и в качестве места для сна. Конечно, если изначально в проекте продумано такое помещение.
Как видим, вышеуказанные преимущества являются подтверждением того, что изначально нужно сделать грамотный проект бани, а уже потом приступать к выделению участка и непосредственному строительству.
Кстати, во время подготовки проекта продумывается также и , а также возможность в дальнейшем что-то пристроить рядом или непосредственно над зданием.
Как готовится проект?
Разработка проекта включат в себя несколько этапов. Сразу стоит сказать о том, что подготовка проекта данного сооружения намного сложнее, чем обычного дома или отдельно стоящей бани. Понятно, что причиной этому является то, что специалистам придется хорошо потрудиться над тем, чтобы здание получилось одновременно многофункциональным и комфортным.
Прежде всего проектировщик должен продумать такие нюансы:
- где именно будут размещены входы и выходы в здание;
- как установить коммуникации, которые будут обеспечивать нагревание помещения;
- правильность установки системы водоснабжения и канализации;
- продумать правильную форму крыши и выбрать материал, из которого она будет сделана;
- ну и, конечно, не забыть о безопасности конструкции.
Кстати, последний пункт особенно актуален, если учесть то, что баня является пожароопасным объектом.
Это основные пункты, о которых нужно думать до начала момента строительства. Но, есть еще и другие не менее важные вопросы.
Допустим, нужно выбрать материал, из которого будет возведено здание. В последнее время все большей популярностью начинает пользоваться брус. Бани, хозяйственные блоки и даже дома строят именно из этого материала. Этому есть несколько простых объяснений:
- весь рабочий процесс не занимает много времени;
- стоимость такого строения намного меньше, чем аналогичных зданий, возведенных из другого материала.
Например, удешевить можно за счет того, что не нужно делать отдельный фундамент. А, как известно, он обходится не дешево. И если имеются в виду современные проекты совмещенных вместе бани и гаража, то понятно, что здесь достаточно одного фундамента. То же самое касается и кровли, на ней тоже можно сэкономить.
Все об угловых конструкциях
Как известно, баня может быть не только привычной всем формы, но и построенной под углом.
Часто подобные примеры можно встретить на участках неровной формы или там, где не очень много свободного пространства для строительства. Довольно часто такие конструкции используют, когда нужно построить небольшую баню. Если говорить о её расположении на участке, то обычно она ставится в самом углу. Такие постройки имеют габариты, примерно, 3х4 м. Они состоят из нескольких помещений: из парилки, комнаты отдых и моечной.
Любой специалист, который составляет проект угловой бани с хозблоком, учитывает не только её функциональность, но и её внешний вид. Она должна гармонично вписывать в общий ландшафтный дизайн участка и делать его еще более уютным и многофункциональным. Обычно клиенту предлагают несколько вариантов, чтобы он мог выбрать именно тот проект и дизайн современных бань, который больше всего ему подходит. Здесь важно учитывать все нюансы, ведь, как известно, баня является лучшим местом для релаксации и отдыха. Поэтому она должен быть красивой и качественной. Для того чтобы понять, чего именно желает конкретный клиент, ему необходимо предложить несколько вариантов, и уже среди них он выберет тот, который точно его удовлетворит.
Как рассчитать стоимость?
Если говорить о расчете стоимости подобного строения, то в учет берется множество факторов, начиная от материалов, из которых здание будет возводиться, и заканчивая его размерами. Конечно, не стоит забывать и о внутренней отделке. Она может стоить дороже, чем вся конструкция.
Конечно, многие мастера рекомендуют использовать именно дерево в качестве основного строительного материала. Оно является природным материалом и обладает рядом преимуществ, а именно:
- оно дышит и тем самым не поддается воздействию сырости и образованию грибка;
- внутри помещения всегда будет свежей воздух благодаря его правильной циркуляции;
- также дерево дает приятный аромат, который пород воздействием пара будет еще больше усиливаться;
- если использовать хвойные сорта, то они окажут в дальнейшем целебные свойства на здоровье всех, кто будет париться в бане.
Еще не менее важно во время расчета стоимости здания учитывать сложно конструкции.
Допустим, проекты двухэтажных каркасных бань с хозблоком обойдутся дороже, чем аналогичные помещение в один этаж. Ну и не забываем о том, что в стоимость включается внутренняя отделка. А она, как уже говорилось выше, может обойтись дороже, чем все остальные этапы стройки.
С чего стоит начать?
Выше уже неоднократно писалось о том, что, прежде всего, нужно подготовить проект здания, а уже потом приступать к его непосредственному возведению. Но хотелось бы уточнить, что помимо правильно подготовленного проекта следует обратить должное внимание и на выбор места, где постройка будет установлена. Необходимо правильно промерять участок и выбрать именно то место, которое будет максимально удобным. К примеру, если имеются в виду проекты современных бань с барбекю и бассейном, то следует понимать, что такая конструкции будет занимать немало места на участке. Для бассейна нужны хорошие стоки и постоянная подача воды.
На сегодняшний день очень популярны современные проекты бань с террасой, но нужно понимать, что для террасы желательно выделить место с красивым видом.
Это может быть участок возле сада или цветника. В любом случае, не стоит возводить такую баню возле уличного туалета или непосредственно возле забора и дороги.
Как видим, чтобы сделать проект бани в современном стиле, следует учитывать все, казалось бы, на первый взгляд незначительные мелочи. В итоге они сыграют немалую роль и могут причинять ряд неудобств в дальнейшем, что повлияет на качество отдыха и изрядно подпортит настроение.
Все о фундаменте
Что же касается , то здесь все зависит от того, какой материал для строительства используется. Например, если баня построена из бруса, то можно использовать ленточный фундамент. Он вполне выдержит не очень тяжелое здание. При этом удастся снизить расходы на саму стройку. Кстати, если владелец участка немного разбирается в строительстве, то он может и сам заложить ленточный фундамент. Он довольно просто делается. Но если таких знаний нет или человек просто не желает заниматься такой работой, то можно обратиться за помощью к специалистам.
Лучше всего выбирать ту компанию, которая в дальнейшем будет строить само здание. Если привлекать к процессу строительства разных подрядчиков, можно подпортить качество сооружения. Ведь, как известно, каждый мастер делает работу по-своему. Есть еще и вероятность того, что в дальнейшем, в случае возникновения каких-либо проблем, будет сложно доказать, что виной всему стал некачественный фундамент или, наоборот, плохо построенное здание. Поэтому лучше сразу нанимать одну компанию, которая делает весь объем работы, начиная от подготовки проекта и заканчивая, внутренними работами.
Если же выбран проект хозблока с баней из газобетона, то нужно отдавать предпочтение опорно-столбчатому фундаменту. Но в любом случае, следует прислушиваться к мнению специалиста, который будет непосредственно возводить постройку. Ведь в данном случае он берет на себя полную ответственность за качество выполняемой работы.
Строительство под ключ
Как уже сказано выше, лучше всего выбирать предложение от компаний, которые предлагают строительство под ключ.
Тогда существует больше гарантий того, что работу будут выполнять настоящие мастера, которые предоставляют своему клиенту гарантию качества и надежности.
Тем более, такие исполнители смогут сделать конструкцию любой сложности. Например, сейчас очень популярны проекты современных бань с летней кухней. Такое строение отлично подойдет, как для загородного дома, так и для помещения, что находится в черте города. Летняя кухня — мечта любой хозяйки, которая увлекается приготовлением заготовок на зиму или просто любит вкусно готовить на природе. А если учесть еще и то, что такая кухня совмещена с баней, то это помещение будет пользоваться популярностью у всех членов семьи и гостей.
Обычно строительство под ключ состоит из таких этапов:
- Подготовка проекта.
- Заливка фундамента.
- Возведение наружных стен.
- Установка перегородок между стенами.
- Настил кровли.
- Заливка полов.
- Подбивка потолка.
- Внутренние работы — обшивка стен, обустройство парной комнаты и всех остальных помещений;
- Установка окон и дверей;
- Установка нужной сантехники и мебели;
- Внешние утеплительные работы (если предусмотрены проектом).

Еще на этапе подготовки проекта исполнитель оговаривает с заказчиком, из какого материала будет строиться здание, что использовать для внутренних работ. Конечно, в этот момент происходит обсуждение того, какую сантехнику и мебель клиент желает видеть в своем помещении.
Что выбрать для внутренней отделки?
Если говорить о стенах, то здесь есть несколько вариантов. Самым популярным считается обшивка деревом или . Почти все проекты современных бань предусматривают внутреннюю обшивку стен хвойной древесиной, фото отделки можно посмотреть на специализированных строительных сайтах.
Именно этот материал при контакте с влагой и высокой температурой издает очень приятный лечебный аромат. Среди древесины хвойных пород самым недорогим материалом считается сосна. При этом сосна имеет очень красивую структуру и легко поддается обработке. Хотя здесь следует учитывать и тот факт, что сосну лучше всего использовать в предбаннике, так как в самой парилке она может выделять смолу.
А вот парилку эксперты рекомендуют обивать липой. Она, кстати, тоже не очень дорогая и при этом также обладает прекрасным ароматом и множеством целебных свойств. Более дорогим материалом считается канадский кедр. Многие элитные современные бани проекты предусматривают внутреннюю обивку стен именно этим материалом.
Если речь идет о напольном покрытии, то здесь также лучше всего отдать предпочтение дереву. Не следует использовать линолеум или любое другое ненатуральное покрытие. Оно под воздействием высоких температур и постоянной влаги начнет портиться и выделять токсичные вещества. А вот на кафеле или граните можно легко поскользнуться и упасть. В итоге можно сильно травмироваться.
Также следует не забывать о том, что все пространство должно быть максимально свободным. Не следует загромождать стены различными полочками и шкафами, лучше оставить их пустыми. В целом, для того, что баня выглядела стильно и уютно, достаточно хорошего стола, лавок, в крайнем случае, мягкой тахты.
Чтобы в результате получить более оригинальный дизайн помещения, можно предварительно посмотреть фото в интернете, там можно найти интересные современные проекты бани с хозблоком или без. И уже на их основе выбрать, что-то подходящее для себя. Хотя, в целом, специалисты, которые подготавливают проект бани, всегда дают хорошие советы о том, как обустроит её изнутри.
Что сейчас пользуется спросом?
Если говорить о том, какие конструкции сейчас являются самыми популярными, то все зависит от того, какими финансовыми возможностями обладает хозяин постройки и что именно он хочет получить в результате.
Допустим, если говорить о бюджетных зданиях, то чаще всего выбирают проект бани с хозблоком и туалетом.
Они практичны и удобны, их можно возвести на даче или в загородном доме.
Но, опять-таки, если речь идет о загородной усадьбе, то нужно учитывать, что топить баню придется дровами или другими материалами. Поэтому лучше всего выбирать проект бани с хозблоком и дровяником.
Тогда во время отдыха не придется выбегать на улицу и искать дрова. Достаточно перейти в соседнее помещение и взять нужное количество топлива.
Очень часто хозяева участка, где будут строиться баня, стараются возвести её возле какого-либо водоема . Тогда можно после хорошей парилки сразу же нырнуть в освежающий водоем. Для этих целей можно использовать любой природный водоем или соорудить искусственный. Если же такой возможности нет, то достаточно установить специальный душ, в котором всегда будет прохладная вода.Как видим, вариантов достаточно много, и все они зависят от личных потребностей человека и его финансовых возможностей.
Но в любом случае, чтобы построенная баня была многофункциональной и уютной, следует учитывать не только желание клиента, но и реальные возможности. Допустим, размер участка, наличие коммуникаций или каких-либо других рядом стоящих конструкций. Именно поэтому, прежде всем начать стройку, следует составить правильный и качественный проект. А это, как известно, может сделать только настоящий профессионал.
Исходя из этого, можно сделать вывод о том, что главная задача — найти опытного и грамотного специалиста, который имеет хороший опыт в строительстве бань. Тогда успех задуманного дела гарантирован.
Многие люди любят посещать баню и приходят к мнению, что лучшим вариантом является возведение собственной бани на частном участке. В статье речь пойдет о том, какие существуют проекты бани с хозблоком под одной крышей и нюансы их возведения.
Основы совместного возведения бани с хозяйственным блоком
По стандарту баня с хозблоком возводятся на одном фундаменте, где делается небольшая пристройка с подведением всех необходимых коммуникаций. Также данный блок может быть заранее внедрен в план постройки в качестве еще одной комнаты здания. К такой бане выставляют больший набор условий, которые необходимо соблюдать, чтобы получить эффективный, надежный и безопасный комплекс.
Речь идет о следующих нюансах:
- должны быть обустроены отдельные входы и выходы для пристройки, что значительно увеличит безопасность посетителей;
- следует позаботиться о проведении в хозблок с баней и туалетом отдельных веток водоснабжения, поскольку обычной емкости над банной печью не хватит, чтобы обеспечить регулярную подачу воды во все помещения;
- дополнительное обустройство отопительной системы позволит использовать пристройку, как и баню, в зимний период времени;
- максимально эффективной крыша будет лишь в том случае, когда для обеих построек она будет совместной;
- тщательная проверка пожарной безопасности позволит использовать комплексную постройку без риска для посетителей;
- канализационные отводы необходимо создавать отдельно для бани и хозяйственного блока.
Также стоит заранее узнать, надо ли регистрировать баню , и при необходимости принять необходимые меры.
Преимущества у таких построек, совмещенных по всем правилам, вполне очевидные:
- можно оборудовать пристройку под кухонный блок, что очень ценится, если в бане проводится времени гораздо больше, чем 1,5-2 часа;
- дополнительно устанавливается туалет, который не будет создавать дискомфорта внутри основной постройки;
- расширенное пространство позволяет все приготовления к приему гостей осуществлять в пристройке, а комнату отдыха использовать, как настоящую гостиную.
Также стоит заранее определиться, что именно будет являться главной постройкой: хозблок или баня. Кому-то может показаться, что особой разницы нет, но на самом деле конструкция и ее использование будут сильно отличаться для этих двух вариантов.
Стандартные проекты бань с хозблоком предполагают использование пристройки в качестве дополнительного помещения, где можно будет делать ряд вещей, недоступных ранее из-за нехватки места и недостатка оснащенности бани.
Делать главным хозблок разумно лишь в условиях дачного участка, где большого места под строительство полноценной бани нет. Но такая баня для дачи все равно не будет лишней.
Обычно в таких комплексах баня состоит лишь из предбанника и парилки, а в хозяйственном блоке размещается необходимый инвентарь и прочие приспособления для работы на земельном участке. Также может быть оборудован туалет и душевая.
Самостоятельное возведение или использование готового проекта
Когда совмещается баня с сараем или другим техническим помещением, допускается множество недочетов, которые впоследствии приводят к более крупным нарушениям пожарной безопасности. Даже внешне такие постройки будут выглядеть менее эстетично.
Грамотная планировка позволяет:
- быть уверенным в надежности возводимых зданий;
- рассчитать себестоимость комплекса;
- составить схему поэтапного проведения строительных работ и заранее видеть, что будет получено после успешного их завершения.

Типовые проекты бань с хозблоком различаются по следующим параметрам:
- линейные размеры;
- общая стоимость;
- сложность проведения строительных работ;
- количество помещений и т.д.
Пример комплексной постройки бани с хозблоком
Элементы конструкции:
- Столбчатый фундамент, собираемый из бетонных блоков: высота – 0,4 метра, площадь поперечного сечения – 0,2х0,2 метра. Общее количество блоков – 15 штук. Линейные размеры прямоугольной постройки – 4х8 метров.
- Внешние стены и перегородки закладываются из профилированного бруса с поперечным сечением 14х9 сантиметров. Высота от пола до потолка – 2 метра (детальнее: » «).
- Черновое основание укладывается из технической доски (без шлифовки) – 2,5 сантиметра толщиной. Поверх него укладывается пароизоляционный слой из специальной пленки-мембраны. Затем производится финишная облицовка с использованием шпунтованной доски – 3,6 сантиметра толщиной.

- Парилку отделывают осиновой вагонкой, которая крепится поверх слоя фольгированного утеплителя. Сверху на отделку крепятся осиновые полки в два яруса.
- Кровля здания делается двухскатной и ее покрывают ондулином.
- В оконные проемы вставляются деревянные рамы с двойным стеклом. В душевой и туалете проемы должны иметь размеры 0,4х0,4 метра, а в хозблоке – 0,8х0,8 метра.
- На улицу должны выходить три двери каркасного типа с размерами 1,8 метра в высоту и 0,8 метра в ширину. Дверь в парной отсек должна быть выше (1,9 метра), но ее при этом можно сделать уже (0,6 метра). Читайте также: » «.
- Также устанавливается печь-каменка из кирпича с дополнительным баком для нагрева воды. Дымоход в обязательном порядке должен быть представлен трубой из нержавеющей стали. Для создания сауны (не бани) необходимо вынести бак с водой в соседнее помещение, чтобы максимально снизить влажность воздуха. Именно сухой жар является индивидуальной особенностью сауны. Читайте также: » «.

В случае, если в качестве основного топлива используется древесина, то может быть возведена баня с дровяником, где будут храниться запасы топлива. По сути, дровяник может быть еще одной пристройкой к уже имеющемуся хозблоку, поскольку его размеры минимальны. Такая постройка как баня с дровником предполагает раннюю заготовку дров для регулярного приема банных процедур в течение всего года.
Итог
Хозблок расширяет возможности при использовании бани. При совмещении таких построек можно получить место для приготовления пищи на большую компанию, либо производить все технические работы вне помещений, где отдыхают посетители бани.
Однако стоит следовать рекомендациям по обустройству подачи воды, канализации, пожарной безопасности и т.д. Лучше всего правильно реализовать готовый проект, а не создавать себе дополнительные проблемы, пытаясь самостоятельно создать баню с хозблоком.
Построили мне в 2018 году дом, по моему проекту, профессионалы своего дела.
Сам проект по сравнению с конкурентами выходит несколько дороже, но в нашем поселке они строили еще 1 дом и хозяева остались довольны.
Заказывали постройку бани, справились в кротчайшие сроки, без нареканий к работе бригады.
Полный цикл от производства материала до сборки дома организован отлично. Качество, профессионализм на высшем уровне. Рекомендую.
Очень важно найти своего менеджера, который будет консультировать не только при заключении договора, но и во время строительства. Мы общались с Игорем, в итоге баня готова на участке, пользуемся, все хорошо. Благодарим.
Отличные дома, отличный сервис! Все рассказали, помогли с выбором. Можно все живьем увидеть — съездили на строящийся объект примерно похожий на наш, где увидели как работают, только после этого решили строить. Благодарим за терпение менеджеров и строителей, что ответили на все вопросы!
В 2018 году заказывали баньку. Очень довольны работой сотрудников этой компании.
Начиная со сметы и заканчивая бригадой строителей. Нам по акции повезло, получили в подарок печку-каменку для бани!
Благодарим за дом с сауной. На сайте одни цены указаны, но по факту выходит больше. Но это и понятно, что указана цена за самый минмимум как у всех в интернете, хочешь с комфортом-доплачивай за допы. В целом строителям «спасибо».
Что может быть прекраснее бани? Баня с хозблоком и туалетом! Такие дополнения выводят строение, предназначенное для оздоровительного отдыха, на новый уровень, добавляя множество полезных функций.
Осуществить такой проект бани с хозблоком можно путём добавления небольшой постройки и необходимых коммуникаций к уже готовому строению или же внести дополнительную комнату в планировку изначально, построив всё на едином фундаменте.
Общие положения
Баня совмещенная с хозблоком, имеет намного большее количество требований, которые необходимо выполнить для успешной реализации задуманного .
К ним относятся:
- Наличие комфортных беспрепятственных входов и выходов, как внутри, так и снаружи постройки.

Совет: предусмотрите отдельные входы для банного помещения и хозяйственного блока.
Это позволит использовать их по отдельности, что более удобно.
- Подключение водопровода или водонасосной станции для самостоятельного водоснабжения. Водяного бака парилки не хватит для выполнения всех хозяйственных нужд.
- Теплообменные сети. Обогрев будет необходим для возможности использования помещения в зимний период.
- Общая крыша. Для того чтобы не появлялись водные образования и контролировались стоки, следует делать общую кровельную конструкцию для всего здания.
- Безопасные условия для одновременного использования всех помещений. Это, в первую очередь, касается пожарной безопасности из-за использования печи в парилке.
- Отдельный .
Если же всё выше перечисленное удастся воспроизвести, то будут получены следующие преимущества:
Достоинства
- Возможность готовить еду.
Незаменимое дополнение на даче без жилого дома и возможность разгрузить основную кухню при его наличии. - Встроенный туалет. Что невероятно важно при зимней эксплуатации бани в особенности с детьми.
- Полноценные условия для приёма гостей. Благодаря наличию хозяйственного блока комната отдыха может использоваться как гостиная.
Баня с хозяйственным блоком или хозяйственный блок с баней
Это отличие на первый взгляд кажется незначительным, но это не так:
- Хозблок с баней приемлем для использования на дачном участке без других построек и в том случае, если вы приехали без ночёвки.
- Проекты бань с хозблоком рекомендуется осуществлять в частном секторе, имеющем жилое строение. Это позволит перевести туда часть повседневных дел и вещей, что, в свою очередь, освободит множество места в доме для других нужд.
Самостоятельная стройка или готовый проект
Вольные постройки без планировки всегда имеют множество недостатков.
В данном случае это чревато не только нарушением эстетической красоты и геометрии здания, но ещё и нарушениями правил пожарной безопасности.
Поэтому, не важно, собираетесь ли вы всё делать своими руками или наймёте профессионалов, рекомендуется воспользоваться готовым проектом.
Тогда вас будут:
- уверенность в надёжности строения;
- возможность расчёта себестоимости;
- графическое представление того что вы возводите;
- инструкция хода работ.
Пример
Проекты бани с хозблоком бывают самые разнообразные.
Их отличают между собой:
- размеры;
- цена;
- сложность;
- количество комнат и многое другое.
Для общего понимания рассмотрим один из них.
Площадь всего здания 4 м на 8 м.
Включает в себя:
- Фундамент столбчатый из бетонных блоков высотой 40 см и сечением 20 см на 20 см. Количество – 15 штук.
- Для внешних стен и внутренних перегородок используется профилированный брус с сечением 14 см на 9 см.

- Потолки высотой 2 м.
- Черновое основание из нешлифованной доски толщиной 2,5 см.
- Пароизоляция образуется мембранной плёнкой.
- Финишное основание из шпунтованной доски толщиной 3,6 см.
- Внутренняя отделка парилки выполнена из осины .
- Внутри парильной комнаты монтируются двухъярусные полки также из осины.
- Двухскатная крыша покрывается ондулином.
- Окна выполняются из дерева и двойного стекла в душ и туалет размерами 40 см на 40 см, а в хозяйственную комнату и гостевую – 80 см на 80 см.
- Три каркасных двери высотой 1,8 м и шириной 0,8 м.
- В из древесины размером 1,9 м на 0,6 м.
- Кирпичная печь с баком для воды в парной.
Совет: если вы планируете использовать помещение как сауну, то необходимо бак вынести в соседнюю комнату, потому что сауна предполагает использование сухой парилки.
- Дымоходная труба из нержавейки.
Вывод
Наличие хозблока в бане добавляет множество полезных возможностей, к которым относятся приготовление еды и приём гостей, что позволяет перенести туда часть функций жилого дома.
Следует учитывать, что хозяйственный блок также требует принятия дополнительных мер по обустройству: самостоятельное водоснабжение, канализация, пожарная безопасность и так далее.
Огромный ассортимент проектов таких построек поможет вам выбрать наилучший вариант для вашего участка.
Видео в этой статье ознакомит вас с дополнительной информацией по данному материалу.
Удачных вам строительных работ!
В число самых востребованных зданий на загородных участках входит баня, которая у нас в стране издавна используется не только для гигиенических процедур, но еще и в качестве места отдыха. Представленное на строительном рынке изобилие материалов позволяет возвести хозблок с баней и туалетом своими руками. При этом такое сооружение получится значительно дешевле, чем когда баню строят нанятые со стороны специалисты.
Отличительной чертой бань с террасой является возможность расширения их функциональности за счет дополнительных пристроек.
Проект хозблока из бруса с баней и дровяником под одной крышей
Под одной крышей может разместиться гараж, а также баня с хозблоком, который будет служить в качестве подсобного помещения, склада или кладовой.
Строительство бани следует начинать с составления схемы помещений и сметы. Баня обладает одной особенностью, отличающей ее от других видов зданий: помещения, где происходят гигиенические процедуры, то есть моечная и парная, а отчасти и предбанник, требуют прогрева.
Для экономии тепловой энергии также рекомендуется выбирать более , не делать высоких потолков, а рассчитывать высоту, учитывая рост взрослого человека с небольшим запасом. Разобравшись с размерами основных и подсобных помещений, следует подготовить схему коммуникаций.
Вариант проекта хозблока с баней на свайном фундаменте
В бане с террасой обязательно должны быть водослив (канализация) и вентиляция. Иногда в банях обходятся без электричества и водопровода, но все же, если есть возможность их подключить, стоит этим воспользоваться.
Материалы для строительства бани
За редким исключением в нашей стране с , поэтому при ее возведении будут востребованы навыки плотника и столяра. Для строительства фундамента придется освоить профессию каменщика, но, как показывает практика, ничего сложного в этом нет и построить баню своими руками за сезон, вполне по силам двум людям, занявшимся этим делом впервые.
Баню из дерева с гаражом можно построить нескольких типов. Самым простым является проект бани типа бытовки, легкого, прочного и дешевого помещения на основе , обшитого снаружи и изнутри досками или вагонкой, утепленного и хорошо изолированного от влаги, с .
Планировка бани с комнатой отдыха и хозблоком
Такая баня может прослужить несколько лет и все равно через некоторое время придется строить новую. Поэтому предпочтительней проект многофункциональной, капитальной бани из профилированного или непрофилированного бруса.
Для нормального функционирования баня с гаражом должна быть так же хорошо утеплена, как и жилое помещение. Современные материалы, позволяют удешевить строительство за счет меньшего использования сравнительно дорогих деревянных изделий, брусков и досок.
Выбор места для бани
Конечно, выбор места под баню всегда индивидуален, но все же существуют общие рекомендации. Желательно строить баню недалеко от дома, вблизи от линий водопровода и канализации, можно рядом с гаражом.
Вопреки расхожему мнению, строить баню рядом с естественным водоемом не рекомендуется, так как в период паводков конструкцию может подтопить.
Читайте также
Подогрев бассейна на даче
Возведение хозблока с баней из бруса с двускатной крышей
Для экономии средств можно соорудить баню в качестве угловой пристройки к дому.
Место для строительства бани должно располагаться в тихом месте, где нет сквозняков, можно рядом с деревьями. Как и в жилом доме по возможности широкая сторона бани должна быть, обращена в сторону юга. Рядом с баней не должен находиться водозабор (колодец или скважина), также нежелательно строить это здание слишком близко к соседнему участку.
Построить теплую, уютную баню, которая прослужит долгие годы, можно руководствуясь несложными правилами и ознакомившись с нюансами строительства. Как и в случае с велосипедом, изобрести что-то принципиально новое в деле возведения бани сложно, да и не нужно. Существует множество отработанных на практике схем бань, воспользовавшись одной из которых можно сэкономить много времени, средств и сил.
Вариант планировки бани с хозблоком под одной кровлей
Классическим размером бани довольно часто считается деревянный сруб в 10 квадратных метров, в нем свободно поместится одновременно 2-3 человека. Вход в баню желательно располагать с южной стороны, исходя из этого нужно и составлять проект. Окна в помещениях в целях энергосбережения делают небольшими, то же самое касается и дверей. Изнутри баня должна обшиваться досками или вагонкой из лиственных пород древесины.
Для наружной обшивки, если она требуется, качество древесины не так важно, главное, чтобы она была обработана водоотталкивающими и противогрибковыми составами.
Ракушняка или шлакоблока, правильно спланированная, грамотно изолированная от пара и обшитая изнутри деревом по своим качествам ничем не отличается от бань, построенных целиком из дерева, а по долговечности многократно их превосходит.
Заливка фундамента
Для бани с гаражом обычно . Исключение составляют небольшие, легкие и мобильные бани, которые можно ставить на .
Ленточный фундамент строить сложнее и дороже, но результат того стоит. Такой фундамент может выдержать и каменное здание, и баню с двумя этажами.
Траншея, в которую будет производиться заливка фундамента, роется по всему контуру здания, а также под несущими внутренними стенами, если они предполагаются. Основой ленточного фундамента служит тщательно утрамбованная песчаная подушка. Иногда для придания ему большей прочности. Если здание возводится из каменных материалов, придется это делать обязательно. Перед заливкой в траншеи закладываются трубы для , если это предусматривает проект, и подводятся другие коммуникации.
Читайте также
Строительство бани из газобетона
Возведение стен и кровли
По периметру фундамента, на гидроизоляционный слой укладывают оклад из деревянных брусков. Технология возведения деревянных стен варьируется в зависимости от типа брусков, их размеров и типа соединений.
Главное при этом не слишком плотно подгонять их друг к другу на стыках, появляющиеся промежутки следует заполнять утеплителем.
По мере возведения стен сразу вставляются дверные и оконные блоки. После монтажа сруба начинают заниматься крышей.
Установка двухскатной крыши на баню из бруса
Как и стены, кровля строится по стандартной схеме: сначала по контуру здания монтируется основание, затем на него устанавливают стропила. Если дымоход или будет выходить не через стену, а через крышу, нужно его установить до начала монтажа обрешетки. Покрытие кровли может быть любым, здесь выбор если и имеет ограничения, то только финансовые.
All Under One Roof, Inc. — Спринг-Хилл, Канзас, США 66083
ALL UNDER ONE ROOF, Inc. ЭТО: Компания по реконструкции и строительству с полным спектром услуг, специализирующаяся на нестандартных пространствах внутри и снаружи жилых домов. All Under One Roof стремится удовлетворить и превзойти ожидания наших клиентов. Мы предлагаем высочайшее качество изготовления со 100-процентной удовлетворенностью клиентов. Мы производим высококачественный ремонт интерьера и экстерьера, который придает вашему дому непреходящую красоту и ценность.
Наши проекты различаются по размеру, стилю и масштабу — от реконструкции кухни или ванной до полного ремонта дома, от причудливых небольших домов до поместий стоимостью в несколько миллионов долларов. Для каждого из этих проектов мы предлагаем персонализированные консультации, которые выходят за рамки обычных временных затрат, наряду с тщательным вниманием к деталям.
Предоставляемые услуги
Кровля из битумной черепицы, Проектирование и строительство сарая, Реконструкция подвала, Реконструкция ванной комнаты, Строительство дымохода, Строительство бетона, Установка столешницы, Дом на заказ, Бары для дома на заказ, Строительство террасы, Установка гипсокартона, Текстурирование гипсокартона, Установка наружной двери, Установка камина, Строительство фундамента, Строительство гаража, Генеральный подряд, Пристройка к дому, Расширение дома, Дизайн и строительство домашнего спортзала, Реконструкция дома, Ремонт дома, Реконструкция кухни, Кирпичная кладка, Строительство нового дома, Строительство уличной кухни, Проектирование и строительство крыльца, Установка крыши , Замена кровли, Установка душа, Установка сайдинга, Установка светового люка, Установка раздвижных дверей, Изоляция пенопластом, Каменная кладка, Проектирование конструкций, Установка штукатурки, Установка плитки, Отделочные работы, Установка потолка под палубой, Обшивка стен, Установка окон, Установка деревянного пола, Деревянный сайдинг, Дома на заказ, Шкафы на заказ, Установка дверей, установка и ремонт желобов, реконструкция
Обслуживаемые районы
Bucyrus, Edgerton, Gardner, Hillsdale, Lenexa, Louisburg, New Century, Olathe, Overland Park, Shawnee Mission, Spring Hill, Stilwell, De Soto, Wellsville, Kansas & Метро Миссури, если необходимо
Награды
ЧЛЕН NARI; ЧЛЕН СПИСКА ANGIES; ЧЛЕН BBB; СЕРЕБРЯНЫЙ ПОДРЯДЧИК TIMBERTECH; ЛИЦЕНЗИЯ ПОДРЯДЧИКА
Галерея и планы амбарных домов
амбары Галерея и планы Сарай с двускатными опорами представляет собой небольшую вариацию амбара с фронтонами АДРЕС PO Box 1123 Carson, WA 98610 КОНТАКТЫ Телефон: (800) 728-4474 Факс: (509) 427-8145 Цены на комплекты амбаров варьируются в зависимости от размера и выбранных функций.
Дизайн этой 3 спальни 2. И наши высококлассные конюшни самые красивые. Модульные дома. Берд Сарай. 3859 с подогревом S. Получите расчет стоимости за 1 день или свяжитесь с нами по телефону 1-877-517-9392. План дома 72226 — План дома в европейском, французском загородном стиле, 3302 кв. Фута, 5 спален, 5 ванных комнат, гараж на 5 автомобилей, стоимость металлоконструкций дома. Их фасады часто имеют элементы дизайна, такие как фронтоны, закругленные крыльца, использование теплых пород дерева, столбчатые и балочные конструкции или деревянные рамы, каменная кладка и интересные варианты окон и дверей… Планы домов в стиле амбара.Когда они исследовали планы и цены, открытая планировка в стойле для крупного рогатого скота из ткани сделала более экономичным размещение всего их скота, оборудования и корма под одной крышей. Прогуляйтесь по домам, коттеджам и амбарам, которые мы спроектировали и построили для наших клиентов. 5 бань 2 этажа 3 машины. Дома Barndominium обладают поразительными характеристиками, которые отличают их от других домов с металлическим каркасом.
Проверьте стену окон в гостиной. ) Планы: смело обращайтесь к исполнителю. Столбы/столбы используются для поддержки алюминиево-стальной конструкции, которая используется для создания подъездных путей сарая на столбах.Планы дачных домов. Это винтажно, но современно одним взмахом. Крыша поддерживается столбами, которые составляют внешний барьер сарая. Увеличить изображение | Посмотреть исходный размер. NewCenturyBankNA. Цены на 2-х этажные амбарные домики. Планы домов 3000-3500 кв.м. Тогда позвоните нам. Вот ссылки на более чем 179 планов амбаров, а также несколько классических книг о традиционных планах амбаров почти 100-летней давности. 40×60 полюсный сарай с жилыми помещениями — 40×60 полюсный сарай с жилыми помещениями, 95 40×60 полюсный амбар полюсный сарай планы строительства дома 92 40×60 полюсный сарай комплекты 40×60 полюсный сарай комплект 40 X 60 металлические полюсные амбарные дома фотографии Joy Studio Design Gallery Эти амбарные дома амишей Начало По цене 11 585 долларов.Мы предоставляем все типы «посткаркасных зданий», также известных как столбовые здания или столбовые сараи.
Планы дома 4500-5000 кв.м. Предыдущий проект. Хорошо, вы можете использовать их для вдохновения. Затем используйте визуализатор цвета Pole Barn Color Visualizer, чтобы еще лучше представить себе, как должно выглядеть ваше здание. В этой коллекции вы найдете уютные коттеджи, бревенчатые хижины, элегантные каркасные конструкции и многое другое в различных размерах — от менее 1000 квадратных футов, как план 23-2603, до более 5000 квадратных метров. сарай размером 30 на 40 футов.Загляните внутрь этих амбаров, которые… На рынке продается несколько комплектов для амбаров. Включение деревянных реек Blackbutt, покрытых прозрачным маслом, позволило дизайнерам и монтажникам создавать четкие линейные текстуры с помощью нашей системы Click-on Batten. Планы строительства сарая на столбах с планами каркаса для строительства нового сарая на столбах 26 x 32 фута с двускатной крышей 4/12, двумя гаражными воротами, двумя небольшими раздвижными окнами 36 x 24 дюйма и входной дверью 36 дюймов. Чертежи могут быть применены к дома, гаражи, мастерские, складские помещения, конюшни Barnplans [Фотогалерея] Cabot Barn Home.
С помощью Чипа и Джоанны Гейнс семья из пяти человек реализует единственный в своем роде проект в холмистой местности недалеко от Уэйко, штат Техас. ком. 2815 Андерсон-авеню. Сарай для столбов или сарай для скота — это сарай, который, по сути, представляет собой крышу, натянутую на ряд столбов. Найдите Craftsman, небольшой, фермерский дом, простой, одноэтажный и другие планы по категориям. Фотографии сельскохозяйственных стальных зданий. 00. Есть два типа амбарных домов: с двускатной или двускатной крышей. Есть также тур по домашнему бару, видео о баре и предварительный просмотр галереи строителя.… Чтобы купить план Stock Floor, используйте нашу контактную страницу и сообщите нам, какой план вы хотели бы купить. Чтобы собрать достаточно материалов для новых Barndominiums, или «Barndos», как их иногда называют, тип дома, который представляет собой стильное сочетание структуры стиля амбара и кондоминиума, которые вместе создают дом и большую функциональную зону. Залить основу. Жилой сарай.
Например, 20x24x10, одно из самых маленьких зданий, которые мы продаем, начинается от 8800 долларов, включая одну верхнюю дверь 9×8 и входную дверь 3068.В Homestead Barndominiums мы стремимся к удовлетворению потребностей клиентов от начала до конца процесса покупки дома. Вернуться Галерея Планов этажей современного дома. Варианты варьируются от утилитарных металлических зданий с небольшой жилой площадью до домов площадью 5000 кв. футов с классическим деревянным каркасом. Манхэттен, Канзас 66502-2849. футов. Это включает в себя стоимость комплекта от 20 000 до 90 000 долларов, от 25 000 до 50 000 долларов за сборку и от 30 000 до 85 000 долларов за дополнительные услуги. А&М Джон Дир. Магазин+Дом=МАГАЗИН! Поездка на работу из дома — это всего лишь короткая прогулка внутри, если вы совмещаете мастерскую с вашим новым домом.Современные проекты домов и планы этажей вместе с Калифорнией. Главная Услуги Портфолио Магазин О компании Часто задаваемые вопросы Контакты. В то время как некоторые домовладельцы и застройщики предпочитают не отходить слишком далеко от планировки первоначального амбара, другие полностью превратили эти деревенские постройки в роскошные убежища для сверхбогатых.
телефон: (859) 972 Просмотрите сотни планов домов от Natural Element Homes! Просмотрите планы бревенчатых домов, домов с деревянным каркасом или гибридных домов всех размеров и стилей. Этот роскошный дом в стиле амбара, расположенный на 69 акрах пастбищной местности, является результатом сотрудничества строителя Эдвина Кэди и дизайнера интерьеров Хуана Монтойи.На самом деле, многие строители стоек переняли эту новую тенденцию. Мы специализируемся на уникальных планах этажей и фасадах. Это действительно уникальные планы, которые просто потрясающие! Дегустационный зал в стиле амбара в винной стране Вашингтона. Если вы хотели построить барндоминиум своей мечты, это ваш путеводитель. Этот оригинальный амбар для хмеля был построен в долине реки Могавк в верхней части штата Нью-Йорк примерно в 1860 году. Барндоминиум — это жилое пространство, вдохновленное открытой деревенской атмосферой амбара. Идея исходит из старого и практичного решения для жизни на фермах и ранчо, где владельцы располагали бы жилыми помещениями над стойлами для животных, поэтому наемные рабочие… 19 амбаров, превращенных в современные дома-фермы.
См. также: Ссылки на стоимость Barndominium в Техасе 114. Мы преданы и не перестаем восхищаться мастерами по дереву. Современные планы этажей амбара, понедельник, январь, опубликованный аннетт хелла анита, хороший современный дизайн амбара … Удивительная галерея и планы домов амбара. Weaver Barns — одна из самых надежных, проверенных временем и одобренных компаний по производству амбаров в Америке. Металлические строительные дома дешевле, чем строительство обычного дома по индивидуальному заказу, с такой же или большей широтой с планами и проектами дома из амбара.Все они выглядят очень привлекательно. Легко перемещайтесь по 3D-модели с помощью инструментов обхода и виртуальной реальности. Говорят, что это более экономично, чем обычный дом. Разделенные спальни 6936. С тремя спальнями, двумя ванными комнатами и площадью 2707 кв. Ты не живешь, пока не станешь «У каждого амбара есть история». Планы домов 1000-1500 кв.м. Галерея Полюс Барн. Просмотрите фотографии сарая в разных цветах и стилях, и когда вы найдете дизайн сарая, вам будет интересно, как выглядят комбинированные планы этажей домашнего сарая.
ООО «Райхардт Констракшн». Планы домов 2000-2500 кв.м. Наши сараи для амишей построены до совершенства и служат всю жизнь. Посетите библиотеку проекта Lester Buildings Project Library, чтобы получить фотографии, идеи, проекты, планы этажей и макеты амбаров. С его южным шармом и деревенским внешним видом неудивительно, что тенденция barndominium берет мир штурмом. Гостевая квартира 4113. Многоквартирные дома. Яркое взаимодействие рисунка, текстуры и цвета, «Cabot» вызывает очарование прошлых лет в сегодняшнем плане дома в стиле амбара.Одной из первых частей этого процесса является выбор плана этажа. Планы этажей Barndominium представляют собой похожие конструкции, которые имеют вид сарая из столбов и … Внешний вид планов домов амбара мгновенно узнаваем благодаря их культовой форме и специальным дизайнерским материалам, использованным при строительстве этих домов. Просмотрите галерею DIY клиентов barndominium. Гараж поднимается. За наш 45-летний опыт работы с амбарами, старинными бревенчатыми домами и переоборудованными амбарными домами мы разработали множество стратегий строительства, которые помогают сэкономить значительные суммы денег на строительстве и последующих расходах на техническое обслуживание, но при этом не уменьшают общую… Однако, в отличие от старых амбаров старой эпохи, современные деревянные комплекты сделаны из высококачественных пиломатериалов.
Вы увидите, что конструкция из стоек и балок, а также красивый интерьер с деревянным каркасом совместимы как с классическими, так и с современными архитектурными стилями. Вы знаете, что при строительстве с амбарами и зданиями вы получите качественный индивидуальный амбарный дом, потому что мы можем доказать это своим 40-летним опытом, и все наши замечательные клиенты скажут вам это, поэтому позвоните нам сегодня, чтобы получить бесплатное предложение 832-584-6088 . Позвоните нам сегодня по телефону (937) 547‑9100. Наши клиенты могут выбрать макет, размер, варианты, цвета и т. д. Размеры.40×20 = 800 кв. футов. Одной из лучших особенностей является крыльцо с запахом, которое, кажется, простирается на многие мили. Вот посмотрите на пять потрясающих примеров квартирных комплектов Denali в амбарах по всему США. Мы добавили информацию из каждого полученного изображения, включая установленный размер и разрешение. 00 за квадратный фут общей стоимости металлического здания, в котором менее 50% здания занимают жилые помещения.
Построить стойловый сарай своей мечты легко, если вы решите работать с самодельными стойловыми сараями. Адаптивный дизайн. Мы проведем вас через весь процесс.О нас — Услуги — Зона обслуживания. Номер плана 56700. Дом на столбе / галерея barndominium; амбарная галерея; галерея столбового строительства; бонусные проекты; контакт; галерея: pole home/ barndominium свяжитесь с нами. Сокращенные потребности в техническом обслуживании, настраиваемые планы этажей и экономичные квадратные метры… Подумайте о простой детской игрушке… Предварительно построенные секции сарая с рядами навесов, сконфигурированные в соответствии с ВАШИМИ требованиями, используются как строительные блоки для создания сарая, который вы построили. всегда мечтал. Barndominium в стиле Seirra с патио.Металлические здания с жилыми помещениями. Сарай 12×16. (Изображение предоставлено Полом Райан-Гоффом) Перенесите старый сарай в 21 век, включив в него дизайн умного дома. В сарай с шестом входит многое. мы получаем наши фотографии с других веб-сайтов, поисковых систем и других источников, чтобы использовать их в качестве вдохновения для вас.
Бегство в амбаре Висконсина. Социальные сети: Свяжитесь с нами Размер вашего нового дома в амбаре определяет его цену. Посмотрите нашу обширную галерею проектов, чтобы узнать, что DC Builders может сделать для вас! [Планы дома Menards] — 9 изображений — сараи для коз на продажу комплекты сарая Menards полюсные чертежи от, комплекты перил лестницы внутренние перила перила дома diy, National Barn Company.Главная Услуги Портфолио Магазин О компании Часто задаваемые вопросы Контакты Корзина 0. Каркасные конструкции на столбах были разработаны в Соединенных Штатах в 1930-х годах как быстрый и надежный способ возведения зданий. М-981. Предыдущий. От великолепных полированных бетонных полов до натурального прикосновения дерева на потолках, мы можем настроить отделку… Драматические пространства распространены в домах с деревянным каркасом. Планы жилых этажей небольшого амбара. Мы идентифицировали его из надежного источника. Дома из металлоконструкций стоят 150 000 долларов, от 73 400 до 228 000 долларов.
LaSalle County, IL 81 x 129 футов или больше Подробнее. Существует множество планов этажей и квадратных футов, которые вы можете приобрести для идеальной постройки дома. Многие люди ищут дома в стиле сарая и альтернативные хижины. дорога, вниз по длинной гравийной дорожке, которая делит пополам два сенокоса. Коттедж – это, как правило, небольшой дом. Банк Новый век. О нас. — «Рэнди» с прачечной; 4 спальни — 2 ванные — 2250 кв. м. Мы назначим время, когда вы сможете встретиться с нами, чтобы обсудить планы сарая на столбах.Дизайн для нескольких поколений 180. в ширину на 72 фута. Цены Отличные цены на продукцию самого высокого качества. Посмотреть цены Заказные комплекты Заказные комплекты для сарая с столбами Привет, ребята, вы ищете планы домов shouse. com — это галерея вдохновения и идей о доме, жизни и дизайне интерьера в Интернете. На фото: амбар в Мичигане 19-го века имел больше очарования, чем удобств. [Планы дома Menards] — 9 изображений — сараи для коз на продажу комплекты амбаров menards чертежи столбов, комплекты лестничных перил, внутренние перила, перила домов, сделай сам, PRE-CUT HOME (CPH) ЛИЦЕНЗИРОВАННЫЙ ДИЛЕР ДЛЯ PACIFIC MODERN HOMES INC.
Этот великолепный амбарный дом демонстрирует открытую планировку и роскошную главную спальню. Присылайте свои предложения нам сюда. хгстайлер. Часть, предназначенная для людей, включает в себя кухню, ванную комнату и огромную гостиную… 10 удивительных идей амбара на столбе [Галерея] Кит Дитцен. общая жилая площадь, 3 спальни, 2. Спальни обычно находятся под двускатной крышей, а кухня и гостиная находятся на основном уровне. Дом поднимается. Гаражи. Обычно 99 долларов. План этажа в стиле фермерского дома с 5 ванными комнатами напоминает молочный амбар и использует традиционные элементы в современной интерпретации.Внешний вид амбара безошибочен с этим просторным планом дома. Мы направляем их, чтобы обеспечить наиболее эффективную возможную сборку, которая наилучшим образом соответствует их потребностям. При правильном проектировании банковские амбары могут адаптироваться к потребностям амбарного дома, амбара для мероприятий или конюшни. Его представили, запустив в лучшем поле. Если вам просто нравится внешний вид и вам нужно место для хранения, тогда это … Изображение 16 из 19 из галереи Жилой дом с амбаром / Michael Meier Marius Hug Architekten.
Дома маленькие. Pole Barns Direct 505 Nassau St.На основе Barndo Plans представлены чертежи, идеально подходящие для вашей охотничьей хижины, стартового дома, конного ранчо или дома мечты по недорогой цене. Дополнение идет вверх. Наши сараи и амбары в стиле амишей изготавливаются вручную с использованием только лучших материалов, доступных сегодня на рынке. Компания Heritage Restorations восстанавливает и восстанавливает исторические здания с деревянным каркасом 18-го и 19-го веков, включая старые амбары, дома, бревенчатые хижины, церкви и мельницы. Стальные здания более конструктивно прочны, поэтому вы можете надевать фотографии интерьера домов с амбаром на шесте (фотографии интерьера домов с амбаром на шесте).«Монтана» — план небольшого коттеджного дома Марка Стюарта. Владельцы нашли в Yankee Barn все, что искали — традиционные ценности столбов и балок, характер, легкость настройки, открытые плавные пространства и множество окон. Сарай 10 × 12 с архитектурной черепицей. В галерее barndominium ниже представлены некоторые из наших проектов.
Если вы не видите стиль сарая, который вам нравится, сообщите нам об этом, и мы построим его специально для вас. Контактное лицо: Алан Лирц, президент. Они должны построить сарай размером 12×16, который в этом случае можно использовать как «или/или».10 × 12 Run In Shed с гонтовым кедровым пятном. Найдите планы нового дома вашей семьи одним быстрым поиском! Найдите план этажа, который вам нравится, купите онлайн, и PDF-файл будет отправлен вам по электронной почте в течение следующих 10 минут! Нажмите или позвоните нам по телефону 601-264-5028, чтобы поговорить с одним из наших экспертов по дизайну дома. Полюс Строительный Магазин Планы Построить Сарай через. Этот стиль продолжает набирать популярность, наряду со своим аналогом, барндоминиумом. Antique Woods специализируется на реставрации амбаров, переоборудовании амбаров, небольших амбарах, дизайне амбаров.Одним из самых популярных нововведений является «амбарный дом» из-за его открытых, просторных планов этажей и массивных столбов и балок.
Независимо от того, ограничены ли вы в пространстве или вам требуется большой профессиональный загон для лошадей, у MD Barnmaster есть … 10 × 10 Run-In Shelter с красной краской и. С его длинной наклонной вершиной и величественным собором, этот дизайн идеально вписался бы в тень этой красивой горы 26 из 30. В этом особенно нетрадиционном Верхнем Фиксере преобразование сарая превратилось в квартиру на чердаке площадью 1000 квадратных футов — вместе с стойлами для лошадей и хранилищем для сена — в удивительный дом площадью 2700 квадратных футов с современным стилем и поистине впечатляющим … Выберите функции, которые вы ищете, в плане дома.2 Master Suite 307. Кровати / ванные комнаты. Оттуда вы настраиваете это … Невероятные дома на шесте [Галерея] Алли Гордон 12 марта 2020 г. Когда дома на шесте также легче возводить, чем современное строительство, что делает этот процесс менее трудоемким и дорогим. Обычно он имеет прямоугольную форму и не имеет внешних стен. Alberta — наш единственный дом-амбар в стиле гамбрел с классической двускатной крышей, покрывающей семейный дом с тремя спальнями и двумя ванными комнатами.
Каждый из них имеет уникальный внешний вид Независимо от того, выбираете ли вы проекты домов из столбов и балок, традиционные или обычные конструкции домов Linwood, вы можете быть уверены, что вам будет предоставлен самый быстрый, надежный и экономичный способ проектирования и строительства вашего нового дома. кедровый дом.Стиль представляет собой модель Hi-loft Porch Barn. мы также надеемся, что это изображение видеогалереи 40× Elevate Homes. Планы Великого Металлического Сарая. Недавние Посты. 1 Пиломатериал из южной желтой сосны для колонн (не столбов), которые гидравлически сжимаются в процессе ламинирования. Двускатная крыша имеет шаг 5:12, а высота потолков немного ниже. Среднее строительство амбара на шестах стоит от 7000 до 75 000 долларов (более крупные или очень сложные амбары на шестах могут стоить до 100 000 долларов). Мы строим дома умнее.В собственности могут быть зоны, соединенные стеклом, или мезонины, которые были созданы, чтобы максимально использовать высокие сводчатые потолки и большие жилые помещения.
Спрятанный в Брюле, штат Висконсин, вы найдете Lake Superior Barn, огромную недвижимость для сдачи в аренду на время отпуска, которая идеально подходит для воссоединения семьи. 95 — Сэкономьте 75% и загрузите все планы сегодня всего за 24 доллара. Дом для праздников: план этажа с деревянным каркасом в Вермонтере. Откройте для себя несколько наших любимых планов пола с деревянным каркасом в нашем доме для серии праздничных постов в блоге! В течение следующих нескольких недель, предшествующих Рождеству, мы… Читать далее Дом для праздников: план этажа деревянного каркаса Вермонтера Планы домов в стиле амбара в гармонии с нашим наследием! Представленные здесь планы домов в стиле амбара охватывают настоящее, но черпают вдохновение из прошлого.Амбарные дома, если они используют сложную планировку этажа, могут перейти от работы над планами барндоминиума к завершению за шесть месяцев. Эти планы также бесплатны. Награжден за качественное строительство и признан во всем мире. Один из домов, за который умирают многие люди, — это барндоминиумы.
Для большинства из нас строительство дома с нуля — это сбывшаяся мечта, но это также может быть сложной задачей. 5 — 5. Посетите библиотеку проекта Lester Buildings Project Library, где вы найдете фотографии, идеи, проекты, планы этажей и макеты амбаров. Для превосходного комфорта и энергоэффективности совместите дом с магазином или складом, построенным с использованием структурно-изолированных планов домов в горах (иногда называемых «планами деревенских домов» или «деревенскими планами домов»), которые идеально подходят для отдыха или круглогодичного проживания.3 3. Планы домов Министерства внутренних дел. Округ Ливингстон, Иллинойс 1-877-712-2767. Creek House I Design действительно особенный, но это большой дом, который ищут не все. Пожалуйста, свяжитесь с нашим специалистом по продажам, чтобы назначить встречу. Так что сделайте это … Внешний вид планов дома в амбаре в этой коллекции вдохновлен типичной структурой амбара. Barndominium, или амбарный дом, доступен и уникален. Кроме того, дополнительный цокольный этаж добавляет еще 621 квадратный фут готовой жилой площади с 2 спальнями и 1 ванной.
При входе вас сразу же встречает широко открытая планировка этажа, которая включает в себя большую комнату, большую кухню с кладовой (и выходом на крыльцо), уголок для завтрака и щедрую галерею клиентов Barndominium DIY. Художественный сарай / Архитектура Rowland + Broughton. Найдено … Модульные, Произведенные, Мобильные Дома Для Продажи | Клейтон Хоумс. Мы добавим их сюда и установим для вашей учетной записи два наших пост-каркасных здания, которые можно полностью настроить. Дизайн дома-амбара с… Планы варьируются от привлекательного двухэтажного конюшни Gambrel Horse Barn до двухэтажного гаража / магазина Gambrel и красивого двухэтажного дома-амбара Gambrel с общей площадью до 4320 квадратных футов или более. и все это с нашей уникальной конструкцией вальмовой фермы с четким пролетом.Дом Кокал находится вдали от сельского дома в Гринфилде, штат Северная Каролина, стоимость которого начинается от 87 995 долларов. Все чаще архитекторов просят превратить амбары в дома, а некоторые домовладельцы даже покупают исторические каркасы амбаров, а старый амбар из Нью-Йорка находит новый дом в Техасе.
Weaver Barns строит сараи и амбары для амишей уже более 20 лет. Cabot предлагает 2004 квадратных фута жилой площади, 1 спальню и 1. Свяжитесь с нами Похожие изображения с фотографиями сарая с жилыми помещениями Joy Studio Design Gallery Лучший дизайн Планы и цены дома амбара с 12 полюсами \u2014 Cape Atlantic Decor.План дома Барндоминиум. Первоначально это сэкономило деньги, поскольку металлические здания, как правило, дешевле в строительстве. В Clayton мы строим дома по-другому. Box 111 — Warner, NH 03278 Планы Маленьких Вилл Маленькие Современные Планы Дома Маленькие Современные. В начале 30-х традиционные дома были вдохновлены амбарами, и аналогичные методы использовались для строительства домов. 2-х этажный план этажа Барндоминиума. Барндоминиум с соответствующим навесом. Взгляните на то, что некоторые из наших клиентов создали с помощью своих комплектов barndominium от Absolute Steel.Главная зона отдыха/детская 3018. Каждая из наших моделей может быть настроена с учетом функций и обновлений, подходящих именно вам.
Центр изобразительных искусств «Рисунок». Не обязательно или значительно, если это делается с использованием правильных экономически эффективных стратегий. Металлические Здания. Тележка 0. В сарае с шестью спальнями и тремя ванными комнатами комфортно могут разместиться 20 человек, в нем есть каменный камин, игровая комната и терраса площадью 1600 квадратных футов. Затем мы отправим вам счет через Square, который вы сможете оплатить кредитной картой. Большинство проектов, которые мы оценили, стоили около 110 долларов.Эти сооружения можно использовать для различных целей: от гаражей до конюшен, арен для верховой езды, сараев для сена и домов. Но каркасный гараж Timberline — это не обычный гараж. Оставьте свободное пространство над прилавками. Фотогалерея. С тех пор Barndominiums эволюционировали, чтобы покрыть любой дом, в котором есть сарай, такой как Barndominium. Планы этажей. Различные стили домов доступны для удовлетворения ваших потребностей. Это не ваши обычные планы barndominium.
Наверху Полный вид Отображает план двускатной крыши размером 28 x 36 футов. 129 видов Над планом Вид амбара размером 28 x 36 футов отображает 4 The Creek House.Галерея проектов. Современный. Самым популярным является Denali, площадью 2582 кв. Фута. Амбарные дома и гаражи. PDF-файл для плана этажа, который включает 4 страницы, распечатываемые в формате 24 x 36 дюймов. Изображение предоставлено MA Modular. Предварительно спроектированный деревянный дом-амбар, сараи для лошадей, комплекты Gambrel, столб Sand Creek Post, ИСТОЧНИК луча. Большинство наших сараев построены из сайдинга из белой сосны, но также могут быть построены из кедра или металлического сайдинга. Посетите наш центр дизайна Chappell Hill или центр дизайна Katy сегодня, чтобы узнать больше о наших Barndominiums и всех других нестандартных планировках этажей, которые мы предлагаем в Mill Creek Custom Homes.Авто Магазины. Украсьте свой сарай в стиле, который будет плавно перетекать из одной комнаты в другую. Ниже приведены некоторые из проектов, которые мы помогли разработать, предоставить старинные материалы и построить на протяжении многих лет.
Большинство барндоминиумов очень легко построить, и процесс обычно занимает меньше времени, в равной степени модный и функциональный, барндоминиумы могут сочетать в себе привлекательность дома с доступностью и долговечностью стального здания. Последние данные о строительстве показывают, что строительство металлических домов увеличилось на 15% по сравнению с традиционным строительством домов.Barns england, как сделать веб-сайт с помощью редактора html и php, купить или построить сарай для хранения, стол для птиц, планы деревообработки — книги в формате PDF. Изучите план 8504-00168 на нашем веб-сайте. Уровень 1 сочетает в себе жилье для людей и лошадей. com Телефон: (603) 456-3801 Благодаря высоким потолкам, выступающим балкам, большим жилым помещениям открытой планировки, износостойким поверхностям и, конечно же, раздвижным амбарным дверям, легко понять привлекательность дома в стиле амбара. вам приходит в голову идея жить среди… Это сарай или дом? У нас есть несколько типовых планов barndominiums ниже, которые мы можем оценить для вас с включенными колодцами и септическими системами.
Модульные коровники стоят меньше, чем традиционные коровники, построенные из палочек, и их установка занимает всего несколько дней. план этажа, домашний комплект сарая Alberta имеет тщательно разработанный план этажа, подходящий для идеального семейного дома. Картинная галерея — … Chelsea Lumber Company Chelsea Location: 1 Old Barn Circle, Chelsea, MI 48118: 800-875-9126 или 734-475-9126 Saline Location: 600 East Michigan Avenue, Saline, … Гараж в стиле амбара и бонусная комната. Дополнения. 3. Будьте мудры! Строительство дома или в этом Barndominium требует серьезности и отличного плана.Это комбинация дома и амбара с энергосберегающими стенами ICF (изолированная бетонная форма). Гараж на один день. Джек, Джозеф и Мортон Мандель Белые горы Нью-Гэмпшира представляют собой захватывающее место для не менее потрясающего проекта от Yankee Barn Homes. Получите бесплатную оценку. СКОЛЬКО ОНИ СТОЯТ? Как и в случае с обычными домами, стоимость дома из металлоконструкций будет зависеть от множества различных факторов.
Планы этажей Барндоминиума, Техас. Приветствие … [Планы дома Menards] — 9 изображений — козлятники для продажи комплекты амбаров menards чертежи столбов, комплекты лестничных перил внутренние перила перила дома сделай сам, ни один Подрядчик соберет каркас дома намного быстрее и потратит большую часть время строительства внутри дома.Аспект. Подавляющее большинство старых амбаров имеют земляные полы. Планы домов 2500-3000 кв.м. От небольших жилых гаражей до планов Pole Barn Plans. Вот шаги, которые обычно предпринимает перестройка амбара. Ниже мы создали широкий спектр … Главная Индивидуальные планы Ценообразование Галерея Анкета Аренда Загрузки Ссылки Контакты. Витианга Сарай 130 тур. Это так просто. com) Дома часто эти планы этажей домов и планы этажей в стиле сарая открывают красоту. Место покупки: онлайн.Вот некоторые из моих планов Аллен 2724 кв.фута 5BR 4BA. Вы можете нажать кнопку … Поиск планов домов. Вот потрясающий жилой дом с уникальным дизайном и домашним интерьером, и все это в жилом пространстве 24×30.
Красота проекта заключается в балансе между старым и новым: … Несмотря на скромные корни, амбары по всему миру превратились в элитные дома с современными удобствами. Deercroft 3 спальни 2 1/2 ванны 704 См. план этажа показать распродажу » Bleu-Raven 3 спальни 2 ванны Пакетное предложение включает полный доступ ко ВСЕМ ДИЗАЙНАМ ДОМАШНИХ БАРОВ «Сделай сам» и не только.Галерея планов домов — ваш источник №1 планов домов в Хаттисберге, штат Массачусетс. Стандартная оболочка амбара может включать в себя один уровень, чердак или полный второй уровень. Barns and Buildings является лидером в строительстве качественных амбаров на заказ с 1970 года. Пожалуйста, позвоните нам сегодня по телефону 832-584-6088. Помимо этого, некоторые компании даже предлагают услуги по созданию чертежей и сборке виртуальных эскизов планов этажей для пользователя комплекта. Дома большие. Мы определили его из надежного источника. Так что взгляните на некоторые работы, которые мы сделали – вдохновитесь.Возможно, это займет у вас много времени, чтобы закончить.
00 — 115 долларов. План. Lester Building Systems не связана с New Century Bank. Недавняя тенденция строительства, barndominiums (или barndos) — это недорогие, обычно металлические, здания, которые часто поставляются в виде комплектов. Планы жилых этажей Pole Barn Фото. 10 × 24 конюшня … [Планы дома Менарда] — 9 изображений — козлятники для продажи комплекты сараев для коз, чертежи столбов, комплекты перил для лестниц, внутренние перила, перила для домов, сделай сам, Фотогалерея сараев для лошадей Keystone.Мы предлагаем комплект для сарая любого размера и помогаем вам настроить и спроектировать его для любых целей, включая общее хранилище, гаражи, пещеры для людей, мастерские. Архитектура преобразования сарая может привнести интересные элементы дизайна в интерьер. Планы амбарного дома на столбе с фото. Со строительством столбов вы получаете менее дорогое, более универсальное здание. Дом мечты План этажа современного дома-амбара в Ла… Когда владелица художественной галереи Джудит Рахт приобрела прекрасную старую ферму в Найлсе, штат Мичиган, 25 лет назад, она знала, что этот дом был скучным.
Ф. 2 спальни, 1 ванна. Основана компанией J. America’s Best House Plans. Это здание с гаражом на 3 машины было спроектировано архитектором клиента, чтобы соответствовать стилю их дома. 06. Получил 25-е место в рейтинге BING за планы этажей домов-амбаров по ключевому слову. Если вам нужно хранить в нем животных или другие предметы, связанные с фермой, или домашний скот, он должен работать. Эти дома передают эстетику традиционного амбара в сочетании с захватывающим современным дизайном. (Здесь подобраны фото на эту тему, но полная актуальность не гарантируется.Затем эти проверенные временем конструкции ручной работы сочетаются с современными энергосберегающими конструкциями и материалами для создания красивых и уникальных амбаров. Созданные для жизни в 21 веке, они имеют открытую планировку и современные удобства. Округ Портер, штат Индиана, от 49 x 89 футов до 60 x 120 футов Подробнее. Название означает, что это слияние сарая и кондоминиума. Планируется построить амбарный дом на шесте длиной 36 футов.
Каждый владелец и строитель выбирал варианты, отделку и цвет, чтобы сделать свои здания особенными.10×12 Обкатка металла. [Планы дома Menards] — 9 изображений — сараи для коз на продажу комплекты сарая Menards чертежи столбов от, комплекты лестничных перил, внутренние перила перил домов, сделай сам, планы этажей Barndominium. Возможности безграничны — если вы можете об этом мечтать, мы можем построить это для вас. Мы берем на себя этот хороший проект Barn House Plans. Изображение фермы может стать самой популярной темой после того, как мы разрешим ее в Google или Facebook. Фотографии наших работ. Адам Уолтер. Аллен Мартин. Возможно, вам понадобятся следующие данные, которые мы добавили.Для жилых домов выберите «Другое» в этой форме. Картинная галерея — Барндоминиумы. Амбары. Общее здание. См. Видео. Уточните, можно ли эту модель обшить металлическим сайдингом по запросу. King Construction строит качественные конюшни с деревянным каркасом, амбары для мероприятий, жилые амбары, вспомогательные здания и многое другое уже более сорока лет.
От размера, цвета, окон, дверей, типов пристроек и многого другого… вам предстоит принять множество решений. Картинная галерея — Конюшни/Конюшни. Вы сможете сэкономить больше денег, если перестроите сарай своими руками.Дом, милый стальной дом. Американские амбары или американские модные амбары определенно становятся все более известными в Великобритании. Планы этажей Барндоминиума 40×60. Фотогалерея — Дома на заказ. Проекты домов и планы этажей Одним из самых полезных аспектов самостоятельного строительства дома является то, что вы можете самостоятельно спроектировать каждый элемент. Это делает современный фермерский дом оптимальным решением для удовлетворения потребностей вашей растущей семьи. Если вы построили бар, используя наши планы, отправьте свои фотографии, следуя инструкциям на странице «Бесплатное продление».Планы домов Shouse отличаются от обычного дома или даже сарая. 3-5 спальных мест 3. DC Builders специализируется на проектировании и строительстве красивых индивидуальных домов, амбаров, конюшен и коммерческих зданий.
Планы этажей Barndominium с мансардой. Амбары с двускатными столбами обычно имеют ширину 16 футов и длину 36 футов, в то время как дома с амбарными столбами варьируются от 24 до 42 футов в ширину и от 36 до 104 футов в длину, длина зависит от того, сколько у вас отсеков. Помимо дома, на территории есть сарай с комнатой для снаряжения, умывальником, стойлами, а также местом для верховой езды и разминки.18 / 21. , Теги: Доступные амбарные дома, Планы этажей амбара с жилыми помещениями, Планы амбарного дома, Планы амбарного дома с оберткой вокруг крыльца, Металлические амбарные дома, Планы небольшого амбарного дома, Разрешение: 900px x 600px 50-Foot — Широкие планы Barndominium — планы вешалок (достаточно широкие для самолетов) 3 спальни — 2. 1600 кв. Футов 2 спальни, 1 ванная. The Charlotte 3 спальни 2 ванны ПРОДАНО См. план этажа. Barndominium сочетает в себе деревенский стиль амбара с удобными современными удобствами. Главный этаж Мастер 8989.Изображение предоставлено MeyerConstructionInc.
Банковские амбары могут превратить неровный рельеф в полезную строительную площадку, поэтому это практичное и функциональное решение для холмистого ландшафта. Варианты покупки: 6 комплектов полных строительных планов и PDF для… галереи Pole Barn. Планы этажей Barndominium, планы амбаров на столбах и металлические дома-амбары Планы этажей Barndominium Планы этажей от поставщиков; Функции; ценообразование; Скачать приложение; Центр помощи; О RoomSketcher; План дома Barndominium Модель 4257. ) Если вы обнаружите, что некоторые фотографии нарушают авторские права или имеют неприемлемые свойства, пожалуйста, сообщите нам об этом.Ниже представлена галерея barndominium, в которой показаны доступные пользовательские опции и некоторые этапы процесса строительства. Обязательно расскажите нам, какое освещение вы выбрали, и предоставьте несколько предложений о вашем проекте. 5 ванных комнат, гостиная, столовая, открытое крыльцо (600 кв. мы нарушаем Лот 100 Дверь подвала создает теплую и уютную атмосферу благодаря натуральным материалам и качественному мастерству.
Классический сарай. Мы предлагаем строительные пакеты и готовые здания с чердачными фермами, мансардами и вторыми этажами с чистым пролетом до 30 футов в ширину. (PMHI) Галерея Дополнение один день. Сохранить изображение. Планы дома амбара. Картинная галерея — Амбары и специальные постройки. Слово «барндоминиум» происходит от сочетания слов «амбар» и «кондоминиум». 3 спальни, 3 и 1/2 ванные плюс Flex Space / Den. План коттеджного дома дает вам чердак, 4 спальни, 4. Здесь вы можете просмотреть фотографии наших прошлых проектов. Домой.Часы работы: пн-пт: с 8:00 до 16:30. The Seagrove 3 спальни 2 ванные комнаты 709 См. план этажа. Великолепный. Сарай 10 × 16 Сарай. Они отличаются от популярного направления «фермерский дом»! Вместо этого проекты обычно имеют открытый план этажа, двускатную крышу и, конечно же, деревенскую эстетическую привлекательность перепрофилированных амбаров. — «Бертон» с опциями «Лофт»; 4 спальни – 2 ванные комнаты – 2500 кв.м. Галерея. Вот несколько самых популярных фотографий фермы в Интернете.
Планы сарая на столбах. В этом процессе необходимо учитывать два основных фактора: А) Какой план этажа лучше всего соответствует потребностям вашей семьи в пространстве и планировке? и B) Какой план этажа лучше всего вписывается в ваш … Alice 3550 3 спальни 2 ванные Barndominium Планы дома (щелкните изображение, чтобы просмотреть и распечатать) Ambrose 3042 2 спальни 2 ванны Barndominium (щелкните изображение, чтобы просмотреть и распечатать) BEULAH 5060 3 спальни 3 ванны Barndominium План дома (щелкните изображение, чтобы просмотреть и распечатать) Blaze 5050, 4 спальни, 3 ванны, Barndominium (щелкните изображение, чтобы просмотреть и распечатать) Branch 4040, 3 спальни, 2 ванны, план дома Barndominium Планы сарая на столбах: начните с качественного проектирования и проектирования.Семья всю дорогу вырубала деревья, чтобы освободить место для дома, загона и пастбищ, в которых нуждаются их лошади. Это 3474 кв. м. Как и ваш типичный план колониального дома, план дома в сарае обычно будет иметь симметричный фасад с центральной входной дверью, окруженной сбалансированными окнами.
Король по индивидуальному заказу проектирует свои банковские амбары с учетом исторической привлекательности и современной функциональности. УСТАНОВЛЕННЫЕ ПЛАНЫ НАЧИНАЯ ОТ 69 долларов. Сарай, живущий в Каскадных горах штата Вашингтон. • Открытая планировка этажа • Вальмовая крыша • Предварительная фотогалерея домов.Прошли мимо, у нас есть несколько амбаров, наши дома на полюсах строят дом на полюсах по всему плану домов на полюсах с фотографиями, если у вас все амбары идеально подходят для больших семей, чтобы иметь амбары на полюсах. … Галерея планов домов — ваш источник №1 планов домов в Хаттисберге, штат Массачусетс. Получите бесплатную цитату сегодня! Ведущий застройщик амбаров! Ведущий застройщик амбаров! Домой; Сарай по типу. линия. Короче говоря, планы домов barndominium представляют собой тип загородного дома, на дизайн которого сильно повлияли стиль, детали и планировка амбара.Эти альтернативные планы имеют все ощущения и драматизм Creek House, но их строительство дешевле. Мы получили информацию о каждом полученном изображении, включая размер и разрешение.
5 ванных комнат, терраса и гараж на 2 машины. Членство включает в себя более дюжины простых проектов домашнего бара, а также быструю и удобную онлайн-поддержку. Каркасы также изготовлены из стали, поэтому дом может противостоять суровым условиям. Хотя его, вероятно, можно спутать со стилем фермерского дома, амбарными домами и загородными домами, следующие пункты определенно заслуживают внимания для облегчения понимания.O. Они смогли использовать жилые помещения площадью 1782 квадратных фута и гараж площадью 713 квадратных футов, потому что Hearthstone — это компания, не похожая ни на одну другую. Пожалуйста, найдите минутку, чтобы совершить экскурсию по нескольким красивым проектам каркаса амбара, выполненным нашими клиентами. Эти планы амбаров размером 42×50 имитируют внешний вид горного хребта Гранд-Титон и знаменитых амбаров, которые представлены в национальном парке. Они должны не только соответствовать местным строительным нормам, но и учитывать снеговые и ветровые нагрузки, выход, освещение и вентиляцию, энергоэффективность, сантехнику и канализацию, ОВКВ и многое другое.
www. 40×60 Сарай с жилыми помещениями 94 40×60 Планы магазинов с жилыми помещениями Галерея связана с интерьером. Достижения в отрасли позволили легко замаскировать сарай из шестов под дом, построенный из палочек. Между интерьером и экстерьером этого дома есть сильный контраст. По сравнению с домом, построенным традиционным способом, стоимость работ и материалов для Шермана меньше… Вас интересует: Фотографии интерьера домов из сарая на столбах. Гаражи и хранение оборудования. Новости и пресс-релизы. Обратите внимание: если выбрано слишком много параметров критериев, это может ограничить количество доступных планов.Средство 3D-просмотра главного архитектора — это интерактивный способ поделиться своими проектами с потенциальными и заказчиками. Хорошо, вы можете проголосовать за них. Этот сарай когда-то представлял собой ряд ветхих зданий, которые с тех пор были резко преобразованы (компанией BBH Architects) в современный дом, наполненный умными аудиовизуальными технологиями. Планы домов 3500-4000 кв.
м. Компания Customkit упростила этот процесс с помощью ряда готовых строительных решений стандартных конструкций, от небольших домов с одной спальней до более крупных одно- и двухэтажных домов, или с нашим ассортиментом традиционных… Убедитесь, что они профессионалы в ремонте и модификации дома.На протяжении многих лет концепция включала в себя большие магазины и офисные помещения, когда обычный гараж не подходил. (940) 768-9239; Строитель Барндоминиум; Галерея. Строительный цех столба Планируется построить сарай. 40×40 = 1600 кв. футов. — «Хейзел» с грязевой комнатой Вот несколько фотографий фермерских домов с планами амбара с самым высоким рейтингом в Интернете. Современные планы домов в стиле фермы с открытыми планами этажей стали очень популярными, и вы найдете многие из них в этой категории. Более 100 тысяч замечательных и вдохновляющих фотографий от разных дизайнеров интерьеров, архитекторов и декораторов со всего мира.Вы найдете этот красивый Shome® в Норт-Либерти, штат Айова. Найдите планы этажей деревянного дома, вдохновляющие фотографии домов с деревянным каркасом и полезные советы по строительству и проектированию собственного дома из столбов и балок — все это предоставлено вам редакторами журнала Log and Timber Home Living. Амбары с высокими потолками и широкими открытыми пространствами стали идеальным жилищем для домовладельцев, которые хотят перепрофилировать архитектуру или просто жить на широкую ногу. Чтобы увидеть больше доступных планов, попробуйте быть менее конкретным в своем запросе.Ваши фотографии могут быть использованы на нашем сайте, в блоге или даже в нашем следующем каталоге! Совет по фото: установите камеру/телефон в интерьер 02 июля 2018 г. Недавно я обновил несколько фотографий, чтобы добавить вашу коллекцию, согласитесь, это гармоничные изображения. Когда необходим великолепный план дома barndominium, этот план этажа спасет ваш день. Вот несколько фотографий с планами сарая на столбах с самым высоким рейтингом в Интернете. Информация о каждом изображении, которое мы получаем, включая размер и разрешение. Сарай 10×10 Shed Row с красной краской.Планы домов Barndominium — это проекты загородных домов с сильным влиянием стиля сарая. Построенный только из лучших материалов на рынке, Weaver Barns предлагает клиентам уникальный, неподвластный времени опыт в традициях амишей. Стоимость также варьируется в зависимости от местоположения из-за региональных цен на материалы и местных требований к дизайну, и вам придется учитывать дополнительные элементы, которые вы хотите добавить в свой ПЛАН ЭТАЖА ЗАКАЗЧИКА: (Имейте в виду, что мы предоставляем комплект внешней оболочки, поэтому, когда вы Вы можете завершить свой интерьер, вы можете использовать этот точный план этажа или использовать его в качестве вдохновения для своего собственного интерьера) Для этой сборки клиент объединил свои жилые помещения с пристроенным гаражом на коньке.Нажмите на название проекта ниже (например, «Большой красный амбар»), чтобы просмотреть изображения определенного проекта barndominium. Фото галереи ограждения телефонных столбов (Галерея заборов телефонных столбов… Фотографии Гейба и Элизабет Shome®. Дизайн Гарднера, соответствующий этому стилю. Cross Creek Construction & Design, LP. Некоторые каркасные дома даже не выглядят так, как их называют. Обшивка вагонкой, навесы и двускатные крыши со спортивными куполами придают аутентичности и очарования Амбары с жилыми помещениями Здание Мортона не является типичным жилым амбарным зданием.амбарная галерея; галерея столбового строительства; бонусные проекты; о; столбовые амбары; полюсные дома / барндоминиумы; столбовые постройки и гаражи; галерея. Наша профессиональная команда по проектированию и строительству амбаров предлагает клиентам огромный выбор различных сараев и амбаров амишей… У дома на шесте нет такого многослойного фундамента, как у обычного дома. футов Барндоминиумы; … Пусть эти 179 проектов и планов коровников вдохновят вас на создание идеального коровника, который вам нужен, даже если вы точно не знаете, какой именно коровник вам нужен.Добро пожаловать в Dwell, сообщество современной архитектуры и дизайна. Гибкость строительных пакетов EPS означает, что их легко построить для вашего уникального образа жизни. Сегодняшние Barndominium стали известны как дома на заказ с большими открытыми планами этажей, в которых используется любая эстетика для достижения желаемого вида. С современными планировками модульных домов у вас будет возможность настроить модульный дом в соответствии с вашими уникальными желаниями и потребностями и, конечно же, с вашим стилем жизни. Дома красивые, прочные и, самое главное, доступные по цене.Наши обработанные нижние колонны обработаны . Просмотрите галерею, чтобы получить некоторые идеи дизайна конструкции здания. 2. Кроме того, с правильными инструментами и навыками это… Традиционный дизайн и использование «амбара» сильно изменились за эти годы. Дома средние. Вы можете рассчитывать на оплату от 50 до 120 долларов за квадратный фут. Отреставрированный сарай обшит восстановленным винтажным сайдингом и теперь служит художественной студией и гостевыми помещениями на ранчо в Остине, штат Техас. Гавайи. Принесите свое видение… Пример плана этажа с двумя спальнями.Классические модели коровников предлагают множество вариантов дизайна для … MD Barnmaster совершенствует строительство коровников с 1975 года и является лидером отрасли в области готовых модульных планов и комплектов для строительства конюшен. Другие идеи темы для домашнего бара: ознакомьтесь со стилями домашнего бара и сезонными зимними, весенними, летними и осенними темами бара. Статистика: 24×50, 2376 кв. м. Современный загородный план дома мечты. 5 Ванная – 2000 кв. м. Барндоминиумы, часто называемые «Барндос», возникли из-за идеи удешевления домов за счет использования корпуса металлического здания в качестве внешней части дома.Планы амбаров и загородных гаражей Дона Берга использовались для строительства розничных магазинов, домов, конюшен, лесопилок, мастерских, гаражей для коллекционеров автомобилей, мастерских художников и многого другого. 25-футовые соборные потолки в большой комнате с 12-футовыми потолками внутренней комнаты на всем протяжении 20-футового длинного кухонного острова и 12 футов x … Пакеты плана дома Home Depot Пакеты Home Depot Pole Barn Галерея дизайна Joy Studio и все другие изображения, дизайны или фотографии на нашем веб-сайте являются собственностью их соответствующих владельцев.T. Фотогалерея — Дома на заказ 2. План 95043RW Современный загородный сарай План дома мечты. Планы сарая с мансардой. … 1 East Main Street — P. Мы предлагаем более 30 000 планов домов и архитектурных проектов, которые могут эффективно отразить ваше представление об идеальном доме. H. Мы предлагаем красивые, высококачественные сараи на заказ, которые легко построить и вписаться в любой бюджет. Компания National Barn Company предоставляет все типы конструкций посткаркасных строительных конструкций. ферстон амбар 145 тур.Барндоминиумы — жилищный тренд года. Семья МакКворкодейл стремилась расширить свою молочную ферму, повысив при этом свою операционную эффективность. Свекровь/квартира 691. Домовладелец вы или профессиональный дизайнер, покажите нам свой стиль! Загрузите до трех файлов одновременно, используя форму ниже. Будь то строительство, покупка земли или обеспечение соответствия нормам, эта книга на 184 страницах и более 200 планов этажей помогут вам жить… Мы строим дома из металлических конструкций на заказ, также известные как Barndominiums, в некоторых частях Центрального и Южного Техаса.Есть что-то явно привлекательное в дизайне амбарных домов, что делает их такими же популярными сегодня, как и столетия назад. На территории амбара расположены 4 стойла, чердак, кладовая и постирочная. Планы домов в стиле S. Barn отличаются простым деревенским внешним видом, возможно, с двускатной крышей или (конечно) амбарными дверями. После: Earthbound Artwork Timber Home Living — ваш главный ресурс для домов из столбов, балок и деревянного каркаса. 95 планов скачать доступ к оплате. Этот дом также был преобразован из сарая.Получайте удовольствие от процесса. Спальни и ванные комнаты. Мысы Марин. 80 фунтов на кубический фут консерванта и имеют 50-летнюю гарантию. Мы сформулировали категории стиля различными способами, чтобы удовлетворить потребности разнообразной аудитории. W East Canton, Ohio 44730. Более 3470 кв. футов жилой площади внизу плюс 1600 кв. футов наверху — двухъярусная комната и апартаменты 2-го владельца. Фото каркасного дома на столбе (Фото каркасного дома на столбе). Для самого лучшего в аренах верховой езды, конюшнях, молочных коровниках и других сельскохозяйственных зданиях выбирают предварительно спроектированные стальные конструкции с прямыми стенами.Содержание [скрыть] 1 1. В магазине Home Store представлено более 450 стандартных планов этажей для модульных домов. New Century Bank финансирует несколько типов каркасных жилых домов, включая амбары, частные дома, дома-амбары, дома-магазины и сараи. (photosinhouse16@gmail. Если да, то первый шаг — поднять сарай… Ниже представлена 21 лучшая коллекция фотографий 32×40 фото планов гаража в высоком разрешении. Набор для подростков/ванна Jack & Jill 9821. Но даже когда вы знаете, чего хотите , иногда трудно начать.06. Подумайте о плане этажа… Вот несколько планов этажей, которые вы можете применить, если думаете о скором строительстве нового дома. Гараж Рабочее место Автомобиль Отличная планировка через. 2015. Бабушкины агрегаты. С их металлическим, похожим на сарай внешним видом и удивительно современной обстановкой внутри, бардоминиум может помочь вам прожить идеальную домашнюю жизнь. Но романтический сарай сзади? «У меня всегда была мысль, что я собираюсь что-то с этим сделать», — говорит она. Каждая из спален имеет свои особенности. После оплаты счета мы вышлем вам его по электронной почте.Связанные изображения с открытыми планами амбара Joy Studio Design Gallery Лучший дизайн Предварительно спроектированный деревянный дом амбара, сараи для лошадей \ u0026 Gambrel Kits Sand Creek Post \ u0026 Beam. Компания LB Construction залила бетон, использовала седловидный фундамент и установила крышу, водосточные желоба и черепицу. Жилые помещения. Для получения более подробной информации о металлических амбарах, скачайте Pole Barn Plans. Большинство наших клиентов обычно могут найти несколько модульных планов, которые максимально соответствуют их потребностям. В отличие от тенденции стиля фермерского дома, проекты Barndominium часто имеют двускатную крышу, план этажа с открытой концепцией и деревенскую эстетику, напоминающую перепрофилированные амбары, превращенные в жилые помещения.Изображение Небольшие планы этажей домов амбара. 2 2. 4 4. Прочный, экономичный, … Амбарные дома и гаражи. Проекты сарая с опорами со встроенными стойками, которые включают второй этаж, требуют гораздо более широких и толстых доступных планов этажей. План 935-17. Где-то между слесарем и краснодеревщиком плоды его труда до сих пор украшают сушу и море — с продолжительностью жизни, исчисляемой веками: мосты, церкви, амбары, бревенчатые дома, каркасные дома, таверны, здания суда, гостиницы, гостиницы, парусные суда. , а — с… Это дом и конюшня/конюшня, соединенные друг с другом.. На втором этаже у вас есть много места для хранения сена или вместо этого подумайте о добавлении жилых помещений! 10- или 12-футовый центральный проход. Нажмите на любое изображение, чтобы увеличить его. – «Куинлан» с прачечной; 4 спальни – 2 ванные комнаты – 2 250 кв. м. При перестройке вашего амбара в хороший амбарный дом вы должны учитывать самую важную вещь: планы этажей амбарного дома. [Планы дома Menards] — 9 изображений — сараи для коз на продажу комплекты сарая Menards чертежи столбов от, комплекты лестничных перил, внутренние перила, перила домов, сделай сам, Посмотреть в галерее.Деревенский дом. Гринсборо, 4 спальни, 2 ванные, дверь сарая, ванная комната 703. См. план этажа. Поскольку домовладельцы продолжают искать способы построить доступные новые дома, многие обращаются к металлическим комплектам для строительства дома. 2376 Ирвин Роуд Ричмонд, Кентукки 40475. Работайте из дома на чердаке на втором уровне. Мы даем вам планы основной оболочки сарая с мансардой или полноценным вторым этажом. См. 4 спальни. Он имеет 2 спальни, 2 ванные комнаты, кухню и гостиную. Если вы ищете 40 × 60 полюсный сарай с жилыми помещениями 94 40 × 60 планов магазинов с галереей жилых помещений и вы чувствуете, что это полезно, вы должны поделиться этим изображением со своими друзьями.Типы. План этажа На этой ноте планы домов barndominium показывают проекты загородных домов, на которые сильно повлиял стиль амбара. Планы амбарных домов, как правило, двух- или полутораэтажные. Эти конструкции дороже по сравнению с одноэтажными зданиями из-за материалов второго этажа. Его представила организация в лучшем поле. Напоминая о более ранней эпохе, модели Classic Barn отражают дух ранних американских амбаров — простые, честные и пробуждают чувство урожая, защищенности и безопасности.Варианты покупки: боковые/стеновые распорки и структурные расчеты для этого проекта для OR и WA. Этот план дизайна дома в сарае включает 3 941 квадратный фут жилой площади с опорами и балками, 4 … Планы сарая на столбах. Барндоминиум с тенью патио. Дом из стоек и балок обшит деревянным сайдингом и металлической крышей со стоячим фальцем. Miller Storage Barns создал этот удивительный дом в стиле амбара амишей. Добро пожаловать на наш сайт! Основной вопрос: как облагаются налогом барндоминиумы? 52 лучших изображения барндоминиума на планете; Роскошные барндоминиумы: от Южного Техаса до Монтаны вырос скромный сарай на шесте Купите наш уникальный выбор планов этажей дома на шесте, чтобы построить дом своей мечты.A. Фотографии забора из бака и столба (фотографии забора из бака и столба). Ищете ли вы вдохновение для планирования ремонта сарая или строите дизайнерский сарай с нуля, на Houzz есть 1444 изображения от лучших дизайнеров, декораторов и архитекторов страны, включая Tim McCarthy Architect PC и Topos Homes. Это слово происходит из Англии, где изначально это был дом с цокольным этажом и первым, нижним этажом со спальнями, которые помещались в пространстве на крыше. Этот загородный дом, как правило, двухэтажный, с верандой, зонами для семейных собраний, дополнительными спальнями на верхнем уровне, формальными парадными комнатами и деревенской кухней.1250 долларов. 46 Lake Avenue Saratoga Springs, NY 12866 (518) 587-0100 Часы работы с понедельника по пятницу с 8:30 до 17:00, по вечерам и в выходные по appt Каждая категория стиля плана дома, указанная ниже, является ссылкой, которая направит вас к Дональду А. Здесь это … АЛЬБЕРТА. Планы сарая Тетон 42 × 50. О. Мы надеемся, что вы сможете проголосовать за них. Уже более двух десятилетий мы помогаем людям строить свои мечты. Получите вдохновение для своего собственного передвижного дома Elevate, совершив видеоэкскурсию по зданиям в нашей галерее, или поразитесь, наблюдая за нашими домами в движении — вы должны увидеть это, чтобы поверить в это! Нажмите на изображения или названия ниже, чтобы посмотреть видео.У нас есть несколько лучших идей изображений, чтобы добавить ваше понимание, мы нашли, что это потрясающие фотографии. 12 Pole Barn House Планы и цены \u2014 Cape Atlantic Decor ИСТОЧНИК. Все зависит от вас. длинная конструкция имеет два уровня жилой площади. Детали проекта 1 Уровень; 2 спальни 3 ванные комнаты 0 полуванных Изменить этот проект; Скачать приложение; Barndos Более стандартные функции, отличный сервис и качество изготовления делают здания Timberline разумным выбором для коммерческого, жилого и сельскохозяйственного применения.Реконструкция была обширной, и главная причина, по которой внешний вид остался почти нетронутым, заключается в том, что архитекторы McLean Quinlan хотели, чтобы он органично интегрировался в ландшафт. Этот потрясающий дизайн в стиле сарая фокусируется на открытой концепции жизни и создает ощущение простора, как только вы входите в парадную дверь. Встраивание уникальных деревянных каркасов в самые разные здания на другой стороне улицы и по всему миру. Они часто включают двускатную крышу, амбарные двери, открытые жилые помещения и множество окон.Дайте нам знать, если у вас есть вопросы. Если вы планируете стареть на месте, подумайте о том, чтобы выбрать… Некоторые могут назвать эти планы домов из шестов, хотя у них действительно есть фундамент (в отличие от традиционных шестов). Цвета галереи зданий ФБР. Щелкните изображение, чтобы увеличить его размер и получить более подробную информацию. Эта коллекция фотографий демонстрирует широкий ассортимент, который мы можем предложить. С 1992 года компания National Barn Company построила более 15 000 зданий в 27 штатах. Замена поврежденных частей амбара. Мы используем только No.Этот простой одноэтажный барндоминиум подходит для вашего желания иметь открытый и просторный дом на даче. Комплект для дома с шестом поставляется в упаковке с материалами, которые готовы к использованию, и вы найдете подробные инструкции, прилагаемые к набору. Мы согласны с тем, что эта красивая графика Pole Barn Plans может быть самой популярной темой, учитывая, что мы разместили ее в Google или Facebook. Каждый день блогеры, фотографы, архитекторы и любители дизайна создают тысячи новых фотографий и обсуждений.… Великолепные главные ванные комнаты. Используйте эту возможность, чтобы увидеть некоторые изображения, чтобы дать вам воображение, представьте некоторые из этих художественных фотографий. Планы домов 4000-4500 кв.м. 1. Навес 10×12 с зеленой металлической крышей. Такие детали, как сайдинг из досок и реек и утопленный, защищенный вход, добавляют очарования и практичности. Если вы ищете место для себя или если вы только начинаете свою семью, Morton Buildings является лучшим местом для вас. Hansen, Hansen Pole Buildings, LLC была создана как корпорация с ограниченной ответственностью в 2002 году как интернет-компания, предоставляющая изготовленные на заказ высококачественные комплекты для строительства столбов по доступным ценам.1200 долларов. В Homestead Barndominiums мы так гордимся работой нашей команды — строительством красивых домов, которые нравятся нашим клиентам, — что мы хотим показать это. Посмотреть галерею Берд Амбар. Вам гарантирована привлекательная и недорогая конструкция, которая прослужит долгие годы. Этот стиль отличается от дизайна фермерского дома, который был очень популярен, но постепенно угасает. Он также предлагает вместительные жилые помещения. Мы стараемся ежемесячно обновлять нашу фотогалерею металлоконструкций.Гараж Рабочее место Автомобиль Отличная планировка. ДОМА, ДОМА И ДАЧИ В СТИЛЕ САРАЯ. Многих волнует стоимость, а другие хотят получить деревенский вид. Поиск планов дома. В то время как многие приписывают их непреходящее очарование их парящим интерьерам и открытым деревянным конструкциям, дома-амбары любят по целому ряду причин, которые варьируются от их беспрецедентной теплоты до просто любви к сельской местности. План 95043RW. Воплотите свое видение в жизнь. 8 июля 2019 г. Предлагая, так сказать, «лучшее из обоих миров», барндоминиумы обычно включают в себя жилые кварталы наряду с мастерскими.Уникальные и продуманные детали включают в себя прозрачные камины как в гостиной, так и в главной спальне, частный «двор владельца» и бар. Деревянные гаражи на столбах. Независимо от того, что вы называете домом для шеста, нет недостатка в информации о том, как получить его для себя. См. комплект оборудования для этого амбара. Гараж – самое очевидное и простое решение для хранения автомобиля. Наши дома строятся по индивидуальному заказу в соответствии с требованиями наших клиентов. Планы оплаты; ВОПРОСЫ-ОТВЕТЫ; Выберите Страница. Фотография о: Полезные идеи о планах сарая, Название: Галерея и планы сарая, Описание: .Мюррей МакКворкодейл 120 x 378 футов Коровий сарай. Вот пример некоторых работ, которые мы сделали для наших клиентов в прошлом. Наборы для сарая с деревянными столбами очень популярны, даже в небольших версиях, поэтому вы можете рассчитывать потратить от 7 до 20 долларов США за квадратный фут. Кроме того, эти планы легко доступны на нашем веб-сайте, что облегчает вам поиск идеального, готового к застройке проекта для вашего будущего дома. Мы предлагаем широкий выбор амбарных домов, от каретных домов до круглогодичных … Эти изображения галереи и планов амбарных домов имеют размер 1280 x 960 пикселей, вы можете загрузить и добавить изображения галереи и планов амбарных домов, щелкнув правой кнопкой мыши по щелчку. правая мышь, чтобы получить версию высокой четкости.Сравните наши сборные стойла для лошадей с сараем, построенным из бревен, и вы даже не заметите разницы. Если вы не нашли здесь «Правильный план», мы можем разработать индивидуальный план, соответствующий вашим потребностям. Функции. Рабочее пространство. Нам они нравятся, может быть, вам тоже. Доставка. Избранный план: 51981. Маленький не делает Дом расположен на частной территории площадью 10 акров, предназначенной для любителей конного спорта. Если вы выберете один из наших стандартных планов, это сэкономит ваше время и упростит вашу работу, поскольку дизайн, проектирование и цены уже имеют 717 См. план этажа.Простые, лаконичные и легко читаемые планы амбара, ориентированные на владельца/строителя. Лучшие планы металлических амбаров. 5 ванн. Во многих местах слово коттедж используется для обозначения небольшого старомодного дома. Комплект — это уже спланированный дом, который доступен по более низкой цене и для быстрой сборки. «Недавний скачок цен на пиломатериалы сделал строительство с металлическим каркасом… Привет, ребята, вы ищете планы гаража 40×40. План домика 8504-00168. Галерея и планы амбарных домов
fpv hwa nyu mqd iew iy8 ikj f4w hfd wl6 xc7 ecu 9ip zdp 6bo rom 4it rzx kso sne
Воскрешение амбара — McAdams Remodeling & Design
Этот дом в Редмонде представляет собой трехуровневый дом 1970-х годов с 3 спальнями и 1 ¾ ванной площадью 2130 кв. футов, который преображается.Обновленный дом включает в себя дополнительные 1104 кв. Фута, содержащие 4 спальни и 3 ванные комнаты, в том числе: новый главный люкс, домашний офис для папы, игровую комнату для детей в возрасте от одного до четырех лет и большую мастерскую для их очень искусной мамы. . Все эти изменения будут существовать, сохраняя при этом внешний вид амбара и деревенское очарование собственности. Начнем с самого начала…
Джеймс и Сюзанна обратились к нам по рекомендации друга отрасли. Строитель Джейми Хсу из Lakeville Homes за несколько лет до этого обсуждал с парой проект, но ничего не вышло.Перенесемся на пару лет вперед, и в их семье появились две активные дочери. Они по-прежнему любили свой дом, но им нужно было больше места! Они снова связались с Lakeville Homes, но график их проекта не соответствовал графику Джеймса и Сюзанны. Обратившись в McAdams Remodeling & Design, мы нашли Джеймса и Сюзанну в нашем офисе, которые интересовались, как мы можем помочь им реализовать свободное пространство в их тесноте.
Из-за необычного трехуровневого стиля дома помощь в проектировании была столь же важна, как и опыт строительства, поэтому такая фирма, занимающаяся проектированием и строительством, как наша, отлично подошла.Когда они купили свой дом, их было только двое. Теперь у них две подрастающие дочери, и им нужно место для игр девочек, а также новый план этажа, чтобы максимально использовать потенциал их дома на долгие годы вперед. Серьезной проблемой для них было то, что их главная спальня и спальни девочки находились на разных этажах, что нежелательно для семьи с маленькими детьми.
Чтобы удовлетворить список желаний пары, требовалось творческое мышление. В их список вошли:
- Новый главный люкс с двумя спальнями и новой ванной комнатой для их детей, все на 3 rd этаж
- Игровая комната на 1-м этаже, мастерская для развивающегося ремесленного бизнеса Сюзанны, офис для Джеймса и гостевая комната для посещения семьи
- Оставить нетронутыми основные жилые помещения и кухню на втором этаже, сохранив при этом преемственность с новыми помещениями
Обеспечить их местами для списка пожеланий было не просто, а весело.Дизайнер Минди Персон и основатель McAdams Remodeling & Design Лен МакАдамс определили, что двухэтажное дополнение имеет наибольший смысл для семьи. На участке в западной части существующего дома было место, где текущие комнаты можно было отремонтировать, а дополнительные квадратные метры дали бы наилучший результат. Паре было предоставлено несколько итераций планов этажей и видов экстерьера, пока не были определены желаемый дизайн и планировка. Дополнительные проблемы возникали в виде разных приоритетов в зависимости от того, с кем мы разговаривали.Джеймса интересовали детали дома и сохранение деревенского очарования, в то время как Сюзанна была больше увлечена пространством своей мастерской и детской игровой площадкой. Одной из самых интересных задач было найти напольное покрытие по разумной цене, привлекательное и достаточно прочное для помещений с высокой проходимостью на первом этаже.
Чтобы освободить место для новой пристройки, менеджер по работе Крис Гемпель привез землеройную технику, чтобы раскопать существующую землю, чтобы освободить место для нового фундамента.После заливки и высыхания началось обрамление, и дополнения к комнате начали обретать форму! Новый каркас был привязан к существующей конструкции, а затем новая металлическая крыша была плавно добавлена к существующей металлической кровле. Также были установлены новые окна, двери и водосточные желоба.
За два коротких месяца проект значительно продвинулся вперед. Новая пристройка была выкопана, залит фундамент, возведены внутренние и внешние стены. К основному дому пристроили новую пристройку, установили крышу, окна и двери.Мы сохранили как можно больше существующих сайдинговых досок из оригинального дома, чтобы их можно было использовать в новом экстерьере. Там, где это было необходимо, был добавлен дополнительный сайдинг, и внешний вид был завершен. Теперь дом защищен от непогоды, и мы готовы приступить к внутренней отделке!
Некоторые клиенты предпочитают очень нейтральные цвета краски; эта семья не боялась цвета! На первом этаже семья выбрала прекрасный нейтральный бежевый цвет под названием «Утренний свет»*, чтобы покрасить его в игровой комнате вместе с одной стеной серой краской для классной доски, идеально подходящей для двух молодых художников, которые могут рисовать в свое удовольствие.В соседней большой мастерской для Сюзанны был представлен «Райский остров»*, яркое цветовое пятно для этого творческого пространства. Новая гостевая спальня получила «Балтиморское небо»*, где какой-нибудь счастливый гость сможет отдохнуть в этом оазисе при следующем посещении. Офис, последняя отремонтированная комната на первом этаже, также получил «Утренний свет» с акцентной стеной с сохранившимися деревянными панелями из оригинальной комнаты; идеально подходит для работы Джеймса из дома.
Наверху, недавно созданный и переделанный третий этаж, теперь содержал по одной спальне для каждой дочери, а также общую ванную комнату и красивую главную спальню с гардеробной и главной ванной комнатой с пятью предметами.Спальня четырехлетней Эллисон была расписана «Кислое яблоко»*, а годовалая Эбигейл выбрала «Балетные тапочки»*. Ванная в холле отделана покрытием «Карибский бриз»*, а также установлена двойная тумба под умывальник из бука, окрашенного в кайенский перец, от Canyon Creek с кварцевыми столешницами. Одну стену украшал утопленный шкафчик с лекарствами, идеально подходящий для хранения снаряжения двух растущих девочек.
Коридор от комнат девушки до главной спальни составляет всего несколько футов, но новый дизайн привнес интересные архитектурные элементы с высоким потолком, которые привлекают внимание.Над дверью в главную спальню было вырезано маленькое окно, в котором был витраж, сохранившийся от оригинального дома. Сводчатые потолки в реконструированной главной спальне заставляют комнату казаться намного больше, чем ее 13 футов 6 дюймов на 15 футов 3 дюйма. Часть уцелевших деревянных панелей из амбара была использована на одной акцентной стене, в то время как «Revere Pewter»* покрыл остальные. Недавно добавленная главная ванная комната этой счастливой пары содержала двойную раковину из ольхи цвета эспрессо с кварцевой столешницей, а также большую ванну для купания и душ из коричневой фарфоровой плитки с жемчужной мозаикой карамельного цвета в качестве декоративного элемента.
Во всех спальнях и коридоре третьего этажа постелен новый ковер. Виниловый пол завершил ванную комнату в холле, а керамогранит в тон душевой украсил пол главной ванной комнаты. Семья хотела прочный и недорогой вариант напольного покрытия для игровой комнаты девочки и мастерской Сюзанны, а также вдоль коридора на первом этаже, поэтому был уложен выбеленный ламинат цвета орехового дерева. Новая дверная фурнитура из бронзы, натертой маслом, завершала каждую новую комнату и связывала старое и новое пространство вместе.
Несмотря на то, что в процессе реконструкции двухэтажного дома было несколько трудных моментов, теперь, когда каждый человек заявил свои права на свои новые спальни, Джеймс, Сюзанна, Эллисон и Эбигейл любят свой новый дом. Девочки любят рисовать на доске в игровой комнате, и у них есть много места для своих игрушек. В большой мастерской Сюзанны есть место, необходимое ей для создания и развития своего бизнеса. Джеймс очень рад, что проект завершен вовремя и в рамках бюджета, и что многие элементы амбара оригинального дома могут быть повторно использованы в новых помещениях.В общем, у этой счастливой семьи теперь есть место, о котором они мечтали.
*Если не указано иное, все цвета краски марки Benjamin Moore
3 сюрприза, которые вы должны знать
Недавно вы и ваша вторая половинка обсуждали строительство нового дома. Вы оба согласились, что ваше нынешнее пространство просто больше не сокращает его. Вам не хватает места… и терпения.
Вы давно мечтаете об идеальном доме. Вы уже придумали идеальное место.Самое главное, вы и ваша вторая половинка согласились, что в этом доме будет все, что вам нужно, и даже больше. На этот раз никаких срезов!
Проектирование собственного дома — увлекательный, но напряженный процесс. Есть так много вариантов!
- Одноэтажный или двухэтажный?
- Открытая или закрытая планировка?
- Виниловый сайдинг, кирпич или и то, и другое?
- Металлическая кровля или черепица?
- Гараж на две машины или на три?
- Полноценный цоколь или частичный?
Вот это да! Голова кружится. Не говоря уже о том, что вы и ваш партнер должны согласовать выбор дизайна.
Естественно, люди тянутся к поисковым системам и платформам социальных сетей за советом или идеями. Когда вы прокручиваете Facebook , ваше внимание привлекает общий пост — пост-фрейм дома.
Это идеальное сочетание жилого и складского помещений . Нет необходимости строить дом и сарай для столбов , когда вы можете иметь оба под одной крышей. Звучит здорово, правда?
Прежде чем углубиться в процесс строительства, вам нужно знать все тонкости строительства стоечного каркаса.
Почему? Потому что нужен особенный человек, чтобы получить максимальную отдачу от затраченных средств. В конечном счете, мы хотим, чтобы вы получили дом своей мечты, не разорившись… даже если это означает потерю вашего бизнеса из-за строительства из палочек.
В этой статье мы обсудим три сюрприза, которые вы должны знать, прежде чем строить дом из каркаса. Ведь никто не любит сюрпризов, когда речь идет о крупных покупках.
Во-первых, стоечно-каркасная конструкция представляет собой спроектированную деревянно-каркасную строительную систему.Также известные как столбовые сараи, они возводятся быстрее, чем любой другой тип здания.
Каркасные конструкцииимеют ламинированные колонны или постоянные колонны вместо деревянных стоек, стального каркаса или бетонной кладки. Эта система взаимосвязанных рам может выдерживать большие нагрузки, чем конструкция из стержней (или каркасных стен). В результате требуется меньше конструкционных материалов, что экономит время, труд и дополнительные материальные затраты.
Поскольку колонны расположены дальше друг от друга, чем шпильки (8 футов), здания с опорным каркасом имеют большую полость в стене.Это обеспечивает достаточно места для изоляции; таким образом, снижая затраты на отопление и охлаждение.
Не говоря уже о том, что наружный фасад может быть установлен на стоечно-каркасных конструкциях. Другими словами, ваше здание может быть спроектировано в соответствии с самыми высокими стандартами качества и эстетики. Вы можете выбрать один из следующих вариантов экстерьера:
- Кирпич
- Сталь
- Штукатурка
- Камень Версетта
- И различные сайдинговые изделия (например, алюминий, кедр и винил)
В целом, конструкция сарая на столбах является экономичным и энергоэффективным выбором для малоэтажных зданий.Популярные профили проектов включают сельскохозяйственные, коммерческие, жилые и конные.
Теперь, когда вы лучше понимаете конструкцию стоечной рамы, мы можем перейти к нашим трем «неожиданным переключателям». Эти три неожиданности могут вызвать серьезные проблемы с планированием или полностью изменить мнение человека о жизнеспособности его проекта.
1) Наличные не король
Мы живем в мире, где царят деньги. Однако наличные деньги теряют часть своего кэша в индустрии почтовых рамок.Почему? Все сводится к стоимости перепродажи .
Вы уже выделили землю. Вы сознательно экономите свои деньги — никаких финансовых проблем с вашей стороны.
Но что произойдет, если вы решите продать свой каркасный дом? Конечно, это может быть через года года.
Вам нужно переехать по работе.
Вы хотите быть ближе к своей семье.
Вам нужно сменить обстановку.
Какой бы ни была причина, вам следует подумать о том, как потенциальные покупатели собираются приобрести вашу недвижимость.Им может понадобиться финансирование. К сожалению, некоторые банки усложняют этот шаг.
Почему? Потому что не все учреждения являются экспертами в оценке стоечно-каркасных конструкций. Это падение может замедлить или сорвать продажу. Хотя вы не беспокоились о финансировании, позже вы можете стать его жертвой.
Если вам нужно финансирование, будьте готовы обсудить следующую информацию с вашим кредитором:
- Окончательная стоимость строительства
- Долговечность сарая
- Сравнение цен на дом из бруса
В зависимости от кредитора вам, возможно, придется ответить на следующие вопросы:
- Какой уклон крыши планируется?
- Какой тип кровли и сайдинга вы собираетесь использовать?
- Сколько дверей и окон вы собираетесь установить?
- Как будет отделка салона?
- Сколько квадратных метров занимает жилое помещение?
Это может показаться ошеломляющим, но не бойтесь.Ваш профессиональный строитель сможет предоставить вам список кредиторов
.
Pinterest отлично подходит для того, чтобы давать нам идеи домашнего декора… и обманывать ожидания. Давайте будем реалистами, у кого нет доски Pinterest , посвященной их будущему дому? Мы виновны по обвинению. Задача состоит в том, чтобы сделать его похожим на оригинал.
Важно отметить, что большинство строителей стоечных каркасов специализируются только на корпусе здания.Это лишь часть вашего общего проекта. Другие аспекты проектирования могут быть обработаны генеральным подрядчиком (GC).
Однако некоторые клиенты предпочитают выполнять этот процесс самостоятельно. Те, у кого есть опыт и знания, находят это приятной и полезной возможностью. Между тем, те, у кого нет опыта, удивляются тому, как много времени уходит на управление строительным проектом.
Например, вам нужно будет согласовать и оплатить следующие работы:
- Подготовка площадки и земляные работы
- Прокладка труб и проводов (сантехнических и электрических)
- Установка подъездной дороги, водопропускной трубы и септика
Вы можете получать конкурентные предложения от разных поставщиков.Это много людей, цены и работа, которую нужно держать под контролем.
Возможно, вы решили, что делать своими руками — не лучший вариант для вас. Ваши дети (или внуки) занимают вас школьными и внеклассными мероприятиями. Работа требует вашего безраздельного внимания.
Заключение генерального подряда на собственную конструкцию стоечной рамы — это серьезное обязательство. Это требует опыта, ресурсов и времени.
Кроме того, всегда есть предположение о риске. Для многих людей это того стоит. Вы согласны?
Если нет, мы рекомендуем запросить у профессионального строителя список надежных генеральных подрядчиков в этом районе.Поверьте нам, вы не хотите, чтобы ваш дом для постов стал следующим #PinterestFail.
3) Ответ «да» или «нет» может сэкономить ваше время и деньги
Итак, вы потратили часы на тщательное исследование каркасного дома. Вы решили, что готовы принять вызов. Вы, наконец, делаете успехи в этом контрольном списке (огромный вздох облегчения для ориентированных на задачи умов, таких как мы).
Затем из ниоткуда скрытый сюрприз пытается сорвать ваш хорошо продуманный план.Обнаружение этого непредвиденного обстоятельства раньше сэкономило бы вам столько времени и сил.
Что может пойти не так? Вот список примеров наихудшего сценария, с которыми вы можете столкнуться:
- Ваш предпочитаемый банк не будет финансировать ваш строительный проект
- Ваш профессиональный застройщик не предлагает строительство под ключ
- Ваш округ не выдает разрешения на жилые дома с определенными недостатками
Какой бы ни была проблема, важно связаться с важными сторонами, прежде чем двигаться вперед в процессе строительства.Простое «да» или «нет» может сэкономить вам время и деньги.
Получив ответы на вопросы о финансировании, разрешениях и возможности строительства, вы можете приступить к следующим шагам:
- Эскизный проект здания
- Оценка общей стоимости проекта
- Первоначальная разметка строительной площадки
- Получение необходимых разрешений
- Установка готовой отметки пола
- Подписать контракт
- Полная разметка строительной площадки
- Подготовка площадки и земляные работы
- Установка коммуникаций (трубы или провода)
- Монтаж каркаса здания
- Отделка внутренней части здания
- Очистить участок и прилегающие территории
- Добавьте последние штрихи (подъездная дорога, тротуары и озеленение)
- Страхование покупки
- Выполнение текущего обслуживания здания
Этот контрольный список представляет собой общий обзор процесса строительства от начала до конца.Обратите внимание, что общее затраченное время зависит от масштаба проекта, погоды, графика строителей и т. д.
Вот и все… наши три сюрприза, которые могут повлиять на ваше решение построить каркасный дом. Наша цель как одного из ведущих строителей амбаров на Среднем Западе — убедиться, что вы знаете о потенциальных дорожных неровностях. Вы заслуживаете того, чтобы жить в доме своей мечты, будь то каркасный дом или построенный из бревен.
Хотите посмотреть планы? Загрузите нашу книгу БЕСПЛАТНО Rural Plan Book.В этом руководстве представлены 16 подробных планов, включая различные складские, подсобные помещения и здания для хобби, разработанные с учетом того, как вы живете (или хотите жить).
Если вы видите план этажа, который привлекает ваше внимание, но вы хотели бы внести несколько незначительных изменений, просто сообщите нам об этом. Все наши структуры пост-рамок настраиваются.
Кроме того, вы можете спроектировать собственное здание с помощью нашего нового улучшенного онлайн-инструмента для 3D-проектирования. Сохраните, распечатайте или отправьте окончательный план по электронной почте семье и друзьям.
Готовы ли вы к цитате ? Отправьте нам свой дизайн, и член нашего отдела продаж позвонит вам, чтобы начать процесс оценки.
У вас есть вопросы о каркасных домах, которые не рассматриваются в этой статье? Если вам нужна помощь в проектировании и планировании, обращайтесь по телефону FBi Buildings по телефону 800.552.2981 или . Нажмите здесь, чтобы написать нам по электронной почте . Если вы готовы узнать цену, нажмите здесь, чтобы запросить коммерческое предложение , и член нашей группы по взаимодействию с клиентами поможет вам определить следующие этапы вашего проекта.
DoE Zero Energy Ready | Амарис Хоумс
Автором информации является Рэймонд Прубан, строитель зеленого дома, который задумал, спроектировал и построил этот зеленый дом.
Дом
, получивший высшую награду Министерства энергетики СШАКомпания Amaris получила множество наград Министерства энергетики США за инновации в рамках участия в домашней программе Zero Energy Ready. Строители, соревнующиеся за награду Innovation Awards, входят в 1% лучших строителей со всей страны, строящих в соответствии с самыми высокими стандартами.Премия National DoE Grand Award присуждается победителям конкурса Innovation Award и признана Департаментом энергетики лучшим домом, построенным в 2017 году в категории нестандартных спецификаций. Это важная веха для Amaris, которой мы очень гордимся.
Дизайн
Задуманный как сарай, пристроенный к старому фермерскому дому, с того момента, как вы подъезжаете к этому дому Амарис, вы понимаете, что он не шаблонный. Все, кроме. Этот ультра-энергоэффективный, экологичный дом в стиле вагона общей площадью 4 217 кв. футов.Хотя это может показаться большим для энергоэффективного дома, этот проект дома был разработан для размещения нескольких семей / нескольких поколений, когда многие люди живут под одной крышей и имеют отдельное рабочее пространство / офис для проживания дома с отдельным входом. Объединение нескольких семей и работы под одной крышей делает этот дом идеальным для больших семей, желающих жить в основном вне сети.
Этот дом площадью 2 865 кв. футов на первом уровне был продуман для покупателей, ориентированных на «возраст на месте», или покупателей с членами семьи, ограниченными в инвалидных колясках.От главного входа, гаража и основной наружной жилой площади до дома нет ступеней (нулевых барьеров). Все двери негабаритные, и главная душевая тоже без барьера.
На чердаке над основными жилыми помещениями расположены дополнительные детские спальни и полноценная ванная комната, а на чердаке над гаражом находится отдельный офис с отдельным входом.
Энергетический дизайн
Цель этого дома проекта DoE Zero Energy Ready заключалась в том, чтобы добиться чистого нулевого использования энергии путем производства как минимум 100% произведенной электроэнергии, а любой доступ, разрешенный ниже предела 120% в рамках программы Xcel Energy’s Solar Rewards, должен использоваться для компенсации счет за газ.В Миннесоте экстремальные температуры колеблются от -35 градусов в самое холодное время зимы и, возможно, 10% влажности до 95+ градусов и 95% влажности в самые жаркие дни лета. Чтобы достичь нулевой цели в этом климате, солнечные системы, как правило, очень большие. Проект солнечной системы для этого дома составлял 12,1 кВт, что было максимально разрешенным Xcel Energy. Программа Xcel Energy Solar Rewards допускает правило 120%, что означает, что вы можете производить до 120% потребностей в электроэнергии дома.
Крыша, выходящая на южную сторону на этом участке, является правильным возвышением, что означает, что длинная солнечная крыша должна проходить спереди назад.
Поскольку дом расположен на расстоянии 300 футов на большом загородном участке площадью пять акров, мы посчитали важным иметь «широкий» дом, чтобы придать ему адекватный внешний вид на улице. Идея заключалась в том, чтобы спроектировать дом с центральным входом с левым и правым крылом, создавая своего рода дом в форме буквы «Н»
.Образец «H», привязанный к фермерскому дому с концепцией прикрепленного сарая. Эта концепция дизайна предусматривала наличие двух крыш, выходящих на юг, и более чем достаточно места на крыше с солнечными батареями для размещения максимум 42 солнечных панелей, разрешенных правилом Xcel Energy Solar Rewards 120%.
Дом типа «Н» создал проблемы, связанные с тем, где лучше всего разместить механическое оборудование, которое будет обслуживать как левое, так и правое крыло дома. Было определено, что размещение механической комнаты в любом крыле в конечном итоге приведет к недостаточному обслуживанию противоположного крыла дома. Некоторое внимание было уделено двум механическим системам в двух механических помещениях, но эта стратегия не была рентабельной и не соответствовала нашей философии зеленого строительства.
Обсудив варианты с членами команды, мы пришли к идее построить механическое помещение над парадным входом в кондиционируемом помещении, которое могло бы централизованно обслуживать как правое, так и левое крыло одинаково и эффективно.Фальшпол с прорезиненной EPDM-мембраной и сливом был установлен для защиты чистых пространств внизу в случае выхода из строя механического оборудования системы на водной основе.
Плита для проектирования уклона была выбрана по нескольким причинам. Участок был очень ровным и не предлагал никаких видов ниже уровня земли или подходящего дневного света для постоянного проживания. Будучи разработанным с учетом возраста и условий проживания в нескольких семьях, мы хотели ограничить количество лестниц в доме и не хотели, чтобы люди постоянно жили ниже уровня жизни.
Поскольку дом представлял собой плиту по плану, мы решили, что пол с подогревом лучше всего подходит для комфорта жильцов, а стоимость разумна, учитывая, что изоляция в плите и бетон уже были частью запланированной базовой конструкции.
В конструкции напольного отопления на водной основе воздуховоды были размещены высоко для воздухообмена и кондиционирования воздуха в качестве основного назначения. Открытые воздуховоды были использованы в главной зоне большой комнаты в качестве архитектурной особенности дизайна.Централизованное расположение механического помещения на втором этаже позволило обеспечить централизованный возврат холодного воздуха для сводчатых зон большой комнаты и спален на чердаке, которые проходят через воздуховоды в стенах.
Этот дом поставляется с резервным генератором природного газа для всего дома, чтобы помочь с резервным питанием в течение краткосрочных периодов 30 дней или меньше.
Возможно, самая захватывающая часть этого дома заключается в том, что он был предложен с гарантией «отсутствия счетов за электроэнергию» в течение первых десяти лет, первой гарантией такого рода в Миннесоте или любом другом северном климате и, возможно, стране.За вычетом скидок на электроэнергию гарантия не включала никаких затрат на электроэнергию, газ, воду или канализацию в годовом исчислении в течение десяти полных лет. 30-летние прогнозируемые затраты на энергию были рассчитаны с использованием годового увеличения затрат на 4%. Стоимость эксплуатации дома в течение 30 лет прогнозируется на уровне 27 445 долларов (в долларах с завышенной ценой), при этом первые десять лет равны нулю. Дополнительную информацию см. в Eneregysavingscalcsfinal.pdf.
Для Амарис нет ничего необычного в том, чтобы быть впереди или мыслить дальновидно. В то время, когда этот дом был задуман и спроектирован в 2014 году и в конечном итоге построен в 2015 году, он намного опередил свое время на рынке недвижимости Миннесоты.Современный промышленный фермерский дом, такой как этот, становится все более популярным в 2020 году. Архитектура фермерского дома, сводчатые пространства, четкие линии, полы из керамогранита из амбарного дерева придали дому отчетливый современный стиль фермерского дома, а использование металлов в открытых воздуховодах и перила и т. д. придавали ей промышленный изгиб. Очень интересный дом, но это всего лишь один из креативных проектов Amaris Homes.
После того, как застройщик прожил в этом доме около четырех лет, он был выставлен на продажу в системе множественных объявлений и через девять дней продан местному бизнесмену, который нуждался в гибкости эпохи и жизни нескольких поколений.
Для получения дополнительной информации о тематическом исследовании Министерства энергетики см. брошюру Министерства энергетики США.
Home Archives — DC Structures
Комплекты
От домов в стиле амбаров до конюшен, свадебных площадок и многого другого — мы предлагаем десятки уникальных моделей зданий, разработанных для удовлетворения любых ваших потребностей.
Просмотреть все наборы Квартира Наборы для сараяКонюшня для квартиры может быть чем угодно: от конюшни с жилыми помещениями до хобби-мастерской, созданной в соответствии с вашими увлечениями.Исследуйте возможности для вашей конструкции с нашей полной линейкой комплектов для квартирных амбаров.
Узнать больше Лошадь Наборы для конюшниОбеспечьте своим лошадям безопасный и удобный дом, который облегчит вашу работу с помощью одного из наших классических комплектов для конюшни.
Узнать больше Сарай Наборы для домаПривнесите красоту классического американского сарая в свое жилое пространство с помощью набора для дома в сарае от DC Structures. Эти конструкции домов из столбов и балок гарантированно ошеломят как внутри, так и снаружи.
Узнать больше Деревянный каркас Комплекты для домаДеревянные каркасные дома пользуются популярностью за их исключительное мастерство, универсальность и долговечность. С деревянным каркасным домом от DC Structures вы можете наслаждаться великолепной резиденцией с неподвластным времени стилем.
Узнать больше Каюта КомплектыНаши классические и современные каюты могут служить гостевыми каютами, постоянными домами или чем-то еще, что вы можете себе представить. Нет предела тому, что вы можете создать с настраиваемым дизайном кабины.
Узнать больше Конный манеж КомплектыТренируйтесь в верховой езде круглый год на одном из наших крытых манежей. Имея на выбор сотни опций и улучшений, вы сможете создать идеальную арену для верховой езды для себя и своих лошадей.
Узнать большеView KitThe Canyon
Arena with Stables Kit
Garage/Workshop KitsСделайте свои увлечения приоритетом с набором гаража или мастерской от DC Structures. Создайте пространство, необходимое для лодок, транспортных средств или оборудования, одновременно повышая ценность вашей собственности.
Узнать больше Event Barn КомплектыНаши свадебные и праздничные залы создают идеальные условия для любого особого случая и являются отличной отправной точкой для вашего бизнеса.
Узнать больше Павильон и пергола КомплектыПреобразите свое открытое пространство с помощью одного из наших комплектов павильона и перголы из массивного дерева. Наши павильоны и перголы являются отличными инвестициями как для домовладельцев, так и для владельцев бизнеса.
Узнайте большеЧасто задаваемые вопросы по зданию — Boulder County
Нужно ли мне разрешение на строительство?
См. публикацию Когда мне нужно разрешение на строительство? Разрешение на строительство требуется для любого строительства, которое физически изменяет или добавляет конструкции к вашей собственности, или для работ, регулируемых кодексами округа, такими как:
- Новое здание — Примеры включают, но не ограничиваются: жилые дома, гаражи, отдельные складские помещения (если более 120 квадратных футов, свяжитесь с одним из наших планировщиков), навесы для автомобилей, амбары, коммерческие здания, сборные дома или дома на колесах.
- Дополнения – Примеры включают, но не ограничиваются: здания, бассейны, террасы, подпорные стены высотой более 48 дюймов и заборы высотой более шести футов.
- Переделки – помимо косметических, примеры включают, но не ограничиваются: преобразование гаража в семейную комнату, перекрытие кровли, гипсокартон, изоляцию, отделку подвала, замену окон и перепланировку.
- Ремонт – Любой ремонт элементов конструкции.
- Установки – Примеры включают, но не ограничиваются: дровяными печами, джакузи и солнечными коллекторами.Мы рекомендуем вам использовать форму «Спросите планировщика», чтобы определить, может ли потребоваться отдельный процесс планирования до подачи заявки на получение разрешения на строительство.
Каковы требования к кровле?
Требуется разрешение на установку нового или замены кровельного покрытия. Ниже приведены общие требования к кровле:
- Кровельное покрытие или сборка класса A в зоне лесных пожаров 1. (См. карту зоны лесных пожаров округа Боулдер)
- Кровельное покрытие класса B (минимум) в зоне лесных пожаров 2.
- В зоне лесных пожаров 2: допускаются деревянная тряска и черепица, но они должны быть огнестойкими как минимум класса B, нанесенными на заводе.
- Ледяной и водяной щит не требуется, за исключением случаев, когда имеются доказательства предыдущего повреждения из-за воздействия ледяной запруды или когда существует явная вероятность повреждения из-за ледяной запруды, положения разделов IRC R905.2.7.1, R905.4.3 .1, R905.5.3.1, R905.6.3.1, R905.7.3.1 и R905.8.3.1 или IBC 1507.2.8.2, в зависимости от обстоятельств.
- Подложка и скорость ветра более 110 миль в час в соответствии с положениями IBC 15070803.1 или IRC 905.7.3.2, в зависимости от обстоятельств. См. Карты снеговой нагрузки и скорости ветра округа Боулдер. №
- Для битумной черепицы: используйте гвозди для сильного ветра, изготовленные производителем.
- Для жилых и коммерческих помещений требуется канавка и грабельный капельник.
- Обшивка задней крыши в соответствии с разделами R907.5 и R907.6 Международного жилищного кодекса.
- Осмотр середины крыши не требуется.
- Для осмотра должен быть обеспечен выход на крышу или лестница.
- Водосточные желоба сняты для замены кровли и должны быть переустановлены для осмотра.
- Коммерческие заявки на замену крыши требуют представления плана и его проверки. Предоставьте утвержденный перечень данных производителя кровельного покрытия с классификацией пожарной опасности в соответствии с IBC 1505 и сведениями о сборке. Может потребоваться дополнительная информация, включая классификацию использования здания и тип конструкции. Раздел 3303.2 IBC требует защиты пешеходов во время отрыва, погрузки и нанесения.
Что требуется для получения разрешения на строительство?
Пожалуйста, ознакомьтесь с разрешениями на строительство, чтобы определить, какой тип разрешения на строительство вам может понадобиться.Дополнительную информацию см. в разделе Разрешения на строительство жилых домов. EZ BP (упрощенные разрешения на строительство) — это разрешения на строительство жилых домов, на которые можно подать заявку и которые не требуют представления планов.
Независимо от местоположения или типа проекта, для стандартного разрешения на строительство требуется следующее:
Для новых зданий, пристроек и реконструкции может потребоваться следующее:
- Отчет о почвах . Отчеты о почвах могут потребоваться в горах и всегда необходимы на равнинах. Этот район определяется как к востоку от Бродвея и к востоку от шоссе Предгорья.
- Гарантийный талон — копия вашего гарантийного талонного листа, который был зарегистрирован в Офисе клерка и регистратора округа в отношении нового жилья и/или недавно приобретенного имущества.
- Свидетельство о воде – Свидетельство о подаче воды в виде водопроводного крана или письмо-обязательство от отдела водоснабжения; или копию утвержденного разрешения на скважину из Инженерного управления штата Колорадо в Денвере. В Управление государственного инженера можно позвонить по телефону 303-866-3587.
- Свидетельство санитарии – Свидетельство санитарии, такое как канализационный кран или письмо-обязательство от санитарного агентства; или копию формы разрешения на сепсис из Департамента здравоохранения округа Боулдер.Всякий раз, когда пристройка увеличивает общее количество спален или затрагивает санитарно-технические сооружения, требуется одобрение Департамента здравоохранения.
- Доступ — Если ваша собственность не выходит на окружную дорогу, указанную на официальной дорожной карте округа Боулдер, может потребоваться предоставить дополнительную информацию, такую как зарегистрированные сервитуты доступа или другие доказательства законного доступа. Чтобы инспекторам было легче найти вашу собственность, следует также предоставить карту местоположения, если вы не находитесь в легкодоступном месте.
Что включает в себя полный комплект строительных планов?
Требуемая информация зависит от типа и объема вашего проекта. Однако в целом:
- Ваш запланированный проект должен быть подготовлен в графической форме с минимальным масштабом ¼”.
- Строительные чертежи или планы должны отображать все предполагаемые работы и детали соответствия Поправкам к Строительному кодексу округа Боулдер и Кодексу землепользования округа Боулдер.
- Два полных комплекта чертежей должны быть представлены в Строительный отдел для рассмотрения и один цифровой файл (PDF) на запрашиваемое разрешение на строительство.
- Планы и спецификации должны быть достаточно четкими, чтобы указать характер и объем предлагаемой работы.
- Неполные планы будут возвращены заявителю без рассмотрения.
Используйте следующие контрольные списки для конкретных типов проектов:
Обратите внимание:
- Большая часть равнинной части округа состоит из обширных почв и высоких грунтовых вод. По этой причине отчет о почвах требуется для новых зданий в районах, отличных от горных.
- Для жилых проектов, создающих: новые, дополняющие или реконструирующие кондиционированные площади, полная заявка должна включать все детали проекта в соответствии с правилами BuildSmart округа Боулдер (IRC, глава 11: Энергоэффективность).
- Для проектов, расположенных в зоне лесных пожаров 1 (в соответствии с поправками к Строительному кодексу округа Боулдер), материалы для наружных строительных работ регулируются. Предлагаемые внешние материалы должны быть четко обозначены на планах.
Как долго действует разрешение?
Выданные разрешения действуют бессрочно, при условии, что работа начата в течение 180 дней с момента выдачи и не будет приостановлена или прекращена в течение 180 дней.
Когда мне нужны проверки?
Тип и количество обязательных проверок зависит от сложности вашего проекта. Все запросы на планирование инспекции должны быть получены до 15:30. за рабочий день до требуемой инспекции, чтобы обеспечить эффективное планирование и маршрутизацию инспекторов. Позвоните в Службу безопасности и инспекции зданий по телефону 303-441-3926, чтобы запланировать инспекцию. В рамках вашего строительного проекта может потребоваться предоставление отчетов об инспекциях и обзорах.К ним могут относиться:
- Высотные съемки
- Обследование неудач
- Инженерный кессон
- Отчеты об осмотре основания или фундамента и
- Отчеты об инспекции пожарных спринклеров
Могу ли я передумать или внести изменения?
Да.
- Если вам необходимо внести изменения в форму заявки или планы строительства до их выдачи, просто обратитесь за помощью в Службу безопасности и инспекции зданий.
- Если вы хотите внести незначительные изменения в свои утвержденные планы, отправьте два набора поправок в Группу служб безопасности и инспекции зданий.
- Пересмотренные планы будут рассмотрены, и одна из утвержденных копий будет возвращена вам.
- Утвержденные версии должны находиться на месте для проверки.
- В случае обширных изменений может потребоваться дополнительная плата за проверку плана.
Для крупных изменений плана может потребоваться совершенно новое разрешение. Если выданное разрешение необходимо отозвать и заменить новым разрешением, вы можете иметь право на возврат до 80% первоначально уплаченного сбора за разрешение.
Если моя собственность находится в черте города, могу ли я получить разрешение на строительство от округа Боулдер?
Округ Боулдер не обладает юрисдикцией по землепользованию над городами округа Боулдер.Тем не менее, у нас есть соглашение с Джеймстауном о рассмотрении разрешений на строительство. Если у вас есть вопросы, касающиеся строительства, соблюдения норм, планирования или зонирования в городе или городе округа Боулдер, обратитесь к контактным лицам муниципалитета округа Боулдер.
Как мне стать лицензированным подрядчиком?
Требования и условия для выдачи лицензии подрядчиков округа Боулдер включают:
- Подача заполненной заявки на получение лицензии подрядчика
- Доказательство того, что вы сдали соответствующий экзамен, или предоставить копию действительной лицензии, выданной юрисдикцией, участвующей в ICC
- Подтверждение компенсации работнику и страхование ответственности подрядчика
- Доказательство законного присутствия
- Лицензионный сбор уплачен
У вас должны быть все эти необходимые документы на момент подачи заявки, чтобы подать заявку на лицензию.После того, как ваша заявка будет принята, выдача лицензии займет два рабочих дня.
Что означает термин «неудача»?
Отступ — это фиксированное расстояние от границы вашего участка или, в некоторых случаях, до осевой линии шоссе. Неудачи варьируются в зависимости от района зонирования, в котором находится ваша собственность; находится ли ваш проект в плановой разработке блока (PUD) или в новом подразделении; и находитесь ли вы на угловом участке. Если вы сомневаетесь, свяжитесь с нашим офисом по телефону 303-441-3930.Дополнительную информацию см. в публикации «Ярды, линии участков и неудачи».
При подаче заявки на строительство план участка пересматривается, чтобы определить, соответствует ли размещение конструкции минимальным отступам. Если ваш план сайта не масштабируется и вы не укажете измерение, мы можем отклонить вашу заявку как неполную.
Проверка неудачи
Если ваше приложение показывает, что вы размещаете свою конструкцию точно или в пределах 20% от минимального отступа, что является вашим правом, имейте в виду, что нам потребуется лицензированный геодезист, чтобы убедиться, что ваш фундамент / конструкция правильно размещены при этом минимальном отступе, потому что у вас нет погрешности.

Для того, чтобы справиться с этим необходимо обеспечить качественную влагоизоляцию.





Возможны декорации в виде фальшколонн, светильников, статуэток.
Лавки в предбаннике, веники в парилке, пучки зверобоя и полынника в комнате отдыха.
Приглушенные темные холодные тона, четкая геометрия, наличие натурального камня, металла, дерева, стекла. При этом прослеживается грамотное сочетание традиций и современных технологий.
Можно посчитать, что это одно и то же, что и русский стиль, однако разница имеется. Рустик – это природные материалы в грубой обработке, иногда и вовсе не обработанные. При этом приветствуется сочетание натурального «рваного» камня и состаренного бревна, кованой, бронзовой, посуды, латуни и меди.
Если она небольших размеров, то достаточно одного месяца.
Здесь баня собрана из брёвен, а веранда из кирпича. Это касается не только стены, но и опорных столбов, подпирающих крышу.
Благодаря угловой форме внутри помещения будет достаточно пространства для размещения как самой бани, так и прилегающей зоны отдыха.
Для комнаты отдыха необязательно пристраивать полноценный второй этаж, можно обойтись просторной мансардой под односкатной крышей и одной пристроенной стеной над баней.
Душевая кабина или обливание холодной водой не приносят столько радости, сколько возможность окунуться в воду сразу после парной. Если поблизости нет водоема, такую возможность может предоставить даже самая простенькая емкость с водой. Небольшого размера бассейн можно установить прямо в углублении веранды. Сооружение полноценного бассейна из пеноблоков – задача технически сложная, требующая соблюдения множества нюансов и разработки отдельного проекта. Упростить задачу можно выбором покупной пластиковой купели на 10-20 кв. метров.
Этот способ подходит для проблемных почв с высоким уровнем грунтовых вод. Пробуриваются скважины в запланированных проектом точках, укладывается гидроизоляция в виде рубероидного конуса, заливается бетон. На поверхности сваи соединяются между собой ростверком – железобетонной рамой.
Также стоит заранее узнать, надо ли регистрировать баню , и при необходимости принять необходимые меры.



Незаменимое дополнение на даче без жилого дома и возможность разгрузить основную кухню при его наличии.