Перепланировка однокомнатной квартиры: Перепланировка однокомнатной квартиры в двухкомнатную: 4 совета
Перепланировка однокомнатной квартиры: получение разрешения и возможности
Сделать уютную гостиную, обустроить комфортные спальные места и рабочие зоны, установить хотя бы небольшую гардеробную, а заодно найти место для посуды, книг и детских игрушек – возможно ли все это в однокомнатной квартире?
Этот вопрос актуален для многих семей, собственники квартир все чаще приходят к выводу, что пространство можно организовать по-другому, лучше, чем в исходном варианте. В рамках настоящей статьи поговорим о возможностях, которые открываются перед владельцами жилья, а также о правилах, которые необходимо соблюдать при проведении перепланировки.
Жизненные стандарты, потенциал дизайнеров и обилие современных строительных материалов открывают новые возможности для повышения качества жизни в ограниченном пространстве «однушки». Однако прежде чем вызывать ремонтную бригаду, готовую крушить стены и всячески преобразовывать пространство, стоит понимать, как перепланировать однокомнатную квартиру, чтобы повысить уровень комфорта и не вступить при этом в конфликт с законом.
Коротко – о самом важном: когда изменения нужно узаконить
Перепланировку однокомнатной квартиры нужно согласовывать с властями, и есть несколько способов это сделать – можно получить разрешение предварительно или же изменения можно узаконить по факту, в том числе и судебном порядке.
Если поклейка обоев, замена стеклопакетов и прочие работы, которые не отражаются на конфигурации жилья, в разрешениях не нуждаются, то, например, перемещение дверного проема, совмещение санузла, превращение коридора в часть жилого пространства студии – все это требует разработки проекта и утверждения его в соответствующих инстанциях.
Для этого придется предпринять следующие шаги:
• запросить в органах инвентаризации технический паспорт квартиры;
• разработать проект или эскиз будущих изменений;
• обратиться с заявлением в местную администрацию и предоставить весь пакет документов;
• дождаться разрешения;
• выполнить работы по утвержденному проекту;
• заказать разработку нового кадастрового плана;
• зарегистрировать перепланировку в Росреестре.
Наличие ограничений: почему важно получить разрешение на перепланировку
Преимущество предварительного получения разрешения на перепланировку заключается том, что собственник уже на этапе подготовке получает информацию о том, что преобразования можно будет зарегистрировать. Дело в том, что существуют некоторые преобразования которые узаконить невозможно в принципе, и если это выяснится уже после проведения работ, нужно будет привести все к исходному виду, что связано с определенными расходами.
Собственно, в такой ситуации оказываются владельцы жилья, которые приняли решение объединить с комнатой балкон, сделать из однокомнатной квартиры «двушку» путем возведения капитальной глухой перегородки или совместить с жилым пространством кухню, где установлена газовая плита. Нельзя также перенести санузел или расширить его за счет жилой зоны. Даже незначительные изменения в систему подачи газа запрещены категорически. Кроме того, для каждого типа жилья в разных регионах могут быть дополнительные ограничения.
О запретах и возможностях лучше узнать заранее, проще всего это сделать путем заказа проекта перепланировки в лицензированной проектной компании. Инженеры проведут оценку и проконсультируют относительно возможности реализовать задуманное с технической точки зрения и с точки зрения законодательных норм и правил.
Процесс согласования затратный и довольно-таки утомительный, но успешное прохождение этой процедуры станет дополнительной гарантией властей. Если в доме что-нибудь произойдет, например, с коммуникациями, никто не обвинит вас в том, что причиной аварии стала ваша перепланировка. Выдавая разрешение, принимая работу и фиксируя информацию в Росреестре, власти одновременно берут на себя ответственность за последствия вашей перепланировки.
Перепланировка для ипотечника
Важно помнить также, что, если вы взяли квартиру в ипотеку, стоит либо подождать с радикальными преобразованиями, либо обратиться в банк с просьбой о разрешении перепланировки.
Пока кредит не погашен, финансовая организация держит под контролем состояние квартиры, и неузаконенная перепланировка может вызвать множество вопросов и даже привести к разрыву договора. Официально согласовать перепланировку без участия банка не получится, поскольку владелец квартиры юридически пока не являетесь полноценным собственником жилья.
Перепланировка «однушки» в новостройке
Огромным преимуществом большинства новостроек, даже если речь идет о сравнительно недорогих квартирах «эконом-класса», являются увеличенная площадь и продуманное расположение несущих стен, которые в большинстве случаев не являются преградой для перепланировки.
Многие «однушки» в новых домах по площади сравнимы с «двушками» прежних серий, застройщики, помимо жилой зоны, кухни и санузлов часто предусматривают еще и просторные гардеробные. Собственник вправе решать, использовать их по назначению или задействовать эти квадратные метры в общем жилом пространстве, компенсировав отсутствие специального помещения для вещей установкой удобных шкафов-купе.
Если квартира приобретается в строящемся доме, детали можно планировать и оговаривать заранее. Когда жилье куплено уже готовым, начать надо с изучения возможностей и преимуществ. Для желающих расширить санузел и кухню ключевой вопрос будет заключаться в необходимости обеспечения должной гидроизоляции. Если гидроизоляция «мокрых зон» выполнена качественно не только на полу, но и в нижней части стен, риск затопить соседей сводится к минимуму.
Часто в «однушках» обустраивается единое студийное пространство с выделением отдельных функциональных зон. В Сети можно найти множество готовых дизайнерских решений с конкретными алгоритмами.
Однокомнатная квартира в старом доме: возможности перепланировки
Хрущевки, гостинки, малосемейки – в жилье подобных форматов квадратных метров минимальное количество, и это означает, что при организации пространства для жизни должен быть учтен каждый сантиметр. Однако даже безнадежный интерьер при профессиональном подходе можно существенно улучшить, не выходя за рамки существующих нормативов и находя даже крошечные лазейки в официальных ограничениях. Есть основное правило: чем меньше площадь, тем больше внимания приходится уделять нюансам.
Прежде всего, стоит определиться с личными предпочтениями и потребностями каждого из домочадцев, особенно если в крошечной квартирке приходится уживаться семейству с разным ритмом жизни.
Кстати, при оформлении перепланировки понадобится письменное согласие каждого из собственников.
Вполне гармоничным для целеустремленного карьериста – абсолютно минималистический интерьер с торжеством предельной функциональности, однако супруге, возможно, будет более интересным наличие будуара. Можно ли совместить и то, и другое? Хороший дизайнер сделает все возможное, тем более что разумное смешение стилей нынче в моде. А вот насколько качественно будут учтены все требования, зависит от их максимальной детализации.
Если нет возможности привлечь профессионального дизайнера, можно составить первоначальный план самостоятельно, найдя готовые проекты в Сети.
Перед тем, как начать проектирование изменений, стоит вникнуть в технический план и выяснить, какие именно стены являются несущими, поскольку при перепланировке их трогать нельзя даже при огромном желании. В старых домах некоторых серий несущими оказываются стены, разделяющие комнату и кухню. В этом случае с идеей об их устранении для объединения помещений придется распрощаться и подумать о других вариантах. Например, максимальном задействовании коридора и полноценном утеплении балкона, где можно обустроить зону отдыха и даже рабочую зону.
Своими силами или с помощью профессионалов?
Если при ограниченном временном ресурсе имеется достаточно денег, которые можно направить на достижение идеального результата, нет смысла тратить энергию на самодеятельность. Лучше сразу обратиться в одну из компаний «полного цикла», которая возьмет на себя ответственность за все и сразу: разработку дизайнерского плана, составление сметы, согласование, выполнение всех работ и даже за доставку и установку мебели.
Поскольку перепланирование однокомнатной квартиры является трудоемким процессом, требующим технических и правовых знаний, хорошего вкуса, а также безупречного пространственного мышления, для многих семей оказывается более правильным решением немного отложить работы и даже при скромном бюджете привлечь квалифицированных специалистов. Тем более что путешествия по инстанциям и исправление допущенных ошибок может обойтись намного дороже.
Заключение
Продумывая перепланировку до мельчайших нюансов, узаконив ее и зарегистрировав изменения, можно достичь не только существенного улучшения качества жизни, но и увеличить стоимость своей однокомнатной квартиры на рынке недвижимости.
Спрос на однокомнатные квартиры остается высоким, а значит, дизайнеры и в дальнейшем будут оттачивать мастерство, создавая новые варианты перепланировки. Законодатели и эксперты тоже не дремлют, находя изъяны в правовых нормах и приводя их в соответствие с текущими реалиями.
Выбирая подходящий вариант переделки однокомнатной квартиры, стоит учитывать имеющиеся документальные ограничения и в любых сложных и непонятных случаях консультироваться со специалистами.
Игорь Василенко
Перепланировка однокомнатной квартиры — особенности
Надоела старая квартира, но переезжать не хочется? В квартире есть неиспользуемая площадь, а хочется эргономики и удобства? Жизнь в родном доме опротивела, и хочется перемен? В таком случае перепланировка – все, что вам нужно!
Сегодня поговорим о перепланировках в однушках. Опишем особенности однокомнатных квартир, популярные варианты перепланировок, расскажем о некоторых хитростях.
Главное, что надо упомянуть, — перепланировку однокомнатной квартиры поручите опытным спецам. Не только дизайнеру, но и строителям. Лучше, если все это сделает одна компания. Тогда будет выдержан единый стиль помещений, ремонт проведен быстро, качественно, а результат можно будет контролировать поэтапно.
Особенности однокомнатной квартиры
Первая трудность с точки зрения перепланировки — то, что в такой квартире одно окно. Если разделить общую площадь на две комнаты, то одна из них будет без естественного освещения.
Второй момент связан с кухней. Популярный вариант соединения кухни с жилой комнатой может быть оспорен при узаконивании перепланировки. По нормам законодательства, газофицированные помещения нельзя соединять напрямую с жилыми (должна быть дверь).
Третья особенность связана с санузлом. В отличие от хрущевки, где санузел совмещенный, в однокомнатных квартирах он раздельный. У хозяев всегда есть соблазн отхватить кусочек от коридора для ванной комнаты. Здесь опять на страже санитарные нормы изменения жилых помещений.
Мокрые зоны не разрешается переносить в коридор, иначе БТИ может не утвердить перепланировку и закрасит поэтажный план красными линиями. Это приведет к разбирательствам, волоките, и, в конечном счете, потере денег и времени.
Четвертый вопрос — как визуально расширить площадь. Дизайнеры обычно применяют светлые декоративные материалы, но дальше мы расскажем, как это сделать более эффективно.
Итак, плавно перейдем к вариантам перепланировок однокомнатной квартиры.
Из однушки — двушку
При огромном разнообразии вариантов мы отобрали самый распространенный, когда из однокомнатной квартиры делается двухкомнатная.
Секрет! Если не трогать несущие стены (обычно это внешние цокольные, внутренние, выходящие в парадное), то узаконивать ремонт в большинстве случаев не надо.
Как мы упоминали, большинство однокомнатных квартир «поставляется» владельцу с одним окном. Вариант разделения вдоль сразу отвергаем. Половинка окна в каждой комнате не спасет от ощущения тесноты. Значит, надо пожертвовать этим окном для второй комнаты, чтобы сохранить целостность интерьера. Удачным решением будет превращение однокомнатной в студию с одной спальней.
Перегородка спальной комнаты делается из гипсокартона в металлическом профиле. Это самый простой, недорогой и долговечный материал. Преимуществом гипсокартона является идеально ровная поверхность, которую можно впоследствии закрасить либо оклеить обоями. Несмотря на легкий вес конструкции, перегородка весьма прочная и можно установить межкомнатную дверь.
Комплексный ремонт квартир под ключ
Всё включено
В стоимость ремонта входит всё: работы, материалы, документы.Без вашего участия
После согласования проекта мы беспокоим хозяев только при сдаче ремонта.Цена известна заранее
Стоимость ремонта фиксируется в договоре.Фиксированный срок ремонта
Ремонт квартиры под ключ за 3,5 месяца. Срок закреплен в договоре.
Подробнее о Сделано
Вместо спальни можно обустроить детскую или рабочий кабинет.
Дополнительно можно проложить звукоизоляционную прослойку. Поскольку полученная вторая комната лишена источника света, комфорт будет зависеть от правильно размещенных источников света. Это задача дизайнера — расположить светильники так, чтобы они не слепили и, вместе с тем, максимально освещали всю площадь.
В некоторых случаях в перегородке делают искусственное окно. Еще одно хорошее решение — дверь с прозрачной вставкой.
Если перегородку монтировать не получится, обходятся элегантной ширмой.
Важно! При составлении проекта дизайнер обязан учесть тот факт, что разделение однокомнатной квартиры на две комнаты обязательно сократит просторность жилого помещения.
Чуть ли не единственным выходом здесь является демонтаж перегородки кухни с комнатой. Так квартира превращается в полустудию.
Какие ставить двери, шкафы?
Раздвижные двери смотрятся необычно и моментально убирают разграничение пространства внутри перепланировки.
За счет добавления зеркал, прозрачных вставок, фигурного стекла такие двери оживляют интерьер, придавая ему законченность и элегантность. И, разумеется, раздвижная дверь экономит жилую площадь. Еще эти двери можно ставить где угодно в перегородке, а не обязательно посередине проема.
Что касается шкафов, наиболее удачным вариантом выступает шкаф-купе.
Он может выступать как:
-
перегородка между жилыми зонами;
-
«стенка» в традиционном понимании хранилища во всю стену;
-
двухстороннее хранилище — открывается с обеих сторон;
-
проходная дверь — внутри устанавливается дверной проем для перехода в другую комнату.
Если дверь остеклить, то свет снаружи будет проникать в комнату.
У шкафа-купе есть один большой минус — он громоздкий.
Использовать его вместо перегородки из гипсокартона, значит, занимать в 2-3 раза больше полезной площади. Но шкаф все равно нужен для хранения одежды, постельного белья, аксессуаров. Пусть лучше он будет встроенным, чем обычным.
При стандартной высоте квартиры 2,50 м целесообразно шкаф сделать до потолка. Организация вещей внутри хотя не относится к перепланировке, но помогает привыкнуть к ограничению пространства. На нижних, средних ярусах лучше всего хранить вещи, которыми пользуемся каждый день. На верхние помещать габаритные предметы и сезонную одежду.
При перепланировке однокомнатной хрущевки иногда стеллаж или шкаф-купе — более приемлемый вариант для разделения зон, чем стационарная перегородка. Особенно, если в квартире живет один человек.
Такой стеллаж играет роль не просто перегородки, а ценного предмета интерьера. Украсив полочки безделушками, вазами, цветами, книгами, картинками, обычный стеллаж можно превратить в оригинальную мебель.
Кухня
Ключевой момент в перепланировке однокомнатной квартиры. Всегда возникает дилемма — сохранить кухню или пожертвовать ею в угоду комнат. Для европейца студия, то есть гостиная, совмещенная с кухней, давно стала обыденностью. В малогабаритных современных квартирах — это единственно возможная опция.
Важно! Если перегородка, разделяющая квартиру на кухню и комнату, несущая, то сначала надо урегулировать этот вопрос с районным комитетом по архитектуре.
Скорее всего, придется не просто пробить в ней проем (при положительном ответе властей), но и укрепить дополнительными балками.
Второе препятствие — газовая плита. Даже установка вытяжки вряд ли смягчит инспектора газового хозяйства, когда он придет проверять переделку. В перечне правил ПП №508 (для Москвы и некоторых городов Подмосковья) запрещено совмещать кухню с жилой зоной при наличии газовой плиты.
Выхода два:
Поэтому наш совет: перед совмещением кухни с комнатой проконсультируйтесь в компании, которая занимается узакониванием самостроев.
Вам нужен ремонт?
Мы отремонтировали уже больше 500 квартир, с удовольствием поможем и вам
Узнать стоимость ремонта
Как быть с лоджиями?
Еще один болезненный вопрос связан с балконами. При наличии балкона перед кухней всегда будет желание разрушить внешнюю перегородку и совместить кухню с лоджией.
Идея заманчивая, многие ее реализуют на практике. Зато потом сталкиваются с суровой реальностью в виде санитарных норм действующего законодательства. В многоквартирном доме любые манипуляции с цокольными стенами запрещены законом. Если инспектор БТИ заметит такое нарушение, то перепланировка будет запрещена вплоть до восстановления исходного состояния стен. За счет хозяина, между прочим. И даже суд всегда будет на стороне государства в вопросе безопасности здания.
Источник: refite.ru
Поэтому, как ни заманчиво делать проемы или вовсе убирать внешнюю стену, лучше хорошо подумать о последствиях. Здесь очень важно узнать мнение специалиста, а не просто строителя.
Самый действенный способ — перед перепланировкой пригласить на консультацию в квартиру инспектора БТИ.
Двухуровневая квартира
В некоторых домах, в простонародье называемых «сталинками», высота потолков достигает 3,8-4 м. Если отрешиться от того, что это выглядит круто и все такое, то неизбежен вывод — огромное пространство «гуляет» над головой. Почему бы не использовать его с толком, превратив в двухуровневую квартиру? Вариант особо актуален для длинных однокомнатных квартир. Например, передача офисов в жилой фонд порождает множество уродливых изогнутых узких помещений, но с высокими потолками.
Если учесть, что стандартная высота до потолка в городской квартире не превышает 2,5 метров, то при наличии 4-х метрового пространства можно создать вполне комфортный «второй» этаж. Конечно, придется понизить потолок в основной комнате, но не во всех местах, а только для монтажа несущих конструкций.
Понадобятся инженерные расчеты сопротивления материалов, чтобы правильно рассчитать нагрузку на второй ярус.
Важно учитывать воздушные потоки и правильно устроить вентиляцию. Но все это технические детали. Если судить с потребительской точки зрения, то на выходе получаем дополнительное помещение просто на ровном месте.
Сложность возникает с лестницей. Успешно решается витыми лестницами, хотя подъем может быть затруднителен для пожилых людей и маленьких детей.
Что же разместить на втором ярусе? Поскольку его высота будет все-таки не очень комфортной, здесь можно сделать спальню, встроенные шкафы, кабинет. Тут хорошо смотреть телевизор, поставить широкий диван, обустроить гостевое место.
Чем хорош комплексный ремонт?
В начале статьи мы упомянули о некоторых преимуществах комплексного ремонта. Теперь, перечислив особенности перепланировки однокомнатной квартиры, мы взываем к читателю подумать о сложности этой затеи.
Делать своими силами или с помощью специалистов — выбор владельца квартиры. Укажем на преимущества и недостатки обоих способов.
|
Своими силами |
Дешево, но сердито — качество ремонта зависит от «пряморукости» |
|
Компания |
Дороже, но красиво — качество ремонта всегда лучше |
|
Своими силами |
Потеря времени на закупку материалов |
|
Компания |
Материалы закупают централизованно |
|
Своими силами |
Время на ремонт невозможно точно спланировать |
|
Компания |
Время на ремонт спланировано, заранее утверждено |
|
Своими силами |
При недостатке опыта придется часто переделывать |
|
Компания |
Бывает, но редко |
|
Своими силами |
Проект перепланировки разработан кустарно |
|
Компания |
Привлечен профессиональный дизайнер |
Этот список можно продолжать хоть до бесконечности.
Вывод: при бешеном темпе современной жизни вырывать из нее 2-3 месяца своего времени на перепланировку мало кто сможет. Даже если владельцы квартиры строители, и знают, что делают.
Остается один вопрос: деньги. Стоимость ремонта при учете других факторов не всегда определяет ценность затраченного труда. Если квартиру нужно обновить быстро, в ней постоянно кто-то живет, то вариант с компанией — самый выгодный как в плане денег, так и скорости сроков.
Если мы посмотрим на любой этап перепланировки, то выбор в пользу компании становится очевидным.
Итак, озвучим краткие выводы:
-
перепланировка однокомнатной квартиры проводится с учетом ее особенностей;
-
необходим дизайн-проект, лучше всего сделанный профессиональным архитектором;
-
должны быть учтены не только нюансы самой квартиры, но предполагаемые переделки, которые надо будет узаконить;
-
если дизайн предполагает демонтаж, разрушение, перемещение несущих стен, обязательна консультация специалиста БТИ по этому вопросу;
-
если делается второй этаж, должны быть расчеты прочности конструкций.
С помощью профессиональной компании большая часть сложностей пройдет мимо владельца квартиры. Ему останется лишь контролировать этапы, подтвердить выполнение договора и расплатиться за работу, и дальше жить в светлом, уютном, комфортном помещении.
красивых идей для дизайна интерьера
Распределение жилой площади в однокомнатной квартире – сложная, но решаемая задача. Существует ряд дизайнерских приемов, позволяющих заполнить ограниченные квадратные метры с максимальной пользой. Так, для объединения комнат придется снести некоторые стены, а зонирование единой комнаты легко осуществить с помощью тонких перегородок, ширм и даже крупной мебели. Зачастую перепланировка однокомнатной квартиры является лучшим способом обновить интерьер, сделать его более современным и комфортным для жизни.
Что такое перепланировка?
В процессе изменения конфигурации стен (внутренних перегородок) также меняется количество и расположение комнат. В связи с этим иногда возникает необходимость переноса коммуникаций – электропроводки, розеток, выключателей, водопровода, отопления.
Учитывая взаимосвязанность всех этих систем, особенно в многоэтажных домах, перепланировка может начинаться только после утверждения проекта в предусмотренных нормативными актами органах. Спонтанные действия могут повлечь за собой достаточно большие штрафы, к тому же придется возмещать ущерб соседям или зданию в целом.
Во избежание риска несчастных случаев необходимо воздерживаться от любого вмешательства в несущие элементы конструкции. Обширный список запретов касается расположения так называемых «мокрых» зон — санузел, ванную, кухонную мойку нельзя располагать над жилой частью квартиры. Чтобы перепланировка прошла успешно, лучше заказать услуги профессионалов, имеющих опыт выполнения подобных задач.
Объединение помещений
Вариантов объединения отдельных комнат в однокомнатной квартире немного: это может быть совмещение с кухней, лоджией и, возможно, частью коридора. Снос перегородок легко превратит скучную однушку в фэшн-студию, добавив, помимо нескольких метров свободного пространства, еще больше естественного света и воздуха.
Совмещение с кухней
Довольно удобное решение, позволяющее общаться с гостями во время готовки, смотреть телевизор или наблюдать за играющими в комнате детьми. Визуально разграничьте зоны с помощью отделки, мебели, разноуровневых полов, фигурных потолков. Очень часто между кухней и гостевой частью располагают барную стойку островного типа, высокий обеденный стол или диван.
Объединение комнаты с лоджией
Этот метод дает возможность увеличить полезный метраж и открыть доступ к солнечному свету. На получившейся площадке можно оборудовать рабочее место, сделать мини-столовую или мягкий уголок для отдыха.
Единственная проблема, с которой придется столкнуться, это вопрос утепления, ведь сама лоджия относится к холодным помещениям.
Разделение на две комнаты
Превратить однокомнатную квартиру в полноценную двухкомнатную можно только при наличии большой площади и, желательно, нескольких окон. Оставлять часть жилья без естественного освещения и вентиляции не рекомендуется – это ухудшает микроклимат, поэтому находиться в таком помещении будет некомфортно.
Возведение внутренних стен также возможно, когда есть желание разделить просторную студию на более закрытые помещения. В этом случае лучше использовать тонкие материалы, например, гипсокартон, ДСП, фанеру, пластик, стекло. Двери к таким вариантам легкие, раздвижные в сторону по принципу купе.
Зонирование пространства
Компромисс между трудоемкой перепланировкой однокомнатной квартиры и старым неуютным интерьером – зонирование. При этом вам не придется разрушать стены, менять коммуникации или начинать новое строительство.
Проявив творческий подход, дизайн можно преобразить с минимальными затратами финансов, времени и сил.
Перегородки
Самый быстрый и удобный способ разделить пространство на функциональные секции. Они легкие по весу, легко собираются и снимаются, пропускают воздух и свет достаточно свободно. Разнообразие фактур, цветов, материалов и стилей внутренних перегородок действительно впечатляет. Только виды конструкций включают частичные и полные (на всю стену от пола до потолка), стационарные и мобильные, раздвижные, распашные, слайдеры, жалюзи и другие необычные варианты.
Для зонирования однокомнатных квартир часто используют максимально облегченные решения: полупрозрачные или ажурные ширмы из стекла, акрила, ткани, дерева; стильные японские шторы; компактные проемы из гипсокартона. Последние часто оформляются в виде стеллажей или стенок с окнами, в которые монтируется дополнительная подсветка и размещается декор.
Устройство подиума
Один из лучших дизайнерских приемов для эффективного заполнения пространства в компактной однушке.
Уровень второго этажа идеален для расположения спальной зоны, небольшого детского уголка, установки шкафа-купе. Внутри конструкции вполне можно спрятать выдвижную кровать или оборудовать несколько ящиков для хранения вещей (обуви, зимней одежды, игрушек, постельных принадлежностей и т. д.). Подиум легко сочетается с любыми перегородками, хотя и без них будет смотреться довольно стильно.
Перепланировка однокомнатной квартиры — фото идеи
Еще больше интересных вариантов перепланировки однокомнатной квартиры вы можете увидеть в коллекции фото, собранной на нашем сайте. Представленные идеи будут полезны всем, кто хочет использовать свободное пространство жилья с максимальным комфортом. В фотогалерее вы найдете множество полезных идей, касающихся объединения комнаты с кухней, лоджией, прихожей, а также способов зонирования помещений с помощью перегородок, шкафов, стеллажей и подиумов.
Перепланировка однокомнатной квартиры в домах П-44Т
Вроде бы: что делать с квартирой, в которой идет перепланировка? На самом деле варианты есть.
Интересные решения мы сделали, например, на верхних этажах серии П-44Т (где влияние на соседей по квартире минимально). Иногда владельцы квартир на нижних этажах также дают письменное согласие на так называемое «добровольное ухудшение жилищных условий» — например, в случаях, когда кухня расширяется за счет санузла.
В этой статье мы представляем такие решения для квартиры П-44Т. Даже в таких условиях (когда все стены в квартире несущие) за счет минимальной грамотной перепланировки можно организовать необходимую функциональную зону: как для одного человека, так и для семьи с детьми.
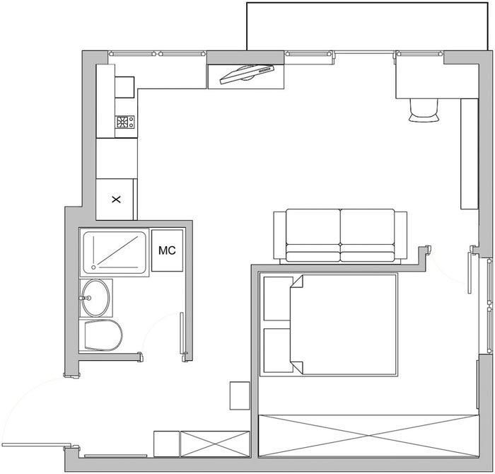
Наталья Преображенская | Студия «Уютная квартира»
Первоначальная планировка
Двухкомнатная квартира Н-44Т, в зависимости от сечения дома, имеет площадь от 37 кв.м до 39 кв.м. Среди его преимуществ – удобная лоджия, удобная прихожая и просторная гостиная, вытянутая геометрия которой позволяет разделить ее на функциональные зоны. Кухня небольшая: 7,5 кв м, но воздушная камера вынесена в коридор.
Ванная комната, площадь которой не доходит до 4 м, достаточно маленькая и оригинально совмещенная.
Наталья Преображенская | Студия «Уютная квартира»
Перепланировка 1: Квартира для одного человека
В гостиной данной квартиры, как П-44Т, целесообразно оборудовать четыре основные зоны: спальню, гостиную и рабочее место с компьютером и гардеробной номер. В последний помещается больше вещей и сезонной одежды, а также разного снаряжения: лыжи или коньки, сноуборд. В предлагаемом варианте (как и в большинстве случаев П-44Т) рекомендую пристроить к комнате лоджию. Реально провести между ними перегородку не получится, но сделать это можно, максимально увеличив проем — таким образом, лоджия становится частью комнаты, и в ней можно поставить, например, одно или два кресла.
Зону спальни и гостиной необходимо разделить перегородками со сквозным стеллажом: чтобы визуально разграничить пространство, но не создавать ощущение тесноты. В квартире одна просторная кухня не нужна — компактно помещается.
Обратите внимание, что мы передвинули стену между кухней и ванной, создав идеально сформированную нишу для холодильника и раковины. Угловые ванные скошены, за счет чего расширяется и ванная, и прихожая. В коридоре хорошо поместились два шкафа для одежды.
Наталья Преображенская | Студия «Уютная квартира»
Перепланировка 2: Для молодой пары
Если в планах нет детей, то обычно такие заказчики ориентируются на интерьер гостиной: в этом варианте перепланировки главную роль мы отдать эту функциональную зону и пристроить лоджию. Предлагаю спальню отделить визуально облегченными перегородками, туда помещают компьютерный стол и небольшой книжный шкаф.
Кардинально меняет геометрию кухни, ванной и прихожей. Чтобы не ставить шкафы поперек и без того небольшой квартиры, целесообразно организовать гардеробную зону в прихожей. Также можно подключить стиральную машину (важно только правильно организовать подключение к коммуникациям).
Гардеробная в таком маленьком пространстве осуществима, если убрать проход из коридора в кухню, продолжающийся в этом санузле, ведь его ширина уменьшится в пользу вместительного шкафа в прихожей.
Зато в открывшемся пространстве ванной поместилась душевая кабина. Кухня также расширена, что позволяет организовать большую зону приготовления пищи вдоль окна.
Наталья Преображенская | Студия «Уютная квартира»
Перепланировка 3: Для семьи с двумя детьми
Непростая задача, но мы часто с ней сталкиваемся. Разумеется, в этом случае семья жертвует в пользу ребенка полноценной жилой площадью, в которой можно разместить спальные зоны, место для учебы и систему хранения. Для этих целей, конечно, больше подходит раскладная мебель или двухъярусная кровать. Рабочая зона в виде письменного стола с компьютером размещена на пристроенных лоджиях, бывший подоконник превращается в стену с небольшой полкой для книг. Хозяйская спальня зонирована от детской с помощью легкой перегородки с раздвижным механизмом. Здесь достаточно места для еще одного стола и небольшого шкафа для книг и журналов.
На кухне для увеличения количества посадочных мест помимо стульев советуем поставить небольшой диван.
Гарнитуры могут быть в форме буквы G, но могут быть немного тесноваты. В прихожей поместятся два шкафа для одежды. А чтобы добавить пространству динамики, примыкание плитки и паркетной доски по диагонали.
Наталья Преображенская | Студия «Уютная квартира»
Переделки 3-а: для мамы с двумя детьми
Идея планировки детской аналогична описанной в предыдущем примере, при этом спальная зона мамы является по совместительству гостиной — диваном вырывается вперед. Сооружение полноценной перегородки для зонирования было неактуальным, поэтому эту функцию выполняет стеллаж. Часть комнаты за перегородкой в просторном шкафу.
Женщина часто готовит и принимает гостей, поэтому кухню сделали больше, сдвинув перегородку в сторону ванной комнаты, отодвинув небольшой диванчик. Зона приготовления пищи расположена вдоль окна.
Наталья Преображенская | Студия «Уютная квартира»
Перепланировка 4: для родителей и взрослого ребенка
По сути, это задача создания личного пространства для взрослых — две студии на месте; решил ее с помощью раздвижной перегородки между двумя зонами.