Перепланировка угловой квартиры в хрущевке: 5 вариантов перепланировки 1-комнатной хрущевки
Перепланировка двухкомнатной хрущевки: подробный дизайн-проект с планом и визуализацией
Несмотря на большое количество новостроек, проблемы комфорта хрущевок волнуют многих владельцев квартир. Ситуация осложняется тем, что средства на ремонт такого жилья порой сильно ограничены. Именно поэтому грамотные изменения планировки, которые легко согласовать, могут стать оптимальным выходом.
Перепланировка двухкомнатной хрущевки, которую вы здесь увидите, — наглядный пример удачного решения с планом расстановки мебели и визуализацией интерьеров.
Общая площадь квартиры — 43 кв.м, первый этаж, балкона нет. В результате у владельцев остались те же две комнаты (гостиная и спальня), в кухне нашлось место для обеденного стола и высокого холодильника. А также — появился отдельный гардероб, расширилась прихожая и значительно увеличилась площадь ванной.
Хотите узнать детали? Изучите этот проект маленькой двушки и возьмите идеи на заметку!
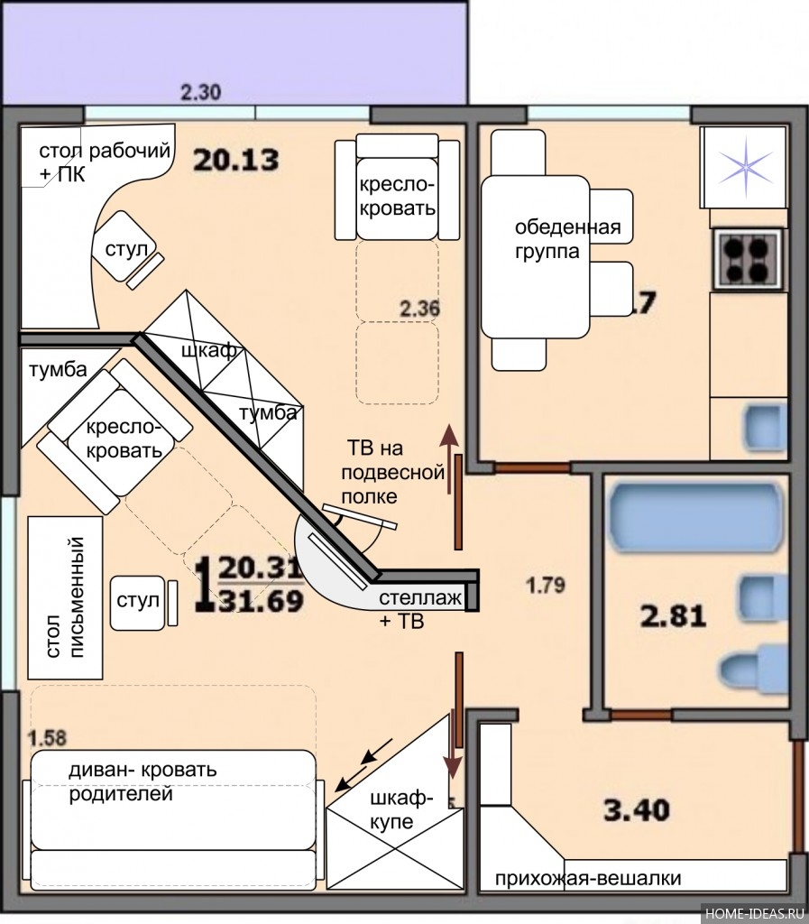
План перепланировки этой двухкомнатной хрущевки.

Автор проекта — дизайнер интерьера из Омска Наталья Серебрякова.
До:
обычная маленькая квартира, довольно известная планировка хрущевки — прихожая-коридор, маленькая кухня (5.3 кв.м), объединенный санузел, вход в спальню — через гостиную.
Задачи — типичные для многих подобных квартир:
- комфортное место для обеденного стола в кухне;
- отдельный гардероб;
- удобные места для холодильника и стиральной машины.
Изменения по стенам в ходе перепланировки.
1. Убрали перегородки «гостиная/кухня» и «гостиная/прихожая», частично — «гостиная/спальня».
2. Площадь ванной увеличили за счет части коридора, ведущего в кухню, и немного передвинули стену, отделяющую санузел от прихожей (чтобы расширить входную зону).
3. Со стороны кухни для холодильника запланирована ниша (в стене «кухня/ванная»).
4. Часть гостиной между прихожей и спальней отделили под гардеробную комнату с дверью из спальни.
Перепланировка 2х-комнатной квартиры в фото (визуализация проекта).

А теперь — как это выглядит.
Интерьер гостиной привлекает внимание отсутствием тривиальных шкафов и лаконичностью стиля — с легким налетом французской классики. При этом обстановка комнаты устраивает владельцев и не лишена изящества.
Несмотря на первоначальную идею углового дивана (см. план), в результате заказчики выбрали более компактную модель (традиционную прямую).
Вид из гостиной на кухню и прихожую.
На противоположной дивану стене (мы говорили о ней в п.2 раздела о стенах) разместили телевизор, над ним — полки для декора, под ним — узкая консоль для дополнительного хранения и книг.
Как можно увидеть из этой точки обзора, обстановка прихожей тоже не страдает излишествами — для верхней одежды выбрана открытая узкая стойка с задней стенкой и полками для обуви и головных уборов.
На этом же фото видно еще одно удачное решение — холодильник, встроенный в нишу, верхняя часть которой закрыта дверцей и может выполнять роль мини-кладовки.
Интерьер кухни, несмотря на скромные размеры (всего 2 м по ширине), по праву можно назвать комфортным. Шкафы до потолка позволяют разместить всю утварь, в верхних отсеках могут храниться редко используемая посуда и мелкая кухонная техника. Для микроволновки запланирован открытый модуль.
«Рабочий фартук» оформлен белой мелкоформатной плиткой (10х10), интересной благодаря изящным декорам в духе французского кантри.
Вид из гостиной на обеденный стол.
Благодаря демонтажу перегородки между гостиной и кухней (и отказу от ненужного коридора) появилась зона столовой, не стесняющая передвижение по кухне. Когда придут гости, стол можно выдвинуть в центр кухни и дополнить складными стульями. Подвесной светильник на длинном шнуре добавляет уюта вечерней трапезе.
Другой вариант дизайна кухни-столовой (если хочется яркости):
Интерьер спальни.
Глядя на эту комнату, трудно представить, что этот миниатюрный будуар разместился в двухкомнатной хрущевке.
Кровать шириной 1.60 с парой изящных тумбочек, туалетный столик в том же французском стиле, а в дальней от входной двери части комнаты — сдержанные раздвижные двери шкафа-купе. Вот все, из чего складывается обстановка. Слева от шкафа — вход в гардероб.
Акцентный декор из обоев (современный вариант виньеток) за изголовьем кровати тонко дополняется бирюзовым тоном остальных стен.
Интерьер ванной, на первый взгляд, кажется абсолютно современным. Но если вы любите рассматривать маленькие французские квартиры, то знаете: белая плитка с черными акцентами — тонкий признак истинно парижского вкуса.
Чтобы стены не выглядели слишком строго, дизайнер предложила белую плитку, в коллекции которой имеется занятный разноцветный декор — ряд крошечных домиков, похожий на улочки старинного европейского городка.
Слева от двери в ванной разместили стиральную машину, а над ней — вместительный шкаф для банных аксессуаров и бытовой химии.
Другой вариант дизайна ванной:
Мы закончили рассказ о перепланировке двухкомнатной хрущевки, в результате которой получилась вполне комфортная квартира, насколько это возможно на 43 кв.метрах. Маленькая площадь использована предельно рационально: здесь есть все, что необходимо, и нет ничего лишнего.
фото и схемы 1,2,3,4- комнатных
Хрущевка с двумя окнами
Квартира с балконом и двумя окнами, является угловой. Хрущевка с подобной планировкой может представлять собой не самый лучший вариант или наоборот, предоставить большое количество интересных идей перепланировки.
На фото пример перепланировки угловой хрущевки однушки с двумя окнами.
На фото перепланировка однокомнатной квартиры хрущевки 30 кв с одним оконным проемом.
Объединение кухни и гостиной
Это один из самых популярных вариантов перепланировки, после объединения ванной и туалета. Метод позволяет увеличить площадь кухонной зоны, которая в хрущевках катастрофически небольшая.
При сносе перегородки между гостиной и кухней, к полученной площади добавляется еще и коридор, который к ней вел.
Прекрасный интерьер гостиной
Таким образом получается многофункциональное помещение площадью в полквартиры, которое легко зонировать на рабочую зону по приготовлению пищи, обеденную площадку, гостиную и даже рабочее место или мини-кабинет.
Таким образом получается многофункциональное помещение площадью в полквартиры, которое легко зонировать на рабочую зону по приготовлению пищи, обеденную площадку, гостиную и даже рабочее место или мини-кабинет. Дизайнеры советуют отделять зоны легкими перекрытиями, переносными ширмами, барной стойкой, а угловые диваны и арки позволят выделить место отдыха.
Переделка хрущевки: плюсы и минусы
Перепланировка 2 комнатной хрущевки имеет свои достоинства:
- интерьер приобретает современный вид;
- перенос перегородок может создать расширенное пространство;
- перепланировка сопровождается ремонтом, что поможет создать уникальный дизайн квартиры-хрущевки.
Перепланировка хрущевки имеет и свои минусы:
- перемещение или снос перегородок удлиняет процесс ремонта;
- если сооружать раздельные помещения – они станут меньше по площади;
- вариантов перепланировки квартиры из 2-х комнат не так много из-за ограниченной площади и особого расположения помещений;
- возрастает стоимость работ.
- Все запахи из кухни попадают в гостиную.
- При отсутствии двери на кухне невозможно уединиться.
Хвалюсь! Как я отремонтировал 2-х комнатную хрущевку
Квартира была куплена 2 года назад с косметическим ремонтом кроме ванны, так что при покупке своих квадратных метров это был не маловажный вопрос при выборе квартиры. Заехали со своими манатками и планировали пожить так годков пять, а потом приступить к ремонту своими руками, предварительно накопив средств, сил и энергии. Но не тут то было…)))
Планировка была уже предварительно переделана до нас, так как комнаты были смежные бывший хозяин разделил комнаты и сделал гардеробную, что дало возможность исключить шкафы — монстры купе)))).
Часть1 Итак переделка ванны и клозета. Начало)))
Балки под дверной проём
Уже бывший вход на кухню который благополучно скрыт под плиткой дверь осталась там же )))
Стояк горячей воды сыграл немаловажную роль при выборе ванны так как перенос его тянул большой геморрррррой))) решено было ставить ванну…. о ней позже)))
Трудовые будни каркаса)))
фас, нет профиль))))
Развод воды! вверху горячая, ниже холодная, трубы металопластик
Приехала раковина примеряем и мечтаем)))
И дальше — профиль
Медленно на уверенно
Процесс обшивки гипсокартоном и начало кладки плитки был успешно потерян в Египте вместе с самсунгом галакси 2 )))))Поэтому как-то так
Подиум ванны успешно закрыл стояк горячей воды)))) ванной остались довольны, так как вся ванна с санфаянсом получились около 4м квадратненьких
А вот и ванна и фаянс приехали))) и бойлер на место подвешен
Еще разок но вместе
Приехали ребята натянули потолок сам бы не справился))) много углов
Вид с входной двери
Полки, Зеркало, и женское счастье!
Полки зеркало и женское счастье
Кирпичный цвет обоев привел в ужас на второй неделе, просыпаться не хотелосьи решено ломать, а потом строить))))) опять все сами с супругой, отборным матом и куском обоев на которое фоткали.
Закрываем батарею. знаю теряем тепло, но для спальни и сна как раз самое оно.
Гыыы покупаем тюль и понимаем что теперь обои покупать придется под тюль. а не наоборот))))))))))))
и под телек 32 диагонали нишу
Шпаклюем и ставим решетку, Дизайн аля сами придумали)))))
Пол осб на лепим на паркет ушло 300 дюпель гвоздей 6 на 80 крепко сидит)))))
И вот они обои под тюль))))
Стена напротив и сразу меряем панель 32ю ))))
Полка с камешком
Тут тюльпаны супруга вырезала))))
Ура кровать и ламинат
Это выглядит сейчас на беспорядок внимание не обращаем собирались в отпуск у Еропу)))))
Сразу напишу потерял очень много места около 7 см от стены, результатом остались довольны. Единственное что я не делал это перетирка стен и потолка, с этим туговато, так как решено было красить))))))
Ну нравится мне профиль
Любителям потери квадратных метров
Арка не арка вообщем далее увидите
Двери межкомнатные попутно устанавливали спецы.
ребята сделали отлично
Ламинат лег как и задумывалось проход в ванну по ламинату))
Вся плитка выложена
А вот теперь несколько фот финала
Бюджетные фонари стали как родные
Зеркало в профиле мдф сами спаяли))))
С коридором все .
Кухня сделана, но остались мелочи духовой шкаф)))) вытяжка))) тюль))))Из того что не делали сами это перетирка стен и потолка.
Посуду пока есть чем мыть))
Закрываем профилем старую дверь
Окно залепим пенопластом)))))
Стена между залом и кухней закрываем трубы батарей.
Окно. и понеслась шпаклевка по кухне и комнатам))))
Окно закрыли пенопластом и забыли
Стена между кухней и залом
Плитка подоспела и занимает свое место
Плита ждет нового хозяина))))
Пол почти закончен
Фартук гипс вскрыт бесцветным лаком-мойкой
Начинаем красить стены цвет немного отличается в натурале немного темнее.
Вот и стена преобразилась между залом и кухней
Холодильник встал в нишу где раньше дверь была
Ни у вуаля кухню сами дизайнерили. Осталось за малым
Дверь из двух половинок от потолка до пола. Ну и на очереди зал, думаю к новому году будет На этом всё.
Понравилась статья? Подпишитесь на канал, чтобы быть в курсе самых интересных материалов
Развод воды! вверху горячая, ниже холодная, трубы металопластик
2. Перепланировка однокомнатной хрущевки
При переносе кухни в зону коридора, кладовой или другого вспомогательного помещения дополнительно разрабатывается светотехнический расчет. Это нужно, чтобы показать, что на вновь образованной кухне-нише достаточно естественного освещения, например из окна смежной с ней гостиной.
Перепланировка: Три варианта двухкомнатной квартиры в хрущевке
———————————————
В ВАШЕМ ГОРОДЕ…
► Через Houzz можно нанять архитектора или дизайнера в любом городе и стране.
Введите индекс, чтобы подобрать специалиста в своем городе
———————————————
Согласование документов
Чтобы не иметь проблем с последующим узакониванием перепланировки, лучше сделать всё в соответствии с требованием законодательства – то есть пройти этап согласования документов до начала работ по модификации жилья.
Документы на работы по перепланировке можно собрать самому (если есть на это время) либо же привлечь посредника, который как доверенное лицо будет сопровождать весь процесс вплоть до получения техпаспорта обновленной хрущёвки.
При таком сценарии согласование может занять около 6-ти месяцев. Но и при повторной подаче заявления никто не гарантирует, что отказ не будет получен снова. Как и после первой подачи заявки, так и после повторных, владелец хрущёвки может подать жалобу в суд, если считает, что отказ не подкреплён соответствующими нормами закона. В этом случае процесс может затянуться еще на несколько месяцев.
Объединение зала и кухни
Это один из распространенных вариантов перепланировки.
Попутно рекомендуется расширить оконный проем и отделать помещение материалами со светлым оттенком. Все это зрительно увеличит объем пространства. Реконструкцию можно провести одним из нижеприведенных способов:
- снести стену наполовину и оборудовать на оставшейся части барную стойку;
- сделать в перегородке арку;
- полностью убрать стену, поменяв ее на колонны или перегородку с раздвижными створками.
При отделке избегайте использования рисунков, ярких и контрастных цветов. Для увеличения площади лучше всего подходит однотипный монохромный оттенок.
Эти маленькие темные помещения в хрущевках имеют площадь примерно 3 кв. м. Для обустройства гардеробной рекомендуется немного ее расширить, перенеся перегородку на 30-40 см в соседнюю комнату. На следующих этапах необходимо:
Минимализм – лучшая стилистика малогабаритных квартир
Зачастую стиль интерьера требует декора помещения, который занимает немало места – чего нельзя сказать о минимализме! Данный вариант всячески стимулирует минимизацию количества предметов, находящихся в квартире, что в самый раз подойдет для дизайна хрущевки с 2мя смежными комнатами (примеры на фото ниже).
Минимализм в квартире
Цветовая гамма, как правило, используется светлая – это визуально расширяет пространство и позитивно действует на психологическое состояние человека. Наиболее популярны оттенки белого, синего, бежевого и др.
Следующий возможный вариант — проект «Квартира для троих». В этом проекте большая комната также соединяется с прихожей, но гардероб не переносится в спальню. Кухня отделяется от комнаты раздвижной перегородкой, а холодильник и электрическая плита сдвигаются в нишу. Перегородка между комнатами сдвигается на 12-16 см в сторону небольшого уменьшения размера спальни. Таким вариантам тоже можно найти иллюстративное подтверждение.
Что такое перепланировка и как ее оформить
Любое изменение конфигурации стен и перегородок в квартире считается перепланировкой. Что касается несущих стен, то их трогать нельзя вообще. Если имеются ненагруженные стены или перегородки, то здесь все не настолько серьезно, но составлять проект нужно обязательно, после чего его придется согласовать и лишь затем можно приступать к осуществлению задуманного.
При этом, существуют варианты переделок, которые не смогут согласовать ни при каких условиях:
- Расширение площади таких помещений, как кухня, ванная и туалет возможно лишь за счет технических помещений. Над жилыми комнатами их располагать запрещается. В данном случае можно уменьшить площадь коридора, встроенного шкафа, прихожей и т.д. Поэтому, имеются спорные варианты некоторых перепланировок. На фото ниже указаны спорные зоны.
Обозначенный красным фрагмент практически находится в коридоре, но документы БТИ указывают, что это жилая площадь. Если в таком варианте подать документы на перепланировку, то их не возьмут. Чтобы не ссориться с законом, нужно сначала поставить перегородку, которая отгородит коридор и в таком виде подается проект на увеличение площади ванной.
Расширяя площадь кухни, нельзя делать:
- Расширять за счет санузла.
- В случае расширения кухни за счет жилой площади, то на кухне нельзя устанавливать сантехнические принадлежности и кухонную плиту.

- Если на кухне имеется газ, то совмещать с жилой комнатой ее нельзя.
Этот пункт можно обойти, если установить двери любой конструкции, в том числе и раздвинутые или двери гармошку.
В последнее время многие жильцы практикуют еще один способ увеличения жилой площади – это совмещение лоджий и балконов. Но для этого нужно тщательно произвести утепление стен балконов и лоджий, а также, провести туда отопление. В результате можно получить еще одну комнату с оптимальной температурой, где можно разместить, например, рабочий кабинет.
2. Проверьте состояние труб и проводки
Рекомендация для тех, кто планирует ремонт в хрущевке 2-х комнатной своими руками. Обязательно обратитесь к специалистам для оценки состояния электропроводки и труб в квартире. Последствия легкомысленного отношения к этим вопросам могут самые плачевные, и вынужденная переделка свежесделанного ремонта — не самое страшное из них.
Фото: Instagram @evgeniya_matveenko
Плюсы перепланировки
- переходы между комнатами становятся гораздо более удобными;
- отмечается визуальное увеличение полезной площади;
- появляется возможность для современной внутренней отделки помещений и придания «жилищу» индивидуального облика.

При этом в хрущевках отмечаются низкие потолки, а первые этажи в подъездах не имеют ни лоджий, ни балконов. В таких условиях мысли о перепланировке настойчиво приходят в голову даже тем, кто по жизни совсем неприхотлив и обычно мирится с любыми неудобствами.
Ниша и шкафы-купе в спальне
За счет специфики планировки часто в хрущевках появляется возможность обустроить вполне вместительную нишу для хранения различных вещей. Использовать традиционные распашные дверки в условиях дефицита пространства не представляется практичным. А вот стильные раздвижные двери-купе — вполне. К тому же, они просто идеально смотрятся в помещении, предназначенном для отдыха.
За счет специфики планировки часто в хрущевках появляется возможность обустроить вполне вместительную нишу для хранения различных вещей. Использовать традиционные распашные дверки в условиях дефицита пространства не представляется практичным. А вот стильные раздвижные двери-купе — вполне.
К тому же, они просто идеально смотрятся в помещении, предназначенном для отдыха.
Нитяные шторы – грамотно зонируем пространство
При перепланировке хрущевки, как правило, удобно избавиться от стены, разделяющей 2 смежные комнаты, при этом оптимальный вариант сохранить разграничение между ними – нитяные шторы (пример на фото). В отличие от толстой стены, такая занавеска занимает меньше места, пропускает свет и свежий воздух, а самое главное – ее можно в любой момент убрать, сделав помещение визуально больше. Данный элемент декора позволит создать в обычной хрущевке индивидуальный модный дизайн: прекрасный внешний вид сочетается с практичностью, присущей современным стилистикам.
Зонирование помещения нитяными шторами
Зонирование спальни нитяными шторами
Зонирование квартиры японскими шторами
Зонирование спальни нитяными шторами
3. Не игнорируйте законодательные нормы
Ремонт в 2-х комнатной хрущевке без перепланировки не требует согласования.
А вот задумав перепланировку в квартире, без похода в надлежащие инстанции не обойтись. Не стоит игнорировать нормы существующего законодательства в этой сфере: не забывайте, что все правила созданы прежде всего для безопасности — вашей и остальных жильцов.
Фото: Instagram @galinaju_designer
Фото: Instagram @galinaju_designer
Некоторые дизайн-хаки для маленькой кухни:
Гениальное преображение угловой однокомнатной квартиры в хрущевке
Экология жизни. Дизайн интерьера: Маленькая кухня, тесный коридор, единственная комната, да еще и в «хрущёвке». Казалось бы, такому жилью никакой дизайн интерьера не поможет. Возможно, опыт Марии Дадиани убедит вас в обратном. Ей удалось превратить «хруща» в современное жилье с кухней-гостиной и солнечной изолированной спальней.
Маленькая кухня, тесный коридор, единственная комната, да еще и в «хрущёвке». Казалось бы, такому жилью никакой дизайн интерьера не поможет. Возможно, опыт Марии Дадиани убедит вас в обратном.
Ей удалось превратить «хруща» в современное жилье с кухней-гостиной и солнечной изолированной спальней.
однокомнатная квартира в пятиэтажном доме «хрущевской» серии, Москва.
женщина.
перепланировка квартиры с выделением отдельной спальни и кухни-гостиной.
Казалось бы, нет более унылого для дизайнера объекта, чем угловая «однушка» в доме хрущевской серии — с низкими потолками, кухней на пять «квадратов» и ванной на три. Как обратить недостатки в достоинства, обмануть время и перехитрить пространство? Дизайнеру Марии Дадиани это определенно удалось.
Проект «В 5 минутах от Патриарших…» — наглядное пособие по бытовому волшебству: перепланировка двухкомнатной квартиры из однокомнатной. Унылая однушка получает кухню, гостиную и отдельную спальню с гардеробом. Вместе с новым обликом в жилище возвращается дух старой Москвы.
В результате перепланировки стена между кухней и комнатой исчезла, образовав просторную кухню-гостиную. Половина бывшей комнаты стала изолированной спальней.
Комната в угловой «однушке» имеет два окна — благодаря этой особенности, перепланировка квартиры дала возможность выделить полноценную солнечную спальню.
Почти вся мебель в квартире — невесомая, светлая, с объемными филенчатыми фасадами. Черные и металлические детали выглядят на таком фоне очень выразительно. Их немного, что совсем не вредит общей «воздушности» интерьера.
рисунок гардин перекликается с принтом покрывала и формой ручек для гардероба.
Интерьер квартиры оформлен в черно-белых тонах, но преобладающий цвет в комнатах — белый, что визуально расширяет пространство.
Обои с мелким редким рисунком, На первый взгляд, в горошек, а на самом деле, в цветок, придают помещению дополнительный объем. Обои — вообще одна из главных «фишек» интерьера. За счет белого фона, рисунка с геральдическими мотивами и плотной фактуры они выглядят аристократично, светло и уютно.
В кухне-гостиной нет штор — это сознательное решение: ничего не должно мешать свету проникать в комнату.
Столешница рабочего стола плавно переходит в подоконник — тут вам и экономия места, и никаких щелей. Так же дизайнер поступила с кухонным столом.
Конструкция «комод и телевизор» условно разделяет зоны кухни и гостиной (как и плитка на полу), но при этом телевизор закреплен на кронштейне и поворачивается туда, куда в данный момент нужно хозяйке.
То, что на кухне нет традиционной обеденной зоны — тоже не случайность. Хозяйка квартиры редко готовит дома, а перекусить можно за рабочим столом или столиком у дивана.
Духовой шкаф и варочная поверхность на кухне не пытаются образовать одно целое. Духовка встроена выше, между шкафов — так гораздо удобнее с ней обращаться. Посудомоечная машина спряталась под варочной поверхностью.
Чтобы повесить кондиционер, пожертвовали одной секцией стеллажа в гостиной. Почему бы и нет?
Спрятать радиатор в маленькой квартире очень сложно. Поэтому здесь его не стали прятать, а наоборот, выделили. Черная ретро-батарея отлично вписывается в концепцию интерьера и играет роль визуальной доминанты в простенке.
Два зеркала в прихожей создают зеркальный коридор, визуально увеличивая пространство.
Те же обои, что и в кухне-гостиной, но на «выворот» — в прихожей. Шахматная плитка, темный фон и зеркала создают «эффект лабиринта», отвлекая от тесноты.
Эргономике в квартире уделено много внимания. Чтобы стиральная машина поместилась в маленькой ванной комнате, ванну заменили душевой кабиной. Пространство над стиральной машиной использовано под дополнительный шкафчик.
P.S. И помните, всего лишь изменяя свое потребление — мы вместе изменяем мир! © econet
Источник: econet.ru
Интерьер однокомнатной хрущевки без перепланировки фото
Понравилась статья? Следите за новыми идеями из мира строительства, дизайна, полезных советов в нашем канале. Подписывайтесь на нас в Яндекс.Дзене. Подписаться.Квартира старой постройки не редкость на рынке недвижимости вторичного жилья. Все, кто стал счастливым обладателем этой квартиры эконом-класса, в первую очередь начинают ремонт в однокомнатной хрущевке.
Пожалуй, в старых хрущевках использовались самые странные планировочные решения, часто не поддающиеся логике и здравому смыслу
Особенности однокомнатной квартиры – хрущевки
Эти квартиры всегда отличались своей малогабаритностью. Дизайн однокомнатной хрущевки заставляет задуматься, как максимально эффективно использовать небольшие квадратные метры.
Прежде чем начать ремонт однушки, подумайте, может быть стоит сделать перепланировку, убрав стену между кухней и комнатой. Такая перепланировка позволит наиболее рационально использовать полезную площадь. Если у вас торцевая квартира – это большой плюс. Угловой вариант планировки дает дополнительное окно в помещении, это значит больше естественного освещения и возможностей в дизайне.
В однокомнатной квартире трудно обойтись без перепланировки, если в семье несколько человек
Объединение создаст из вашей квартиры студию, и даст возможность скорректировать размеры кухонного и жилого пространства.
Квартиру-студию гораздо легче оформить современно и красиво.
Главное, стоит помнить, что перепланировка квартир требует официального разрешения от БТИ и последующее оформление проекта изменения.
Особенности оформления интерьера без перепланировки
Если вариант перепланировки не подходит, и вы не готовы к масштабным изменениям в своем доме. Посмотрите фото дизайна однокомнатной квартиры хрущевки 30 кв. м без перепланировки, они помогут вам определиться с основной идеей оформления, которой стоит придерживаться.
С помощью продуманного дизайна даже скромное по размерам помещение можно сделать удобным, практичным и уютным
Дизайнерские приемы, которые помогут рационально обустроить жилье:
- Расставьте приоритеты функциональных зон. В однокомнатной квартире необходимо поставить кровать или диван как спальное место, оборудовать зону отдыха. Если в вашей семье есть дети, важно определить место детского уголка, где ребенок будет спать, заниматься и играть.
Все зависит от количества домочадцев, которые будут проживать в доме.Вариант оформления детской зоны в интерьере общей комнаты
Красиво красить арку можно деревянными наличниками
Выдвижная кровать в подиуме – прекрасное решение экономии площади комнаты
Подоконник можно задействовать и в спальне, устроив на нём удобное рабочее место
Как визуально расширить пространство
Дизайн 1- комнатной хрущевки существенно отличается от оформления студий. При выборе интерьера стоит помнить, что в этих квартирах невысокие потолки, которые создают давящую атмосферу. Главная задача при оформлении — это визуально раздвинуть пространство.
Расширить пространство можно не только зрительно, но и фактически, отказавшись от громоздкой мебели
Основные решения для небольшой квартиры:
- Используйте зеркала. Большие зеркальные поверхности шкафов-купе визуально расширят пространство. Зеркало, установленное напротив окна будет отражать солнечный свет, и ваша квартира будет светлее.

Комната увеличится вдвое, если одну из стен оформить зеркальной плиткой
Фотообои с перспективой создают иллюзию расширенного пространства
Выбор стиля для однокомнатной квартиры
К выбору стиля интерьера однокомнатной квартиры в 30кв. м хрущевки по фото нужно подойти ответственно. Фотография может сильно отличаться от оригинала, и не все направления будут гармонично смотреться в вашем доме. При выборе оформления основывайтесь на характерные особенности стиля и добавьте немного от себя, тогда ваш дом будет уютным и неповторимым.
Французский
Для этого стиля характерны мягкие оттенки стен с изысканными цветочными мотивами – это могут быть бежевые, сиреневые и желтые цвета.
Стены во французском стиле принято оклеивать обоями, в качестве декора часто используют картины
Наличие натурального дерева на полу и в обстановке. Акценты в интерьере расставляются на мебели, она должна быть из дерева ручной работы с изящными высокими ножками и золотой фурнитурой на фасадах.
В маленькой кухне лучше установить гарнитур угловой планировки
Кухонный гарнитур из светлого дерева. Коврики под ногами, шторки с цветочными узорами и плетеная мебель на кухне.
Скандинавский
Отремонтировать квартиру и создать стиль северных народов не составит труда. Основные цвета Скандинавии – это белый потолок и светло-серые стены. Вы можете просто оштукатурить стены или покрасить. Пол из светлого дерева. Лаконичность и простота в отделке отлично сочетаются с немного грубыми фактурами деревянной мебели.
Минимум мебели и декора – главная особенность скандинавского интерьера
Белые стены в скандинавском духе зрительно расширят маленькую прихожую
Минимум декорирующих элементов в интерьере. Кухня в этом стиле функциональная и светлая. А яркое освещение в дополнение к светлым тонам отделочных материалов добавит квартире простора.
Хай-тек
Стиль современности. Функциональность мебели и новейшей бытовой техники.
Прямые и строгие формы кухонного гарнитура белого цвета с глянцевыми поверхностями. Отделка помещения в черно-белой гамме. Потолок с глянцевыми натяжными конструкциями и светодиодным осв
делит комнату на две части.
Хорошо, когда в квартире есть комната на каждого домочадца и общая гостиная. На самом деле часто все иначе, многие живут в маленьких квартирах. В этой ситуации стоит задуматься о разделении комнаты на 2 зоны, спальню и гостиную, большое количество фото с похожими интерьерами только подтверждают актуальность вопроса.
Интерьер помещения с двумя зонами должен быть выполнен в едином стиле
Особенности совмещенного номера
В современных однокомнатных квартирах достаточно места, чтобы разделить пространство на две зоны, не прибегая к различным ухищрениям.В небольших гостиных также можно найти способ совместить их со спальней. Преимущества совмещения:
- Расширение функциональности пространства;
- Возможность создать уютный уголок, отгороженный от всех при помощи ширм, затемняющих штор.

Белый цвет помогает расширить пространство и облегчить его
Основные недостатки совмещения:
- Спальня — не полностью закрытое пространство;
- Сложно обеспечить хорошую звукоизоляцию спальной зоны.
Несмотря на ряд минусов, такое разделение гостиной часто бывает необходимой мерой из-за отсутствия другого выхода.
Декоративная перегородка отлично справится с зонированием комнаты
Планировка
Часто в гостиной ставят раскладной диван и отводят отдельное место для гардеробной. Днем комната представляет собой полноценную гостиную, а ночью превращается в спальню. У этого варианта есть недостаток — нужно постоянно либо убирать грядку, либо раскладывать ее.Это требует времени и усилий, поэтому комнату проще разделить на две зоны.
Спальную зону лучше всего размещать в дальнем углу комнаты
Важно учитывать, что спальня и гостиная плавно переходят друг в друга и выполнены в гармоничных тонах.
Не рекомендуется использовать разные стили при оформлении отдельных зон.
Зона отдыха
Причал должен быть уединенным и спокойным. По этой причине кровать нельзя ставить рядом с входной дверью.Кровать лучше поставить в дальнем углу от двери в гостиную.
Кровать лучше размещать в дальнем углу комнаты в окружении шкафов-купе
Желательно, чтобы в спальной зоне было больше естественного света. Если в комнате одно окно, кровать лучше поставить к нему поближе. Многие любят засыпать и просыпаться у окна.
Кровать у окна на небольшом подиуме — идеальное место для сна
Гостевая зона
В отличие от спальни, гостевая зона требует больше места.В ограниченном пространстве стоит делать минимальный набор мебели. Достаточно дивана или мягких пуфов, невысокого столика и стенки с полкой для телевизора. Если место позволяет, можно отдельно оформить обеденную зону.
Гостевая зона отделена перегородкой из натуральных материалов
Гостиная может располагаться возле входа, такое положение удобно для всех, кто заходит в комнату.
Если света из-за спальни и перегородок не хватает, можно установить дополнительные светильники.
Декоративная перегородка с камином практически полностью закрывает вид на спальную зону
Для чего нужны перегородки?
Во-первых, перегородки — это самый простой и очевидный способ разделить комнату на две зоны, спальню и гостиную. Во-вторых, это дополнительный элемент декора, способный украсить и разнообразить интерьер.
Перегородки могут быть выполнены из различных материалов, любой конструкции
Вне зависимости от типа конструкции и используемых материалов все перегородки делятся на:
- Сплошной, от пола до потолка;
- Низкий, блокирует только часть комнаты.
Роль перегородок могут играть:
- Арки;
- Колонны
- Фигурные проемы.
Важно! Чтобы спальня-гостиная выглядела просторнее, вместо сплошных перегородок можно использовать решетчатые конструкции.
Материал перегородок может быть любым. В зависимости от стиля интерьера используется дерево, высокопрочное стекло, качественный пластик или ткань.
Типы перегородок
Чтобы разделить однокомнатную квартиру на две зоны, гостиную и спальню, можно использовать самые разные виды перегородок. Материал и форма зависят от стиля интерьера и потребностей хозяев квартиры. Различные варианты перегородок, позволяющие разделить комнату на две зоны, спальню и гостиную, можно увидеть на фото ниже.
Стационарная рамная конструкция
Такая перегородка удобна, если нет необходимости в периодическом объединении комнат.По сути, это стена, разделяющая одну комнату на гостиную и спальню. В сплошной перегородке могут быть полноценные дверные проемы. Если места недостаточно, распашную дверь заменяют на раздвижную. Главное достоинство такой конструкции — хорошая звукоизоляция, что немаловажно для спальни.
Купе
Такая перегородка смотрится оригинально и стильно.
Раздвижные двери устанавливаются так же, как и в шкафу-купе. Направляющие крепятся к потолку и полу, в которые уже вмонтированы двери с роликовой системой.
Для монтажа конструкции используются разные материалы: деревянные или алюминиевые профили, ПВХ и пенополиуретан для звукоизоляции. Если стоит выбор между металлом и деревом, лучше отдать предпочтение первому. Алюминий устойчив к коррозии и более прочен.
Мобильные перегородки
Если спальня расположена в углу, для отделения ее от гостиной можно использовать мобильные перегородки, которые при необходимости можно складывать и снимать.Это модульные экраны и ширмы. Перемещая их, вы можете изменять пропорции комнаты.
особенно удобны, если гостиная небольшая. Такая перегородка может стать отдельным декоративным элементом и даже акцентом всего интерьера. Ширмы отлично впишутся в гостиную в японском или классическом стиле, в зависимости от дизайна.
Шторы
С помощью текстиля можно разделить комнату на две зоны, спальню и гостиную.
Обычные шторы, которые не выделяются из интерьера дизайна спальни-гостиной, разнообразят интерьер. Это один из самых простых и дешевых способов разделить комнату. Шторы не занимают много места и легко меняются по первому запросу. Это позволяет изменить атмосферу интерьера, затратив минимум усилий. Шторы можно раздвинуть, приподнять или просто повесить (например, занавески, нитки).
Подиум
Такой способ зонирования подходит для помещений с высокими потолками.На подиуме можно разместить кровать или гостевую зону. Пространство под подиумом часто используется для хранения вещей. Оригинально будет смотреться встроенная в подиум кровать, которую на ночь необходимо выдвигать. Такой подход удобен для небольшого помещения. На постройке можно оборудовать любую зону — кабинет, библиотеку, столовую, детскую.
Шкаф высокий
В этом случае шкаф-купе ставится ровно между гостиной и спальней. Это удобно, потому что из спальни можно разместить шкаф, а из гостиной — несколько открытых полочек для мелочей или книг.
В маленьких комнатах такой вариант будет смотреться громоздко и займет слишком много места. Разделить комнату на спальню и гостиную со шкафом можно только при наличии достаточного количества метража.
Стеклянная перегородка
Матовое полупрозрачное стекло в качестве перегородки не препятствует проникновению естественного света в гостиную, что особенно важно, если спальня расположена у окна. Стекло, используемое для перегородок, закаленное и прочное. Даже если вам удастся его разбить, он не рассыпется на осколки.
Красиво смотрятся в интерьере перегородки с витражами. Этот декор особенно хорош в спальне-гостиной в готическом стиле и ар-деко. Если стекло полностью прозрачное, стоит заранее подумать о дополнительной шторке, которая при необходимости сможет закрыть спальню.
Мебельный трансформер
Этот способ зонирования гостиной относительно новый и до сих пор набирает популярность.Такая мебель состоит из различных блоков, которые можно без особых усилий переносить с места на место, а количество деталей можно менять.
Мебельный трансформер позволяет комбинировать сразу несколько предметов. Меняя расположение модулей, можно получить стол, шкаф, шкаф.
Сквозная стойка
В отличие от громоздкого шкафа, стеллаж занимает меньше места и, благодаря сквозным полкам, пропускает больше света в комнату.Это хороший способ разделить гостиную и спальню в небольшой комнате. Книги, сувениры, домашние растения, лампы и т. Д. Можно убрать на полки. У такого варианта зонирования есть минус — вид, который вы видите, и полное отсутствие свето- и звукоизоляции.
Если комната маленькая
Не всегда можно развернуться и свободно расставить мебель. В малогабаритных квартирах комнаты довольно маленькие, поэтому необходимо экономить место без ущерба для функциональности спальни-гостиной.Вот несколько предложений:
- Громоздкий диван можно заменить пуфами, низкий диван или пару кресел, подойдет и угловая модель дивана;
- Если вы решили поставить в спальню кровать, можно разместить под ней ящики;
- Все пространство комнаты должно быть функциональным;
- Чтобы не занимать место прикроватными тумбочками, полки можно разместить над диваном или над самой кроватью; Плазменный телевизор
- на стене сэкономит место, такой экран хорошо виден с обеих зон.

Помимо грамотного использования пространства не забываем и об отделке. В маленьких помещениях следует избегать темных и ярких цветов. Стены, пол и потолок должны быть светлыми, но аксессуары могут быть разного цвета. Маленькая спальня-гостиная потребует хорошего искусственного освещения — чем больше света, тем просторнее кажется помещение.
Меблировка спальни-гостиной
При объединении спальни и гостиной в общую комнату часто используются раскладные диваны и кресла.Это экономит место, днем можно спокойно принимать гостей, а вечером раскладывать кровать.
Кроме раскладных диванов можно использовать модульную мебель или мебель-трансформер. Например, шкаф-кровать. При этом следует учитывать, что это довольно громоздкий предмет, поэтому выбрать такой вариант удается далеко не всегда. Ящики для вещей разместить под обычной кроватью намного проще.
Для приема гостей в небольшой спальне-гостиной можно поставить угловой диван и журнальный столик.
В самом диване могут быть встроенные полочки, барная стойка. Угловые модели шкафов довольно вместительны, но занимают меньше места, в отличие от обычных.
Устроить спальню и гостиную в одной комнате не так уж и сложно. Объединить их вместе, используя раскладной диван, или разделить перегородками? Это решение зависит только от площади помещения и личных пожеланий домочадцев. Декор спальни-гостиной должен быть в первую очередь комфортным.
Видео:
Фотогалерея (50 фото)
Вы наверняка уже сталкивались с непростым вопросом зонирования комнаты (особенно эта проблема актуальна при работе над дизайном).Часто одноместная комната должна выполнять сразу несколько функций: и здесь, и спальню, и кабинет.
Мы не рекомендуем нашим покупателям возводить полные стены и тем самым создавать двух- и даже трехкомнатные квартиры из маленькой однушки. Естественный свет — наш главный союзник при работе над дизайном небольших помещений, а темные кладовые, куда не проникает свет из окна, вряд ли способствуют комфортному отдыху и работе. Мобильные разделители выглядят намного проще и интереснее, так как сейчас в продаже много вариантов, и переставить при использовании не составит труда.
Ближе к природе
Живые растения создают в квартире положительную энергию, подходят к любому интерьеру, выглядят оригинально и свежо! В качестве перегородки можно установить особую конструкцию в виде этажерки, поставить на полку цветочные горшки или использовать большие напольные горшки с высокими растениями.
Выбирайте растения, которым не нужен яркий солнечный свет.
home-designing.com
home-designing.com
danielletrofe.ком
home-designing.
com
Стеллажи, комоды, полки
Самый простой способ разделить комнату на зоны — это установить небольшой стеллаж или книжный шкаф. Красиво наполненный книгами, вазами и предметами декора, такая стеллаж будет выполнять как декоративные, так и практические функции.
Большая статья о красивом дизайне стеллажа -.
женщина-пионер.ком
Конструкция может быть как встроенной:
mechantdesign.blogspot.fr
home-designing.com
… и мобильный:
interiorjunkie.com
hautelook.hardpin.com
zulily.hardpin.com
Еще один удачный способ разделить пространство при сохранении квадратных метров — установка раздвижных перегородок.Используйте прозрачные вставки, чтобы отделить зону гостиной, или матовое стекло или пластик, чтобы создать уютную атмосферу в зоне спальни.
Мобильные перегородки и ширмы
Сейчас на рынке представлено множество интересных вариантов мобильных перегородок из пластика, металла, стекла, дерева, гипсокартона. Вы можете сделать такую ширму на заказ или купить уже готовую к установке конструкцию.
my-wishfulthinking.blogspot.ca
matheusphoto.com
Надеюсь, у вас появятся новые идеи, как разделить комнату на зоны, сохранив при этом ценные квадратные метры. Рад ответить на любые вопросы и услышать ваше мнение в комментариях =)
Многим знакома эта проблема, когда в доме просто не хватает свободных квадратных метров, в связи с чем возникает вопрос, что нужно разделить комнату на две зоны. Однако не стоит преждевременно печалиться по такой проблеме. Любое жилое пространство изначально содержит потенциал для уютного и комфортного обустройства таким образом, чтобы не было чрезмерного ощущения нехватки свободных мест.
Для этого нужно просто разделить квартиру на определенные зоны, предназначенные для своих целей. Дизайнеры давно используют принцип зонирования пространства, чтобы жилье было гармоничным и максимально комфортным для человека. Существует множество хитростей, которые помогают расширить изначально маленькую комнату, причем не только визуально.
В любом доме хозяин может найти так называемые скрытые зоны, а потом грамотно оборудовать эти счетчики. Если вы просто переезжаете в новый дом, то воспринимайте пустое пространство как абсолютно чистый холст. Именно на нем и предстоит воплотить в жизнь личные фантазийные идеи. Из практического опыта часто следует, что даже в совершенно пустой квартире в ней много. Пример тому — капитальная перегородка, отделяющая комнату от балкона. Если хорошенько утеплить балкон, а затем снести такую перегородку, комната станет на порядок большей по площади.
Балкон часто служит местом, где люди хранят вещи, которые им по сути не нужны, забивая ценное пространство всевозможным хламом.
Между тем, вы можете превратить его в мини-столовую или небольшой офис, где вы можете спокойно работать за компьютером или позволить своему ребенку делать уроки. Границу между балконом и комнатой после сноса перегородки можно обозначить шкафом.
А можно вообще не перекрывать эту зону, тем самым увеличивая площадь комнаты.Достаточно много свободных зон может появиться, если небольшую квартиру дополнить всевозможными нишами. Ниши вполне могут справиться с ролью полноценной гардеробной или гардеробной. У вас будет возможность сэкономить не только пространство, но и деньги, которые затем можно будет потратить на приобретение желаемого гардероба для всех небольших квартир. В общем, не стоит слишком бояться перспективы разрушения стен.
Но это, конечно, не касается несущих конструкций. Сломав некапитальные стены в ряде мест в квартире, можно значительно увеличить полезную площадь.Сделав из двух малогабаритных комнат одну просторную, можно затем, умело используя дизайнерские приемы, грамотно обустроить освободившееся место. Вместо некапитальной стены можно сделать декоративную перегородку, оборудованную множеством полочек. Ваша квартира сразу приобретет более современный вид.
И любой сантиметр свободного пространства получит шанс на грамотное практическое использование. Многие не решаются реорганизовывать свою квартиру, считая, что для таких целей необходимо предварительно собрать много разных документов и получить соответствующее разрешение.Но умело разделить дом на зоны возможно без согласования с соответствующими органами. Как разделить комнату на зоны ? Каждый может без лишних и совершенно ненужных хлопот разделить свою квартиру на секторы.
Следует отметить, что сегодня большой популярностью пользуются так называемые квартиры-студии. Кухня отделена от помещения, которое одновременно служит столовой, с помощью различной отделки пола. Конечно, для пола на кухне оптимально использовать отделку кафелем.А вот в столовой можно постелить линолеум. Имейте в виду, если вы собираетесь объединить в квартире участки, изначально имеющие разное назначение, то обязательно нужно продумать способ качественной звукоизоляции.
Если у вас есть дети, они будут раздражать вас своим шумом. Шумоизоляцию можно обеспечить, используя и правильно разместив такой же шкаф купе, полностью заменяющий часть стены. Или вы можете соорудить перегородку с множеством небольших шкафчиков и полок. Необязательно делать перегородку или шкафы на заказ.Вы можете продумать детали будущей планировки мебели, точно измерить все параметры и увеличить количество метров, что не прочь отвести соответствующую площадь.
Но есть определенные рекомендации. Если вы планируете совмещать зоны для работы и отдыха, рабочую площадь на метр лучше сделать немного меньше. Подразделение двухкомнатных комнат немыслимо без установки или перемещения выключателей и розеток. Зона в комнате В идеале должен иметь собственный источник света.При обустройстве пространства лучше воздержаться от использования такой мебели, которая будто поддерживает стены.
Вообще в ограниченном пространстве различных чисто декоративных атрибутов, служащих исключительно эстетическим целям, должен быть минимум. Диваны, шкафы, полки и, конечно же, шкафы должны в первую очередь соответствовать функциям грамотного разделения на зоны. Можно выделить зоны на ограниченном участке, не устанавливая четких границ.
Отличие и контраст по цвету, фактуре, а также возведение подиума или разных уровней на полу отлично справятся с этой задачей.В одной квартире деление на зоны не должно быть очень напористым. В зоне, разделенной на зоны, в будущем должен быть предусмотрен гармоничный интерьер, по возможности единой стилистической направленности. Разделить квартиру можно, если использовать описанные ниже способы и соответствующий инструмент. Во-первых, обратите внимание на мебель.
Его отдельные компоненты должны выполнять функцию делителя. Например, можно выделить зоны с помощью нескольких невысоких полочек или стеллажей.Достаточно прикрепить их к стене под определенным углом. Просто добавив такой стеллаж с одной стороны к столешнице, ребенок получит идеальное место для занятий.
Роль условной границы между рабочей зоной кухни и обеденной зоной также может выполнять столешница, поддерживаемая с одной стороны металлическим «стволом». Прекрасно разграничивает необходимые зоны в квартире угловой диван. Изолировать спальное место от жилой зоны можно с помощью шкафа-купе.Наряду с перегородками такой атрибут, как ширма, справится с задачей создания условной границы.
Такой предмет интерьера снова получил широкий спрос. Экран можно подобрать в соответствии с общими дизайнерскими критериями вашей квартиры. Но есть так называемые универсальные ширмы, которые гармонично впишутся абсолютно в любой интерьер. Перегородки, установленные только по бокам от главного «входа» на выделенную территорию, отлично подходят для выделения спальни. Перегородку легко соорудить из гипсокартона.
Не менее изысканно будет смотреться перегородка на основе оргстекла. Однако при выборе материала учитывайте тот факт, что, например, гипсокартон неизбежно скроет световые лучи, делая пространство, разделенное такими, темнее. В связи с этим рекомендуется возле оконного проема установить перегородку из гипсокартона.
Органическое матовое стекло в этом смысле будет предпочтительнее. К тому же любое пространство с его участием приобретает некоторую изюминку.Роль своеобразной некапитальной перегородки также могут сыграть шторы или плотный портьерный материал.
Если вы помните, в русских домах в комнатах и других помещениях вешали занавески, чтобы скрыть от посторонних глаз кровать или другие зоны, не нуждающиеся в публичном обозрении. Шторы и гардины, как элемент декора пространства, а не только окна, сегодня снова становятся модными. В любом случае текстиль сделает вашу квартиру уютнее и уютнее. Если вы решили использовать механизм раздвижных дверей для выделения определенных участков, ощущение того, что квартира состоит всего из одной комнаты, исчезнет полностью.
Раздвижные двери помогут определиться с тем, какую площадь выделить для спальни или гостиной. Разделение комнаты на зоны в общем пространстве с помощью подиума дизайнеры предлагали давно. Подиум, как элемент декора — очень функциональное решение. Например, с помощью подиума легко выделить спальный сектор или столовую. Подиум можно дополнить встроенной подсветкой. Или предусмотрите в нем ниши, где можно удобно разместить спальные принадлежности и другие вещи. Разделение комнаты на две зоны поможет сделать ваш дом более комфортным, современным, красивым и функциональным в практическом плане.
Сегодня мы коснемся этого вопроса с более узкой и практической стороны. В этой статье мы расскажем, как разделить комнату на две зоны. Прочитав упомянутую статью, вы вооружитесь знаниями, как разделить комнату на зоны. Имея этот багаж знаний, мы переносим их на практику.
Подготовка к разделению комнаты
Итак, чтобы разделить комнату, необходимо продумать все вопросы до мелочей, чтобы вся проделанная работа не пошла насмарку. Подумайте: где будет происходить условное разделение зон, какая мебель и где будет установлена после зонирования комнаты. Учтите, что в обоих помещениях должно быть светло, должна быть хорошая вентиляция и достаточно тепла. Кроме того, необходимо в обеих зонах иметь достаточное количество розеток и осветительных ламп.
Несмотря на то, что делить комнату выгоднее, тем не менее, это потребует довольно небольшого количества вложений, хотя и меньшего. К тому же возведение любой перегородки для зонирования — это потеря полезной площади, так что имейте это в виду. Возводя перегородку, старайтесь сделать ее максимально тонкой, чтобы занимать меньше места.
Как разделить одну комнату на две зоны для детей и взрослых
Самая распространенная задача для нас — разделить однокомнатную квартиру на две зоны: взрослую и детскую.Лучше всего это сделать со стеной из гипсокартона. Для ее установки необходимо демонтировать часть напольного покрытия, где будет располагаться новая «стена». Если вы делаете ремонт, лучше всего полностью демонтировать напольное покрытие. Используя металлические профили, возводим каркас для конструкции, после чего фиксируем сами листы гипсокартона. Мы рекомендуем строить дугообразную конструкцию, а переход из одной зоны в другую делать достаточно широким. После монтажа стены стыки между листами гипсокартона необходимо заделать малярной сеткой и шпаклевкой.Затем стена полностью покрывается слоем штукатурки и на нее наносится отделочный материал.
Фото примеры готовых работ:
Таким образом, довольно экономно и быстро, без особых хлопот, мы построили импровизированную стену, которая станет отличным разделением помещения. на зоны.
Как разделить комнату на две зоны: спальню и гостиную
Что касается разделения комнаты на спальню и гостиную, то необходимо учитывать задачи гостиной.Если гостиная для семьи, то есть те, кто будет в гостиной, не будут мешать тем, кто отдыхает в спальне, то для разделения комнаты можно использовать мебель или гардеробы.
Организация жилого пространства в обычной квартире — чудо бытовой техники. «Жилищный вопрос» не только испортил россиян, но и научил развить абстрактное мышление и смекалку опытного дизайнера. Но как еще приспособить однокомнатную хрущевку для комфортной жизни семьи из трех человек? На многие типовые жилищные проекты нельзя смотреть без слез.Часто эксперименты с расстановкой мебели и прочие невинные уловки не спасают положение — хочется снести стены и все построить заново. Тяжелее всего приходится хозяевам «однушек» — изначально размер и конфигурация такой квартиры не оставляют места для маневра. Но это не повод отказываться от мечты о комфортной жизни! Самое популярное решение в этой ситуации — разделить одну комнату на две. О нюансах этой простой перепланировки читайте в нашей статье.
Снос и строительство — что можно и что нельзя делать со стенами
Перед тем, как начать ремонт дома, который подразумевает любое изменение конфигурации стен по сравнению с первоначальным планом квартиры, стоит уточнить, что такие работы юридически считаются перепланировкой и требуют согласования. По правилам, даже если сузить дверной проем на полметра, поставив вместо двустворчатой обыкновенную дверь, это уже будет считаться несанкционированным действием.Причем снос старых стен и строительство новых.
Некоторые виды перепланировки вполне приемлемы, но другим они никогда не принесут пользы. Но, в любом случае, без официального разрешения не обойтись. А для этого придется заказать новый проект квартиры в сертифицированной организации и собрать много бумажек. Не узаконенная вовремя перепланировка может «всплыть» при продаже квартиры и затормозить процесс, к тому же иногда соседи, раздражающие ваш ремонт, пишут фокусы в уполномоченные органы.
Когда дело доходит до разделения комнаты на две, дело редко заканчивается постройкой одной перегородки. Обычно люди стараются оптимизировать пространство комплексно — здесь хватают пару метров от кухни, от коридора … Так что же можно безболезненно перерисовать в планировке квартиры?
Сносить встроенные шкафы, перегородки между ванной и туалетом, переносить дверные проемы в навесных стенах — эти изменения без проблем оформят.А вот менять комнату на кухню или ванную комнату по санитарным нормам категорически запрещено. Также нельзя совмещать комнату с газовой плитой и жилую зону. Если после покупки дома вы решили переделать однокомнатную квартиру в «двушку», помните:
По закону площадь жилого помещения должна составлять не менее 9 квадратных метров. м и шириной не менее 2,25 м
На плане квартиры кухня и санузел должны оставаться на своих местах
При совмещении кухни с комнатой придется отказаться от газовой плиты
Если между кухней и комнатой несущая стена, про снос
забудьтеИногда домовладельцам приходит в голову «блестящая» идея прорезать еще одно окно в квартире.В 99% случаев с этой мечтой лучше сразу расстаться — вмешательство в несущую конструкцию дома, нарушение целостности фасада и внешнего вида постройки категорически запрещено. В исключительных случаях можно обратиться в БТИ с просьбой — мизерная вероятность того, что специалисты согласятся рассмотреть ваш проект, если речь идет о дореволюционной постройке необычной конфигурации.
Выбор строительных материалов сегодня поражает воображение.В частности, для создания межкомнатных перегородок можно использовать сразу несколько технологий — выбирать нужно в зависимости от вашего бюджета и задач.
При возведении новых стен в квартире нужно учитывать:
Звукоизоляция (звукопоглощающие свойства материала)
Экономия места (толщина перегородки)
Сложность технологии (сможет ли глава семьи построить стену самостоятельно или рабочим придется дорого заплатить)
Стоимость стройматериалов
Назначение комнаты (для гостиной важны самые нетоксичные материалы, для ванной — влагостойкие)
Специалисты-строители и опытные ремонтники, привыкшие обустраивать дом своими руками, советуют несколько видов материалов:
При строительстве используются листы гипсокартона, металлический каркас и наполнитель для звукоизоляции.Каркас из стоечных профилей монтируется на несущие конструкции здания и покрывается гипсовыми панелями, между которыми укладывается слой минеральной или стекловаты.
Преимущества перегородок из гипсокартона — доступная цена, простая и быстрая технология возведения. Стены гладкие, их можно слегка зашпаклевать, можно покрасить или оклеить обои. Конструкция выдерживает нагрузки до 150 кг / кв.м (важно при креплении полок, телевизора, навесных шкафов).
Минусы гипсокартона — плохая звукоизоляция.Чтобы стены не казались бумажными, придется положить много наполнителя, который «съест» полезное пространство комнаты. Также сами листы довольно хрупкие и большие, при установке легко повредить, для работы потребуется минимум два человека. Обычный гипсокартон боится воды — в ванной можно использовать только влагостойкий.
При строительстве используются блоки из гипсокартона типоразмером 600,300,100. Стена построена по типу конструктора: каждая плита имеет паз и гребень, сцепление которых обеспечивает дополнительную прочность конструкции.Блоки «высаживаются» на специальный клей.
Многие специалисты считают шпунт более удобным материалом, чем гипсокартон. Плиты укладываются быстро, работа ведется сама, стена гладкая, тонкая (около 10 см), прочная и с приемлемой звукоизоляцией (в квартирах плотные плиты обычно укладывают в один слой без дополнительных звукопоглощающих прокладок). Из-за отказа от использования стекловаты и других наполнителей технология считается более экологически чистой.
Есть и недостатки у пазогребневого. Во время строительства с тяжелыми плитами нужно обращаться осторожно, чтобы не было сколов. Также у материала есть ограничения в плане дизайна — из прямоугольных блоков невозможно построить стены с изгибами и полукруглыми арками.
Для возведения внутренних стен обычно используют пустотелый или полнотелый керамический кирпич. Полнотелый кирпич лучше подходит для создания перегородок, на которые будет висеть что-то тяжелое (раздвижная деревянная дверь, дубовые книжные полки).
Не зря кирпич считается традиционным материалом — он обладает оптимальной звукоизоляцией, прочностью и влагостойкостью. Также в кирпичной стене несложно расположить любую арку, нишу или другой декоративный элемент. Однако недостатки технологии также весьма заметны. Кирпичную перегородку придется построить достаточно долго, а затем тщательно зашпаклевать и оштукатурить. К тому же этот материал значительно дороже гипсокартона или шпунта, а нагрузка на опорную плиту между этажами больше.
Примеры удачной перепланировки — мудро двигать стены
Как правило, решение превратить однушку в двушку с помощью дополнительной стены связано с необходимостью разграничить личное пространство для нескольких членов семьи. При этом заранее нужно смириться — одна из отрезанных стеной половинок останется без окна.
Чтобы вместо просторной комнаты не получился огрызок нормальной комнаты и темного туалета, нужно правильно продумать декор и систему освещения.При искусственном разделении однокомнатной квартиры дизайнеры рекомендуют активно использовать в отделке зеркала и по возможности строить не глухие стены, а светопрозрачные перегородки, пропускающие свет.
Московский стройкомплекс учел массовое желание россиян перекроить пространство малогабаритных квартир и разработал целый официальный альбом разрешенных перепланировок. В каталоге представлены конструктивные идеи, отвечающие основным требованиям действующих норм и не требующие дополнительного согласования.Эта информация особенно полезна для владельцев старого жилья на вторичном рынке — современные новостройки, как правило, спроектированы более грамотно. Например, однушку в доме серии И-1723 можно юридически переделать в соответствии с разными потребностями семьи — отделить спальню от гостиной или вырезать небольшой кабинет.
Оба варианта перепланировки не предполагают существенного изменения конфигурации жилья — кухня и санузел остаются на месте, сносится только легкая перегородка, которая предназначалась для входа, и появляется дополнительная дверь (либо через кухню, либо через прихожую).
Перед тем, как начинать масштабную стройку дома, еще раз взвесьте все «за» и «против». Строительство новых стен и перенос старых — дело дорогое и хлопотное. Может, удастся добиться желаемого эффекта за счет грамотной расстановки мебели и зонирования комнаты?
Зрительно увеличено пространство маленькой комнаты:
Светлые оттенки стен и мебели
Вертикальные акценты в интерьере (полосы на обоях, высококонтрастные стеллажи)
Контрастная окантовка на потолке
Более темная торцевая стена с окном (увеличивает пространство) Яркое точечное освещение
Заметный акцент в дальнем от двери углу комнаты — торшер или статуэтка
Дизайн и перепланировка однокомнатной хрущевки.Дизайн однокомнатной хрущевки без перепланировки (фото). Варианты перепланировки однокомнатной квартиры в хрущевке. Ремонт в хрущевке. 32 кв.м
В большинстве случаев многие молодые люди начинают самостоятельную совместную жизнь в небольших квартирах. При этом, конечно, не хватает денег на покупку большого дома на первом этаже, а вы уже хотите его иметь. Однако современными дизайнерскими решениями даже небольшую квартиру можно спроектировать намного лучше, чем большое жилище.
Важно изначально рационально расставить всю имеющуюся мебель в условиях однокомнатной хрущевки, при этом избавившись от всех лишних предметов, которыми вы давно не пользовались.
И такие вещи, может быть, жалко выбрасывать, однако, если вы не смогли найти их в течение года, считая «еще полезными», то не стоит хранить их в маленькой квартире, иначе они будут скоро начинают напоминать помойку.
Сортируя вещи и выбрасывая все ненужное, нужно понимать, что от этого вы только выиграете, потому что таким образом вы хотя бы освободите место для более полезных и нужных вещей.
Несмотря на малые габариты, всегда можно переделать однокомнатную хрущевку так, чтобы жилище стало выглядеть намного просторнее, уютнее и светлее. Но, чтобы этого добиться, необходимо очень серьезно отнестись к переоборудованию, тщательно подбирая и продумывая мебель и учитывая все нюансы в дизайне помещения.
При ремонте 1-комнатной квартиры в хрущевке определенную часть средств придется вложить в обязательном порядке, так как безупречный и законченный интерьер получить невозможно, если в комнате установлена старая мебель.
Главный фактор готовности любой квартиры, особенно маленькой, — это умение быстро найти нужную вещь, а не желание организовать необычный декор в домашнем дизайне. Учитывая все это, стоит делать подбор мебели исходя из запросов и пожеланий самих жителей, которые планируют здесь жить в будущем.
Совет дня! Чтобы спроектировать максимально комфортные условия в квартире, вам следует самостоятельно заняться дизайном интерьера своего жилища, ведь только вы будете окончательно знать и представлять, что именно вы хотите в итоге видеть в комнате, чтобы ощутить максимальный комфорт.
Расстановка мебели
В процессе расстановки предметов мебели в хрущевке стоит учесть, что нужно с помощью вещей заполнить следующие места в квартире:
- В углах стоит разместить шкафы или мебель;
- На стенах над диванами отлично будут смотреться стеллажи и полки;
- В коридорах также неплохо разместить полки, что также позволит увеличить свободное пространство, сэкономив место в доме.В крайнем случае, всегда можно будет разместить на освободившемся месте понравившуюся негабаритную мебель.
Если вы собираетесь приобрести новинки, стоит учесть тот факт, что без ремонта новая мебель и гарнитура не смогут так выигрышно смотреться в дизайне помещения, подчеркивая в этом случае лишний раз недостатки и недостатки. интерьера однокомнатной квартиры. Полы и стены в комнате будут выглядеть намного более изношенными и потерявшими былую свежесть.В этом случае восторг от перемены в одно мгновение исчезнет, как только вы расставите все предметы на свои места.
Небольшой совет! Решив обновить старую мебель в хрущевке, стоит провести хотя бы небольшие косметические работы внутри квартиры, которые позволят современной мебели гармонично вписаться в обновленный интерьер.
Зонирование в однокомнатной квартире
Как уже отмечалось, в хрущевке могут проживать не только люди в возрасте, но и совсем молодые семьи, а потому как наиболее оптимальный вариант обустройства строго жилища станет кардинальным. Решение исполнить, ведь даже несмотря на тесноту комнаты, все молодые пары тоже хотят жить в комфорте и красоте.
В этом случае в комнате будут полностью отсутствовать какие-либо перегородки, что позволит не только увеличить полезную площадь в доме, но и оформить интерьер в виде современного. Кроме того, зонирование в однокомнатной хрущевке даст возможность улучшить жилищные условия.
Стоит отметить, что в такой квартире должна располагаться всего пара дверей — только в самых важных местах, а именно у входа и санузла. Подбирать мебель следует исходя из дизайна обустроенной зоны, что позволит воплотить ее в красивой спальне, гостиной или офисе.
Для зонирования и разграничения внутреннего пространства в квартире можно использовать различные ширмы, перегородки или стены.
Кроме того, различные дизайнерские решения и секреты позволят визуально разделить все пространство в хрущевке на разные зоны. Можно использовать самые разные отделочные материалы, будь то ковролин, либо на кухне и в комнате.
На потолке можно расположить различное освещение. Для однокомнатной квартиры такое решение является наиболее оптимальным, так как оно подходит в большинстве случаев, решая при этом проблему низкой освещенности.
Совет! Можно удачно разделить общее пространство на отдельные зоны разными способами, например, совершенно по-разному подойти к вопросу оформления спальни и кухни.
Нюансы в интерьере
Чтобы в результате интерьер вашей однокомнатной хрущевки был максимально уютным и комфортным, есть смысл обратить внимание на способы визуально расширить пространство, используя подходящий цвет. Как правило, для этого в интерьере комнаты используются только светлые оттенки.
При этом поверхность стен должна быть немного темнее потолка. Идеальным вариантом может стать использование глянцевого потолка или использование глянцевых поверхностей при отделке поверхностей комнаты. Отражения помогут зрительно избавиться от ощущения границ, создав в голове единую картинку.
В нашем случае не стоит использовать натяжные и подвесные потолки, так как они только уменьшат восприятие помещения.
Важно! Стены в хрущевке лучше оклеивать обоями, которые имеют мелкий рисунок, также для этих целей могут отлично подойти однотонные и светлые обои.
Мебель, состоящая из отдельных модулей, прекрасно впишется в интерьер небольшой квартиры. Все современные модульные системы отличаются одним общим преимуществом — они дают возможность подобрать все необходимые элементы, отвечающие требованиям жителей, в едином стиле. По возможности всегда можно заказать и шкафы-купе , которые будут расположены по всей высоте и длине стен. В таких предметах мебели наличие антресолей и открытых полок.При этом комплектация изделия полностью удовлетворит ваши требования.
В процессе планирования шкафа-купе стоит заранее определиться, где и какую вещь вы разместите, чтобы точно занять все имеющиеся полки и ниши. При выборе цветовой гаммы предпочтение следует отдавать светлым тонам.
Светлые тона в дизайне позволяют визуально осветить пространство комнаты, сделав квартиру более просторной и светлой.
Безусловно, сильное желание организовать максимально просторное место для проживания с минимальным беспорядком из маленькой комнаты, набитой предметами мебели, побудило мастеров создать мебель, сочетающую в себе несколько функций. Такие изделия можно раскладывать и складывать, их называют трансформируемыми.
К этому виду мебели относятся кровать, которую убирают в дневное время, кресла с потайными отделениями для хранения вещей, диван, трансформирующийся в кровать, а также различные шкафы-купе, отличающиеся большим количеством полок и техники. рассчитан на размещение большого количества вещей.
Небольшой совет! Чтобы удачно разместить всю мебель в однокомнатной квартире, стоит использовать многофункциональные предметы.
Освещение в хрущевке
Правильное освещение тоже может помочь обустроить комфорт и уют, добавив определенной изюминки в дизайн вашей однокомнатной хрущевки, а значит не упускать ее из виду. Отличным решением для небольшой комнаты могут стать точечные светильники, которые можно монтировать как в потолке в паре с люстрой, так и на поверхности стены.Также будет хорошим решением использовать в дизайне интерьера не только глянцевые поверхности, но и зеркала, ведь они не в меньшей степени влияют на визуальное увеличение пространства.
Как правило, однокомнатная хрущевка включает в себя пару окон, так как естественное освещение благотворно влияет на ощущение интерьера.
Если вы владелец узких окон, то можете попробовать расширить с. В этом случае даже лишние полметра будут иметь большое влияние, так как сама квартира маленькая, к тому же в таких местах обычно много света.
Совет! Конечно, в дизайне 1-комнатной квартиры большие окна будут смотреться довольно привлекательно, но не стоит забывать и о предметах интерьера, которые должны оставаться пропорциональными.
Цвет
Сегодня белый цвет — самый популярный цвет для внутренней отделки. Его использование допустимо как для визуального увеличения квадрата, так и в качестве фона. В то же время, применяя различные сочетания белого цвета с другими цветами, можно наконец получить оригинальный и интересный дизайн помещения.
Также с помощью белого цвета можно удачно преобразить существующий интерьер хрущевки, добавив в него различные аксессуары, что придаст стилю современности и красоты. В качестве таковых могут выступить различные столы, дополнительные подушки, диван, а также настенные плакаты, которые тоже выглядят потрясающе.
Не забывайте об акцентах, которые могут красиво смотреться в маленькой квартире. Например, если есть светлый диван, его можно дополнить цветными и яркими подушками.
Чтобы придать законченный вид и красивый внешний вид однокомнатной хрущевке после ремонта стоит придерживаться только своих предпочтений и вкусов.Не нужно использовать в дизайне квартиры сильно яркие цвета, если ваш любимый — зеленый. Всегда можно украсить комнату и выбрать мебель светло-зеленых оттенков, которая не уменьшит и без того маленькую комнату.
Не забывайте о современных технологиях. Раньше почти все использовали его дома. Такой вариант также можно найти интересным в оформлении современного интерьера. Однако далеко не всегда он сможет красиво вписаться в дизайн жилища, больше напоминая о прошлом постсоветском времени.
Это решение особенно актуально для небольших помещений, где сегодня наиболее популярны подвесные телевизоры, которые крепятся специальной подставкой прямо к стене. Таким образом, его станет намного легче воспринимать, а сама квартира станет намного просторнее и свободнее.
Сегодня при ремонте однокомнатной квартиры можно удачно подобрать небольшой холодильник, как на фото, который лучше всего разместить на кухне маленькой хрущевки в самом дальнем от подъезда углу, так как этот предмет в любом случае станет самым большим из всех имеющихся в доме.
При наличии соответствующих финансов можно сделать заказ на горизонтальный холодильник, который помимо своего прямого назначения может выполнять еще и роль столешницы.
Модерн позволяет организовать в доме максимальный уют и комфорт. Вы всегда можете подобрать интересные идеи прямо по фото, а также объединить понравившиеся варианты отделки в свое уникальное решение:
В любой ситуации лучше всего попробовать провести ремонт маленькой хрущевки с помощью полная перепланировка.В этом случае однократно проведенный ремонт позволит организовать максимально приятный дизайн жилища, сделав максимально комфортным местом для жилья и полноценным местом для проживания на долгое время.
Главный недостаток хрущевки — небольшие размеры: комнаты, кухни, санузлы. К тому же низкие потолки, часто отсутствие балкона (лоджий в этих домах никогда не было).
Самый простой вариант: снятие дверей и снос внутренних стен, за счет чего будет создано единое пространство, которое можно планировать совершенно по-разному.
Кухня
Не лучший вариант совмещения прихожей, кухни и холла: кухню, пусть и условно, следует отделить от пространства комнаты, пусть только световой, раздвижной, перегородкой, например, ширмой.
Объединяющим элементом может служить раскладной, в разложенном состоянии — большой стол, который может стоять на линии, разделяющей гостиную и кухню. Если в квартире проживает только один человек, то еще лучше будет держать в комнате стол — это превратит трапезу из обычного поглощения еды в эстетический эпизод.
Во время приготовления перегородку следует сдвинуть, чтобы свести к минимуму проникновение запахов от готовки в комнату: именно этот аспект снижает положительный эффект объединения пространства.
Чтобы визуально увеличить размер кухни, особенно если она очень маленькая: купите узкие высокие шкафы, а навесные шкафы разместите либо с выступом, либо в шахматном порядке, что увеличит пространство для размещения посуды, сохранив эффект свободного космос.
Комната
В зависимости от размеров комнаты следует продумать ее дизайн, чтобы в ней поместилось все необходимое, но при этом сохранялся эффект простора.
Балкон
Если в квартире есть балкон, вход на который в хрущевке обычно производится из комнаты, его необходимо правильно использовать. Обратившись в специализированную фирму по остеклению балконов, следует заказать там не просто остекление и размещение полок, но и создание там термокамеры для хранения овощей и фруктов.
Его необходимо приобрести: круглый год этот прибор поддерживает одну и ту же температуру, все хранящиеся продукты отлично сохраняются, а кухонное пространство очень избавлено от ненужной мебели. На застекленном балконе также можно разместить инструменты, спортивный инвентарь, а также те предметы домашнего обихода, которые не используются ежедневно, например, тару и консервную технику.
Комната очень маленькая, лучше отделать в стиле минимализм: комнату нужно разделить на зоны спальни, рабочей комнаты, отдыха и так далее.Но каждая из зон при всем своем миниатюрном размере должна быть удобной и не стеснять движений.
Для этого лучше всего использовать складную мебель. Например, для спальни приобретите кровать, которая на сутки поднимается к шкафу, освобождая место.
Комнату большего размера можно обставить в классическом стиле: в центре поставьте диван или кровать, лицом к стене, а по углам поставьте вместительную высокую мебель для хранения вещей.
Все, что можно разместить на стенах, например, телевизор, лучше всего размещать именно так: с метражом дорог каждый квадратный сантиметр.
Вспомогательные помещения — санузел
Обычно он комбинированный, но даже в этом случае дизайн можно хорошо продумать. Например, вместо санузла поставить душевую кабинку, а на освободившееся место установить стиральную машину.
Достаточно много места можно освободить при замене коммуникаций в ванной на современные, компактные. Обычно ванная производит удручающее впечатление из-за плохой вентиляции, поэтому решение этого вопроса позволит уделить внимание облицовке стен, отделке потолка и правильному размещению мебели для ванной.
Обычно туалет и ванная очень маленькие, но выглядят еще меньше из-за того, что в них есть антресоли для хранения вещей. Этот элемент мебели создает впечатление не коридора, а пещеры, поэтому сразу же снижается энергетика интерьера.
Хрущевка доставляет массу хлопот хозяевам квартиры. Чаще всего требуется перепланировка для создания комфортного жилья и практичного зонирования, но это удается далеко не во всех случаях.Именно поэтому желательно знать, как сделать вашу квартиру комфортной с перепланировкой и без.
Редевелопмент под хрущевку
Редевелопмент квартиры позволяет создать индивидуальный проект, который удовлетворит потребности конкретного хозяина. Для кого-то это необходимость места для большой компании друзей, кому-то нужно организовать изолированное, а для кого-то просто уютное место для вечернего отдыха. В зависимости от потребностей проводится перепланировка, которая впоследствии будет дополнена подходящим дизайном.
Важно! Любая перепланировка требует разрешения определенных властей. Без такого документа можно получить крупный штраф или необходимость восстановления первоначальной планировки квартиры, что также потребует больших финансовых затрат.
Перед тем, как начать перепланировку, нужно получить план квартиры и определить, где находятся несущие стены. Эти конструкции нельзя сносить, так как это может повлечь за собой разрушение здания.
Варианты перепланировки однокомнатной хрущевки
Самый простой вариант — это снятие дверей и снос всех внутренних перегородок.В результате образуется одно большое помещение, в котором необходимые для жизни функциональные зоны можно расположить наиболее удобным образом. Обычно к таким помещениям относят спальню, кухню, гостиную. Перенести ванную комнату в большинстве случаев невозможно, так как снизу над жилой комнатой соседей разместить ее невозможно.
Современная планировка квартиры-студии несколько теряет свои позиции, так как подходит в основном для молодых и свободных людей. Пары, особенно с ребенком, должны правильно разделить пространство, чтобы у каждого члена семьи был свой уголок.Дизайн однокомнатных хрущевок для семьи очень сложен.
Обязательно разделить кухню — перегородка может быть не сплошной или может быть ширмой, раздвижной перегородкой. Должна быть разница в отделке стен и пола. Но здесь стоит отметить, что, несмотря на разницу в функциональности, отделка разных комнат должна дополнять друг друга, чтобы дизайн всей квартиры был единым и цельным.
Мебель для маленькой кухни
Маленькие помещения требуют четкого представления о выборе мебели.Он должен быть высоким до потолка и узким. Такие шкафчики смогут еще больше увеличить высоту потолков, которая в хрущевке редко достигает трех метров.
Причем стремление не загромождать пространство не должно противоречить основной функции кухни — на ней должно быть достаточно места для хранения всей посуды и необходимых инструментов или техники. Кроме того, на такой небольшой площади необходимо уместить зону приготовления, приготовления продуктов и зону приема пищи.
Дизайн однокомнатной хрущевки предполагает преобладание светлых тонов без резких контрастов и большой мебели. Все это сделает его возможным и функциональным.
Обустройство однокомнатной хрущевки
Помещение совмещает в себе не только место для сна и работы, но и место для приема гостей, а отчасти и для хранения вещей, поэтому оборудование и дизайн комнаты должны быть тщательно продуман.
Фото, которое вы можете увидеть в этой статье, гораздо чаще используют без перепланировки, так как перепланировка требует оформления большого количества бумаг.В гостиной рационально расположите раскладной диван, который днем будет использоваться для сидения и приема гостей, а ночью — как спальное место.
Не лишним будет разместить у торцевой стены большой шкаф-купе с зеркальными дверцами. Это даст возможность обеспечить удобную зону хранения и зрительно расширить пространство.
Обустройство спальни в малогабаритной хрущевке
Дизайн однокомнатной хрущевки, 30 кв. который должен включать в себя все функционально необходимые зоны — довольно сложная работа.Прежде чем приступить к обустройству, нужно тщательно продумать расположение каждой полки и каждого элемента мебели.
Так как переставить мебель на таком маленьком пространстве очень сложно, можно на листе бумаги нарисовать эскиз квартиры и вырезать из картона фигурки предметов, которые должны быть в квартире, а затем забрать их перемещение их оптимального дизайна. Это позволит заранее продумать расстановку мебели и показать, рационально ли приобретать те или иные элементы интерьера, и сочетаются ли они между собой.
Если приглашение гостей не входит в планы хозяев, предпочтительнее оборудовать полноценную спальню с большой кроватью. Как правило, кровать располагается посередине комнаты, по бокам от нее располагаются прикроватные тумбочки, а у торцевой стены — большой шкаф. Для спальни не стоит выбирать зеркальные двери, лучше будет, если они будут декорированы подходящим узором или узором, продолжающим общую идею спальни.
Хрущевка без перепланировки требует большой осторожности при выборе и расстановке мебели, чтобы она рационально вписывалась в интерьер, дополняя его.
Обустройство ванной в хрущевке
Большая проблема в хрущевках — это размер ванной. Разместить полноценный санузел, унитаз, раковину, тумбочку и стиральную машину бывает довольно сложно. В некоторых случаях это помогает, однако нужно тщательно продумать дизайн. Перепланировка однокомнатной хрущевки буквально избавляет хозяев от проблемы маленькой ванной.
Если перепланировка невозможна, нужно рационально использовать пространство. Например, можно заменить ванную с душевой кабиной, установить небольшую угловую раковину и получить угловой подвесной шкаф. При таком расположении можно легко оборудовать ванную комнату как стиральной машиной, так и корзиной для грязного белья.
В интерьере ванной комнаты ароматические свечи не будут лишними. Они придадут помещению уют и создадут романтическую атмосферу, в которой можно расслабиться после тяжелого рабочего дня.
Особенности дизайна однокомнатной хрущевки
Главная особенность обустройства малогабаритных квартир — минимум мебели при максимальной функциональности. Поэтому уместным будет раскладной диван, стол-книжка, гардеробы и другая многофункциональная мебель, подчеркивающая дизайн однокомнатной квартиры хрущевки. Перепланировка квартиры позволяет использовать больше стилей и вариантов дизайна, так как дает больше свободного места для экспериментов.
Чтобы сэкономить место в ванной, можно заменить стандартную душевую кабину, оборудовав подвесную душевую кабину без отдельного поддона.Установка унитаза со встроенным сливным бачком, а также зеркал, стремящихся расширить пространство, сделать его более воздушным и светлым, поможет визуально увеличить пространство.
Дизайн однокомнатной хрущевки: фото квартир с перепланировкой
Создание однокомнатной квартиры прочно прижилось у населения. Ведь снести перегородки и объединить кухню и гостиную достаточно просто. Но, несмотря на это, предпочтение такой перепланировке отдают свободные люди.Для пар, особенно с ребенком, такой вариант неудачный. Ведь ни у одного члена семьи не будет собственного места для отдыха и уединения. Дизайн однокомнатных хрущевских студий может иметь самые разные стилистические воплощения.
Комфортно отделить спальную зону можно с помощью гипсокартонной перегородки, стеллажа или подвижной перегородки. Такой подход создаст минимальный комфорт в ночное время и ощущение уединения.
Дизайн однокомнатной хрущевки без перепланировки
Обустройство квартиры без перепланировки основано на использовании многофункциональных элементов мебели, отсутствии резких цветовых контрастов и едином стиле всей квартиры.Сложнее всего устроить однокомнатную угловую хрущевку. Дизайн такой квартиры требует не только рационального использования пространства, но и создания дополнительных источников тепла.
Создание полноценной спальни в квартире обеспечивает высокую степень комфорта. Чтобы было место для приема гостей, можно попробовать совместить кухню с балконом.
Но поскольку это большая редкость, оборудовать кухню нужно максимально рационально и сэкономить свободное пространство.Для удобства можно разместить небольшой мягкий уголок.
Раздельный корпус, пусть и небольшой, лучше, чем ничего. Но надо грамотно обустроить однокомнатную хрущевку. В комнате мало места, поэтому необходимо сделать дизайн стильным, функциональным. Как сделать так, чтобы планировка комнаты хрущевки 1, дизайн фото которой собран в подборке, помогла сделать в ней удобную для проживания? Рассмотрим особенности организации помещения с небольшой площадью.
Перед тем, как приступить к ремонту однокомнатной хрущевки, стоит определиться, какой дизайн вы планируете получить.Главное, чтобы она была функциональной, но не забывала о стиле. При планировке общей площади хрущевок предварительно необходимо составить план, дизайн-проект. Можно просто набросать его на бумаге в виде схемы, обозначить на плане расположение всех предметов в комнате. Поскольку квартира маленькая, лучше убрать из нее все ненужные предметы, которые будут мешать.
При выборе способа зонирования важно помнить, что планировка пространства должна обеспечивать его разделение на части или зоны.В этих случаях применяется перепланировка за счет зонирования мебелью или расширения комнаты за счет сноса стен.
Особое внимание стоит уделить выбору материалов для потолка, стен и пола. Это правило обязательно. Следует выбирать светлые оттенки, способные расширить площадь даже визуально. Главное, чтобы он не был загроможденным и мрачным. Освещение должно быть по периметру комнаты. Не стоит использовать яркие светильники с интенсивным освещением, вместо того, чтобы расширять, они наоборот сделают пространство меньше.
Что касается расстановки мебели, то она должна быть гармоничной. Не выбирайте громоздкую мебель. Предпочтение следует отдавать модифицированным и многофункциональным объектам. Пусть будет немного, но будет удобно, практично, комфортно. Ниже представлено множество фото с вариантами мебели для небольших комнат. Декорирование — залог красивого и стильного дизайна. Чтобы он был практичным, стильным, не забывайте использовать для украшения различные декоративные элементы, но не слишком много.
Методы раскладки
Большое значение имеет создание будущего проекта.Но для реализации плана необходимо получить разрешение компетентных органов на реконструкцию помещения или снос стен. Но стоит учесть, что во всех однокомнатных хрущевках стены не несущие, поэтому если убрать хотя бы одну из них, постройка не треснет и уж тем более не рухнет.
После получения разрешения на снос стены можно приступать к оформлению общего пространства. Но обязательно помните, что единственной целью должно быть визуальное расширение и организация всего пространства.
Планирование можно выполнить двумя способами:
- Снос стен — их можно сносить между общей комнатой и кухней. Для расширения площади ванной, если есть перегородка на стену, ее можно убрать;
- Второй способ — это планировка пространства с помощью мебели и установка ограждающих конструкций переносного типа.
Зонирование помещения
Зонировать пространство однокомнатной хрущевки важно, от этого зависит общий вид всей квартиры.Зонирование позволит разделить основную комнату на зоны, что в будущем обеспечит комфортное пребывание. Желательно сначала посмотреть фото с вариантами зонирования однокомнатной хрущевки.
Особенности зонирования хрущевки:
- В основном помещении важно разделить площадь на зоны. Это можно сделать с помощью мебели. По центру стоит установить диван, он послужит отличным отделением основной зоны от дополнительной для отдыха или работы;
- если в семье есть дети, то красивой ширмой с элементами декора можно выделить небольшой уголок и разместить там кроватку для ребенка.Поскольку экран является портативной конструкцией, при необходимости его можно снять или переставить;
- между залом и балконом можно убрать стену, в результате чего комната станет больше, а значит, ее будет легче разделить на зоны. Балконную комнату важно хорошо утеплить, чтобы в дальнейшем холода зимой не распространялись по комнате;
- на кухне, комнату следует разделить на рабочую и обеденную зоны. Это делается с помощью мебели.Эти зоны можно разделить небольшим столом или барной стойкой.
Если удастся получить разрешение на снос стены между кухней и залом, то в этом случае важно отделить зону готовки, чтобы запах от готовки не распространялся по комнате. Для этого используйте большой шкаф или перегородки. Как это сделать вы можете посмотреть на фото.
Если в квартире есть балкон, то его можно использовать как дополнительную комнату. Главное, чтобы он был хорошо утеплен, для этого на стены устанавливается минеральная вата, кроме того, все фиксируется листами гипсокартона.Далее гипсокартонный материал можно красиво оформить отделочными материалами. На балконе можно сделать дополнительное место для отдыха, работы или место, где можно разместить гостей, если они вдруг заснули допоздна. Должен быть небольшой диванчик или кровать. Если позволяет место, поставьте небольшой стол. Как обустроить балкон мебелью можно увидеть на многочисленных фото.
Как делать поверхности
Дизайн также зависит от дизайна всех поверхностей однокомнатной хрущевки.Обязательно стильно и красиво отделаны потолок, стены и пол во всех комнатах. При планировке не забывайте об оформлении стен кухни, ванной и прихожей. В этом, безусловно, поможет фото с видами оформления поверхностей в хрущевках. Предварительно можно составить план, в котором будут указаны типы материалов для поверхностей.
Стены в зале рекомендуется оклеивать светлыми обоями. Дизайн обоев должен быть белым, бежевым, персиковым, желтым, светло-коричневым, салатовым.Главное, чтобы чехол сочетался со стилем квартиры. Для кухни используются обои светло-зеленого, желтого или коричневого цвета. Обязательно сделайте фартук из рабочей зоны кухонной плитки. Он должен сочетаться с мебелью, вписываться в дизайн. Его качество должно быть высоким. Ванная, как правило, отделывается плиткой светлого тона. В прихожей рекомендуется использовать обои с крупным рисунком.
Обязательно составьте план дизайна потолка.Его можно побелить, установить натяжной потолок, но ни в коем случае не многоуровневым. Многоуровневые конструкции уменьшат размер по высоте. Если для потолка используются натяжные потолки, то их поверхность должна быть глянцевой. Глянцевая поверхность обеспечивает увеличение площади. На потолки можно установить плитку с зеркальной поверхностью. Такой вариант подходит для визуального расширения однокомнатной квартиры.
В качестве напольного покрытия можно использовать ламинат, линолеум, ковролин. Главное, чтобы его цвет сочетался со стилем помещения.
Дизайн должен быть широким и просторным, поэтому рекомендуется отдавать предпочтение светлым тонам. отделочный материал. Для декора используются различные вставки на стенах из зеркальной облицовки или из кирпичной кладки. Это сделает дизайн современным, оригинальным.
Освещение
В дизайн-план однокомнатной квартиры в хрущевке включена установка освещения. Освещение должно гармонично вписываться в дизайн, делать его стильным, практичным и многофункциональным.
Так как в этой квартире одна комната, свет нужно расположить так, чтобы он освещал все предметы. На потолке рекомендуется устанавливать точечные светильники. Планировка предусматривает их установку по периметру потолка. Именно в таком расположении свет от них будет падать на все предметы. Светильники не должны быть слишком яркими, лучше белого или голубоватого оттенка. Чтобы выделить определенные зоны для отдыха, чтения, работы, приема гостей, можно установить дополнительные настенные и напольные светильники.
На кухне следует установить большую люстру над обеденной зоной, рабочую зону можно дополнить подсветкой. Для ванной подойдут небольшие люстры с белым или голубоватым светом. Для прихожей аккуратное освещение желтого или белого цвета. Если вдруг возникнут трудности с выбором и вариантами размещения освещения, то можно воспользоваться фото, на котором показано, как размещать световые приборы.
Подбор и расстановка мебели
Прежде чем рассматривать план, варианты расстановки мебели, стоит выяснить, какую мебель нужно использовать для 1-комнатной квартиры.Не покупайте громоздкую мебель, она сделает комнату загроможденной. В холле рекомендуется установить небольшой диванчик. Он не обязательно должен быть огромным, потому что занимает много места. Шкафы должны быть большими и вместительными. Пуфы с внутренним пространством будут служить сиденьями и местами для хранения вещей.
На кухне совершенно необходимо использовать навесные шкафы и рабочий стол. Конструкция гарнитуры должна быть небольшой, но с хорошей вместимостью. В прихожей гардеробная обязательна.Лучше использовать встраиваемую конструкцию.
В плане предусмотрено гармоничное расположение мебели. Общий дизайн однокомнатной квартиры зависит от того, как установлена мебель. Здесь действует главное правило — не мусорить в квартире. Мебели пусть будет немного, но она будет функциональной. Как расставить мебель, рассмотрим варианты:
- Планировка основного помещения зависит от расположения мебели. Диван стоит разместить по центру или у стены; он не должен быть большим;
- если зал совмещен с кухней, то место для готовки обязательно нужно отделить.Для этого можно использовать брус или заборную конструкцию;
- , если установлен шкаф, он должен быть небольшим, но вместительным. Вместо стульев можно установить 3-4 пуфа, они займут небольшое место. Желательно поставить рядом с диваном стол. план предполагает использование сборно-разборных конструкций, поэтому для квартиры можно приобрести модель модификации. Помогут в этом фото, на которых можно будет увидеть варианты столиков для однокомнатной квартиры хрущевки;
- На кухне установлен небольшой гарнитур с навесными шкафчиками.Также можно использовать пространство под подоконником. Там можно установить небольшой шкаф для хранения различных предметов домашнего обихода;
- В прихожей нужно установить гардеробную. Можно использовать шкаф, который встроен в стену.
Лучшее расположение мебели хорошо видно на разных фотографиях. Они показывают расположение каждого предмета. Поэтому при обустройстве желательно использовать различные образцы дизайна.
Обустройство однокомнатной квартиры — процесс сложный, но в то же время увлекательный.Небольшое пространство дает возможности для проявления фантазии. При планировке нужно учесть все — дизайн стен, пола и потолка, установку освещения, габариты мебели, разделение комнаты на зоны с помощью мебели. Только так можно сделать стильную однокомнатную квартиру.
Несмотря на то, что большая часть построенных в конце 1950-х пятиэтажек была снесена или готовится к сносу, несколько серий известного (но не слишком любимого) Хрущева пока что относятся к «невыносимой серии». .Это, например, панели серии 1-515, блок 1-510 и кирпич 1-511, 1-447. Поэтому переделка хрущевки до сих пор остается одной из самых обсуждаемых тем на дизайнерских форумах. В этот раз мы рассмотрим сразу несколько квартир в таких домах. Чаще всего это пятиэтажные дома (есть трех-четырехэтажные варианты) без лифтов и с жилым цокольным этажом. Толщина наружных стен в зависимости от серии 30-40 см, внутренних несущих 20-30 см, перегородок 8 см.
Основная объединяющая черта таких квартир — очень низкие потолки (около 250 см, но в ранних вариантах высота достигает 270 см) и небольшие площади как жилой, так и нежилой частей квартиры. Поэтому по возможности пространство в этой квартире уместнее увеличивать, расширять и объединять, а не разделять. Однокомнатные квартиры невыносимой серии похожи по планировке, немного различаются по площади, а также имеют разную планировку окон и балконов: в угловых квартирах может быть два окна, в неугловых — одно.В каждой квартире есть балкон. Большой плюс в том, что все перегородки внутри квартиры не несущие, а значит, их легко утилизировать.
Некоторые варианты подходят для всех этих серий, некоторые — только для одной, но все они могут быть полезными источниками идей. Причем в большинстве случаев еще до начала ремонта следует согласовать и узаконить перепланировку 1-комнатной хрущевки.
Такие планировки квартир встречаются в домах серий 1-511, 1-447, 1-515 / 5.Вариант с балконом и еще одним окном — угловая квартира. Такая планировка хрущевки может добавить неудобств, а наоборот — открыть много новых возможностей.
Вариант 1-комнатной хрущевки с одним окном и балконом встречается в сериях 1-515, 1-511 и других. Эта планировка, в отличие от других, содержит отдельный санузел и коридор. Это же пространство в других планировках формально считается гостиной, что ограничивает возможность перепланировки.
Здесь балкон находится на длинной стене комнаты; в остальном макет не отличается от первого варианта.Такие квартиры встречаются в серии 1-510.
1. Для всех серий
Редевелопмент
Один из самых очевидных и беспроигрышных вариантов перепланировки однокомнатной маленькой хрущевки — превратить ее в студию. В этом случае прихожая остается изолированным помещением, за дверью которого находится одно общее пространство, состоящее из спальни, гостиной и кухни. Также в углу за перегородкой находится гардеробная, а остальное пространство освобождено от лишних шкафов.
Телевизор, разделяющий спальную и жилую зоны, можно повернуть в любую сторону, небольшой обеденный стол — при необходимости разложить. В ванной комнате установлена ванна, умывальник и унитаз.
Детали
Помещение: изолированная прихожая, общий санузел, гардеробная за перегородкой, совмещенная кухня-гостиная. Подходит как для одного арендатора, так и для пары, для гостеприимных хозяев и ценителей порядка. Для согласования планировки потребуется заменить газовую плиту на электрическую.Плюсы планировки: отдельная гардеробная, свободная жилая площадь. Минусы планировки: отсутствие изолированных жилых комнат.
Даже в небольшой квартире можно уделить прихожей особое внимание и сделать ее самостоятельной интересной комнатой.
Чтобы отделить спальню или гардеробную, не обязательно возводить стену с дверным проемом — достаточно просто отгородить комнату, оставив проходы шириной 65-90 см с одной или двух сторон.
В случае небольшой студии стоит обратить внимание на скандинавский стиль интерьера.Здесь важна легкость и отказ от лишних деталей, которые помогут зрительно расширить пространство квартиры.
2. Для серии 1-515, 1-511
Редевелопмент
В данном случае упор делается на большую кухню, ванную и санузел. Благодаря коридору увеличен размер ванной комнаты, поэтому ванна, стиральная машина и умывальник размещены в отдельной ванной комнате, а умывальник и туалет — в соседней ванной комнате. Такая перепланировка хрущевки дает возможность добавить кухне пространство бывшего коридора — перегородка практически полностью снесена.В результате на кухне достаточно места для большой рабочей зоны, широкого холодильника и стола на четыре-шесть человек. В гостиной раскладной диван, большой шкаф вдоль стены, кресло и телевизор.
Детали
Помещение: раздельный санузел и ванна, общая кухня и спальня-гостиная, коридор. Подходит тем, кто мало времени проводит дома; для тех, кто любит готовить и собирать гостей за столом. Для согласования планировки потребуется замена газовой плиты на электрическую.В других сериях коридор формально является частью комнаты, но иногда можно согласовать перенос на него санузла. Плюсы планировки: большая удобная кухня и ванная; свободное место; нет ненужного коридора. Недостатки планировки: отсутствие полноценной кровати и отдельной спальни.
Такая перепланировка однокомнатной хрущевки хороша тем, что появляется большая кухня. Если очень постараться, можно спланировать кухню так, чтобы в ней все поместилось, и каждый предмет занял свое логическое место.Усилия, приложенные на стадии проекта, окупятся радостью от работы на такой кухне.
Не стоит загромождать стену гостиной шкафами или тумбой под телевизор. Иногда лучшее решение — повесить на стену, а пространство вокруг оставить свободным.
Маленькая хитрость для отдельной ванной — наличие умывальника небольшого размера. Это решает многие проблемы и добавляет функциональности помещению. Такое решение актуально не только для хрущевок, но и для любой малогабаритной 1-комнатной квартиры.
Ремонт в 2-х комнатной хрущевке (86 фото): от дизайна до планировки
Учитываем особенности планировки
У типичной хрущевки очень маленькая кухня — 5-6 квадратов. Еще одна особенность — низкие потолки до 2,7 метра. Двухместные номера без перепланировки часто бывают неудобными, особенно если вторая комната проходная.
Стандартная площадь двухкомнатной хрущевки — порядка 43-44 квадратных метра. Дома пятиэтажные. Большинство комнат смежные, окна выходят в одну сторону (кроме угловой квартиры с двумя окнами).Из достоинств хрущевки можно выделить наличие кладовой и балкона.
Взгляните на стильный дизайн-проект двухкомнатной квартиры 44 кв.м в хрущевке.
Рассмотрим подробнее наиболее распространенные типы раскладок.
Книга
Такая планировка считается самой неудачной: проходная комната с широким дверным проемом играет роль столовой, а в семье с детьми — еще и спальни. Уединения в таком пространстве добиться сложно.Чтобы разделить помещение, придется пожертвовать частью комнаты. Без перегородок, для сноса которых требуется разрешение, хрущевку можно превратить в просторную студию.
На фото небольшая угловая кухня со встроенным холодильником и столиком, вписанным в подоконник.
Трамвай
Столь популярное название (также используется слово «паровоз») получила планировка расположенных друг за другом помещений, напоминающих вагоны. Гостиная с балконом — проходная, но переделка решает эту проблему: если отрезать часть комнаты и превратить ее в коридор с двумя входами, в получившейся нише можно организовать систему хранения вещей.
На фото — кремовая комната с акцентной стеной в зоне с телевизором.
На фото проект двухкомнатной хрущевки, 44 кв.
Майка
Довольно удобная планировка, при которой комнаты разделены кухней и коридором, но хрущевки такого типа не распространены. Его еще называют «бабочкой» из-за схожести комнат с симметричными крыльями.
На фото крохотная кухня, где глянцевые белые шкафы нивидим занимают все межпотолочное пространство.
Думаем над перепланировкой
Владельцы бюджетных двухкомнатных хрущевок все чаще решаются на перепланировку квартиры, и это правильно: перепланировка позволяет разделить две комнаты, изолировать членов семьи друг от друга, увеличить свободное пространство.
Важные моменты при ремонте квартиры
Перед тем, как начать реструктуризацию, нужно обратить внимание на несколько нюансов:
- Перед ремонтом необходимо составить рабочий дизайн-проект со всеми расчетами.Это поможет избежать икоты в будущем.
- Все изменения в хрущевке необходимо вносить в технический паспорт квартиры, для этого нужно обращаться в БТИ.
- Не все этажи внутри хрущевки несущие, поэтому договориться о такой переделке не составит труда. Но бывают случаи, когда это вообще невозможно!
Популярные варианты
Практика показывает, что реконструкция хрущевок дает потрясающий результат — при объединении санузла освобождается место для стиральной машины; при сносе перегородки между комнатой и кухней остается место для обеденного стола.На схемах ниже показано еще несколько способов повысить комфорт двухкомнатных хрущевок.
2 комнаты смежные в хрущевке
Смежные комнаты — это комнаты, у которых общая стена. Планировка с прилегающими комнатами и разными входами называется «мини-улучшенная». Если в квартире есть кладовая, то можно увеличить площадь кухни: кладовую демонтируют, на свое место переносят санузел, а к кухонной площади прибавляют 3 квадратных метра.
На фото увеличенная кухня в двухкомнатной хрущевке, где нашлось место для обеденного стола.
Без перегородки между кухней хрущевка превратится в евроквартирный дом, а хозяин получит просторную кухню-гостиную. Если кухня газифицирована, проем необходимо оборудовать раздвижной перегородкой. Лоджию можно утеплить и использовать под офис.
С проходной
Такая планировка удобна, если человек живет один. В миниатюрной кухне достаточно места для небольшого стола и всего необходимого для приготовления пищи, а одна из комнат превратится в гостиную с проходом в спальню.Если в двухкомнатной хрущевке проживает пара или семья с ребенком, квартира нуждается в переделке. За счет строительства дополнительной перегородки коридор расширяется, межкомнатная дверь переносится на новое место, и жильцы получают две изолированные комнаты.
На фото обновленный хрущевский дом, где проходная комната выполняет функции столовой и гостиной.
В связи с реконструкцией напольного покрытия многие дизайнеры стремятся увеличить высоту помещения до 3-х метров.Это позволяет визуально изменить внешний вид комнаты, встроить высокие вместительные шкафы-купе и установить кровать-чердак.
От двушки до трехкомнатной квартиры
При обустройстве трешек в малогабаритной хрущевке комнаты значительно уменьшатся в размерах. Один из них может потерять дневной свет. Выход в такой ситуации — окна в перегородке, проемы под потолком или фальш-окно.
На фото — полностью измененная двухкомнатная хрущевка: спальня расположена за стеной с окном, а коридор переоборудован в гостиную.
Студия в хрущевке
Если снести все стены (кроме несущих), получится квартира со свободной планировкой. Осталось только зонировать пространство столом, легкими перегородками или мягкой мебелью.
На фото современная квартира с историей и свободной планировкой.
Делаем грамотное зонирование
Просторное помещение часто нужно делить на зоны. Кухню удобно отделить от комнаты столиком или барной стойкой.Для того, чтобы спрятать кровать в гостиной, возводятся стеклянные или решетчатые перегородки, ставятся ширмы, вешаются шторы. Важно, чтобы конструкция не «съедала» пространство.
На фото небольшую кухню отделяет многофункциональная барная стойка.
Разделять зоны полезно при помощи открытого стеллажа: он не только будет выполнять роль перегородки, но и станет местом хранения вещей.
На фото перегородка-стеллаж, разделяющая диван и кровать.Чтобы не загромождать комнату, некоторые вещи складывают в ящики.
Прорабатываем дизайн каждой комнаты
Рассмотрим дизайн двухкомнатной хрущевки подробно, ведь каждая отдельная комната имеет свои особенности.
Дизайн гостиной в хрущевке
Чем больше людей проживает в квартире, тем больше загружена центральная комната в хрущевке — холл. Чтобы все члены семьи не только удобно собирались здесь по вечерам, но и принимали гостей, место для сна следует скрыть.Хорошее решение — раскладной диван-кровать. В сложенном виде не занимает много места. Напротив него можно повесить телевизор или установить декоративный камин. Иногда проходная комната может совмещать роль столовой, гостиной и спальни.
Кухня
В тесной кухне 6 кв. М непросто разместить современную технику и обеденную зону. Без перепланировки на такой небольшой площади вряд ли поместится четырехконфорочная плита, рабочая поверхность и холодильник.
Смотрите подборку идей для кухни в хрущевке.
Для экономии драгоценных сантиметров рекомендуется использовать встроенную технику (занимает меньше места), двухконфорочные печи, мебель-трансформер. Если переносить коммуникации на окно, раковину можно встроить в подоконник. Столовую проще обустроить в комнате, либо в коридоре между кухней и тем помещением, которое освободилось после сноса перегородки.
На фото кухня в двухкомнатной хрущевке, оклеенная фотообоями с перспективой, которые делают комнату визуально глубже.
Спальня
Место для сна и отдыха чаще всего располагается в задней комнате. В стандартной серии это узкое пространство, напоминающее прицеп, в котором есть место для двухспальной кровати, шкафа и стола. Оформлен в нейтральных тонах, чтобы не перегружать атмосферу. Зеркала используются для расширения пространства, а мебель на ножках — для того, чтобы сделать интерьер светлым.
Посмотреть еще примеры дизайна спальни в хрущевке.
Отличный вариант — использовать зеркальные шкафы по бокам кровати, которая как бы углубляется в нишу.Полка в изголовье используется для хранения вещей.
Ванная и туалет
В двухкомнатных хрущевках распространены как раздельные, так и совмещенные санузлы. Лучший способ сэкономить место — установить душевую кабину, но не каждый год отказываться от полноценной ванны.
Обязательно посмотрите, как сделать красивый дизайн в ванной
Стиральную машину можно установить под раковиной или вместо нее. Чтобы сохранить воздух и свет в маленькой ванной, стоит использовать минимум разноцветных элементов и открытых полочек.Для отделки лучше выбрать белую глянцевую плитку, ее использование дает потрясающий эффект: визуально стираются границы, увеличивается количество света.
На фото белая ванная комната в стиле минимализм, ниша которой обрамлена зеркалом.
Детская
Небольшие габариты двухкомнатной хрущевки для семьи с ребенком — не повод отказываться от интересного и функционального дизайна: достаточно лишь при ремонте применить несколько хитростей, которые позволят уместить в ней все необходимое. детская.Это и изображения на стене, и угловые столики, и двухъярусные кровати. Нельзя пренебрегать межпотолочным пространством — там можно разместить шкафчики с вещами.
Обязательно посмотрите, как правильно оформить детскую в хрущевке.
Прихожая и коридор
Чтобы использовать прихожую в хрущевке для хранения верхней одежды и обуви, рекомендуется выбирать шкаф до потолка: это сэкономит место и поместит больше вещей. Некоторые двухкомнатные хрущевки оборудованы кладовыми, которые можно переоборудовать в гардеробные.
Офис или рабочее место
Работа за компьютером часто требует уединения. Кабинет можно расположить на утепленном балконе, в нише, отведенной на несколько метров у окна или спрятав за шторами.
Что важно учитывать при ремонте квартиры?
Маленькая квартира может выглядеть стильно и просторно, если с фантазией подойти к ремонту. Специалисты рекомендуют оформлять стены и потолок в светлых пастельных тонах, но от этих советов всегда можно отступить: например, сделать потолок на полтона темнее, добавить яркие акценты, оригинальную мебель, динамичные принты.Декоративный камин украсит гостиную, добавит уюта и элегантности.
На фото светлая отделка в гостиной со встроенным шкафом-купе с зеркальными дверцами, что значительно экономит пространство, увеличивает свет и визуально углубляет комнату.
На фото ремонт двухкомнатной хрущевки в стиле прованс.
В тренде по-прежнему пол с текстурой под натуральное дерево, который гармонирует с любой обстановкой и добавляет тепла. При ремонте узких пространств постелите ламинат или паркет поперек комнаты, чтобы зрительно расширить его.Лучше, если во всей квартире будет одинаковое напольное покрытие (кроме ванной и кухни): это сохранит единство дизайна.
Смотрите еще один интересный проект ремонта в двушку за 800 т.р.
На фото гостиная в стиле лофт с ламинатом, выложенным поперек комнаты.
Обустраиваем двушку с комфортом
Чтобы пространство было уютнее и интереснее, в двухкомнатной хрущевке стоит использовать многоуровневое освещение.Точечные светильники в потолке выглядят современно и функционально: можно проложить проводку так, чтобы регулировать количество света. Локальное освещение углубляет пространство, а свет сверху подчеркивает низкие потолки.
Не менее важную роль играет расстановка мебели. Обычно комнаты делятся на «приватные» и «общественные» зоны. Даже если в квартире проживает более двух человек, создать свой уголок для каждого вполне возможно. Например, кровать-подиум, которая служит местом для хранения вещей и спальным местом, дает ощущение уединения и уединения.
Для экономии места в общей зоне можно использовать угловой диван (он занимает угол, который часто остается свободным), а вместо обеденных стульев можно приобрести табуреты (их легко спрятать под столом).
На фото гостиная с оригинальной люстрой и домашний кинотеатр, украшенный светодиодной лентой.
Декор и текстиль — вот что придает типичному двухкомнатному хрущевскому дому своеобразие. Шторы блэкаут добавляют уюта, но сужают пространство и поглощают свет, поэтому, чтобы не перегружать комнату, стоит выбрать однотонную лаконичную ткань.Яркие декоративные детали (картины, обои с модными принтами, акцентные стены) выигрышно смотрятся только на нейтральном фоне.
Выбор стиля комнаты
Придерживаясь определенного стиля в дизайне двухкомнатной хрущевки, хозяин придает своему жилищу привлекательность и особый характер, а небольшие размеры квартиры отходят на второй план. Кто обратит внимание на тесную гостиную, если она оформлена в стиле лофт? Залитая светом, с состаренной кирпичной кладкой и оригинальной мебелью, промышленная квартира запомнится как стильное пространство, а не «хрущевка».
Для маленькой квартиры идеально подойдет скандинавский подход: светлые тона, натуральные фактуры и тонкие линии в декоре и дизайне мебели удивительно добавят интерьеру воздушности, простора и в то же время уюта. Если применить те же приемы, уменьшив количество вещей и украшений, двухкомнатная хрущевка будет оформлена в стиле минимализма, который отличается сдержанностью и лаконичностью.
Современный стиль вобрал в себя все лучшее из других направлений, отличающихся продуманностью и привлекательностью окружающей среды.Яркие акценты используются везде, а мебель универсальна. Освещение, цветовые решения и зеркала сыграют на увеличение площади, отлично вписавшись в интерьер.
Классический стиль, благодаря изысканной мебели, роскошному декору в виде арок, лепнине и дорогому текстилю, позволит создать изысканный интерьер, в котором легко будет забыть о малых габаритах двухкомнатной хрущевки.
Хай-тек — это стиль, который выделяется среди других.Словно подсмотренный из будущего, с обилием подсветки, глянцем и округлой мебелью в светлых тонах он растворит границы и сделает хрущевку неузнаваемой.
На фото обеденная зона, украшенная зеркалами, которые добавляют сложности и глубины помещению.
Галерея фотографий
квартиры советского стандарта не хуже других подходят для комфортного проживания: перепланировка может вдохнуть новую жизнь в хрущевку, а стильный и продуманный ремонт скроет недостатки небольшого пространства.
Студия в хрущевке 2 комн. Как спланировать «двухкомнатную квартиру» с проходной
Двухкомнатная хрущевка — «книга» до перепланировки
Двухкомнатная хрущевка — «книга» после перепланировки
Как видно из рисунка, после перепланировки небольшая площадь зала значительно уменьшилась, но многие были готовы пойти на это, лишь бы не переходить друг друга.
Увеличить кухню в таких квартирах практически невозможно, поэтому самыми неудачными планировками я называю «книжки».
Перепланировка двухкомнатной хрущевки — «трамвай»
Двухкомнатная хрущевка — «трамвай» до перепланировки
Двухкомнатная хрущевка — «трамвай» после перепланировки
Вот только просится стена, отделяющая зал. Зал уменьшен, но, поскольку его площадь составляет 18 квадратных метров, оставшегося места вполне достаточно для комфортной жизни. Шкаф, который сделан в конце коридора, очень вместительный и удобный.
Кухню тоже увеличить практически невозможно.
Перепланировка двухкомнатной хрущевки — «мини-благоустройства»
Здесь комнаты изначально раздельные, что уже большой плюс. А еще можно увеличить кухню, перенеся унитаз в кладовую, а ванную — в унитаз. Смотрите фото до и после перепланировки.
Как оформить в квартире проходную комнату, чтобы разместить все важные функциональные зоны и обеспечить уединение и комфорт всем членам семьи? Предлагаем 4 хороших варианта планировки.
Двухкомнатная квартира — это достаточно комфортное жилье как для молодых пар, так и для семей с детьми. Но что делать, если одна из комнат является проходной — можно ли обустроить ее с комфортом и удобством? Мы разбираемся в этом вопросе с архитектором Анастасией Киселевой, а эксперт Максим Джураев рассказывает о нюансах согласования.
Двухкомнатная квартира в доме серии И-209а
Дома типа И-209а — блочные дома башенного типа.Построен в основном в 1970-1980-х годах. В Москве такие дома построили в районах Черемушки, Беляево, Бирюлево, Хамовники, Медведково, Кузьминки. В Подмосковье — в городах: Люберцы, Балашиха, Одинцово, Красногорск, Химки, Щербинка, Сергиев Посад, Лобня.
К недостаткам планировки можно отнести очень маленький санузел и проходную. гостинная. Из плюсов: большая лоджия и относительно просторная кухня. А наличие ненесущих перегородок позволяет улучшить планировку.
Вариант 1: для семьи из двух человек
Вход на кухню сделали из гостиной: за счет такого переноса получилось увеличить площадь ванной и установить в ней все необходимое. В коридоре перенесена перегородка: достаточно места для встроенного шкафа, а сбоку от комнаты образована ниша — домашний кабинет вписался идеально.
На кухне установили просторный П-образный гарнитур с барной стойкой.В гостиной — удобная ТВ-зона, а в спальне — полноценная гардеробная.
Экспертное заключение: Редевелопмент по проекту и техническому заключению может быть согласован с любой проектной организацией, имеющей согласование с СРО.
Вариант 2: для семьи с ребенком
Проходная комната разделена на две зоны: спальное место родителей и гостиную с телевизором. Спальня была отделена раздвижными перегородками.На утепленной лоджии размещено рабочее место для родителей. На кухне гарнитур расставили вдоль окна — удалось освободить место для большого обеденного стола.
В изолированной комнате — детская: в ней находится большой письменный стол, кровать и шкафы для хранения вещей. Санузел оставлен без изменений, стиральная машина — под раковиной.
Экспертное заключение: Согласовать такой план просто — нужен проект и техническое заключение. Организация, которая будет проводить ремонтные работы, также должна иметь соответствующее согласование СРО и предоставлять акты скрытых работ по гидроизоляции и шумоизоляции пола.
Вариант 3: для семьи с двумя детьми
Для детской отвели отдельную комнату. На небольшой площади можно разместить все необходимое: шкаф, двухуровневую кровать, письменный стол, спортивный уголок. Проходная комната была разделена на две зоны: так, чтобы в коридоре можно было оборудовать небольшую гардеробную.
На кухне установили большой Г-образный гарнитур с правильным рабочим треугольником и обеденным столом. В санузле разместили душевую кабину: сразу же нашлось место для стиральной машины и шкафов для хранения вещей.
Заключение эксперта: , поскольку затронуты только ненесущие перегородки, для утверждения потребуется только проект перепланировки и техническое заключение любой проектной организации с одобрением СРО.
Вариант 4: для семьи с одним ребенком
В данном варианте рассмотрена возможность переноса проема в несущую стену. Если сдвинуть проем, можно сделать две отдельные комнаты. Тогда в большой комнате будет родительская спальня, а в маленькой — детская.На остальной площади есть прихожая, гардеробная и частично санузел. Кухня совмещает в себе функции гостиной: здесь поместится небольшой диванчик и телевизор.
Экспертное заключение: в данном варианте проем в несущей стене перенесен, но трудностей с согласованием не возникнет. Вам понадобится проект перепланировки и техническое заключение проектной организации.
Если вы владелец небольшой жилплощади с двумя проходными комнатами, не спешите отчаиваться.Ведь границы комнаты можно сдвигать, а пространство расширять. Как это сделать? С помощью грамотной перепланировки и визуальных эффектов.
Расширение жилой площади
Типовая квартира с коридором, гостиной-лагерем и спальней с небольшой кухней называется на языке риэлторов «трейлером». Жить в нем неудобно. Поэтому перед началом ремонтных работ нужно сделать перенос стен. Перепланировка 2-х комнатной квартиры с проходными комнатами будет успешной при соблюдении нескольких условий:
- совмещает столовую и гостиную;
- снос межкомнатных перегородок;
- уменьшенный размер коридора;
- совмещение маленького туалета и ванной.Взаимодействие с другими людьми
Минимализм в интерьере
Чтобы получить красивый интерьер современной 2-комнатной квартиры, можно обратиться к принципам минимализма. Это очень простой и лаконичный стиль. Что для него характерно?
1. Соблюдение простых геометрических форм. Подбирайте мебель без изгибов и витиеватого декора. Светильники из матового стекла, пластмассовых и хромированных деталей могут быть круглыми, квадратными или многоугольными.
Планировка квартиры «Трейлер» в Москве.Фото
2. Для отделки поверхностей выберите несколько цветов, один из которых бежевый или белый. На его фоне выгодно смотрятся яркие предметы декора.
3. Не перегружайте ситуацию деталями.
4. Используйте большие зеркальные и глянцевые поверхности. Взаимодействие с другими людьми
Техника обработки поверхности
Чтобы максимально увеличить площадь, оформляя интерьер современной 2-х комнатной квартиры, используйте эти приемы.
1.Для покраски стен используйте два цвета — основной белый и контрастный. Например, в спальне и в спокойной будет смотреться бирюза. Холодная кухня идеальна для кухни с южными окнами. синий цвет. В гостиной можно смешать несколько ярких тонов для декора центральной стены.
2. Обратите внимание на освещение. Света должно быть много. Идеальный вариант — сочетание центральной люстры с дополнительными направленными светильниками.
Грамотная перепланировка 2-х комнатной квартиры с проходными комнатами превратит ее в функциональное, модное и комфортное жилье.
Перепланировка 2-х квартир хрущевки. Разница в дизайнерских решениях. Использование перепланировки помещения
Объяснить ограниченность жилплощади «хрущевки» достаточно просто. В те времена главной задачей было предоставить каждой семье отдельное жилое пространство, поэтому малогабаритные «хрущевки» были спасением.Конечно, об удобстве и комфорте никто не думал. Однако перепланировка комнаты хрущевки 2, имеющая ряд своих особенностей, недостатков и неоспоримых достоинств, позволит с удобством решить проблему.
Основная причина, по которой большинство владельцев малогабаритных хрущевок решается на перепланировку, — это чувство дискомфорта от неудобных комнат и ограниченной жилой площади, связанной с небольшой площадью помещения.
Преимущества преобразования
- Все комнаты расширяются и становятся просторными, благодаря чему интерьер кажется максимально жилым и теплым;
- Большинство стеновых перегородок не несущие, в связи с чем перепланировка 2-х комнатных квартир проводится достаточно быстро;
- Благодаря улучшенной обновленной планировке владельцы могут в полной мере выразить свою фантазию об обустройстве и дизайне, в результате чего получится максимально комфортный и стильный дом. №
К недостаткам перепланировок относятся:
- Необходим комплекс ремонтно-проектных работ, связанных с демонтажем старых перегородок, переносом дверных проемов и строительством новых простенков на территории квартиры;
- площадь одной из соседних комнат уменьшена за счет разделения;
- Перепланировка «хрущевки» требует немалых материальных затрат на демонтаж и конструкторские манипуляции. Однако выполнение работ своими силами сэкономит деньги;
- Впереди долгие строительные работы, сопровождающиеся повышенной степенью загрязнения мусором и пылевыми образованиями.
Размещение комнат в старых хрущевских квартирах может быть нескольких вариантов, поэтому способы перепланировки хрущевок 2 комнаты могут быть совершенно разными. Чтобы выбрать наиболее подходящий вариант, нужно разобраться с особенностями оригинального дома:
- «Книга» — вид планировки, при котором площадь квартиры составляет 41 кв. метр, комнаты смежные. Пожалуй, самый неудачный вариант;
- «Трамвай» — площадь 48 кв.метров, опять же смежные комнаты, но разделены они гораздо безболезненно;
- «Мини-благоустройство» — получила свое название из-за практически идентичной планировки с квартирами в 9 этажей. Его площадь составляет 44,6 квадратных метра. метров, комнаты изолированные, смущает лишь небольшой размер кухни, которую при желании можно увеличить до 8 квадратов;
- «Майка детская» — довольно редкий вид планировки площадью 46 квадратных метров. метров. Здесь две комнаты расположены симметрично, их размеры довольно большие.Минус планировки — при увеличении площади кухни придется вторгаться в комнату.
Согласование процедур перепланировки
Планировка двухкомнатной квартиры в хрущевке — довольно интересный и интересный процесс. Однако стоит заранее подумать, как согласовать всю дальнейшую работу с соответствующими органами и получить необходимые разрешения. Главное, убедиться, что ремонтные манипуляции не относятся к концепции реконструкции, которая предполагает установку, замену, перенос инженерных сетей, электрического, сантехнического и другого оборудования.К работам перепланировки относятся изменения конфигурации жилья. Любые изменения вносятся в технический паспорт помещения. Если этого не сделать, то можно получить штраф, а в худшем случае еще и вернуть все на место.
Перепланировка 2-х комнатной квартиры «Хрущевка» хороша тем, что почти все стены здесь не несущие. Поэтому любые манипуляции с ними именуются «простой перепланировкой», поэтому внесения в план этажа, который принимают в БТИ, всех запланированных изменений будет достаточно.
Варианты переоборудования хрущевки
Вне зависимости от вида предстоящих манипуляций перепланировкой «хрущевки» 2 комнаты в любой квартире должны быть указаны три функциональные зоны:
Снос всех простенков
Самым радикальным является возможность сноса всех ненесущих стеновых перегородок (кроме санузла и санузла). В результате получилась квартира-студия, в которой зонирование участков осуществляется различными дизайнерскими приемами и перегородками.
Делим смежные комнаты хрущевки
Смежные комнаты доставляют массу неудобств своим хозяевам. Однако выход есть. Эти комнаты разделены, уменьшая полезную площадь одной. Вариантов может быть несколько:
- Помещения располагаются друг за другом — в этом случае чаще всего расширяют пространство проходной комнаты, перемещая перегородку на наименьшую площадь. Далее, в комнате меньшего размера спальное место оборудуют кроватью, тумбочками и небольшим шкафом.Используя несколько простых советов дизайнеров, даже из такой небольшой площади можно сделать очень уютную и теплую комнату. А в получившейся большой гостиной будет удобно собираться компании для приятного времяпровождения;
- Помещения располагаются вдоль друг друга — здесь лучше просто снести стену между комнатами, заменив ее колоннами, аркой или ширмой. Такой тип планировки подходит для современных молодых пар. А вот семьям с детьми перегородку лучше оставить на месте, перекрыв дверной проем.Тогда меньшую стену выносят вглубь территории, при этом площадь двух комнат уменьшится. На получившихся простенках в каждую комнату прорезаются дверные проемы. В результате получаются отдельные комнаты с удлиненным коридором.
Объединяем гостиную с зоной кухни
При перепланировке 2-х комнатной квартиры в хрущевке холл часто совмещают с зоной кухни, где разместить всю необходимую мебель и предметы быта просто нереально. .Благодаря удалению стены получается освободить несколько квадратов полезной площади. А используя в дизайне приемы визуального расширения пространства и приемы грамотного зонирования, получится создать действительно удобный и функциональный дизайн.
Этот вид переоборудования имеет неоспоримые преимущества:
- при совмещении этого типа легко выделяются участки для приготовления пищи, отдыха и приема пищи. Эти зоны отличаются декором поверхностей стен, пола и потолка.Можно построить мобильные этажерки, ширмы или шторы разных типов;
- корпус получается максимально функциональным;
- Такие комбинированные зоны обладают высокими эстетическими показателями, являются современным направлением дизайнерской моды.
Стильный и оригинальный — это способ выделить функциональные части барной стойки. Если на кухне есть балкон, желательно использовать его как дополнительные полезные счетчики. Для этого следует утеплить балкон, отделать качественными материалами, после чего можно будет использовать либо как отдельное рабочее место, либо разместить там бытовую технику и столовые принадлежности.
Совмещаем ванную с туалетом
Для каждой перепланировки 2-х комнатная «хрущевка» подбирается индивидуально. Однако мнение специалистов все же следует учитывать. Увеличить пространство ванной можно, объединив ее с унитазом. Выглядит такая перестановка оригинально, к тому же она практична.
Благодаря такому сочетанию можно будет выиграть несколько метров милосердия, на которых можно разместить стиральную машину и корзину для белья. При этом несущие перегородки остаются на месте, что немаловажно при перепланировке двухкомнатной квартиры в хрущевке.
В получившемся помещении разместить огромную ванну не получится, а если заменить ее на компактную угловую модель или душевую кабину, свободного места для передвижения будет достаточно.
Приемы зонирования пространства
Для достижения максимального комфорта и стиля в вашей новой квартире следует использовать простые дизайнерские приемы зонирования.
Во-первых, вам следует правильно подобрать мебель для вашего жилого помещения. Лучше отдать предпочтение компактной мебели в виде раскладных столиков, кроватей-трансформеров, диванов, шкафов-купе.
Второе — отделочные материалы выбраны сознательно. Светлые тона в отделке позволяют визуально расширить границы. Разница в фактуре подчеркнет функциональные зоны. Акцентные цвета подчеркивают достоинства и выделяют важные предметы в композиции интерьера.
«Хрущевка» для многих очень неудобный малогабаритный корпус. Однако даже такую квартиру можно превратить в современные многофункциональные апартаменты, которые станут очень теплым и комфортным местом для проживания.
Многие семьи интересуются, как изменить дизайн двухкомнатной квартиры, расположенной в типичной хрущевке. Это связано с небольшими размерами помещения такого жилья. К тому же их невыразительный дизайн требует доработки. Хотелось бы оптимально распределить доступное пространство, сделать его более привлекательным. Для таких квартир даже создаются типовые проекты перепланировки.
Чтобы сделать правильный выбор, следует ознакомиться с особенностями таких проектов, а также с основными проблемами.Существует несколько вариантов перепланировки двухкомнатной хрущевки, которые довольно практичны и популярны. Особенности реконструкции квартиры следует уточнить перед началом работ.
Ключевые параметры
Напомним, первая линия по производству таких построек была закуплена во Франции. Во многих крупных странах были построены подобные дома. В Советском Союзе их строительство было завершено к 1985 году. К этому времени было построено около 300 миллионов квадратных метров.м
Есть несколько вариантов планировки однокомнатных квартир, которые располагались в таких домах:
Таких вариантов планировки квартир очень много, поэтому потребность в их обустройстве в современном дизайне очень высока.
Основные проблемы
Несколько десятилетий назад квартиры в домах хрущевского типа были очень востребованы и востребованы. Обычно они переселялись из коммунальных квартир и общежитий. В свое время Хрущевы совершили своего рода революцию в жилищном строительстве.Сегодня качество жилищных условий улучшается, поэтому многие владельцы квартир в хрущевке сталкиваются с множеством проблем.
Что такое однородная квартира в хрущевке? Для такого жилого помещения характерно наличие прилегающих жилых помещений, небольшой (6 кв. М.) Кухни и совмещенного санузла. Прихожая тоже имеет довольно скромные размеры. Один из распространенных вариантов — это двухкомнатная квартира. Жилая площадь 25-31 кв. м при общей площади квартиры в пределах 46 кв.м. Эта квартира изображена на фото.
Высота потолков в комнатах относительно небольшая — не более 2,6 м. Тем более, что балкон также не отличается большими габаритами. Капитальные стены имеют толщину не более 32 см, а перегородки — 7-9 см.
В современных условиях владельцы двухкомнатных квартир в хрущевке хотят повысить комфорт проживания в своем доме. Они стараются найти оптимальный вариант оформления комнат, который бы соответствовал площади существующих комнат и их расположению относительно друг друга.Один из возможных вариантов — это кардинальная перестройка квартиры. В этом случае сносятся внутренние стены, а вместо них создается отдельная комната. Этот метод осложняется необходимостью связаться с определенными органами для согласования своих действий.
Второй вариант — это перепланировка отдельных частей квартиры. Благодаря этому можно объединять отдельные комнаты. Например, из кухни и коридора можно сделать одну комнату.Дизайн квартиры создается путем создания определенного стиля, без перестройки.
Планировка квартиры без перепланировки
В случае, когда перепланировка двухкомнатной хрущевки невозможна, можно выбрать из множества элегантных решений. Одна из основных задач — визуальное расширение комнат. Есть несколько способов решить эту проблему:
- Дополнительную площадь можно получить при возведении декоративных элементов квартиры из гипсокартона.За основу выбираются ниши, стеллажи и полки.
- Если увеличить проемы дверей или окон, либо сделать их арочными, комнаты визуально увеличатся почти на 25%.
- Для проходных комнат двухкомнатной квартиры возможно строительство раздвижных дверей. Такое решение сэкономит место и поможет создать оригинальный дизайн.
- Сделать интерьер разных комнат более привлекательным, а комнату — объемной, позволит зеркальное оформление различных поверхностей квартиры.
Создание оригинального дизайна комнат для двухкомнатных хрущевок без перепланировки — очень популярная задача. Если радикальные методы неприемлемы, придется отказаться от стандартных. Иногда бывает достаточно хорошего ремонта квартиры. При этом не нужно перестраивать. Важно учитывать несколько ключевых моментов:
Лучше, если квартира будет перепланирована в соответствии с ее размерами, но это достигается редко.Однако есть масса полезных идей при просмотре фото готовых проектов квартир.
Дизайнерские хитрости
Чтобы максимально увеличить пространство комнат, вам потребуется создать оптимальное сочетание материала отделки поверхностей, их оттенка и рисунка. Дизайн двухкомнатной квартиры обычно выполняется в соответствии с такими профессиональными приемами:
С помощью этих советов можно зрительно увеличить пространство комнаты и сделать интерьер оригинальнее (как на фото).
Необходимые документы
Если вы решили перепланировать комнаты, вам нужно будет обратиться в специальные инстанции. У них должна быть определенная компетенция. Обычно за конкретный дом отвечают местные власти.
Лучше заранее собрать документы, которые нужно подать в определенные инстанции:
Дополнительных документов не требуется.
Сроки приема документов
Хозяин квартиры подает в комиссию документы и должен получить на них расписку.Рассмотрение плана перепланировки комнат осуществляется в течении 1,5 месяцев. Обследование обычно длится не дольше указанного срока.
По истечении определенного срока посылка будет сертифицирована. Сдан собственнику квартиры. Теперь можно приступать к перепланировке комнат. Однако комиссия не всегда может удовлетворить заявку. Обычно это происходит в следующих случаях:
- Пакет документов был неполным.
- В плане не учтены определенные требования и нормы.
- Документы отправлены не в ту комиссию. Чтобы этого не произошло, сначала следует выяснить, где именно находится руководящий орган, который может заниматься такими вопросами.
В случае неправомерного отказа вопрос может быть решен в судебном порядке. Однако, если пакет документов собран правильно и план перепланировки квартиры соответствует всем требованиям, руководящий орган в заявке не откажет.
Подготовка к работе
При перепланировке двухкомнатной квартиры в хрущевке следует учитывать типовые варианты дизайна комнаты. Однако чаще всего они не учитывают желания собственников жилья. В этом вопросе можно ориентироваться на существующие модели планировки комнаты, но об индивидуальности в этом случае придется забыть.
Лучший способ создать интерьер комнаты, отвечающий вашим желаниям — перепланировка квартиры.Перед столь серьезной работой следует доработать план этажа. В схему двухкомнатной квартиры входит:
- электрическая схема;
- количество установленных розеток;
- метраж комнат;
- толщина перегородок и стен;
- расположение водопровода.
Сегодня существует множество компаний, которые специализируются на анализе различных квартир и обустройстве разных комнат. Однако выгоднее создать свой проект и согласовать его с опытным сантехником и электриком.
Использование ремонта помещения
Один из самых популярных вариантов дизайна для хрущевок — совмещение одной из жилых комнат с кухней. Когда сносят перегородку между этими комнатами, следует позаботиться о визуальном разделении зон. Они должны элегантно сочетаться друг с другом. Можно выделить такие зоны — зоны приема пищи, приготовления пищи и приема гостей.
При работе необходимо соблюдать ряд требований:
- Каждому члену семьи должна быть выделена личная зона только для него.
- Если объединить гостиную и кухню, следует четко ограничить рабочую зону, где будут располагаться плита и мойка, а также холодильник со шкафами.
- Часто в такой квартире есть место для компьютера, места для отдыха, кабинета. Ограждение должно быть очень легким. Стационарные перегородки между комнатами лучше не устанавливать.
- Для разграничения зон следует использовать барную стойку, стеллаж, стол, полки разного уровня, зонирование лучше проводить разными цветами интерьера, либо изменяя уровень потолка и пола.
Сотовый и ажурный дизайн, по которому вьются растения, смотрится очень элегантно. Кухня обычно изолируется с помощью точечных светильников.
Нитевые завесы
Стена, находящаяся между соседними комнатами, просто сносится при перепланировке двухкомнатной квартиры. Однако разграничить пространство все же необходимо. Для этого можно использовать филаментные шторы. Они отлично пропускают воздух и свет. Такие изделия способны придать помещению современный вид.При этом очень эффективно зонирование комнат. Если вы захотите снять занавес из ниток, это можно будет сделать в любой момент. В этом случае комната станет визуально больше.
С помощью накидных штор в квартире можно создать модный дизайн. Таким изделиям присущи практичность и высокие декоративные свойства. Разнообразие цветовых решений позволяет максимально рационально разграничить пространство.
Минимализм
Часто выбор стиля интерьера требует правильной отделки помещения.Поскольку помещения, полученные в результате перепланировки, имеют большую площадь, они должны быть правильно меблированы. Самый разумный выбор стиля — минимализм. Такое решение сделает двухкомнатную квартиру в хрущевке современной и стильной.
Оттенки в дизайне комнат выбраны светлые. Это позволяет расширить пространство. К тому же такие тона положительно влияют на эмоциональный фон. Более популярны бежевый, синий и белый цвета.
Различия в конструкции
Для трехкомнатных квартир подходят многие варианты перепланировки.Один из проектов — квартира-офис. При его выборе большая комната совмещается с кухней и прихожей. В результате получилось очень просторное помещение. Оставшаяся комната становится спальней. Большая комната создает кабинет. Он отделен прозрачной перегородкой. Цвета и освещение выделяют остальные зоны — прихожую, кухню, место приема пищи с семьей.
В совмещенном санузле также необходимо выполнить определенное зонирование.Вместо сидячей ванны следует установить душевую кабину и стиральную машину. Сюда же может поместиться и столешница. При такой перепланировке площадь квартиры используется более рационально. В этом случае в имеющейся жилой площади можно выделить гардеробную, гостиную, ванную комнату, кабинет для работы.
Еще один проект, довольно популярный среди владельцев двухкомнатных квартир в хрущевке, — «квартира на троих». Такой вариант предполагает соединение прихожей с большой комнатой.Однако в спальню шкаф-купе не переносится. Кухня ограничена раздвижной перегородкой. Электроплита и холодильник сдвинуты в нишу. Спальня уменьшена на 6-12 см. Такой вариант оформления квартиры довольно популярен.
Еще одно решение перепланировки квартиры — проект, в котором формируются изолированные комнаты. В этом случае получается 2 спальни, полностью отделенные друг от друга. Между комнатами образуется небольшой коридор.Здесь монтируют перегородку с дверью. Прихожая станет длиннее. Это пространство можно использовать под гардероб. В результате этой работы получаются довольно небольшие помещения, однако они полностью изолированы друг от друга. Уголок, который образуется между комнатами, превращается в кладовку.
Чего нельзя допускать
При перепланировке маленькой квартиры можно создать оригинальный дизайн и обустроить квартиру под свои нужды. Однако важно помнить о некоторых запретах:
- Прикасаться к несущим стенам запрещено.То же правило касается опорных элементов. Для таких работ обычно составляется специальный проект.
- Место для установки унитаза не рекомендуется.
- Система вентиляции не должна подвергаться воздействию.
- Запрещается переносить газовую плиту или перекрывать доступ к ней.
Конечно, однокомнатная квартира в хрущевке не дает такого простора фантазии в период перестройки, как другие варианты жилья, но создать современный дизайн в ней можно.Основное правило — визуально расширить пространство.
Как разобрать перегородку
Реконструкция квартиры проводится с достаточно большим количеством строительного мусора. Во время сноса перегородок проводится большая работа, связанная с образованием пыли и мусора. Это касается сноса стен или выполнения в них проемов под двери.
Мягкую мебель, ковры и одежду лучше выносить из квартиры на время перепланировки.При отсутствии такой возможности все это сносят в углу, подальше от места работы, и накрывают пленкой.
Затем следует подготовить мешки для мусора. Есть несколько способов демонтировать перегородки. При выполнении таких процедур следует учитывать время — лучше, когда соседи на работе. Кроме того, важно провести снос стен так, чтобы количество пыли было минимальным.
Чтобы определить, какой способ сноса перегородок лучше, стоит обратить внимание на советы опытных строителей:
- Внутренние стены между комнатами в хрущевке хорошо поддаются демонтажу.Такие работы проводятся с помощью электроинструмента. Их использование снижает временные затраты. Для начала нужно определить, из чего сделана перегородка. В двухкомнатной квартире в хрущевке.
- Демонтировать гипсовую перегородку можно с помощью сабельной пилы. Стена разрезается небольшими кусочками.
- Перед тем, как разрушить стену, необходимо проделать в ней отверстие 8х12 см. С помощью сабельной пилы легко прорезать гипсовую стену.
- Разрушить стену будет намного проще, если у вас есть под рукой самодельное устройство под названием крокодил.Инструмент может быть изготовлен из 2 штук арматуры и лома. К торцу лома приваривают стержни, укрепляя их распорками. Фурнитуру необходимо заточить.
Если вы решили перепланировать свою однокомнатную квартиру самостоятельно, потратиться можно только на консультации архитектора, сантехника и электрика. Все работы по демонтажу стен и отделке помещения несложно выполнить своими руками.
Дизайн 1 комн. Хрущевка без перепланировки.Угловая однушка с двумя окнами хрущевка. Дизайн однокомнатной хрущевки
10 июня 2016 г.Специализация: отделка фасадов, внутренняя отделка, строительство коттеджей, гаражей. Опыт садовода-любителя и огородника. Также есть опыт ремонта автомобилей и мотоциклов. Хобби: игра на гитаре и многое другое, на что мало времени 🙂
На первый взгляд, в однокомнатной квартире не так много возможностей для создания комфортного и уютного интерьера.Однако дизайнеры не перестают доказывать, что для них нет ничего невозможного. В этой статье я познакомлю вас с некоторыми правилами и идеями, которые помогут оформить дизайн своей однокомнатной хрущевки красиво, стильно и практично.
Особенности конструкции
Как правило, общая площадь однокомнатной квартиры в хрущевке составляет 27 квадратных метров. При этом площадь комнаты всего 17 квадратных метров, под кухню отводится от четырех до шести с половиной «квадратов».
На этих 17 квадратных метрах владельцам такого жилья необходимо разместить несколько важных площадей:
- зона сна;
- зона рабочего или компьютерного стола;
- обеденная зона — на кухне в четыре квадратных метра вряд ли удастся устроить обеденную группу.
В то же время у таких квартир есть свое преимущество — строительных материалов требуется гораздо меньше. Благодаря этому можно реализовать более дорогую отделку, не выходя за рамки «демократичного» бюджета.
Что касается дизайна, то его можно спроектировать двумя способами:
№- с перепланировкой, позволяющей увеличить полезную площадь квартиры;
- без перепланировки — в этом случае применяются некоторые дизайнерские хитрости, позволяющие визуально расширить пространство. К тому же увеличение площади осуществляется за счет использования функциональной мебели и ее рациональной расстановки.
Ниже мы познакомимся с обоими вариантами дизайна.
Редизайн
Однокомнатная квартира
Чаще всего в однокомнатных квартирах проживают холостяки или молодые пары, у которых еще нет детей.В этом случае оптимальное решение — перепланировка однокомнатной квартиры. Суть его в том, чтобы исключить все, кроме стен, отделяющих ванную комнату от остального пространства.
Это решение имеет ряд преимуществ:
- Значительно увеличена полезная площадь квартиры . А если кладовая вам не нужна, ее также можно использовать для расширения пространства или для обустройства отдельного санузла;
- в комнате становится больше естественного света за счет чего интерьер однокомнатной квартиры в хрущевке кажется просторнее.Кроме того, расширяется выбор цветовой гаммы — наряду со светлыми оттенками можно использовать темные цвета, особенно если окна выходят на юг.
- После удаления разделов вы решите, как распорядиться пространством. Другими словами, некоторые ограничения стираются.
На кухне в квартире-студии необходимо использовать качественную вытяжку, чтобы во время готовки пар, шлак и запахи не распространялись по объединенному пространству.
Чтобы дизайн студии выглядел целостным и гармоничным, необходимо использовать зонирование, позволяющее разграничить пространство квартиры.
Зонирование можно реализовать несколькими способами:
- с использованием разных отделочных материалов. Например, керамическая плитка может быть выложена на полу в кухонной зоне, а ламинат или любой другой материал в жилой зоне;
- с использованием освещения — в этом случае используются разные источники света для разных зон;
- мебель — при таком зонировании она выполняет не только свою основную функцию, но и служит перегородкой.Например, кухню можно отделить от жилого пространства с помощью барной стойки или стеллажа. Кстати, последний очень удобен для хранения всевозможных мелочей.
Как правило, дизайнеры комбинируют сразу несколько приемов зонирования, что позволяет добиться максимального эффекта.
Переделку «однушки» в ателье необходимо узаконить в БТИ.
Таким образом, перепланировка однокомнатной квартиры сделает ваш дом просторнее и уютнее.Поэтому в последнее время это решение пользуется большой популярностью, особенно среди молодежи.
Использование балкона
Если в вашей квартире есть балкон, считайте, что вам повезло, так как один из вариантов перепланировки — объединение жилой площади. Конечно, балкон имеет небольшую площадь, как правило — всего 4 квадратных метра и даже меньше. Однако в «хрущевке» необходимо с пользой использовать каждый квадратный сантиметр, не говоря уже о метрах.
Чтобы балкон использовался с пользой, его нужно застеклить и обогреть.На нашем портале вы можете найти подробную информацию о том, как это сделать самому.
Есть много вариантов использования пространства балкона. Например, если он примыкает к комнате, можно оборудовать кабинет компьютерным столом или зону отдыха парой кресел и небольшим журнальным столиком.
Если балкон примыкает к кухне, его можно превратить в обеденную зону. Часто в качестве бруса дизайнеры используют несущую стену, отделяющую балкон от квартиры. Это решение тоже довольно практично и оригинально.
Сохранить стены и сэкономить место
Основные правила регистрации
Если переделка квартиры в студию вам не подходит, придется по возможности прибегнуть к различным дизайнерским приемам для экономии места.
В то же время, чтобы добиться положительных результатов, необходимо соблюдать определенные правила, которые перечислены ниже:
- комната должна быть оформлена в светлых тонах , так как темные тона зрительно уменьшают пространство;
- отказаться от крупных элементов декора , например, больших картин, ваз и т. Д., поскольку они будут визуально приближать стены, в результате чего маленькая комната станет даже меньше, чем есть на самом деле;
- то же самое и с большой мебелью — отказаться от высоких и широких шкафов, больших комодов и т. Д .;
- следует использовать зонирование для разделения пространства внутри одной комнаты , о чем уже было сказано выше;
- откажитесь от роскошного стиля дизайна . Чем проще хрущевский интерьер с 1 комнатой, тем лучше и гармоничнее он выглядит.
При зонировании следите за тем, чтобы комната не была перегружена разделительными линиями.
Кроме того, следует учитывать, что все части интерьера, даже если они разделены на отдельные зоны, должны гармонировать между собой.
С учетом этих правил можно переходить к проектированию. Этот процесс состоит из нескольких этапов:
Стиль интерьера
Как уже было сказано выше, дизайн однокомнатной квартиры в хрущевке должен быть простым и лаконичным.
Поэтому лучше всего использовать следующие стили интерьера:
- минимализм;
- высокие технологии;
- в стиле модерн;
- различных городских стилей — лофт, андеграунд и др .;
- традиционный стиль и др.
Следует отметить, что стиль хай-тек — отличный вариант, поскольку предполагает использование различных блестящих и глянцевых поверхностей, хорошо отражающих свет, и тем самым зрительно расширяющих пространство. Однако выбор стиля должен быть в первую очередь вам по душе.
Отделка потолка
В хрущевке потолки невысокие. Поэтому ваша задача — сделать так, чтобы они казались выше или хотя бы не висели над головой.
Для этого соблюдайте следующие правила:
- Оптимальный цвет для потолка — белый, поэтому не стоит красить его в другие цвета, особенно яркие;
- отказаться от многоуровневых потолков, а также от различных декоративных картин и т.д .; Обои
- следует клеить до самого потолка, в этом случае комната будет казаться выше;
- сделайте дополнительную подсветку по периметру комнаты или используйте галтели с подсветкой.
Оптимальное решение для хрущевки — натяжной глянцевый потолок. Также оригинальный вариант отделки — это использование зеркального потолка, он понравится далеко не всем.
Отделка стен и пола
Несмотря на то, что в отделке «однушки» нужно использовать светлые тона, яркие акценты вполне допустимы, а иногда даже необходимы. Главное, придерживаться одного правила — яркие цвета должны занимать не более пятой части комнаты.Но от темных тонов лучше отказаться, особенно в отделке стен и пола.
Если вы планируете покрыть стены сражениями, откажитесь также от полотен с крупными рисунками, которые будут визуально приближать стены. А вот рельефный мелкий орнамент в этом случае вполне допустим. Главное, чтобы она хорошо сочеталась с остальным хрущевским дизайном с 1 комнатой.
Для кухни хорошим выбором станет глянцевая керамическая плитка, которая также визуально добавит комнате простора.
Что касается выбора цвета, в комнате, как и на кухне, предпочтение лучше отдать пастельным тонам:
- голубой;
- бежевый;
- персик и др.
Кроме того, хорошо смотрятся светло-серые и даже белые цвета на стенах. Единственное, это украшение следует дополнить несколькими яркими деталями, например, картинами или текстилем.
Чтобы разнообразить интерьер кухни, а также сделать его более стильным и привлекательным, одну из стен можно выделить ярким цветом.
Что касается напольного покрытия, то отличным решением будут покрытия с текстурой дерева светлых тонов. Например, в гостиной можно использовать ламинат, а на кухне — линолеум. Конечно, можно и настилать натуральный паркет, однако его цена будет намного выше стоимости того же ламината.
Мебель и декор
При выборе мебели руководствуйтесь следующими правилами:
- постарайтесь обойтись минимумом мебели, используя только самые необходимые элементы интерьера;
- Объектом вашего внимания должна быть легкая мебель — это всевозможные складные или стеклянные столы, навесные полки и т. Д.;
- как на кухне, так и в комнате лучше использовать угловую мебель, так как более разумного способа использования углов вы вряд ли придумаете;
- Для хранения книг, а также всевозможных мелочей используйте полки и навесные шкафы. Дело в том, что подвесная мебель создает в комнате ощущение воздушности и легкости. Кроме того, это решение сэкономит вам полезное пространство.
Для экономии места отлично подойдет складная мебель. Например, диван в гостиной днем становится центром зоны отдыха, а ночью становится местом для сна.
Также можно использовать раскладушку, встроенную в шкаф. Благодаря этому днем кровать будет просто убираться, что позволит сэкономить место.
Чтобы обеспечить достаточно свободного места на кухне, используйте компактную технику — небольшой холодильник, микроволновую печь и т. Д. В продаже можно найти модели нестандартных размеров, разработанные специально для таких шкафов.
Что касается текстиля, то ни в коем случае не загромождайте комнату коврами, различными подушками, покрывалами, тяжелыми шторами на окнах и т. Д.Основной упор следует сделать на воздушность и легкость. Поэтому полупрозрачные шторы или римские шторы — это то, что вам нужно.
Не должно быть много разного декора в виде небольших сувениров, фоторамок, вазочек и т. Д. Однако полностью отказываться от него не стоит. С его помощью можно разнообразить интерьер и подчеркнуть его элегантность.
Если в комнате установлен стеллаж с большим количеством книг, то лучше полностью отказаться от использования декора на других стенах.
Дело в том, что книги сами по себе создают определенное разнообразие, поэтому нет смысла акцентировать внимание на других стенах.
Напоследок дам еще несколько советов, которые помогут добиться достаточно просторного и комфортного салона даже в хрущевской однушке:
- Постарайтесь избавиться от ненужных вещей, а необходимые храните в предусмотренных для этого местах. И вообще не забывайте — чем меньше в жилище разных предметов, тем «свободнее дышите»;
- использование зеркал в интерьере — один из самых простых и эффективных способов зрительно расширить пространство;
- Еще один отличный способ визуально увеличить комнату — использовать фотообои с перспективой.Если комната непропорциональна, то вокруг одной из длинных стен обои должны зрительно стереть границу;
- старайтесь использовать как можно больше глянцевых отражающих поверхностей.
Выход
Несмотря на все недостатки однокомнатной хрущевки, ее интерьер можно сделать красивым, стильным и уютным. К тому же небольшая площадь, как мы выяснили, имеет даже свои плюсы. Единственное, что нужно сделать при регистрации — это постараться не нарушать вышеперечисленные правила, особенно если вы не уверены в конечном результате.
Дополнительную информацию смотрите в видео в этой статье. Если у вас остались вопросы после прочтения материала, задавайте их в комментариях, и я с радостью вам отвечу.
10 июня 2016 г.Если вы хотите выразить благодарность, добавить пояснение или возражение, спросите что-то у автора — добавьте комментарий или скажите спасибо!
Хрущевские дома — это панельные, кирпичные или блочные дома, строительство которых было массовым в советское время под руководством Н.С. Хрущев. Отсюда и популярное название — «Хрущевка». Наиболее распространены серии 1-335 (впоследствии модернизированные до 1-335 A, 1-335 K, 1-335 AK, 1-335 D), 1-447, 1-464.
Архитектура и планировка
Их строительство началось еще в 1959 году, но уже в 1966 году было приостановлено из-за несоответствия построек климатическим условиям. Но, несмотря на это, в дальнейшем строительство домов этого типа было возобновлено и продолжалось до 80-х годов.
Изначально они рассматривались как временное жилье для переселения жителей из сел и деревень, но, как известно, нет ничего более постоянного, чем временное.Поэтому и сейчас таких домов очень много. В Москве и Санкт-Петербурге они подлежат сносу в ближайшее время. Но на периферии мы не об этом говорим. Максимум — занимаются своим капитальным ремонтом.
«Хрущевки» — это простые, без лишнего архитектурного решения, здания в четыре-пять этажей. Лифта на такую этажность не предусмотрено, желоб — большая редкость. В основном это конструкция панельного типа. Объясняется это тем, что на их возведение потребовались короткие сроки и минимальные затраты.
В маленьких городках хрущевки строили из кирпича с железобетонными перекрытиями. Иногда дома утепляли минеральной ватой, а фасад отделывали керамической плиткой. Снаружи они казались более привлекательными, но внутри ничем не отличались.
В квартирах одна-две комнаты (тогда самая большая из них проходная), не менее трех, небольшая кухня размером от 5 до 7 м2, совмещенный санузел.Высота потолков колеблется от 2,5 м до 2,6 м. Окна двустворчатые, почти квадратные. Все коммуникации центральные. Иногда на кухне устанавливали газовую колонку для обеспечения горячей воды.
Достоинством таких домов был балкон и кладовая. На первых этажах балконов не предусмотрено. Под окном на кухне в хрущевских домах стоял небольшой шкаф, который зимой служил холодильником.
К недостаткам можно отнести следующее:
- низкая теплоизоляция стен;
- тонкий, лишенный звукоизоляции перегородок;
- небольшая кухня;
- малая площадь всей квартиры;
- узких коридоров и прихожей.
Некоторые недостатки этих номеров можно исправить. Поэтому в последнее время перепланировка «хрущевки» получила широкое распространение. В однокомнатной квартире сделана однокомнатная, в двухкомнатной комнате комнаты изолированные. Все больше квартир приобретают кухню-столовую-гостиную.
Рассмотрим подробнее однокомнатные варианты.
Характеристики
В основном «однушка» имеет общую площадь около 30 м2, из них жилая — около 18 м2, кухня — около 6 м2.Эти цифры могут незначительно отличаться. В угловых квартирах два окна, в простых — одно. Окна кухни и гостиной выходят в одну сторону. Часто между ванной и кухней бывает небольшое окошко.
Однокомнатная «хрущевка» выполнена в виде куба с внутренними перегородками. Внутри нет несущих стен. Это дает возможность сносить и переносить заграждения по своему желанию.
Однако сначала нужно получить на это разрешение, а затем узаконить нововведения.
Студия
Модный тренд в наше время — квартира-студия, сочетающая в себе пространство кухни, комнаты и прихожей. Выбранная модель помещения может быть реализована для многоквартирной «хрущевки» любой строительной серии.
Этот вариант подходит для одного человека или молодой пары без детей. Для того, чтобы юридически подтвердить планировку, необходимо заменить газовую плиту на электрическую.
Также можно оставить отдельную прихожую, за которой находится небольшая гардеробная и санузел.Остальное пространство будет состоять из гостиной, кухни и спальни.
Зрительно разделить пространство поможет декор стен и установка мебели. Отделить спальню от гостиной можно стеллажом со встроенным телевизором, который при необходимости вращается в ту или иную сторону.
Для разделения кухонной зоны подойдет барная стойка или символическая круглая арка. Никакой нагрузки, кроме эстетической, она не несет.
Кровать можно разделить ширмой или занавеской в тон мебели. Хорошим местом для нее будет щель за коридором. Таким образом получится незаметное спальное место, не отягощающее пространство.
Наиболее подходит для интерьера скандинавский стиль , суть которого — яркое незагруженное помещение с минимумом декора. Это визуально расширит квартиру и придаст легкости вашему дому.
В результате получается свободное пространство, не загроможденное стенами. Из минусов можно отметить отсутствие в комнате изолированных комнат.
Модернизация санузла
Рассмотренный вариант подходит для «хрущевок» с раздельным санузлом (серии 1-511, 1-515). Суть метода — увеличить ванную за счет коридора, чтобы в нем поместились ванна, раковина и стиральная машина. Вы можете просто объединить ванную комнату и ванную комнату. Затем последняя расширится до желаемых размеров и поместит перечисленные предметы и унитаз.
Как таковой коридор исчезает, но увеличивается пространство для кухонной зоны и зоны отдыха.
Барьер между ними можно немного сдвинуть внутрь комнаты. Тогда вы получите и довольно широкую кухню, где за столом могут разместиться от четырех человек, и гостиную, в которой есть раскладной диван, над которым можно разместить разного рода полочки, и шкаф.Сиденья можно увеличить за счет небольших пуфиков, компактно складывающихся в журнальный столик.
Современные художники и дизайнеры создают многофункциональную мебель, которая поможет сэкономить место в небольшой квартире. Это может быть раскладной шкаф-кровать, комод, раскладные и раскладные стулья и многие другие интересные варианты.
К плюсам можно отнести относительно довольно большие санузел и кухню. Исчезает и узкий ненужный коридор.Такое жилье подойдет людям, которые собирают гостей дома, для одиноких жителей и для молодежи. Обратной стороной является отсутствие спальни.
Кухня-столовая
Предполагается, что от основного пространства отделена небольшая спальня, в которой размещены только кровать и комод. Остальная часть комнаты совмещена с кухней. Таким образом, получается кухня-столовая с диваном. В таком помещении можно вместо обычного стола устроить барную стойку.Он послужит продолжением рабочей зоны и сэкономит место.
Распределение спальни особенно важно для угловых квартир, в которых одно окно имеет два окна.
Одну из стен спальни можно сделать диагональной, в которой разместить входную дверь. Параллельно ему будет стоять барная стойка, которая визуально разделяет пространство. От входной двери в столовую шкафы желательно располагать вдоль стены. Это создаст необходимое пространство для хранения вещей и аксессуаров.
В некоторых дизайн-проектах для такого вида трансформации используются прозрачные перегородки. Это создаст дополнительную легкость и свободу пространства. Для уединения стекло оснащается жалюзи или рулонными шторами. Мебель в таком интерьере тоже должна быть из прозрачных материалов, будь то стекло или пластик. Необычно будут смотреться зеркальные поверхности.Они «раздвигают» пространство, но уход за ними потребует много времени.
В ванной можно разместить душевую кабину, а на освободившееся место поставить стиральную машину, над которой будет располагаться столешница в полный рост. В него также встраивается умывальник.
Несомненным плюсом такой планировки является наличие полноценного спального места и зоны отдыха с гостями. Подходит для небольшой семьи, предпочитающей отдыхать дома.Из недостатков можно отметить отсутствие мест для хранения вещей и отсутствие полноценного стола (в случае замены его барной стойкой).
Увеличение количества номеров
Если непременным условием для жилища является наличие второй комнаты и изолированной кухни, можно сделать небольшую гардеробную гостиную. Особенно это актуально при наличии дополнительного окна (в угловых вариантах). В задней комнате будет спальня, в которой можно разместить не только взрослую двуспальную кровать, но и детскую кроватку.Если площадь была выделена немного больше, в нее может поместиться шкаф.
В этом варианте стену между гостиной и коридором, ведущим на кухню, лучше заменить раскладными дверцами-гармошкой по всей ширине. В зависимости от обстоятельств можно получить отдельное место для отдыха или объединить с коридором для увеличения комнаты.
Достоинством такой перепланировки станет изолированная кухня и спальня.Он подходит молодым родителям с ребенком и людям, которые не часто приглашают друзей на ужин. Но такая планировка предполагает небольшие узкие помещения с небольшим количеством места для хранения вещей.
К любому виду перепланировки можно добавить совмещение балкона с жилой зоной. Там можно сделать мини-шкаф, поставить вдоль окна балкона высокий барный стол или даже обустроить спальную зону.
Проект
Планировка «хрущевки» во всех городах и регионах типовая.Поэтому в комнате одинаково расставляли такую же мебель. Сейчас все по-другому. Дизайну малогабаритной квартиры специалисты уделяют большое внимание. Ведь именно в нем важно учесть все нюансы для удобства и красоты помещения.
Большой популярностью пользуется зонирование пространства обоями и напольным покрытием. Для этого следует подбирать модели, которые совмещены в одной комнате, но визуально разделяют площадь на части. Это могут быть обои того же цвета, но с другим рисунком.Можно выкрасить все стены в один цвет, а функциональные зоны выделить обоями с орнаментом. То же самое и с напольным покрытием.
Оставить перегородки или устроить студию; поставить кровать или ужиться с диваном, куда втиснуть полноценный шкаф.
В квартирах площадью 30 «квадратов» чаще всего нужно разместить полный функционал просторной квартиры, а это задача не из легких.
Делимся идеями шести планировочных решений для крохотных квартир.
1. Маленькая квартира на Мосфильмовской (Москва)
Здесь гостиная совмещена с кухней, а спальня сделана изолированной. Но главное, они окончательно отошли от правила «маленькая квартира — белая квартира».
Макет. Изначально комната в квартире была разделена перегородкой — ее снесли, как и стену между кухней и жилой зоной. В получившемся пространстве разместились довольно просторная спальня, коридор, кухня-гостиная и санузел.
Границы перегородок рассчитывались буквально с точностью до сантиметра, ориентируясь на габариты выбранной мебели. Если бы, например, диван был шире или длиннее — его бы просто не пронесли по коридору. Так, в ванной (2,7 кв. М.) Пришлось поменять душевую — ту, которую выбрали изначально, дверь не открывалась до конца, упираясь в раковину.
Кухня. В пятиметровой кухне подарили обеденный стол — вместо него сделали барную стойку.Чтобы освободить рабочую зону, выбрали двухконфорочную варочную поверхность. Особенно ярко проявился эклектичный стиль квартиры на кухне: классический гарнитур, «кабан» на фартуке, современная техника и барная стойка с дизайнерскими стульями.
Хранение. Хозяйка квартиры молодая девушка, ей нужно было как минимум два гардероба. Один набор напротив кровати в спальне. Чтобы массивная мебель не давила психологически, в ниши по бокам шкафа вставили зеркала — появилось ощущение перспективы.Второй большой шкаф был сделан на заказ, он был построен вдоль стены в коридоре.
Дизайн однокомнатной хрущевки скучным не назовешь. Фишка в том, что яркий цвет интерьера отвлекает от небольшой площади квартиры. Желтый диван, зеленый комод, черно-белые шторы, фуксия на подушках и пуфах, геометрические и цветочные орнаменты — все это хочется посмотреть. Диван для гостиной купили в ИКЕА, но его не узнать — чехол сшили на заказ в текстильной мастерской.Бордюры и барную стойку изготовил частный мастер.
2. «Двушка» от «Однушки» в п. Перово (Москва)
Площадь квартиры: 31 кв.м
Еще одна угловая квартира, но организованная совершенно иначе, чем предыдущая. Однокомнатная квартира в хрущевке на фото — образец нехарактерного для нашего времени дизайна. Пока другие владельцы малогабаритных квартир массово стирают границы между комнатой и кухней, молодая пара из Москвы решила ничего не убирать, а еще и добавить в планировку перегородки.«Однушка» на пятом этаже дома серии И-515 со временем превратилась в «двушку».
Макет. Хозяева квартиры — Анна и Алексей — обошлись без помощи дизайнера. Комфорт в их понимании означал изолированную спальню и отдельную гостиную. Поэтому комнату разделили на две части — угловая планировка позволяла выделить в каждой комнате окно. Спальня получилась 7 кв. м, гостиная — побольше. Границы кухни остались нетронутыми.И Анне, и Алексею нужна была работа: одна в гостиной, другая в спальне.
Спальня. Спальных мест два: двуспальная кровать в спальне и раскладной диван в гостиной.
Кухня. Гарнитур подобран в соответствии с дизайном квартиры 30 кв. М: белый глянцевый. Плитка на фартуке травянистого оттенка; летом образует единый ансамбль с зеленью за окном. Окно между кухней и ванной пришлось застелить, чтобы шкаф можно было повесить в углу.
Хранение. Мест для хранения много. Это и большой угловой шкаф в гостиной, и красный сундук, в котором хранятся гостевые подушки и одеяла, и внутренние ящики кровати, предназначенные для картин хозяев.
Для визуального увеличения площади квартиры стены отделали белой лепниной, а окна не закрывали шторами. Это японская практика: деревья за окном играют роль визуального акцента, улица становится декоративным элементом в интерьере.
Стол Алексея в гостиной на колесиках. Когда приходят гости, превращается в столовую.
3. Монохромная квартира, в которой все умещается
Площадь квартиры: 28 кв.м
Дизайн однокомнатной квартиры в Текстильщиках (Москва) имеет скандинавские «корни». Его владелец Сергей — специалист отдела продаж. Рационально использовать каждый сантиметр квартиры — такая задача была поставлена перед дизайнером.
Макет.Лишние перегородки тут не понадобились, но и от них совсем не отказали. Для спального места сделали нишу из световых блоков, а вход на кухню перенесли из центра квартиры к окну. При входе сделали мини-шкаф. Небольшая ниша отделяет рабочее место от гостиной.
Площадь кухни 4,9 кв. м хозяин хотел разместить посудомоечную машину. Использовалась только узкая техника: посудомоечная машина шириной 45 см, холодильник — 55 см, плита на три конфорки.Под окно вынесли столешницу — здесь можно готовить, есть, работать.
Проем между кухней и гостиной составляет 80 см, так что вы легко можете вставить дверь, например, при продаже. Кухня с газовой плитой, без двери, квартира не продается. Сегодня за безопасностью следит газовый контроллер.
По сути, спальня и гостиная находятся в одной комнате, но за изножьем кровати всегда можно опустить широкую рулонную штору и спрятаться от гостей или укрыться от света уличных фонарей.Размер спальни определялся мебелью: ширина спальни равна ширине кровати IKEA, длина — до платяного шкафа, примыкающего к прихожей. Гостиная зонируется угловым диваном у окна. Для спальни было слишком шумно — квартира на втором этаже, окна выходят на дорогу.
Хранилище. Большинство вещей поместится в угловой шкаф, купленный в ИКЕА. Он состоит из нескольких модулей и располагается вдоль стены прихожей и вдоль перегородки спальни.В центре — участок со скошенными углами; Здесь хранится пылесос и другое громоздкое оборудование. Кроме того, в изголовье кровати расположены небольшие шкафчики и полочки. Места для хранения вещей остаются под кроватью с подъемным механизмом и под сиденьем дивана.
Тот же трюк, что и с узкой бытовой техникой на кухне, повторили и в ванной: подвесной унитаз Hatria — один из самых маленьких, которые можно найти в продаже. А глубина стиральной машины всего 37 см.Благодаря этому удалось выжать полную ванну на 120 см.
3. Хрущевка со стеклянной спальней
Площадь квартиры: 30 кв.м
Еще одна хрущевка. Архитекторы продумали дизайн однокомнатной квартиры для молодой девушки, дочери заказчиков. Пока она подрастет, недвижимость будет сдавать в аренду. Хотели видеть квартиру светлой, с изолированной спальней. Особое желание хозяйки — мытье окон.
Макет. Поскольку традиционные перегородки делают пространство темнее и теснее, от них повсеместно отказались.Кухня совмещена с гостиной, на потолке оставлена балка — на случай, если нужно быстро построить стену, не снимая натяжной потолок. Зоны кухни, столовой и гостиной расположены в одну линию вдоль стены.
Спальня отделена от гостиной и коридора стеклянными перегородками. За ними плотные шторы (дают полное затемнение даже днем). Перегородки доходят до половины стены, и при снятии шторы пространство выглядит однородным.
Спальных мест — двуспальная кровать в спальне и раскладной диван в гостиной. Одежда и постельные принадлежности размещены в большом шкафу в спальне. На данный момент этого достаточно. Когда молодая хозяйка войдет в квартиру, в коридоре появится еще один шкаф — для него в плане отведено место.
Для организации мойки у окна подоконник нужно было поднять до уровня столешницы. Кухонные шкафы в верхней линии сделали под потолком — это дает больше места для хранения вещей.Обеденная зона расположена ровно посередине между кухней и гостиной. Стол рассчитан на четверых.
Чтобы в квартиру попадало как можно больше солнечного света, в комнате уменьшили высоту подоконника, превратив подоконник в скамейку. На лоджии выполнено панорамное остекление.
Стиральная машина висела на стене в ванной. Это специальная модель, рассчитанная на загрузку 3 кг белья.
4. Средиземноморская квартира у метро «Севастопольская» в Москве
Площадь квартиры: 30 кв.М.
Арендодатель управляет инженерными службами в строительной компании и живет в пригороде. Ему нужна квартира в столице для коротких остановок в городе.
Однокомнатная квартира 30 кв. м превратился в студию. Стена ванной была немного увеличена в сторону кухни, чтобы в образовавшейся нише спрятался холодильник. Основная идея: чем больше света и воздуха — тем лучше. Поэтому даже окна выбирают с полностью белым профилем (и внутри) и немного шире стандартных.Из коридора просматривается все пространство квартиры.
Отдельной кровати нет — для сна предназначен ярко-синий диван. А в спальне-гостиной нет телевизора. На его месте фотография моря и неба. Фотография сделана владельцем на Майорке и напечатана на ткани. Техника, которая есть в квартире, не бросается в глаза. Например, выбранная музыкальная система небольшого размера и белого цвета.
Вещей в квартире немного, поэтому всем поместится белый шкаф от ИКЕА и комод на заказ.Комод поставили возле дивана.
Кухня стала частью комнаты. Он сочетается с остальным пространством и с помощью цвета: белые фасады, раковины, техника. Рабочая поверхность на кухне — столешница из дуба клееная (ИКЕА), все подоконники в квартире из нее. Мозаика на кухонном фартуке сочетает в себе все цвета интерьера: терракотовый, синий, синий и белый. Нижняя часть ванной комнаты отделана такой же мозаикой. Перекличка цветов и фактур на небольшом пространстве нужна, чтобы не создавать пестроты.Полы во всей квартире выложены такой же испанской плиткой.
Большая часть мебели в квартире — от ИКЕА.
5. Квартира для гостей Санкт-Петербурга
Площадь квартиры: 30 кв.м
Квартира предназначена для краткосрочной аренды гостям города. А дизайн квартиры 30 кв. м, а планировка связана с общей идеей — временное убежище. Хозяин задумал это как «путешествие для себя».«Например, там полноценная кровать, а не диван. Хоть и занимает больше места, но туристу, который прилетает ночным поездом или днем бежит в культурную столицу, кровать удобнее и уместнее.
В целях экономии пространства отказались от перегородки между комнатой и кухней и двери между комнатой и прихожей. За счет этого солнечный свет из окон достигает входной двери. А из подъезда квартира-студия кажется просторнее.Пространство разделено на три зоны: входную, жилую и зону отдыха.Последний устраивается на лоджии, за прозрачными дверями. У окна с панорамным видом ставят барную стойку.
Путешественникам не нужна большая кухня, поэтому несколько кухонных шкафов и обеденная зона были сделаны в одну линию. Верхние шкафы не навешивались; дополнили кухню открытой полкой. В конструктивной нише на соседней стене разместили холодильник и стеллаж с техникой. Над обеденным столом висел телевизор, за которым можно было смотреть лежа на кровати.
Кровать напротив кухни и столовой. За ступенчатой перегородкой находится гостиная зона, где есть дополнительная кровать — раскладной диван.
Мест для хранения вещей мало, но больше туристам не нужно. Шкаф в коридоре построен из гипсокартона, решетчатые двери ему купили в строительном гипермаркете.
Половина шкафа предназначена для одежды и чемодана, вторая — для хранения пылесоса, швабры, гладильной доски.
Основной фон в квартире спокойный, но детали яркие, цветные.Это отличает квартиру от гостиничного номера: квартира уютная, как дома.
Вся палитра интерьера представлена в изголовье кровати.
В совмещенном санузле верхняя часть стен окрашена в яркий горчичный цвет. Этот цвет поднимет настроение по утрам, ведь в Санкт-Петербурге часто бывает пасмурно.
Многие молодые семьи начинают жить вместе в маленькой квартире. Чаще всего денег на покупку большой квартиры на первом этапе не хватает, но, тем не менее, изначально хочется жить в красивой квартире.
Даже небольшую однокомнатную квартиру можно обставить лучше, чем большую.
В однокомнатной квартире очень важно рационально разместить всю мебель, а также избавиться от всего того, чем вы не пользовались последний год.
Выкидывать их, возможно, жалко, но если вы не нашли их в течение года, оставив на случай «а что, если еще пригодится», в маленькой квартире лучше не хранить, иначе он превратится в помойку.
Избавляясь от ненужных вещей, вы должны понимать, что вы только выиграете: как минимум, освободив место для более необходимых и полезных в повседневной жизни.
Несмотря на небольшие размеры, однокомнатную хрущевку можно переделать, чтобы она визуально выглядела просторнее, в ней будет много света и уюта. Но для этого стоит серьезно отнестись к ее переустройству, учесть каждую секцию комнаты, тщательно продумать и выбрать новую мебель .
В основном поможет только ремонт однокомнатной квартиры в хрущевке.При этом потратиться обязательно, ведь полноценного и безупречного интерьера старой мебелью добиться не удастся.
Главный фактор готовности квартиры к проживанию в ней — это возможность быстро найти нужную вещь , а не делать упор на необычный декор. Учитывая это, подбор мебели осуществляется по заявкам жителей, планирующих здесь проживать .
Совет! Для создания уютной квартиры лучше оформить интерьер самостоятельно, как только вы знаете, что хотите видеть в комнате, чтобы ощутить настоящий комфорт.
Как расставить мебель
Расставляя мебель в хрущевке, следует учитывать, что необходимо заполнять вещами такие места:
- полки и стеллажи будут хорошо смотреться над диванами на стенах;
- по углам, также неплохо бы установить какую-нибудь мебель, шкафы;
- неплохо было бы вешать полки в коридорах: это тоже сэкономит место и увеличит свободное пространство (хотя бы для того, чтобы разместить более крупные предметы).
Если вы планируете покупать новую мебель, стоит учесть, что без ремонта новый гарнитур или другая мебель не будет смотреться, а это лишь подчеркнет все недостатки интерьера однокомнатной квартиры. Стены и полы будут выглядеть еще более потрепанными и потерявшими свежесть. Восторг моментально улетучивается, как только вы все расставляете по своим местам.
Совет! При обновлении мебели стоит сделать в квартире хотя бы минимальный косметический ремонт, который позволит гармонично смотреться в обновленном интерьере современной мебели.
Зонирование однокомнатной хрущевки
Как правило, в хрущевках проживают не только люди преклонного возраста, но и молодые семьи, поэтому лучший вариант для всех — действовать кардинально и перепланировать, ведь несмотря на небольшие размеры, все молодые люди хотят жить в красивой квартире.
При этом перегородок не будет, что даст возможность увеличить полезную жилую площадь и заселиться в современной квартире-студии. Зонирование однокомнатной хрущевки дает возможность улучшить жилищные условия любой семьи.
В такой квартире будет всего две двери — в подъезде и в санузел. Мебель будет приобретена в соответствии с площадями комнаты. Это даст дополнительную возможность. получить кабинет, гостиную и спальную зону .
Вы знаете, как правильно расположить? Как и на какой стене вешать зеркало, а что делать нельзя — на все есть ответы в восточной мудрости.
О нормах высоты бра над кроватью читайте в плюсовых советах по выбору типа бра в спальню.
Для разделения пространства квартиры можно использовать стены или всевозможные ширмы, перегородки.
Кроме того, используя секреты дизайна, можно визуально разделить пространство на зоны. Для этого можно положить разные материалы: керамическую плитку, ламинат или ковролин на кухне и в комнате.
Потолок также можно оборудовать различной подсветкой. Такая идея для однокомнатной квартиры-хрущевки наиболее оптимальна, так как подходит большинству и решает проблему небольшого и слабо освещенного пространства.
Совет! Для разделения пространства на зоны можно использовать разные приемы, например, оформить кухню и комнату в однокомнатной хрущевке по-разному.
Элементы интерьера
Чтобы интерьер однокомнатной хрущевки был уютным, следует обратить внимание на визуальное увеличение и использование любого пространства в комнате с помощью цвета. Для этого интерьер обычно оформляют в светлых тонах.
Стены должны быть на несколько оттенков темнее потолка.Идеальным будет глянцевый потолок и вообще использование глянцевых поверхностей. Отражения помогают зрительно избавить человека от границ каждой вещи, создав в его голове единую цельную картину.
Подвесные потолки лучше не использовать, так как они визуально сделают комнату меньше.
Совет! Обои с мелким рисунком лучше клеить на стены, также отлично будут смотреться однотонные светлые обои.
Прекрасно вписывается в интерьер мебели, состоящей из модулей .Модульные мебельные системы обладают особым преимуществом: в одном стиле вы можете выбрать все элементы, которые необходимы вам и удовлетворить основные потребности домочадцев.
Если у вас есть возможность, вы можете заказать шкафы купе. Их размещают по всей длине и высоте стен, могут предусматривать открытые полки и антресоли. Варианты будут полностью зависеть от ваших пожеланий.
Планируя шкаф-купе, лучше определиться, где и какую вещь вы планируете поставить, чтобы все разместить в своих нишах и на полках. При выборе цветового решения лучше отдавать предпочтение светлым оттенкам. .
Светлые оттенки позволяют визуально осветлить комнату, наполнить ее светом и сделать просторнее.
Конечно, стремление получить как можно больше места для жилого помещения с минимальным количеством предметов, необходимых для проживания, из небольшой забитой мебелью площади привело к созданию мебели, сочетающей в себе сразу несколько функций. Эту мебель можно складывать и раскладывать, она называется трансформируемая .
К такой мебели относятся: диван, трансформирующийся в спальное место; кресла, в которых есть место для хранения вещей; кровать, которая днем прячется от глаз, ну и шкафы-купе, которые широко используются, имея множество приспособлений и полок, на которых может поместиться просто невероятное количество необходимых вещей и мелочей.
Совет! Чтобы в маленькой комнате было много мебели, используйте многофункциональные предметы.
Освещение квартиры
Освещениетакже создает уют и комфорт и вносит изюминку в дизайн однокомнатной хрущевки, поэтому на нее тоже стоит обратить пристальное внимание.Идеально подходят современные точечные светильники — настенные и потолочные, вместе с небольшой люстрой. Было бы неплохо использовать не только глянцевые поверхности, но и зеркала, так как они расширяют пространство.
Дизайн однокомнатной хрущевки, в которой два окна, площадью 30 кв. м считается типовым, поскольку естественное освещение положительно влияет на восприятие человеком пространства.
Если ваши окна достаточно узкие, попробуйте их расширить.Даже полметра сыграют большую роль, так как сама квартира маленькая, и света в них, как правило, мало.
Важно! Большие окна в дизайне 1-комнатной квартиры-хрущевки смотрятся привлекательно, но предметы в комнате должны быть пропорциональны своим размерам.
Цветовая гамма
Самый популярный цвет, используемый для создания интерьера — белый. Его можно использовать как вместо фона, так и для визуального расширения пространства.Используя белый цвет в сочетании с разными цветами, можно добиться разнообразия в интерьере.
Используя белый цвет, можно преобразить интерьер, добавив к нему разнообразные аксессуары, придав интерьеру стиля и современности. Это диваны, дополненные множеством подушек, столики разной формы, постеры на стене также отлично смотрятся в интерьере.
Помните! Красиво будут смотреться акценты в квартире. Например, если у вас светлый диван, пусть он дополнится яркими цветными подушками.
Для того, чтобы после ремонта в однокомнатной хрущевке придать интерьеру красивый вид и законченный вид, делайте все по своему вкусу.
Необязательно оформлять квартиру в светлых тонах, если ваш любимый, например, зеленый. Можно подобрать мебель, оформить комнату в светло-зеленых тонах, чтобы не сужать и без того далеко не просторную комнату.
Нравится варианты студий для современных квартир? Смотрите — множество примеров перепланировки жилого пространства.
Не забывайте пользоваться тем, что вам предлагают современные технологии. Раньше все использовали тумбы под телевизор. Такой вариант уже сейчас можно найти в интересном стиле и подобрать тумбу для интерьера. Не всегда будет смотреться: скорее, напомнит пережиток постсоветской эпохи.
В маленькой комнате это совершенно неактуально, так как сегодня популярны подвесные телевизоры, поэтому лучше закрепить на подставке на стене. Так дизайн однокомнатной квартиры-хрущевки будет восприниматься легче, а квартира станет просторнее.
Желательно во всем придерживаться современных тенденций, в результате получится компактность, удобство и функциональность помещения.
Теперь при ремонте однокомнатной квартиры в хрущевке можно подобрать небольшой холодильник, как на фото. На кухне небольшой 1-комнатной квартиры ее лучше разместить в дальнем от входа углу, так как в любом случае это будет самый крупный предмет в этой комнате.
Если позволяют финансы, можно заказать горизонтальный холодильник, который по своему назначению выполняет не только функцию, но и является столешницей.
Ремонт в однокомнатной квартире поможет Вам создать в доме уют. Вы можете посмотреть на некоторые варианты на фото и выбрать для себя лучшую идею, а возможно, объединить несколько и создать что-то уникальное, неповторимое:
Во всяком случае, в маленькой хрущевке, даже если ее размер ограничен всего 30 кв. метров, лучше сделать ремонт по возможности с перепланировкой. Тогда вам будет намного комфортнее жить и полноценно отдыхать дома после тяжелого рабочего дня.
Даже небольшое жилье при своих скромных габаритах должно приносить хозяевам ощущение уюта и комфорта. Поэтому при планировании ремонта необходимо хорошо продумать будущий дизайн 1 комнатной квартиры в хрущевке. Большинство старых хрущевских квартир, построенных в советское время, не отличаются выдающимися архитектурными особенностями, они небольшие по размеру и скучные. Для модернизации квартиры нужно ее визуально расширить.В этой статье мы рассмотрим разные хитрости в дизайне интерьера однокомнатной квартиры хрущевки.
Разработка планировки 1 комнатной квартиры хрущевки
Перепланировку квартиры проводить только после получения разрешения в БТИ, поэтому первостепенной задачей будет оформление всех необходимых документов. После того, как все формальности будут улажены, можно начинать продумывать планировку и дизайн интерьера однокомнатной квартиры в хрущевке: какие стены оставить, а какие снести.Чтобы квартира была максимально уютной и комфортной, на этом этапе важно учесть множество факторов, главный из которых — количество людей, которые будут проживать в квартире. Например, если в интерьере проживает семья с ребенком (читайте Дизайн 1 комнатной квартиры с ребенком), спальное место родителей стоит отделить перегородкой или занавесками, а ребенку оборудовать рабочее место для выполнение школьных заданий.
Самая популярная идея перепланировки маленькой квартиры в хрущевке на сегодняшний день — это совмещение кухни с гостиной, а также совмещенного санузла.Это позволяет выкроить несколько дополнительных квадратных метров для обустройства отдельной спальни или детской.
Дизайн интерьера однокомнатной квартиры хрущевки: современные идеи
Хрущевкине отличаются уникальными архитектурными особенностями (такими как, например, высокие потолки или большие окна в сталинских домах), поскольку построены в большом количестве и в короткие сроки. Однако новые уникальные подходы к дизайну и доступность современных материалов позволяют сделать из устаревшей квартиры уютное и красивое жилье.Как? Прочтите и посмотрите фото!
Как мы уже говорили, модным методом расширения однокомнатных квартир хрущевок является перепланировка, позволяющая изменить интерьер до неузнаваемости. Свежее решение — превращение хрущевки в квартиру-студию, где одно общее пространство выполняет функции как спальни, так и гостиной со столовой.
Чтобы зрительно расширить пространство и повысить комфорт, в дизайне 1-комнатной хрущевки часто используются светлые оттенки на стенах и потолке, а также большие зеркала и блестящее стекло и глянцевые поверхности.
Важным моментом в дизайне интерьера квартиры в хрущевке является правильная расстановка мебели. Самый популярный стиль в дизайне малогабаритных квартир — минимализм, предполагающий использование небольшого количества мебели и аксессуаров, простых натуральных отделочных материалов и светлых тонов. Удивительно, что дизайн однокомнатной квартиры хрущевки одновременно получается очень элегантным и свободным — смотрите на фото!
Каким еще может быть дизайн 1 комнатной квартиры хрущевки
После того, как были демонтированы перегородки и произведена перепланировка квартиры, можно переходить непосредственно к дизайну квартиры.Чтобы проживание в квартире было более комфортным, необходимо разделить пространство на функциональные зоны: санузел, главную спальню, спальню и кухню.
Особенностью хрущевки является раздельный санузел и туалет. Идеальным вариантом расширения пространства будет объединение их в совмещенный санузел, а также установка душевой кабины вместо ванны.
Для убежденных советских людей в квартирах хрущевок предусмотрена небольшая кладовая, которую удачно переделать во встроенный шкаф, затем совместить прихожую с гостиной.
Дизайн 1 комнатной квартиры Хрущева для современного человека — 20 фото интерьеров обновлено: 10 мая 2017 Автор: Андрей Зинченко
Дизайн кухни в хрущевке
Владельцам квартир в домах хрущевки крайне сложно приспособить свою кухню к требованиям сегодняшней жизни. Всем известно, что площадь кухонь в этих квартирах слишком мала. Поэтому дизайн кухни в хрущевке — довольно сложный процесс.
- Перепланировка
- Функциональность в дизайне
- Мебель на кухне в хрущевке
- Фото дизайна кухни в хрущевке
Возможность сделать интерьер кухни стильным, комфортным и необычным становится большой проблемой для владельцев таких квартир . Смена жилья — удовольствие дорогое. Надо работать с тем, что есть. Но из любой ситуации всегда есть выход. В частном случае их даже несколько.
Перепланировка
Приступая к оформлению кухни в хрущевке, следует определиться, используете ли вы перепланировку, решить проблему за счет увеличения функциональности пространства или просто визуально расширить комнату. Заранее выберите стиль и цвет, в котором будет выполнен ремонт (варианты можно увидеть в нашей фотогалерее).
Если вы остались на перепланировке квартиры, проанализируйте: можно ли снести выбранную вами стену (не несущую), готовы ли вы к пыли, строительному мусору.Далее необходимо согласовать возможные изменения с жилищной администрацией. Стену можно не сносить полностью, а сделать арку из гипсокартона. Есть много вариантов перепланировки. В этой статье вы можете найти подборку фото идей дизайна кухни в хрущевке.
Редевелопмент — лучший способ оформить кухню в хрущевке с холодильником или газовой плитой. Площадь помещения увеличивается, что позволяет спокойно разместить необходимое оборудование.Если это перепланировка с аркой (выходом в комнату), то кухню можно использовать просто как место для готовки, а обеденный стол отнести в комнату — будет смотреться очень гармонично, подыскивать место для холодильника или колонки.
Функциональность в дизайне
Решить задачу с дизайном кухни в хрущевке площадью 6 кв.м. можно за счет рационального использования площади. Примером улучшения функциональности могут быть: горизонтальный холодильник, надставка на подоконник — как способы увеличения рабочей поверхности.Также лучше использовать мебель, которая легко трансформируется (раскладной, передвижной, раскладной стол).
Преимущество трансформируемой мебели — небольшие габариты в сложенном виде и быстрое превращение в полноценную. Также избегайте «пустых» углов, то есть пространства, которое вообще не используется.
Мебель на кухню в хрущевке
На сегодняшний день существует огромное количество угловой мебели, вогнутой в шкафы, всевозможных столешниц для более эффективного использования маленьких кухонь.Не нужно загромождать кухню большим объемом, даже если это компактная мебель. В этом случае заплатите самый необходимый минимум. Кухонный гарнитур на заказ, скорее всего, станет самым правильным решением для маленькой кухни в маленькой хрущевке.
Для дизайна кухни в хрущевке 5 кв.м подойдет всем рассмотренным выше вариантам. Но есть и другой, часто используемый дизайнерами способ — визуальное (ложное) увеличение пространства кухни. Такого эффекта можно добиться при правильном подборе цвета, освещения.Дизайнеры советуют использовать более светлые, светлые оттенки с вкраплением ярких цветовых пятен в мебели, аксессуарах, настенных и напольных покрытиях. Также использование зеркал, зеркальных и глянцевых поверхностей зрительно расширяет пространство. Помещение должно быть идеально освещено. Не стоит использовать темные шторы на кухне, тогда пространство будет казаться более свободным.
Проектируя дизайн кухни в хрущевке, учтите все вышеперечисленные рекомендации и ваша кухня будет комфортной, уютной, неповторимой — просто идеальной для вас и вашей семьи.Посмотрите фото в этой статье и выберите наиболее подходящий для вас дизайн маленькой кухни в хрущевке.



