Правила расстановки мебели в спальне: Как расставить 🛏 мебель в спальне (много фото): инструкция для любой спальни
Как правильно расставить мебель в спальне?
Вы любили в детстве забавную игрушку Тетрис? Да или нет – неважно, придется полюбить и научиться виртуозно играть, как только у вас появится свой дом, вернее своя спальня. Здесь, как в приснопамятной игрушке: есть квадратики кроватей, линии шкафов и другие фигурки, которые нужно грамотно разместить в весьма ограниченном пространстве компакты. При этом дизайн спальни должен оставаться уютным и комфортным, создавать гармонию и обеспечивать чувство отдыха.
Рассмотрим наиболее удачные варианты расстановки мебели в спальне классической формы: маленькой квадратной, узкой, прямоугольной.
Варианты расстановки мебели в маленькой спальнеПервое правило уюта в маленькой спальне – минимум мебели! Кровать, прикроватные тумбы, будуарный столик с зеркалом – на этом лучше ограничиться. «А как же шкаф?», — спросите вы! «Спрятан!», ответит здравый дизайнерский смысл. Действительно, в маленькой комнате шкаф и все другие приспособления для хранения вещей лучше спрятать.
Куда? Вариантов несколько:
- в стену за кроватью;
- за зеркальными дверцами шкафа-купе;
- в помост под кроватью – здоровая альтернатива комодам и шкафам.
Это позволит не только сэкономить пространство, но и сделать помещение визуально просторнее, легче, а также подкорректировать его форму, если маленькая спальня еще и неправильной формы.
Шкаф, «спрятанный» в стене за кроватью
Зеркальный шкаф в спальне
Кровать-подиум с ящиками для хранения
Вот несколько потрясающих вариантов расстановки мебели в небольших спальнях:
Фото и схема расстановки мебели в узкой спальнеМаленькая, но квадратная спальня – это полбеды, а вот узкая и длинная, словно плацкартный вагон, комната способна принести массу неудобств.
Однако прямоугольная спальня – не повод для расстройств, а лишь катализатор дизайнерской фантазии!
Существует четыре беспроигрышных варианта расстановки мебели в узком и длинном помещении:
Лучшее решение – расположить кровать поперек одной из длинных стен. Это позволит визуально перекроить пространство, избавившись от ощущения, что спите вы в вагоне. Напротив кровати можно разместить туалетный столик с зеркалом, это позволит расширить пространство. Шкаф для такого помещения лучше выбирать угловой, комната будет казаться тогда короче и шире.
Однако если оконный проем находится в длинной стене, или поперечная установка кровати невозможна по другим причинам, можно разместить спальное место и вдоль комнаты, в этом случае главным атрибутом помещения должны стать зеркала. Также необходимо предусмотреть зонирование в прямоугольной комнате с помощью осветительных приборов.
Спальня – душа дома, где мы восстанавливаем силы, накапливаем энергию для будущих свершений и просто отгораживаемся от этого, порой такого недружелюбного мира. Поэтому правильная расстановка мебели в спальне должна способствовать релаксации и отдыху. Прекрасно поможет в этом проверенная временем и восточной мудростью техника фен-шуй, она учитывает не только дизайнерскую точку зрения на обстановку комнаты, но и энергетические потоки, их правильное перераспределение, влияние на человека.
И маленькие размеры комнаты совершенно не помеха применению принципов фен-шуй, а они гласят:
- Изголовье кровати должно быть у стены, если оно находится у окна, на ночь окно следует тщательно занавешивать.
- Ноги спящих на кровати не должны находиться прямо напротив дверей;
- У кровати обязана быть спинка, она – защита семейной жизни, чем спинка выше и надежнее, тем лучше защищена семейная жизнь;
- В спальне не должно быть лишних предметов и слишком ярких, раздражающих деталей;
- Поменьше острых углов в комнате, лучше скругленные линии;
- На окне должны быть плотные занавески.

Правильная расстановка мебели в спальне, согласно принципам фэн-шуй позволит сладко и крепко спать, хорошо высыпаться и наслаждаться семейным счастьем.
Маленькие фото-хитрости расстановки мебели в спальнеПлан расстановки мебели в спальне должен учитывать и по максимуму использовать все ее плюсы, ведь недостатки помещения можно превратить в маленькие хитрости, которые позволят сделать комнату интереснее.
Хитрость №1
Спальня с балконом – находка для дизайнера, и пока кто-то видит недостатки (нельзя поставить кровать у окна, на балкон не выйдешь), мы видим и показываем вам достоинства! Во-первых, балкон может стать дополнительны пространством комнаты, во-вторых, туда можно переместить не поместившиеся в спальне предметы интерьера, и в-третьих, туда можно переселить… кровать!
Хитрость №2
Цветные акценты подчеркивают простор! Правильная маленькая спальня – это светлые и пастельные цвета, однако яркие «пятна» не только оживят интерьер, но и подчеркнут простор.
Как правильно расставить эти акценты? Лучше всего выбрать один яркий цвет и играться с его оттенками. Чем меньше комната, тем меньше акцентов. Идеально: несколько ярких подушек, две три красочные фигурки или рамки с фото, прикроватный коврик, покрывало.
Хитрость №3
Необычный план расстановки мебели отвлечет от недостатков комнаты. Есть строгие правила, рассказывающие, как правильно расставить мебель в спальне, однако всегда остается место эксперименту. Особенно если у комнаты неудачная форма. Скрыть это можно высоким подиумом, кроватью под стеной, или вообще спрятать кровать в шкаф! Для самых смелых любителей свободного пространства предлагаем объединить спальню… с ванной!
Спальня – это личное пространство человека или пары, поэтому создавая его, ориентируйтесь, в первую очередь на собственные ощущения и эмоции!
Как расставить мебель в спальне? Куда поставить кровать? Правила.
Советы. Фото.От правильной расстановки мебели в спальне зависит не только наш комфорт, но и наша продуктивность в течение дня. Если нарушать любые правила расстановки мебели в спальне, то в дальнейшем можно столкнуться с бессонницей, когда всю ночь не наступает долгожданного сна. Из-за этого постепенно повышается уровень стресса и возникают различные проблемы со здоровьем. В данной статье мы расскажем, как расставить мебель в спальне, чтобы она гармонично вписалась в пространство, предназначенное для отдыха и сна. Вы сможете узнать, как расположить кровать в маленькой спальне или куда поставить шкаф и комод для хранения вещей согласно восточной философии Фэн-шуй.
Как правильно расставить мебель в спальне?
Расстановка мебели в спальне начинается с поиска ответов на несколько простых вопросов:
-
Какую форму имеет помещение? План расстановки мебели в спальне всегда составляется с учетом конфигурации спальни. Чаще всего она бывает квадратной или прямоугольной.
В зависимости от этого в спальне можно по разному поставить кровать, туалетный столик и шкаф. К примеру, вы можете выбрать симметричную, ассиметричную или круговую схему расстановки мебели в помещении, чтобы рационально использовать каждый сантиметр свободного пространства в спальне.
-
Где в комнате находятся оконные проемы? При расстановке мебели нужно обязательно учитывать расположение окон. Даже в маленькой спальне рядом с ними не принято ставить изголовье кровати. Дело в том, что под подоконниками обычно находятся радиаторы отопления, которые в зимнее время будут пересушивать воздух, мешая полноценному отдыху. Кроме того, в утренние часы вы будете постоянно испытывать серьезные проблемы из-за избыточного поступления солнечных лучей.
-
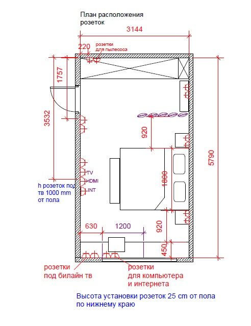
Где в спальне располагаются розетки? Многие люди, решившие правильно расставить мебель в спальне, очень часто забывают о том, что нужно позаботиться о возможности подключения телевизора и прикроватных светильников.

Если вы этого не сделаете, то в дальнейшем вам придется протягивать на полу удлинители и сетевые фильтры, которые сильно портят внешний вид интерьера и повышают риск возникновения травмоопасной ситуации. Поэтому лучше всего заранее поставить на пол туалетный столик со светильниками или тумбу для телевизора рядом с розетками.
Для справки. Расстановка мебели в спальне всегда выполняется так, чтобы было достаточно места для свободного перемещения. Практика показывает, что оптимальный интервал между предметами мебели и стенами спального помещения составляет не менее 70 сантиметров. Этого вполне хватит для комфортного передвижения даже в узкой спальне.
Оптимальное место для размещения кровати
Кровать всегда занимает центральное место в спальне, ведь именно от неё зависит, как вы будете спать ночью и как потом будете чувствовать себя днём. Для того, чтобы достичь максимально хорошего и здорового отдыха, при выбора места для кровати необходимо учитывать целый ряд нюансов:
-
Месторасположение изголовья.
Опытные дизайнеры по интерьеру, которые прекрасно знают, как расставить мебель в спальне, настоятельно рекомендуют ставить кровать изголовьем к стене. Благодаря этому, у человека создается чувство защищенности и спокойствия, необходимое для того, чтобы он мог полностью расслабиться.
-
Беспрепятственный доступ. Чтобы правильно поставить двуспальную кровать, вам потребуется обеспечить комфортные подходы к ней с обеих сторон. Как мы уже говорили выше, минимальная ширина прохода составляет около 70 сантиметров. Не забывайте об этом, даже если вам нужно расставить мебель в маленькой спальне.
-
Место для односпальной кровати. Такую кровать можно без проблем придвинуть боковой стороной к стене, так чтобы в будущем можно было удобно застелить постельное белье и подготовить ко сну спальное место. Если вы повесите на окна классические шторы, то односпальную кровать можно разместить у окна.

-
Оптимальный микроклимат. Исследования показали, что лучшая температура для сна находится в диапазоне от 16 до 20 градусов тепла. Именно такая температура должна быть там, где вы планируете спать. По этой причине кровать не надо ставить изголовьем к окну или напротив двери, чтобы вы могли избежать простуды от неприятных сквозняков.
Идеальное место для установки шкафа
Если вы хотите правильно поставить в спальне прямой шкаф, то можно попробовать установить его вплотную к стене. Такая расстановка мебели помогает рационально использовать свободное пространство, не нарушая общего стиля оформления интерьера.
Встроенный шкаф-купе чаще всего устанавливается в нишах, так как его раздвижные двери не требуют дополнительного пространства при открытии. Данная расстановка мебели на наш взгляд имеет следующие достоинства:
-
Универсальность.
Классический или современный шкаф хорошо подойдет к любому интерьеру. Поэтому вы сможете быстро расставить мебель в спальне согласно выбранному стилю. -
Многофункциональность. Шкаф имеет множество различных полочек и внутренних отсеков. Это позволяет решить проблему хранения вещей и постельных принадлежностей.
-
Внутреннее наполнение. На сегодняшний день производители мебели могут установить в шкафе определенное количество полок в зависимости от того, сколько вам потребуется.
Совет дизайнера. Встроенный шкаф дает возможность скрыть все недочеты планировки. Для этого он разрабатывается по индивидуальным эскизам, чтобы заказчик мог самостоятельно подобрать размеры будущей конструкции.
Куда можно установить комод?
Классический комод является еще одним важным предметом мебели в спальне. В нем находятся внутренние полки, идеально подходящие для хранения личных вещей и постельных принадлежностей.
И в небольшом пространстве маленькой спальни на комод можно поставить телевизор или музыкальный центр, вазу с живыми цветами, светильник или красивую шкатулку для размещения каких-то ценных предметов. Но не стоит забывать о том, что вам нужно позаботиться о комфортном доступе к выдвижным ящикам. Именно поэтому комод при расстановке мебели чаще всего устанавливается в ногах кровати. В этом случае комод становится естественным продолжением спального места. При этом комната становится визуально немного больше.
Если в спальне не планируется устанавливать прикроватные тумбочки, то комод можно расположить напротив кровати. Его верхняя часть идеально подходит для установки зеркала и размещения косметических препаратов, средств гигиены, а также различных средств по ежедневному уходу за волосами и кожей. Главное позаботиться о том, чтобы вы могли при необходимости полностью открыть внутренние ящики, находясь между комодом и кроватью. Оптимальная глубина ящиков для маленькой спальни обычно составляет от 25 до 40 сантиметров.
Варианты размещения мебели в малогабаритной спальне
Если вам нужно расставить мебель в маленькой спальне, то вы можете воспользоваться практическими советами дизайнеров, которые знают, как правильно поставить , чтобы создать гармоничное и комфортное пространство:
-
Зонирование пространства. Даже в узкой и миниатюрной спальне всё свободное пространство должно быть поделено на функциональные зоны. Для этого составляется подробный план расстановки мебели в спальне с учетом планировки и особенностей освещения. В малогабаритной спальне поделить пространство можно с помощью мебели. К примеру, может быть использована узкая этажерка для спальни. В крайнем случае вы можете расположить кровать в спальне на подиуме, чтобы она визуально разграничивала пространство за счет перепада высоты.

-
Создание места для хранения вещей. Как правило, очень сложно разместить комод или шкаф в узкой спальне. Здесь для них всегда не хватает свободного места. В этом случае можно напротив кровати или у окна установить на стенах специальные стеллажи, а также небольшие полки, которые идеально подходят для маленькой спальни. Помимо этого, в комнате можно установить кровать с вместительной нишей или ящиком. В этом случае у вас в спальне появится не только спальное место, но и пространство для хранения вещей и постельного белья.
-
Использование специальной мебели. Когда в спальне мало места, вы можете использовать предметы мебели в конструкции которых предусмотрены зеркальные фасады и глянцевые поверхности. Благодаря этому, у вас появится возможность визуального увеличения пространства. Например, вы можете в спальне рядом с балконом поставить компактный шкаф-купе с зеркальными дверьми.
Такой шкаф в маленькой спальне станет не только украшением интерьера, но и поможет визуально увеличить площадь спального помещения.
Полезная информация. Мебель в маленькой спальне должна быть многофункциональной. Например, это может быть раскладной диван, оснащенный современным механизмом трансформации, или на первый взгляд неприметный шкаф, в котором удобно размещается односпальная или полуторная кровать.
Расстановка мебели в соответствии с философией Фэн-шуй
Учение Фэн-шуй занимается изучением возможностей направления потоков энергии для достижения гармонии с внешним миром и самим собой. Суть его в том, чтобы добиться положительного влияния пространства на людей, которые его занимают. В соответствии с основными постулатами этого учения вы сможете расставить мебель в спальне таким образом, чтобы это способствовало достижению целостности и энергетического баланса в жизни. Помимо этого, обладая знаниями, как расставить мебель спальной комнаты в городской квартире или частном доме, у вас появится возможность нивелировать негативное воздействие со стороны внешней среды.
Как правильно расставить мебель в спальном помещении по Фэн-Шуй? Рассмотрим несколько основных принципов этого учения:
-
пространство перед кроватью или диваном всегда следует оставлять открытым, чтобы потоки положительной энергии могли перемещались без каких-либо препятствий;
-
постарайтесь не размещать над изголовьем кровати книжных полок, массивных картин или каких-то массивных предметов декора;
-
кровать, предназначенная для сна и отдыха, не должна находиться слишком близко к двери или быть непосредственно за ней.
Для справки. В том случае, когда вы хотите установить прикроватные тумбочки, обязательно ставьте их по обеим сторонам постели. Связано это с тем, что по традиции древнего учения парные вещи всегда притягивают удачу. Сверху на них можно поставить светильники.
Заключение
Мы рассказали вам о том, как расставить мебель, чтобы вы знали, куда поставить шкаф, кровать и другие мебели в маленькой спальне.
Искренне надеемся, что эта информация будет полезной всем, кто хочет правильно расставить мебель в пространстве спальной комнаты. На страницах нашего сайта вы сможете найти диван, кровать и шкаф, полностью отвечающий философии Фэн-Шуй. Для удобства выбора мебели в каталоге предусмотрено подробное описание товаров с указанием габаритных размеров. Дополнительную информацию о понравившейся модели вы сможете у наших консультантов, которые прекрасно знают, как расставить мебель в спальном помещении. Они помогут подобрать оптимальный вариант, учитывая при этом ваши пожелания, вкусовые предпочтения и личный план расстановки мебели.
Жизненно важные правила расстановки мебели в спальне
10 жизненно важных правил расстановки мебели в спальне, советы по дизайну интерьера, онлайн-консультации по дому
Всемирный день архитектуры 2021
Пожалуйста, включите JavaScript
Всемирный день архитектуры 2021
9 Dec 2021
Расстановка мебели в спальне — это тема, которая, кажется, выходит за рамки поколений, культур и времени.
Мы рассмотрели, что наука может сказать о лучшей планировке спальни, а также некоторые из наиболее популярных пространственных решений из других источников.
Как видите, есть много способов расставить мебель в спальне, но одно остается верным: убедитесь, что она удобна как для сна, так и для секса! Если вам нужна помощь в создании пространства с оптимальным комфортом для всех видов деятельности, мы будем рады работать с вами над этим проектом. Наша команда специализируется не только на том, чтобы помогать людям создавать красивые спальни, но и создавать комфортные жилые помещения, где они чувствуют себя прекрасно каждый день, независимо от того, сколько активности происходит внутри них.
1. Поставьте кровать в дальней части комнаты, чтобы освободить место
Это может показаться нелогичным, но, поставив кровать в задней части комнаты, вы сможете увеличить пространство. Если за вашей кроватью есть стена, то она может служить хранилищем для одежды или других предметов, которые не должны быть на виду.
Мы также дали несколько советов о том, как организовать хранение мебели в спальне, чтобы у вас не осталось тонны свободного места после размещения кровати в оптимальном месте.
2. Держите всю мебель на одном уровне – не более чем на две ступеньки вверх или вниз
Если вы поставите всю мебель на одном уровне, в вашем доме будет легче ориентироваться и с меньшей вероятностью получить травму. Кроме того, внешний вид вашего пространства также улучшится, потому что в одной области не будет лестниц или беспорядка. Лучший способ добиться этого — сохранить все единообразным — не более чем на два шага вверх или вниз друг от друга за раз. Вы также можете использовать подступенки, если это необходимо, чтобы вещи были в пределах досягаемости без необходимости делать слишком много шагов вперед и назад каждый день.
3. Не загромождайте пол дополнительными стульями, столами или комодами
Если вы ищете способ навести порядок в доме, не загромождайте пол дополнительными стульями, столами или комодами.
Лучше всего вынести их из дома и отдать на благотворительность. Вы также можете продавать товары в Интернете через такие сайты, как Craigslist или eBay, если они имеют ценность, которую нельзя пожертвовать. На первый взгляд это может показаться слишком простым, но на самом деле это очень эффективно! Освободив пространство в своей гостиной, убрав эти ненужные предметы, вы создадите больше места для людей, которые приходят в гости, а также для себя при выполнении повседневных задач, таких как приготовление ужина или уборка после еды.
4. Используйте зеркало, чтобы ваша спальня казалась больше и светлее
Трудно сделать комнату больше или светлее с помощью мебели, но есть и другие способы добиться этого эффекта. Например, если ваша спальня маленькая и темная из-за отсутствия окон, попробуйте использовать зеркала на одной стене, чтобы отражать свет из другого окна в вашем доме, которое обращено в сторону от спальни. Это мгновенно украсит пространство, не добавляя беспорядка.
Если вы хотите купить зеркало для мебели в спальню, рекомендуем посетить сайт furbicle.com. У них есть широкий выбор мебели для спальни, которая может добавить уникальной индивидуальности в вашу спальню. Вы также можете использовать цветовой контраст, покрасив одну стену в белый цвет или сделав ее светлее всех остальных, чтобы создать визуальный интерес и создать иллюзию большего пространства.
5. Убедитесь, что в комнате достаточно естественного света, открывая шторы в дневное время.
Значение естественного света для нашего настроения, продуктивности и здоровья подтверждено документально. Чего вы, возможно, не знаете, так это того, что на качество вашего сна также может влиять то, сколько естественного света попадает в вашу спальню в дневное время. Если у вас проблемы с засыпанием или вы просыпаетесь утром в плохом настроении, это может быть связано с тем, что в эти периоды в вашу комнату поступает недостаточно дневного света. Один из способов обойти эту проблему — открывать шторы в течение дня, чтобы солнечный свет проникал как можно скорее после восхода солнца каждое утро.
6. Сохраняйте достаточное расстояние от любых стен (около 6 дюймов) для легкого доступа к розеткам и электропроводке. Вы также заметите, что это требуется для того, чтобы некоторые предметы мебели, такие как столы или комоды, могли полностью открываться, не ударяясь о стену. Это важное соображение при планировании планировки офиса, если у вас ограниченное пространство для работы. При проектировании домашнего офиса, возможно, стоит использовать меньше книжных полок и больше источников питания!
7. Разместите комоды и тумбочки по обеим сторонам кровати
Разместите комоды и тумбочки по обеим сторонам кровати — это хороший способ максимально использовать то, что у вас есть. Если вы еще этого не сделали, попробуйте! Это даст больше места для хранения в области, которой часто пренебрегают, а также гарантирует, что оба партнера могут легко добраться до своих соответствующих предметов. Вы можете даже лучше спать, зная, что все находится на расстоянии вытянутой руки, когда вы просыпаетесь утром.
8. Разместите книжные полки рядом с окнами, чтобы они могли освещаться естественным светом в течение всего дня. тихий. Один из способов сделать это — разместить книжные шкафы рядом с окнами, где они будут получать естественный свет в течение всего дня.
Это позволит им отображать весь спектр цветов без слишком сильного бликов от источников искусственного освещения, таких как лампы или потолочные светильники. И не забывайте о том, как важно для детей (и взрослых!) получать много солнечного света — размещение этих полок рядом с окнами гарантирует, что каждый получит возможность!
9. Если позволяет место, поставьте небольшой диван или двухместный диван рядом с окном, чтобы можно было смотреть на улицу, удобно устроившись
Если вы ищете новое пространство для гостиной, расставьте мебель так, чтобы было легко смотреть на улицу, удобно устроившись. Этого можно добиться, разместив небольшой диван или кресло рядом с окном, если на стене достаточно места. Вам понравится, как эта композиция сделает ваш дом светлее и просторнее!
10.
Поставьте лампы на каждом конце кровати, чтобы обеспечить свет для чтения или работы перед сномВсе мы знаем, что чтение перед сном — хороший способ расслабиться и отдохнуть, но если вам не хватает света в вашу комнату после захода солнца или жить где-то с особенно темными зимами, это может быть сложно.
Одним из решений для тех, кто хочет непрерывно спать ночью без хлопот, связанных с включением дополнительного света в течение дня, является установка светильников на каждом конце кровати, чтобы рядом с тем местом, где вы сидите, всегда была лампа. Это также обеспечивает лучшее освещение для любой работы, которую необходимо выполнить!
Важнейшие правила расстановки мебели в спальне Заключение
Чтобы избежать путаницы и разочарования, важно знать эти Десять правил расстановки мебели в спальне. Соблюдая несколько простых рекомендаций, вы сможете создать функциональное и красивое пространство. Читайте дальше, чтобы узнать больше о том, как создать лучшую спальню!
Комментарии к статье «10 жизненно важных правил размещения мебели в спальне» приветствуются.
Дизайн ванной комнаты
Статьи в ванной комнате
Как спланировать свою спальню
Черты компетентного профессионала в ванной комнате
Руководство по напорам ванной комнаты
Идеи дизайна для небольшого ремонта ванной комнаты
. Проекты
Проекты домов
Комментарии / фотографии для 10 важных правил размещения мебели в спальне советы страница приветствие
5 правил расстановки мебели
by Декорирование Ден | 26 сентября 2018 г. | Вдохновение для дизайна
Время чтения: 4 минуты
Вы когда-нибудь садились в своей гостиной или семейной комнате и чувствовали, что что-то не так? Возможно, это диван у стены, кофейный столик, который находится вне досягаемости, или, может быть, расположение или размер коврика, который должен объединять все вместе. Но даже после того, как вы, наконец, указали на то, что не так, вы не знаете, как все изменить.
Перестановка мебели может быть пугающей, если вы не знаете, с чего начать.
Несколько простых правил помогут вам в этом! При перестановке мебели следуйте этим советам:
«Каждая комната заслуживает внимания».
1. Создайте центр внимания
В каждой комнате должен быть центр внимания, который подчеркивает стиль и характер помещения. Это может быть стена с фотографиями или произведениями искусства, осветительная арматура, телевизор, каминная полка или любой другой предмет, который, по вашему мнению, будет выделяться в комнате. Как только вы разработаете точку фокусировки, вы сможете расставить мебель вокруг нее.
2. Помните о транспортном потоке
Ваша последняя расстановка мебели мешала гостям перемещаться по гостиной? Пространство, которое кажется тесным из-за слишком большого количества мебели и минимального пространства для прогулок, делает комнату менее уютной и привлекательной. Всегда помните о транспортном потоке при расстановке мебели — должен быть четкий путь для прогулок по комнате и перехода в следующую.
3. Не бойтесь поднимать мебель
Одно из самых распространенных заблуждений относительно расстановки мебели: сиденья нужно ставить у стены. Напротив, парящая мебель или стягивание всего к центру комнаты — популярная дизайнерская схема. Это идеальный способ разделить комнату, если у вас открытая планировка, а также способствует постоянному потоку людей.
4. Создайте атмосферу для разговора
Пространство, которое вы хотите изменить, скорее всего, гостиная или семейная комната. Это означает, что это место, где вы, члены вашей семьи и близкие друзья будете собираться, находясь у себя дома. Последнее, что вам хочется делать, это кричать на всю комнату, когда вы пытаетесь завести разговор, поэтому расставьте мебель таким образом, чтобы создать возможность для интимной беседы.
Вы также хотите удовлетворить потребности своих гостей – им не придется держать свои напитки всю ночь, разговаривая в гостиной.
Как предлагает The Spruce, у каждого места должен быть стол на расстоянии вытянутой руки, чтобы вашим гостям не нужно было вставать, чтобы что-то положить. Используйте журнальный столик и боковые столики, чтобы это произошло.
5. Эксперимент
Самое приятное в расстановке мебели? Его размещение не является постоянным. Если вы передвигаете свой диван, стулья и столы и вам не нравится, как он выглядит, вы всегда можете начать с нуля. Не бойтесь экспериментировать и пробовать несколько макетов. Вы узнаете, когда найдете правильное расположение, по тому, как комната заставляет вас чувствовать себя, когда вы садитесь, чтобы расслабиться.
Если вас все еще пугает такая сложная задача, как расстановка мебели, возможно, вам нужна профессиональная помощь. Личный декоратор в Decorating Den Interiors может помочь! Он или она приедет к вам домой для бесплатной консультации и расскажет о выделенном вам пространстве, текущей расстановке мебели и вашем личном стиле.

В зависимости от этого в спальне можно по разному поставить кровать, туалетный столик и шкаф. К примеру, вы можете выбрать симметричную, ассиметричную или круговую схему расстановки мебели в помещении, чтобы рационально использовать каждый сантиметр свободного пространства в спальне.
Опытные дизайнеры по интерьеру, которые прекрасно знают, как расставить мебель в спальне, настоятельно рекомендуют ставить кровать изголовьем к стене. Благодаря этому, у человека создается чувство защищенности и спокойствия, необходимое для того, чтобы он мог полностью расслабиться.
Классический или современный шкаф хорошо подойдет к любому интерьеру. Поэтому вы сможете быстро расставить мебель в спальне согласно выбранному стилю.
Такой шкаф в маленькой спальне станет не только украшением интерьера, но и поможет визуально увеличить площадь спального помещения.