Размеры оптимальные душевой кабины: Самые популярные размеры душевых кабин из стекла

Содержание

Как подобрать размер душевой кабины?

Определившись с формой и конструкцией дверей, важно понять, какого размера будет ваша будущая душевая зона. В качестве общей рекомендации, как правило, можно слышать: «Чем больше, тем лучше». Отчасти это действительно так, однако где находится та самая «золотая середина»? Чтобы ответить на этот вопрос рассмотрим самые популярные размеры душевого уголка.

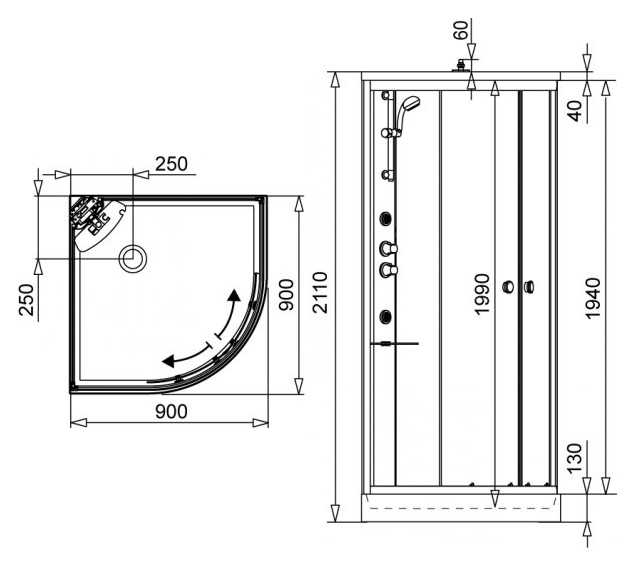
Душевая кабина 80х80

Минимальный размер душевой кабины или уголка более-менее удобный для принятия душа является 800х800 мм. Такая душевая зона подойдёт некрупным мужчинам и большинству женщин. Если у вас небольшая ванная комната и планируется установить большое количество санитарной техники, останавливайте свой выбор на этом размере. Меньший размер категорически не рекомендуем в виду дискомфортного принятия душа.

Душевая кабина 90х90

Самый распространённый размер среди душевых уголков, подходящий большинству покупателей. Здесь будет комфортно принимать душ людям плотного телосложения. Вы можете быть спокойными – локтями задевать стенки вам не придётся. Также стоит отметить, что большинство душевых поддонов представлено именно в размере 900*900 мм.

Душевая кабина 100х100

Просторный душевой уголок, в котором можно ощутить простор и свободу. Является одним из наиболее популярных вариантов душевого ограждения для больших ванных комнат. В таком уголке вы не будете чувствовать себя стеснённым, можете свободно двигаться и обтираться полотенцем.

Душевая кабина 120*90

Второй по популярности (после 900х900 мм) размер душевого ограждения. Часто такие уголки ставят тогда, когда не получается поместить уголок 1000х1000 мм. Являясь оптимальным по ширине, уголок создаёт простор за счёт удлинённой части. В таком душевом уголке будет комфортно людям плотного телосложения.

Маленькие душевые кабины

По статистике, маленькими называют душевые уголки размером 800*800 мм. Однако зачастую мы сталкиваемся с тем, что ванная комната не позволяет установить душевую даже такой ширины. В этом случае есть 2 варианта.

В первом случае мы всегда рекомендуем подобрать всю сантехнику таким образом, чтобы попробовать высвободить место под душевую зону. Т.е. если вы планируете, например, установить в ванной комнате раковину, унитаз, стиральную машинку и душевую, то стоит начинать именно с душевой. Выбираем уголок 800х800 мм, а унитаз ставим укороченный или подвесной. Специальную раковину можно установить на стиральную машинку или выбрать компактную или угловую модель. Такой вариант мы считаем оптимальным, т.к. у вас остаётся комфортная душевая зона.

Вторым вариантом является установка стандартных моделей санитарной техники и уменьшение душевой зоны. У некоторых европейских производителей можно найти модели размером 750х750 мм или 700х700 мм. Такие душевые зоны являются менее комфортными и удобными в использовании, однако порой установка таких уголков является необходимостью. Важно отметить, что выбрать душевой поддон в таких размерах будет очень сложно.

 

Оптимальный размер душевой кабины

Дата публикации: 08. 09.2022 00:00

Оптимальный размер душевой кабины во многом определяет удобство её использования. В слишком маленькой будет некомфортно, потому что тесно, есть вероятность задевать стенки руками или сбивать принадлежности для мытья, расположенные на встроенных полочках. Слишком просторная сантехника занимает драгоценное место в ванной — хорошо, если оно есть. Но если нет, и на 4 квадратных метрах нужно расположить ещё унитаз, раковину, стиральную машинку? Приходится искать разные варианты.

Душевая кабина Nautico SWB-8024

Габариты, форматы и особенности

Какая ширина душевых кабин вообще бывает? А высота? И какой минимальный «порог», чтобы внутри спокойно разместился человек? Прежде чем разобраться с этим, нужно определиться с типом сантехнического оборудования.

Душевая кабина Arcus Style S-09 R

Всего типов два:

  • открытые;
  • закрытые.

Первые представляют собой конструкцию без крыши. Могут также отсутствовать две стенки из четырёх: важен только поддон и боковые стенки-дверцы, ещё парой недостающих служат архитектурные элементы помещения, обработанные от воды. Такие модели удобны, если нужно сэкономить место и деньги — они стоят меньше закрытых, выглядят визуально легко и современно. Ещё внутри обычно легче дышится, даже несмотря на малые размеры оборудования: пар рассеивается по всему санузлу.

Душевая кабина Nautico SWB-8024

Закрытые модели всегда дополнены крышей, нередко имеют дополнительные функции:

  • тропический душ;
  • гидромассаж;
  • подсветка;
  • вентиляция.

Фото душевой кабины размером 80×80 вы можете видеть ниже — она закрытого типа, с невысоким поддоном. Это хорошее решение для компактной ванной комнаты или совмещённого санузла.

Душевая кабина Arcus Style S-30

Но насколько удобны такие варианты? А может, всё-таки лучше взять более просторную? И вообще, какие размеры душевых кабин бывают — разбираемся во всех нюансах!

Внушительный габаритный ряд позволяет выбрать подходящую сантехнику и для просторной ванной комнаты, и для очень компактной. По высоте, правда, разброс меньше, чем по ширине — есть модели от 190 см до 235-240 см. Закрытые гидробоксы всегда выше, ведь нужно пространство для крыши. Важно учитывать это, если вы устанавливаете оборудование в уборную, где уже есть натяжной потолок — он обычно «крадёт» от стандартных 2.7 метров как раз около 30 см высоты, то есть кабинка будет почти «подпирать» полотно.

Инфракрасная душевая кабина KOY K071

Какая высота у небольшой душевой кабины допустима? Здесь ограничения зависят исключительно от роста пользователей. Как правило, типовых 190-200-235 см хватает для комфортного использования. Но если в вашей семье есть очень высокие люди, обратите внимание на открытые модели без ограничения сверху.

Форма

Тоже имеет значение. Все модели можно разделить на:

  • Угловые — устанавливаются даже на маленькой площади, в банях и саунах. Конструкция существенно экономит пространство. Стандартные размеры душевой кабины такого типа варьируются от 80×80 до 150×150 см.
  • Прямоугольные. Как логично следует из названия, у подобных боксов вытянутая форма, а разница в длине и ширине может начинаться от 20 см и достигать 50-60.
    Габаритный ряд — от 70×90 до 90×170. Именно такие кабинки чаще всего совмещаются с классическими ванными, которые по сути заменяют глубокий поддон.
  • Квадратные. Одинаковая длина каждой стороны — удачное решение для установки в санузле любой площади. Достаточно лишь правильно подобрать размер небольшой душевой кабины. К тому же, такими моделями удобно пользоваться, они выглядят стильно и современно.
  • Многогранные. Фигурные, сложной формы, с 5 или 7 углами, подобные модели чаще всего используются в просторных помещениях, где важно не только создать условия для принятия душа, но и подчеркнуть оригинальный дизайн.

Габариты

Важный момент для эргономики санузла: между сантехникой должно оставаться как минимум 20 сантиметров, а лучше все 40. То есть, если у вас установлен душ, а рядом с ним раковина или стиральная машинка, необходимо выбирать все приборы так, чтобы они оказались не вплотную друг к другу. Пространство необходимо для безопасного монтажа и эксплуатации.

Душевая кабина Kaipunuo 2005-1

Минимальный размер душевых кабин составляет 80×80 сантиметров. Однако это не значит, что надо брать самую компактную. Подобные габариты подойдут, если гидробокс не используется как основное сантехническое оборудование. Взрослому человеку может в такой быть тесновато.

90×90

Абсолютная классика для квадратных моделей и вариантов в четверть круга. Компактная кабинка может поместиться в любом санузле, при этом внутри достаточно места, чтобы взрослый мужчина или женщина не задевал стенки локтями.

Угловая душевая кабина River Desna 90/46 без крыши

100×100

Пожалуй, самый удобный размер душевой кабины. Такую легко оснастить глубоким поддоном, чтобы мыться с максимальным комфортом, а внутри хватит места и для самого человека, свободно двигающегося, и для встроенной полочки с гелем, шампунем и прочими средствами.

120×120

Замечательный вариант для просторного санузла — точно не будет тесно. Однако учтите, в стандартной маленькой ванной комнате такая модель займёт довольно много места.

Душевая кабина River Quadro 90/70/26 MT без крыши

Каких размеров бывают душевые кабины прямоугольной формы? Самый распространённый вариант — 120×80 см. Такие гидробоксы бывают правосторонними, левосторонними или универсальными. Полноценную ванну они заменить не могут, но глубокий поддон позволяет посидеть в горячей воде, если есть желание.

Душевая кабина Arcus EcoStyle ES-309 R

Существуют более компактные варианты, например, 100×80 см, но они менее удобны. Если целью является экономия пространства, лучше выбрать квадратную форму или четверть круга.

Максимальная длина по одной стенке составляет 170 см — такая кабина выглядит как полноценная ванна. Впрочем, часто она ей и является, а ширина достигает 90 см.

Душевая кабина Nautico SW-8027 L

Заключение

Оптимальные габариты кабины для душа необходимо подбирать в зависимости от нескольких факторов:

  • ваших пожеланий;
  • площади ванной комнаты;
  • особенностей членов семьи, которые будут кабиной пользоваться.

Минимальные габариты составляют 80×80 см, но лучше отдать предпочтение более просторному варианту, если будет возможность.

Теги Душевые кабины 100 100 недорого Прямоугольные душевые кабины Душевые кабины 90х90 угловые с крышей Открытые душевые кабины 90х90 Закрытые душевые кабины Душевые кабины 80х80 с крышей Угловые душевые кабины

Размеры душевых (Руководство по размерам ванных комнат)

Добро пожаловать в наше руководство по размерам душевых, включая популярные размеры ванных комнат, а также типы душей и ванн.

Душевая зона является наиболее важной частью ванной комнаты, и когда дело доходит до инвестиций в новую душевую кабину или реконструкцию вашей ванной комнаты; Одним из важных факторов, который следует учитывать, является знание стандартного размера душа.

Содержание

Стандартные размеры душевых кабин

Эта статья призвана помочь вам решить, какой размер душевой кабины вы можете установить для своего дома, а также другие приспособления и детали, которые вы, возможно, захотите включить.

Квадратный душ

Самая маленькая и компактная душевая кабина имеет размеры 32 x 32 дюйма; и может доходить до 34 х 34 дюймов и 36 х 36 дюймов. №

Эти душевые кабины можно установить в углах вашей ванной комнаты, а для ванной комнаты, в которой недостаточно места, этот душ квадратной формы также можно установить вдоль одной стены.

Комбинированный душ и ванна

Наиболее распространенный и типичный стандартный размер комбинации душа и ванны составляет 60 x 30 x 72 дюймов; это включает в себя размеры фарфоровой ванны и пространства вокруг чаши ванны, которое требуется при установке комбинации ванны и душа.

Как правило, комбинированный душ и ванна имеют стеклянную душевую кабину для более современного и чистого вида. Высота стеклянных душевых кабин варьируется от 79 дюймов, 81 дюймов и 87 дюймов.

Отдельностоящая душевая кабина

Размер отдельной душевой кабины обычно зависит от места, отведенного в ванной для душевой зоны. Стандартный размер душевой без ванны составляет 48 х 36 дюймов. Этот размер имеет минимальное пространство, что дает вам больше места для перемещения.

Размеры душевых кабин

    • Стандартные размеры душевых кабин Quadrant:
      • 5 x 27,5 дюймов
      • 5 x 31,5 дюйма
      • 5 x 35,5 дюймов
      • 4 x 39,4 дюйма
      • Примечание. Существует два варианта высоты этих душевых уголков Quadrant: 73 дюйма и 77 дюймов
    • Стандартные размеры душевой кабины Offset Quadrant:
      • 4 x 31,5 дюйма
      • 3 x 31,5 дюйма
      • Высота: 77 дюймов
    • Стандартный размер для душевой кабины Neo Angle или Pentagon:
      • 5 x 35,5 дюймов x 77 дюймов (высота)
  • Стандартный размер квадратной душевой кабины:
    • 5 x 27,5 дюймов
    • 5 x 31,5 дюйма
    • 5 x 35,5 дюймов
    • Примечание. Существует два варианта высоты этих душевых кабин Quadrant: 73 дюйма и 77 дюймов.
  • Стандартный размер для прямоугольной душевой кабины:
    • 4 x 31,5 дюйма
    • 3 x 31,5 дюйма
    • Высота: 77 дюймов для обоих стандартных размеров
Размер душевой кабины
      • Стандартный размер для душевых кабин:
        • 5 x 31,5 дюйма
        • 5 x 35,5 дюймов
        • 4 x 39,4 дюйма
        • Есть разные высоты на выбор: 79 дюймов | 81 дюйм | 83 дюйма и 87 дюймов
  • Другие размеры для душевых кабин:
    • 5 x 35,5 дюймов
    • 5 x 37,5 дюймов
    • 3 x 35,5 дюйма
    • Варианты высоты: 85 дюймов и 87 дюймов
Размеры парового душа
    • Стандартный размер для парового душа Quadrant:
      • 5 x 35,5 дюймов
      • 5 x 37,5 дюймов
      • 38 x 38 дюймов
      • 39 x 39 дюймов
      • 4 x 39,4 дюйма
      • 3 x 47,3 дюйма
      • 2 x 51,2 дюйма
      • 59 x 59 дюймов
      • Высота: 73 дюйма и 77 дюймов
    • Стандартный размер для парового душа квадратной или прямоугольной формы:
      • 3 x 35,5 дюйма
      • 59 x 33,5 дюйма
      • 67 x 33,5 дюйма
      • 67 x 35,5 дюймов
      • Высота: 77 дюймов
  • Стандартный размер для парового душа со смещенным квадрантом:
    • 3 x 35,5 дюйма
    • Высота: 83 дюйма | 84 дюйма и 87 дюймов
  • Стандартный размер для круглого парового душа:
    • 4 x 39,4 дюйма
    • Высота: 89 дюймов
  • Стандартный размер для парового душа Combo:
    • 5 x 35,5 дюймов
    • 38 x 38 дюймов
    • 39 x 39 дюймов
    • 4 x 39,4 дюйма
    • 3 x 33,5 дюйма
    • 3 x 47,3 дюйма
    • 2 x 51,2 дюйма
    • 59 x 59 дюймов
    • 59 x 33,5 дюйма
    • 67 x 33,5 дюйма
    • 67 x 35,5 дюймов
    • Высота: 83 дюйма | 84 дюйма | 85 дюймов | 87 дюймов и 89 дюймов

Узнайте больше о различных преимуществах парового душа здесь.

Примечание. Наиболее распространенная толщина стеклянных корпусов составляет 3/8 дюйма. Этот тип стекла прочный, безопасный, выглядит роскошно и при этом очень экономичен. Бывают случаи, когда технические характеристики стекла могут быть толщиной ½ дюйма.

Размеры поддона для душа

Поддон для душа часто называют «поддоном», но на самом деле это не одно и то же.

Душевой поддон – это конструкция, устанавливаемая непосредственно под душем; это основание, которое обычно изготавливается из бетона с небольшим уклоном, чтобы вода могла правильно стекать в канализацию.

В стандартных основаниях слив расположен либо в центре, либо в смещенном сливном отверстии.

Массивная душевая поверхность также может быть изготовлена ​​из натурального или искусственного мрамора, плитки на растворной основе, акрила, стекловолокна; он может быть даже изготовлен из различных металлов, таких как чугун или медь, которые чрезвычайно прочны и имеют очень роскошную концепцию дизайна.

Стандартные основания обычно имеют форму квадрата или прямоугольника размером от 32 x 32 дюймов до 60 x 42 дюймов.

Для угловых душевых поддоны нео-углового основания имеют диаметр от 36 до 60 дюймов.

Индивидуальные встроенные основания с водонепроницаемой мембраной изготавливаются по размерам заказчика.

Размеры душевых кабин Walk-In

Существует множество размеров душевых кабин, поскольку они зависят от свободного места в вашей ванной комнате и ваших потребностей в душе.

Душевые кабины должны иметь минимальный размер не менее 32 дюймов в длину и 32 дюйма в ширину.

Обычные размеры стандартной душевой кабины составляют 34 дюйма x 34 дюйма, 36 дюймов x 36 дюймов и 42 дюйма x 36 дюймов; эти размеры, конечно, варьируются в зависимости от размера ванной комнаты.

Удобная душевая кабина имеет средний размер 48 дюймов x 36 дюймов и может быть увеличена до 48 дюймов x 48 дюймов, чтобы дать немного дополнительного места.

Большая душевая кабина может иметь размеры до 60 x 36 дюймов и может вместить душевую скамейку. Высота душа варьируется в зависимости от высоты потолка в вашем доме; но обычно самая высокая высота душа должна быть 8 футов.

Другие размеры душевой кабины:

  • 60 дюймов x 48 дюймов x 96 дюймов (высота)
  • 66 дюймов x 66 дюймов x 90 дюймов (высота)
  • 54 дюйма x 35 дюймов x 89 дюймов (высота)
  • 71 дюйм x 47 дюймов x 88 дюймов (высота)
  • 42 дюйма x 42 дюйма x 82 дюйма (высота)

Стандартный размер ванны с душем

Обычно стандартная ванна от стены до стены имеет размеры 60 дюймов в длину и 30-32 дюйма в ширину.

Отдельно стоящая ванна с душем Размеры
    • 60 дюймов в длину и 30 дюймов в ширину
    • 55 дюймов в длину и 27 дюймов в ширину
    • 72 дюйма в длину и 32 дюйма в ширину
    • Высота: 24 дюйма

Отдельно стоящие ванны в виде ванн, которые не прикреплены и не соединены ни с какими стенами или поверхностями ванной комнаты.

Для этого типа ванны требуется большая площадь ванной комнаты, чтобы вместить размер и вес ванны.

Размеры ванны Alcove
    • 60 дюймов в длину и 30 дюймов в ширину
    • 45 дюймов в длину и 30 дюймов в ширину
    • 72 дюйма в длину и 42 дюйма в ширину
    • Высота: 15 дюймов

Ванны Alcove обычно устанавливаются внутри трехстенного ограждения, что обычно делает их идеальными для концепции дизайна комбинации душа.

Размеры встраиваемой ванны
    • 60 дюймов в длину x 30 дюймов в ширину
    • 45 дюймов в длину и 30 дюймов в ширину
    • 72 дюйма в длину и 32 дюйма в ширину
    • Высота: от 14 до 20 дюймов

Вставные ванны очень похожи на стандартные ванны и обычно устанавливаются в ванной на стену, как и ванна в нише; или может быть установлен на открытой площадке, включив его в полуостров посреди ванной комнаты.

Размеры ванны под монтаж

    • 60 дюймов в длину и 30 дюймов в ширину
    • 45 дюймов в длину и 30 дюймов в ширину
    • 72 дюйма в длину и 32 дюйма в ширину
    • Высота: от 14 до 20 дюймов

Ванны с нижним креплением очень похожи на встраиваемые ванны; единственное отличие состоит в том, что его край покрыт небольшой площадкой из камня или плитки. Этот камень или плитка помогут скрыть край ванны во время установки.

Размеры угловой ванны
    • 60 x 60 дюймов
    • 48 дюймов x 48 дюймов
    • 72 дюйма на 72 дюйма
    • Высота: 22 дюйма

Эти угловые ванны часто считаются роскошными ваннами, которые обычно устанавливаются в главных ванных комнатах, поскольку они идеально подходят для снятия стресса, медитации и успокаивающих ванн.

Размеры ванны без кабины
    • 60 дюймов в длину и 30 дюймов в ширину
    • 48 дюймов в длину и 28 дюймов в ширину
    • 60 дюймов в длину и 36 дюймов в ширину

Ванны Walk-in — отличный вариант для людей с ограниченными физическими возможностями или пожилых людей.

Этот тип ванны требует установки профессионалами, так как ванна должна быть установлена ​​выше, чем обычная ванна. Проходная ванна имеет специальные поручни и ручки, которые должны быть установлены, чтобы помочь пользователям держать голову над водой и помочь пользователям войти и выйти из ванны.

Размер душа ADA

Закон об американцах-инвалидах (ADA) устанавливает минимальные размеры душевых кабин для людей с ограниченными возможностями.

Рекомендации ADA по размеру душа:

Переносной душ ADA – Согласно рекомендациям ADA душ должен иметь внутренний размер 36 дюймов x 36 дюймов. Пороги в передаточном душе должны иметь высоту не более ½ дюйма над чистым полом ванной комнаты.

На входе в душ должно быть отверстие не менее 36 дюймов. Установленные L-образные сиденья должны быть размещены не более чем в 3 дюймах от входа спереди, а захват задней стены должен быть на расстоянии 18 дюймов от контрольной стены. Также должно быть минимальное расстояние 36 дюймов (ширина) x 48 дюймов (длина) от контрольной стены.

Безбарьерный душ ADA — спроектирован как душ, доступный для инвалидных колясок, в соответствии с рекомендациями ADA минимальный внутренний размер душа составляет 60 дюймов x 30 дюймов.

В нем достаточно места для инвалидной коляски или стула для душа. Пороги в передаточном душе должны иметь высоту не более ½ дюйма над чистым полом ванной комнаты. Минимальное отверстие должно быть 60 дюймов сверху вниз.

Установленные L-образные сиденья должны быть размещены не более чем в 3 дюймах от переднего входа, а захват задней стены должен быть на расстоянии 18 дюймов от контрольной стены. Рядом с отверстием также должен быть минимальный зазор размером 30 дюймов (ширина) x 60 дюймов (длина).

Размер душа для двоих

При проектировании душа для двоих помните, что ширина важнее, поскольку душевая зона должна быть достаточно широкой, чтобы в ней могли принять душ два человека.

Вам также необходимо учитывать форму вашей душевой и предпочитаете ли вы закрытый или открытый душ. Все дело в том, чтобы пара чувствовала себя наиболее комфортно и имела достаточно места для свободного передвижения.

Два наиболее распространенных размера душевых кабин для двух человек (двойных): 3 фута на 5 футов и 4 фута на 6 футов; или некоторые из них даже большего размера в зависимости от доступного места. Душевой бордюр, удерживающий воду в душе, должен быть не менее чем на 2 дюйма выше верхней части слива, но не более чем на 9 см.дюймы. №

Размеры душевых дверей зависят от типа душа, который вы хотите установить в своей ванной комнате, и это вопрос личного вкуса.

Ширина большинства стандартных душевых дверей составляет от 22 до 36 дюймов, а средняя высота душевых дверей составляет 72 дюйма. Если ширина душевой двери превышает 36 дюймов, необходимо установить дополнительную панель, чтобы выдержать вес двери.

Наиболее распространенная ширина душевых дверей:

  • Стандартный комплект для душа и ванны: Ширина 60 дюймов
  • Большой автономный душ: Ширина от 54 до 60 дюймов
  • Небольшой отдельный душ: 42–48 дюймов
  • Другая общая душевая дверь Высота:
    • 70 дюймов
    • 74 дюйма
    • 79 дюймов

Размеры душевых дверей в зависимости от стиля

Тип раздвижной и обходной двери
    • Средняя ширина: 60 ​​дюймов
    • Фактический дверной проем: от 21 ¼ дюйма до 25 3/8 дюйма
    • Лучший стиль дверей для комбинации душа и ванны, углового душа и душа в нише
    • Состоит из двух или более дополнительных панелей
    • Ворота этого типа скользят или катятся по верхним и/или нижним направляющим.
    • Стандартные размеры раздвижных душевых дверей:
      • Ширина от 56 5/8 дюймов до 59 5/8 дюймов
      • Ширина от 44 5/8 дюймов до 47 5/8 дюймов
Душевая дверь с петлями и шарниром
      • Средняя ширина: 48 дюймов
      • Фактический дверной проем: ширина 26 ½ дюймов
      • Может быть оснащен одинарными или двойными петлями, что позволяет двери открываться внутрь или наружу на 180°
      • Может быть прикреплен с одной стороны двери к неподвижной панели или непосредственно к стене душа.
      • Рекомендуется для узкого углового душа и отдельного душа в нише
      • Стандартные размеры поворотных душевых дверей:
        • Ширина от 39 1/8 дюйма до 44 дюймов
        • Ширина от 27 5/16 дюйма до 31 1/8 дюйма
        • Ширина от 43 1/8 дюйма до 48 дюймов
Стандартные размеры возвратной боковой панели
        • Ширина от 34 до 35 дюймов
        • Ширина от 29 до 30 дюймов
        • Ширина от 31 до 32 дюймов

Посетите нашу галерею различных типов душевых дверей здесь.

Средний размер душевой занавески

Существует три стандартных размера душевой занавески, которые подходят для средней 60-дюймовой ванны:

  • 70 x 70 дюймов
  • 70 x 72 дюйма
  • 70 x 84 дюйма (сверхвысокий занавес)
  • 72 дюйма x 72 дюйма
  • 72 дюйма (ширина) x 96 дюймов (длина) Занавеска для душа от пола до потолка
  • 84 дюйма (ширина) x 74 дюйма (длина) Альтернативная занавеска для душа для ванны

Занавеска для душа, обеспечивающая полное покрытие, должна быть на двенадцать дюймов шире, чем общая длина ванны.

Удлиненные занавески для душа также могут быть следующих размеров: 72 дюйма x 84 дюйма и 78 дюймов x 78 дюймов. Для душевых кабин более узкая занавеска имеет размеры от 36 дюймов x 54 дюймов до 54 дюймов x 78 дюймов.

Чтобы определить правильную длину шторки для душа, измерьте длину от карниза до пола и вычтите 2 дюйма из общей длины.

Размер вкладыша для душа

  • 54 x 78 дюймов
  • 70 x 72 дюйма
  • 70 x 84 дюйма (сверхдлинный)
  • 72 дюйма x 84 дюйма (сверхдлинный)
  • 144 дюйма x 72 дюйма (очень широкий)

Размер скамейки для душа

Скамейки для душа можно использовать при проектировании душевых кабин. Они делают большую и функциональную особенность для ванной комнаты. Сиденье скамейки должно быть достаточно удобным и в то же время должно оставлять достаточно места для душевой зоны.

Высота скамейки для душа должна быть на 1 дюйм ниже уровня ваших коленей. ADA рекомендует от 17 до 19 дюймов от пола — это наилучшая высота скамейки для душа.

ADA также рекомендует, чтобы глубина сиденья составляла не менее 15–16 дюймов от стенки сиденья, а задний край сиденья — не более 2 ½ дюймов.

Для углового L-образного сиденья обычно требуется глубина сиденья от 14 до 15 дюймов. Табурет для ног в душе может иметь минимальную поверхность от 10 до 13 дюймов и максимум 15 дюймов. 9№ 0003

Стеллажи и ниши

Стеллажи и ниши — идеальное решение для дополнительного места для хранения, которое вам может понадобиться в душевой, поскольку они удобны, функциональны и не занимают места в душе. Хорошее место для душевой ниши — на стене напротив или рядом с насадкой для душа.

Размеры душевой ниши
  • 12 дюймов (ширина) x 24 дюйма (высота) с полкой посередине 12 дюймов в высоту — оптимальный рекомендуемый размер
  • Глубина душевой ниши: от 2,5 дюймов минимум до 3,5 дюймов максимум
  • Рекомендуемое стандартное положение ниши: от груди до уровня глаз; примерно от 48 дюймов до 60 дюймов в высоту. Нишу под ванну следует располагать ниже, то есть располагать ее чуть выше ванны.
  • Другие размеры душевой ниши:
    • 6 дюймов x 6 дюймов
    • 12 дюймов x 12 дюймов
    • 24 x 12 дюймов (лучшая рекомендация)
    • 35 x 12 дюймов
    • 47 дюймов x 12 дюймов

При ремонте ванной комнаты целесообразно установить душ там, где он находится; вместо перемещения вашего душа. Вам понадобится очень хороший подрядчик и установщик душевых дверей, чтобы добиться благоприятных результатов.

Выбор правильных размеров душа

Если вы хотите улучшить свои впечатления от принятия душа, первое, о чем вы должны побеспокоиться, — это выбрать правильный размер душа. Установка или реконструкция вашей ванной комнаты может показаться цельным проектом. Однако иногда этот процесс оказывается более требовательным, чем ожидалось. Существуют различные факторы, которые вы должны учитывать, прежде чем начинать весь процесс реконструкции ванной комнаты.

Возможно, вы захотите отказаться от ванны на время ремонта и установить душ большего размера, чтобы купание было более приятным. Достижение такой трансформации требует, чтобы вы принимали во внимание другие важные факторы, непосредственно влияющие на процесс.

Как определиться с правильными размерами душа для вашей душевой кабины

Души бывают разных размеров, конфигураций, конструкций и материалов, используемых для изготовления. Вы можете выбрать не ту насадку для душа, поддон для душа, душевую кабину или душевые кабины при покупке новой ванной комнаты без надлежащего исследования.

Вот несколько советов, которые помогут вам выбрать правильный размер душа при реконструкции вашей ванной комнаты.

1. Учитывайте стандартные размеры душа

Вы можете планировать ремонт ванной комнаты только тогда, когда она у вас есть. Ванной комнаты недостаточно; вам нужен тот, у которого достаточно места, чтобы помочь вам удовлетворить ваши потребности в реконструкции. Сравните общий размер вашей комнаты с доступными стандартными размерами душа.

Прежде чем выбрать стандартный душ, такой как душ x36 дюймов, всегда полезно узнать, что идеально подходит для душевой комнаты вашего дома. То, что является стандартным для вашего дома, может быть меньше или больше для кого-то другого, поэтому необходимо проводить индивидуальные измерения.

Как снять мерки

Самый быстрый способ измерить ширину душевой комнаты во время ремонта — расставить руки и повернуться кругами. Если вы можете совершать последовательные круговые движения, не касаясь стены ванной комнаты, вы можете заказать размер душа с таким же запасом площади.

Стандартный душ должен легко вместить людей с нормальным ростом и шириной, и, как правило, домовладельцы предпочитают душ по размеру. Тем не менее, другие покупатели предпочитают душ большего размера и легко согласятся на душ размером 48 x 36 дюймов или 60 x 36 дюймов, в зависимости от площади ванной комнаты.

2.  Ознакомьтесь с формой душевой кабины Источники: https://pixabay.com/photos/master-bath-design-remodel

Вы можете иметь в виду определенную форму, когда покупаете новую душевую кабину.

Дизайн и форма, о которых вы мечтаете, могут подойти только в том случае, если они вписываются в пространство ванной комнаты в вашем доме.

Учитывайте форму душа перед установкой

Перед установкой важно учитывать форму душа, особенно при установке ограждения в уже существующей ванной комнате. Вам также придется побеспокоиться о форме при создании отдельной душевой или ванной комнаты.

Ваш шкаф идеально подойдет по форме и размеру, оставив достаточно места для доступа к другим частям комнаты. Сегодня на рынке есть различные формы и размеры, которые вы можете рассмотреть. Наиболее распространенными являются корпуса квадратной и прямоугольной формы, наиболее предпочтительные из-за их простоты установки.

Однако не все одинаково относятся к прямоугольным и квадратным корпусам. Кто-то предпочитает изогнутые душевые кабины, а кто-то выбирает другие выдающиеся варианты, которые идеально соответствуют их потребностям. Важно то, что вы выбираете форму корпуса, которая будет идеально подходить вам и придаст вам то очарование, которого вы жаждете.

Размеры душа: какой размер лучше всего подходит для душа?

Однозначного ответа на вопрос, какой размер душа подходит всем, не существует. Люди выбирают размеры душа в зависимости от различных личных факторов. В то время как один мог бы предпочесть размер душа 32 x 32 дюйма как идеальный выбор, другой был бы удовлетворен душем размером 60 x 36 дюймов.

Как бы то ни было, большинство людей по-прежнему предпочитают устанавливать душ квадратной формы 36 x 36, и он долгое время был предпочтительным в качестве душа стандартного размера.

Вот другие размеры душевых кабин, на которые стоит обратить внимание при покупке современного душевого уголка.

Комбинация ванна/душ Источники: https://pixabay.com/photos/shower-tub-bathroom-ceramic

Как правило, комбинация ванна/душ имеет размеры 60 x 30 x 72 дюймов и является обычным выбором для сегодня много домов. Чтобы установить это, вам нужно будет выделить пространство вокруг ванны. Вы можете использовать стеклянный корпус, чтобы превратить комбинацию в современную стеклянную душевую кабину, которая привлекает и создает привлекательную атмосферу для всех типов ванн. Или вы можете добавить шторы вместо стекла, если у вас ограниченный бюджет!

Душевая кабина без ванны

Эти типы стеклянных душевых кабин обычно имеют размеры 48 x 36 дюймов. Тем не менее, их размеры варьируются в зависимости от места, которое у вас есть в ванной комнате вашего дома. То, как и где вы установите их в своей ванной комнате, также определит количество места, которое займет корпус. Чем больше у вас места для стеклянной душевой кабины, тем более насыщенной будет ваша ванна.

Если у вас больше места и вы не хотите использовать все пространство для душевой кабины, вы также можете добавить складной стол для душа для массажа и домашних спа-дней.

Квадратный душ Кредиты: https://www.pexels.com/photo/interior-of-modern-bathroom-with-shower-cabin

Квадратный душ имеет равные размеры по всем сторонам . Наиболее распространенные душевые кабины квадратной формы включают душевые кабины квадратной формы 32 x 32, 34 x 34 и 36 x 36 дюймов. Их легче установить, так как они идеально вписываются в угол вашей ванной комнаты или стоят уединенно, со всех четырех сторон, закрытых стеклом.

Новая стеклянная душевая кабина квадратной формы всегда будет интересной идеей, когда вы планируете переделать свою ванную комнату. Поскольку они легко вписываются, все, что вам нужно, это выбрать идеальный размер для вашей ванной комнаты, и все будет готово.

Душевые кабины: какого размера должна быть душевая кабина?

Основное беспокойство, которое может возникнуть у вас при планировании установки душевой кабины, заключается в том, будет ли в вашей ванной комнате достаточно места для ее размещения. Вот почему вам нужно провести измерения заранее, прежде чем приступить к процессу установки.

Размеры душевой кабины зависят от дизайна вашей ванной комнаты

Поскольку каждый дом спроектирован по-своему, то и размеры ванных комнат в них будут разными. Размер душевой кабины, которую вы выберете, во многом зависит от размера вашей ванной комнаты. Тем не менее, любое пространство размером менее 30 x 30 дюймов слишком мало для подходящей душевой кабины для любой семьи.

Большинство домовладельцев выбирают душевую кабину размером не меньше 32 x 32 дюйма при покупке. Наиболее рекомендуемый размер душевой кабины Национальной ассоциацией кухонь и ванн — это душевая кабина «36 x 36». Но если у вас есть дополнительное пространство, вы можете выбрать душевую кабину «48 x 36» или «60 x 36».

Почему размер имеет большее значение при выборе душевой кабинки

Главная цель душевой кабинки — дать вам оптимальную свободу, которая вам необходима, когда вы идете в ванну. У душевых кабин нет дверей или занавесок на входе, отсюда и название.

Чтобы пользоваться душевой кабиной с максимальным удовольствием, в ванной комнате должно быть достаточно места. Вам понадобится достаточно места для свободного перемещения, а также дополнительное пространство в ванной комнате для надлежащего отвода воды.

Кредиты: https://www.pexels.com/photo/modern-bathroom-interior-with-freestanding-tub

Если вы ограничите площадь основания душа из-за ограниченного пространства, пол не будет иметь достаточный наклон для обеспечения эффективного стока воды . Всегда рекомендуется, чтобы в вашей ванной комнате было как минимум пространство «36 x 36» для установки душевой кабины. Это облегчит вам движения и поток воды во время купания.

Разоблачение душа для двоих: какого размера душ для двоих?

Душ для двоих — это лучший вариант для принятия душа, если вам постоянно приходится каждое утро ждать, пока ваш партнер выйдет из душа. Двухместные душевые позволяют принять душ одновременно двум людям.

Если вы планируете включить эту опцию в уже существующий дом, лучше всего это сделать во время капитального ремонта ванной комнаты. Идея душа для двух человек — одна из лучших идей ремонта ванной комнаты, которая поможет улучшить вашу ванную комнату.0003

состояние и повысить стоимость вашего дома.

Размеры идеального душа для двоих

Для установки душа для двоих в ванной комнате вам понадобится площадь не менее 42 x 66 дюймов. Больше места даст вам возможность добавить некоторые личные элементы, такие как скамья для отдыха до и после ванны.

После того, как корпус установлен, вы можете выбрать идеальную насадку для душа, дополняющую эстетику вашей ванной комнаты.

Добавить комментарий

Ваш адрес email не будет опубликован. Обязательные поля помечены *