Схема квартиры студии: 5 советов правильного зонирования — Roomble.com
5 советов правильного зонирования — Roomble.com
Организация пространства
2021-09-17T07:10:16+00:00 2021-09-17T07:26:26+00:00 Планировка квартиры-студии: 5 советов правильного зонирования 2021-09-17T07:10:16+00:00 Как спланировать студию так, чтобы в ней нашлось место для всех необходимых зон? Чем отделить спальное место от гостиной, а гостиную от кухни, не превращая квартиру в лабиринт? Для вас — пять советов, которые помогут зонировать студию правильно Планировка квартиры-студии: 5 советов правильного зонирования
Как спланировать студию так, чтобы в ней нашлось место для всех необходимых зон? Чем отделить спальное место от гостиной, а гостиную от кухни, не превращая квартиру в лабиринт? Для вас — пять советов, которые помогут зонировать студию правильно
Квартира-студия — настоящий герой нашего времени от мира недвижимости.
Её жалуют и представители творческих профессий, и те, кто часто бывают в командировках, и, наконец, молодые пары и семьи, для которых нередко она становится первым жильём.
Однако открытая планировка без деления на комнаты и чаще всего небольшая площадь требуют особенно тщательного планирования, в процессе которого приходится зонировать, зонировать и ещё раз зонировать. Как делать это с умом, рассказываем в статье и разбираем приёмы, использованные в реальных проектах.
За исключением случаев, когда в студии проживает один человек или она используется как дополнительное жильё, для спальной зоны желательно выделить какой-то обособленный уголок. Необязательно возводить глухие перегородки и выкраивать в маленькой квартире отдельную комнату, но хотя бы минимальную уединённость нужно обеспечить.
Отделить спальное место от общей зоны можно с помощью открытого стеллажа, ширмы, лёгкой перегородки или хотя бы шторки. Это позволит не только психологически настроиться на отдых, но и относительно спокойно спать, а также прикрыть приватную зону, если в доме гости.
Если вам попалась квартира с высокими потолками, то вы, считайте, сорвали джекпот. Даже если общая площадь очень маленькая, можно организовать второй ярус и разместить на нём спальное или рабочее место.
Используйте все остальные возможности, которые предусматривает планировка студии: широкие углы, ниши и даже бесполезные на первый взгляд закутки могут сослужить вам хорошую службу. В них можно организовать места для хранения, втиснуть стиральную машину или даже обустроить домашний мини-офис.
Типичная ошибка — отталкиваться при планировании студии от спального места. С одной стороны, продумать этот момент действительно важно, чтобы кровать не оказалась на проходе или у входной двери, с другой — в интерьере спальня, как правило, не занимает центральное место, а значит, стоит соблюдать эти пропорции и в квартире-студии. Лучше всего выделить для сна место в дальней и максимально уединённой части, а основную площадь отдать под гостиную, кухню и столовую.
Квартира-студия: 40 метров, кровать в нише и много простора
Как сделать тёмный интерьер уютным: холостяцкая квартира в Москве
Зонирование, безусловно, главный помощник в оформлении студии, особенно если квартира маленькая, но чересчур увлекаться тоже не стоит.
Чтобы интерьер был гармоничным, а пространство не казалось слишком нагруженным и тесным, старайтесь использовать для зонирования лёгкие инструменты: шторы, ширмы, открытые стеллажи, арки или реечные перегородки, пропускающие воздух и свет. Если вы хотите отделить одну из зон раздвижными дверями, отдайте предпочтение моделям из прозрачного или матового стекла.
Очень важно обеспечить достаточное освещение в студии: всевозможные перегородки, стеллажи и шторы мешают естественному свету распространяться по всей квартире, поэтому необходимо тщательно продумывать искусственный. Однако освещение — это не только необходимость, но и ещё один действенный инструмент зонирования. С помощью разных типов светильников, высоты их расположения, интенсивности и направленности света можно дополнительно подчеркнуть функциональные зоны. А если помимо основного источника продумать разнообразные независимые сценарии для каждой части квартиры, то почитать книжку на диване, не мешая тому, кто отдыхает в спальной зоне, станет намного проще.
Напоследок предлагаем посмотреть три проекта студий от российских дизайнеров, представляющие собой удачные примеры зонирования квартир такого типа.
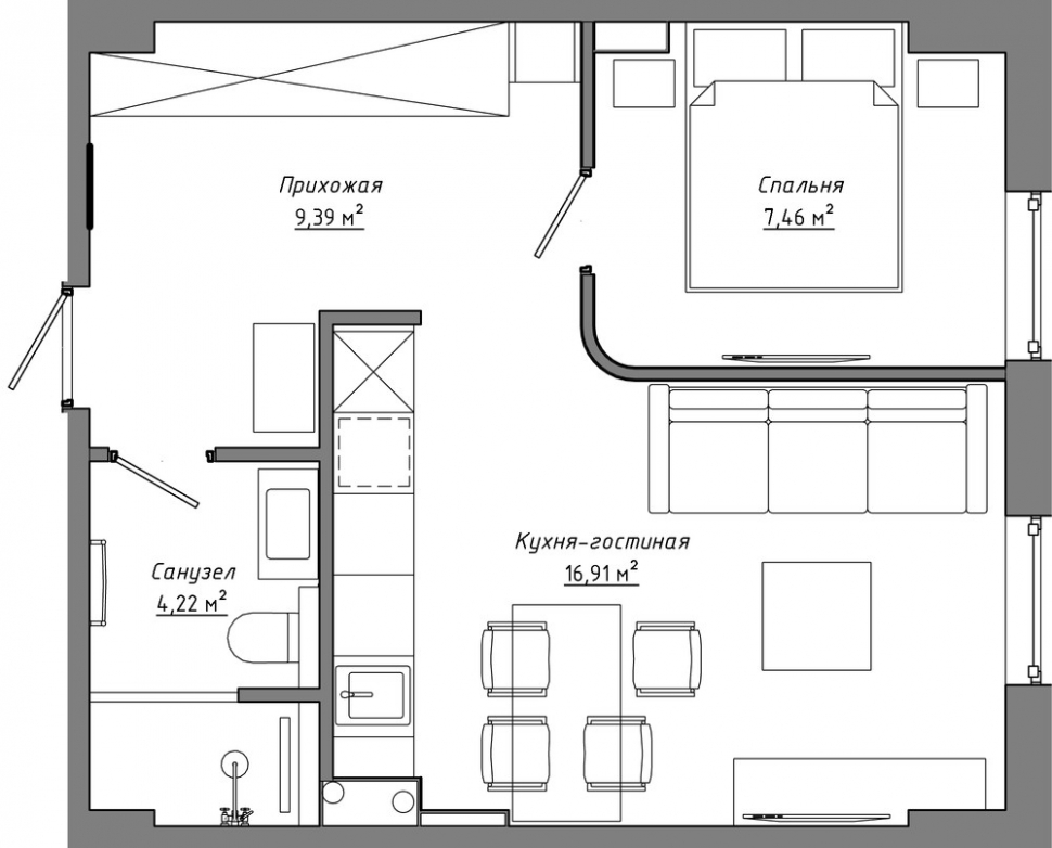
В этой однокомнатной квартире для молодого человека планировка предполагает студийную зону, образованную совмещением комнаты, кухни и примыкающего к ней балкона. В едином помещении дизайнер интерьеров Степан Бугаев выделил зону кухни, гостиную, столовую и полноценную спальную зону с рабочим уголком. Таким образом, скромное по площади пространство совмещает в себе множество функций. Спальня отделена от общественной зоны раздвижной перегородкой, что позволяет создать ощущение приватности. Матовое стекло пропускает свет, а его глянцевая поверхность задаёт глубину, визуально расширяя пространство.
Степан Бугаев, дизайнер интерьеров:
— При проектировании интерьера необходимо учитывать, что студия — это не многокомнатная квартира, и нельзя перегружать её лишними элементами, к примеру полноценным рабочим местом с принтером, факсом, сканером и так далее.
Каждый предмет должен выполнять только свою, действительно необходимую функцию.
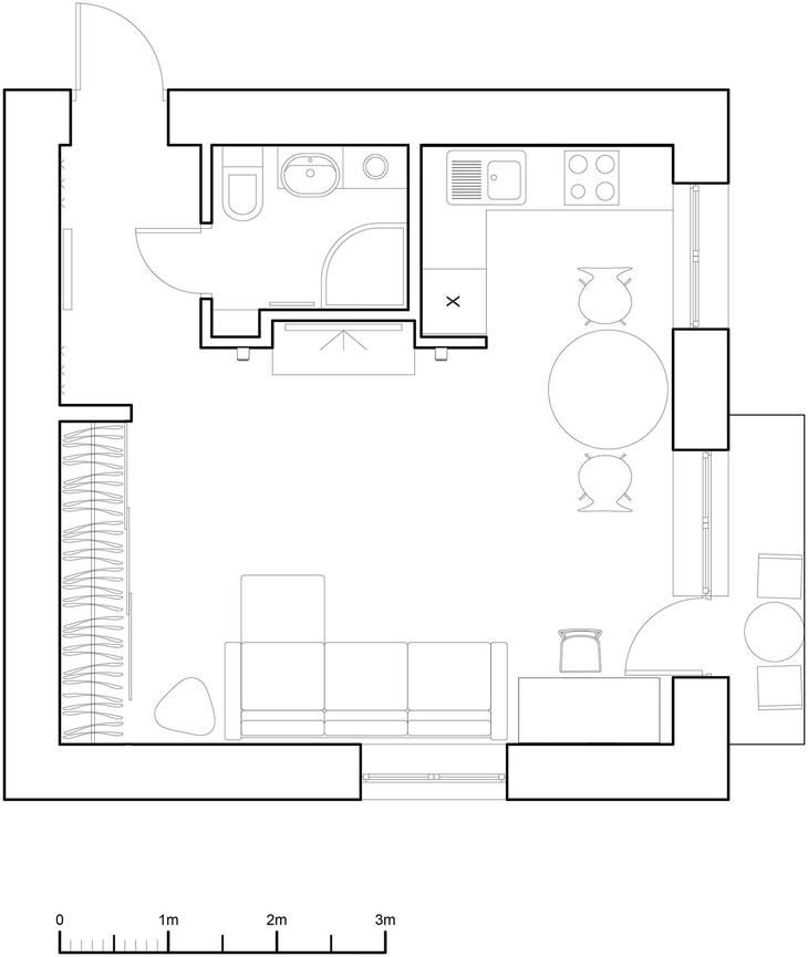
В проекте студии площадью 37 метров дизайнер Оксана Цымбалова использовала сразу три приёма, позволяющих грамотно зонировать квартиру. Во-первых, спальное место отделено шторой из лёгкой ткани, которая не перегружает пространство. Во-вторых, для зонирования также используется цвет: белый визуально приумножает свет и делает интерьер лёгким и воздушным, а зелёно-бирюзовые акценты гармонично дополняют светлый фон и объединяют всё пространство студии в единое целое. И наконец, разграничить зоны помогает напольное покрытие — дерево тёплого оттенка в гостиной и более светлый пол в прихожей и на кухне.
Хозяевам этой квартиры-студии в распоряжение досталось 43 метра единого пространства без каких-либо стен и перегородок (исключая санузел).
Оформляя интерьер, Анна Чеверёва, дизайнер студии Zi-Design, также использовала сразу несколько приёмов зонирования. Так, «гостиная» обозначена ярким ковром и тёмной мебелью, а спальное место отгорожено от прихожей и общественной зоны перегородкой с одной стороны и небольшим открытым стеллажом, пропускающим свет из окна, с другой.
Поделитесь:
Оцените статью:
Спасибо за Вашу оценку! Хотите оставить комментарий?
нетотправить
Благодарим Вас за оставленный голос.
Подпишитесь на нас:
Подписаться в Facebook
Подписаться во Вконтакте
Интерьер квартиры-студии прямоугольной планировки с одним окном
Современные жилые дома строятся по дизайнерским разработкам, большинство которых бывают достаточно необычными, причудливыми. Основное количество квартир узкие и длинные. Без специфических знаний, фантазии, грамотно разграничить пространство будет сложно. Кто-то нанимает дизайнера, другие пытаются разобраться самостоятельно, используя интернет, книги, журналы.
Открытая планировка – отличное решение для создания стильного и просторного интерьера
Содержание
- 1 Дизайн вытянутой квартиры-студии с одним окном: основное понятие
- 2 Правила дизайна и зонирования
- 3 Иллюзия обмана: дизайнерские приемы, увеличивающие пространство
- 4 Преимущества планировки жилого помещения без перегородок
- 5 Небольшая квартира-студия в стиле лофт
- 6 Видео: прямоугольная квартира-студия для молодой пары
- 7 Фото квартир-студий с одним окном
- 7.
1 Смотрите также
- 7.
Дизайн вытянутой квартиры-студии с одним окном: основное понятие
Вытянутую квартиру-студию причисляют к категории небольших помещений. Оформляя их, рекомендуют использовать минимальное количество мебельных элементов. Это допускается во многих интерьерных стилях: хай-тек, минимализм, прованс, скандинавский стиль. Но, не стоит забывать о наличии оконного проема, который делает жилище специфичным, методы обустройства подойдут не все.
Для квартиры небольшого размера наиболее рациональным будет выбор интерьера в стиле минимализма
Выделим основные принципы:
- Основные зоны расположены вдоль удлиненных стен.
- Традиционно у окна зона гостиной, кабинетная.
- Кухонный гарнитур устанавливается вдоль стены.
- Под спальню лучше выделить дальний уголок, если нет такой возможности, ее располагают напротив кухни.
- У входной двери – прихожая, санузел.
Главная задача – грамотное зонирование вытянутого прямоугольного помещения
Лаконичная цветовая палитра делает интерьер легким и воздушным
Белые фасады гарнитура осветляют комнату, компенсируя недостаток света от одного окна
Цветовая гамма дизайна квартиры-студии с одним окном имеет огромное значение.
Спальня отделена от гостиной решетчатой перегородкой, пропускающей свет в глубину комнаты
Компактный санузел с душевой кабиной
Смотрите такжеЦвет «кофе с молоком» в интерьере: идеи, фото
Правила дизайна и зонирования
Продумывать ремонт и обстановку прямоугольной квартиры-студии необходимо до начала работ. Нужно точно определиться с расположением функциональных зон, цветовой гаммой, стилей интерьера. Для этого можно создать виртуальный макет помещения с помощью компьютерной программы или обратиться к дизайнеру.
Чем больше людей проживает в квартире, тем важнее становится зонирование
Важно.
Грамотная расстановка элементов интерьера квартиры сделает ее многофункциональной, эргономичной, стильной, ведь помещение вытянутой формы имеет множество преимуществ.
Отделить одну зону от другой можно несколькими способами:
- Стеклянные перегородки.
- Многоуровневые потолки.
- Барная стойка.
- Отделочным материалом, разным способом уложенным на полу.
Оригинальная идея – поворотная перегородка
Спальное место можно скрыть за стеллажами
Стеклянные перегородки пропускаю весь свет в глубину комнаты, а спрятаться от посторонних глаз можно с помощью штор
Открытый стеллаж в роли разделителя пространства
Небольшая полуперегородка в светлой квартире-студии индустриального стиля оформления
Наличие вытяжки в квартире-студии обязательно. Она быстро удалит все ненужные запахи, частички жира.
Смотрите такжеЭргономика в дизайне интерьера: 10 правил удобного пространства
Иллюзия обмана: дизайнерские приемы, увеличивающие пространство
Дизайн квартиры-студии с одним окном должен быть одновременно практичным и стильным.
У прямоугольного помещения есть достоинства и недостатки, которые можно успешно откорректировать с помощью определенных дизайнерских приемов.
Основные цвета и материалы – натуральные, яркие оттенки допустимы только в дозированных акцентах
Способы зрительного увеличения пространства:
| Цвета | Чтобы визуально увеличить пространство квартиры-студии, при оформлении стен, потолка, пола используются пастельные оттенки, они делают интерьер легким, воздушным. Можно попытаться соединить теплые и холодные оттенки, но подбор должен производить профессионал. |
| Освещение | |
| Использование зеркал | Если потолок низкий, его можно сделать зеркальным. Визуально расширит помещение большое зеркало на всю стену. Если повесить отражающую поверхность напротив окна, свет будет отражаться и распределяться по всей комнате. Можно установить зеркало позади торшеров, помещение будет выглядеть более глубоким. |
| Многофункциональные предметы интерьера | Это трансформируемая мебель с глянцевой или зеркальной поверхностью. |
| Декорирование | В небольшом помещении декора должно быть минимальное количество, в противном случае, комната будет выглядеть захламленной. |
Не усложняйте потолок, если этого не требует стилистика помещения. Ровная светлая поверхность всегда играет на расширение пространства
Зеркальная перегородка сделает помещение намного больше, чем оно есть на самом деле
Смотрите такжеВикторианский стиль в интерьере: история возникновения
Преимущества планировки жилого помещения без перегородок
В настоящее время квартиры-студии любого размера становятся все более популярным видом жилья. Еще несколько лет назад – это был самый недорогой вид недвижимости, но сейчас их приобретают не только из-за его стоимости.
Открытое пространство без стен и перегородок предоставляют хозяину возможность оформить его как угодно, реализовав самые смелые мечты и фантазии, задействовав при этом каждый свободный сантиметр.
Планировка квартиры-студии позволяет оформить весь интерьер в одном стиле
Свобода выбора, мыслей может подразумевать разный образ жизни собственника студии, именно от него зависит, каким будет интерьер квартиры. Кому-то будет достаточно кухонной и спальной зоны, другим же необходимы полноценные гостиная и рабочий кабинет. Возможность любого вида планировки – главное преимущество прямоугольного помещения с одним окном.
Вы сами можете решить, какая зона важнее, а чем можно пожертвовать
Основные преимущества:
- Создание необходимого количества функциональных зон.
- Использование каждого «полезного» сантиметра жилья.
- Возможность создания двухуровневого интерьера.
Чтобы прямоугольное помещение с одним окном выглядело стильно и гармонично, нужно особое внимание уделить деталям.
Все элементы декора должны подходить по стилю и цветовому исполнению. Важно не переборщить с количеством, большое количество аксессуаров будет загромождать квартиру. Все элементы должны быть небольшими, нейтральных или светлых цветов. Между мебельными элементами должно быть достаточное количество свободного места, все проходы открыты.
Необходимо предусмотреть достаточно места для хранения вещей
Предпочтительнее использовать натуральные и качественные отделочные материалы, крепкую и надежную мебель. На самом деле, красиво и грамотно оформить вытянутое помещение с одним окном не так сложно. Главное, следовать негласным правилам создания интерьера в нестандартном жилище, советам опытных дизайнеров.
Смотрите такжеКак создать современный дизайн двухкомнатной квартиры?
Небольшая квартира-студия в стиле лофт
В этом небольшом помещении есть все необходимое: гостиная, кухня, спальня и даже кабинет.
Комфортное рабочее место
Рабочая зона кухни
Вместительный шкаф для одежды
Обеденный стол с деревянной столешницей
Основное освещение реализовано с помощью софитов
Легкая полупрозрачная перегородка
Смотрите такжеДизайн гардеробной комнаты с учетом оптимального размещения сезонной одежды и обуви
Видео: прямоугольная квартира-студия для молодой пары
Смотрите такжеСочетание цветов в интерьере.
Важно все: пол, потолок, стены, мебель
Фото квартир-студий с одним окном
Планы этажей квартир-студий: примеры и основные соображения
Никогда еще не было так просто создавать функциональные планы этажей квартир-студий, которые понравятся вашим клиентам.
Начните бесплатно Запросить демонстрацию
Быстрое создание профессионального плана квартиры-студии
С помощью Cedreo вы можете создавать профессиональные планы квартиры-студии быстрее, чем когда-либо. Простой в использовании набор инструментов и обширная библиотека мебели позволяют быстро создавать подробные 2D- и 3D-планы этажей. . Помогите своим клиентам лучше представить свою новую планировку квартиры-студии и быстрее заключайте сделки!
Начать рисовать сейчас
Типы планов этажей квартир-студий
Разработать планы этажей небольших квартир-студий может быть сложно. На маленьком пространстве нужно уместить многое. Вот почему лучше всего использовать комбинацию 2D- и 3D-планов этажей студии с подробными размерами и мебелью.
Посмотрите, как эти типы планов этажей помогают вам и вашим клиентам наилучшим образом использовать жилое пространство.
2D-план этажа квартиры-студии
2D-план этажа показывает общую планировку и размеры сверху.
Режим непрерывного рисования Cedreo позволяет пользователям создавать полный план квартиры-студии всего за несколько кликов. Когда вы рисуете, мгновенно получайте обновленные размеры и измерения площади поверхности. Легко добавить необходимые детали, такие как зоны с цветовой кодировкой, внутренние перегородки, символы мебели и шкафов. Перетаскивайте окна и двери из обширной библиотеки продуктов и быстро настраивайте размер и цвет в соответствии с дизайном квартиры-студии.
Узнать больше
Планы этажей квартир-студий в 3D
Небольшое пространство квартиры-студии может затруднить визуализацию клиентами ее окончательного вида и ощущения. Вот почему так важны 3D-планы этажей, демонстрирующие мебель и материалы. Они позволяют вашим клиентам получить реалистичный 3D-вид готовой квартиры с разных точек зрения.
Это поможет вашим клиентам почувствовать поток в студии, что особенно важно при работе с небольшими помещениями.
Используя отзывы клиентов, добавьте цвета, материалы и мебель из обширной библиотеки продуктов Cedreo. Обновляйте 2D-планы и мгновенно просматривайте изменения в средстве 3D-просмотра.
Узнать больше
Примеры плана квартиры-студии
План квартиры-студии площадью 300 кв. футов
План квартиры с одной спальней
План малой квартиры-студии
План квартиры-студии
90 план этажа 0 квартира 0План узкой квартиры-студии
5 План этажа квартиры-студии Соображения
Создание плана квартиры-студии является уникально сложной задачей. Вы должны уместить весь дом — кухню, спальню.
, ванная
, столовая и гостиная – в единое помещение. Прежде чем начать, важно обсудить потребности вашего клиента, чтобы определить, предпочитает ли он открытое пространство или пространство, разделенное на отдельные области.
Примите во внимание эти 5 советов при создании плана квартиры-студии.
1. Определение функциональных зон
Даже без стен и дверей можно найти способы определить каждую функциональную зону студии. Популярный способ сделать это — использовать разные цвета краски и облицовочные материалы на полу и стенах. Cedreo позволяет легко сделать это даже в планировках открытого пространства. Еще один способ обозначить зону — использовать коврики большой площади. Попробуйте положить один под диван и журнальный столик или под кровать и спальную зону. С ограниченным количеством квадратных футов, доступных на небольшом пространстве квартиры-студии, дизайн интерьера имеет важное значение, чтобы получить максимальную отдачу от площади.
2. Используйте предметы для хранения для создания разделения
Вместо использования складных перегородок создайте разделение с помощью элементов для хранения. Это помогает разделить студию, предоставляя необходимое пространство для хранения.
Используйте багажник или развлекательный центр для небольшого дополнительного разделения, не создавая ощущения тесноты. Или вы можете добавить высокую книжную полку или шкаф для более четкого разделения.
3. Создайте отдельную спальную зону
Некоторые клиенты предпочитают максимально скрыть спальную зону. Один из способов сделать это — поставить мебель у изножья кровати. Попробуйте комбинацию консольного стола и дивана, чтобы создать ощущение разделения. Если им нужна более уединенная спальная зона, рассмотрите возможность добавления высокой книжной полки или платяного шкафа в качестве перегородки с местом для хранения. А если пространство ограничено, добавьте простую висячую занавеску, которую днем можно отдернуть.
4. Максимальное освещение
Ничто так не увеличивает маленькое пространство, как больше света. Обязательно расставьте мебель так, чтобы не загораживать естественный свет, проникающий через окна. Используйте тонкие шторы для уединения, которые пропускают как можно больше солнечного света.
Добавление стратегически расположенных зеркал и светлой краски будет отражать свет и визуально увеличивать пространство. А если приходится дополнять искусственным освещением, используйте разнообразные светильники — потолочные светильники, настольные лампы и торшеры.
5. Украсьте парящей и прозрачной мебелью
Плавающая мебель может помочь разделить открытое пространство, не делая его более тесным. Вместо того, чтобы ставить диван вдоль стены, попробуйте поставить его подальше от стены, чтобы отделить зону гостиной от остальной части студии. Прозрачная мебель — еще один разумный выбор. Стеклянный журнальный столик функционален, но не занимает места на полу. Вы также можете использовать высокую прозрачную книжную полку. В нем есть дополнительное место для хранения, а открытые стороны по-прежнему пропускают много света в остальную часть студии.
Создавайте 2D- и 3D-планы этажей квартир-студий онлайн… за считанные минуты
Cedreo используется тысячами строителей домов
, ремонтники и дизайнеры интерьеров, чтобы воплотить в жизнь планы этажей квартир-студий.
С Cedreo вам не нужно обладать навыками 3D-дизайна, чтобы создавать профессиональные планировки квартир-студий.
Начните бесплатно уже сегодня
3 плана планировки квартир-студий, подходящих для помещений любого размера
Мы можем получать доход от продуктов, доступных на этой странице, и участвовать в партнерских программах.
Поиск идеального плана любой комнаты в вашем доме сам по себе является загадкой, но проектирование квартиры-студии сопряжено с определенным набором проблем. Что вы делаете, когда с вашей кровати открывается великолепный вид на вашу плиту? Что, если во всей вашей квартире есть только один крошечный шкаф для всех ваших потребностей? Как устраивать званые обеды (в конце концов, они не всегда будут виртуальными), если единственной поверхностью для приема пищи является журнальный столик, а гости должны сидеть на вашей кровати? С такими проблемами сталкиваются многие горожане. Часто отсутствует разграничение между гостиной, столовой, зоной для приготовления пищи и спальней.
Если у кого-то и есть хорошие возможности для решения таких проблем с небольшим пространством, так это у нью-йоркских дизайнеров интерьеров. Пожив в собственных студиях, они не понаслышке знают решения, которые сделают ограниченные квадратные метры более просторными, сбалансированными и функциональными. Мы попросили троих из них поделиться своими лучшими советами по созданию окончательного плана планировки квартиры-студии — вот что они сказали.
Если у вас меньше 400 квадратных футов Пару лет назад у дизайнера интерьеров Патрика МакГрата появился самый особенный клиент: его сестра Элль. Он уже жил в одном и том же нью-йоркском здании на нижней Пятой авеню недалеко от Вашингтон-сквер со своим парнем, архитектором Рейнальдо Леандро из Ashe + Leandro, и хорошо знал каждый изгиб и угол. Поэтому он отказался от свода правил, который часто советует урезать пространство, в пользу черного цветочного ковра Билла Бласса, который служил отправной точкой для всего пространства.
Затем он соединил его с диваном с леопардовым принтом.
рекламное объявление
Так как его сестра любит развлекаться, МакГрат сохранил простую планировку с большим количеством места, чтобы она могла устраивать неформальные вечеринки с друзьями, отделив кухню от основного жилого помещения. Самой большой проблемой квартиры было ограниченное пространство в шкафу.
Три совета МакГрата по идеальной планировке
Секция вне зоны приготовления пищи Студия чувствует себя намного лучше, когда есть отдельная кухня — никто не хочет лежать в постели и пялиться на посудомоечную машину. Если это невозможно, замените стандартный холодильник на встроенный вариант и обновите оборудование и технику.
Заставьте свою мебель работать сверхурочно Каждый предмет должен выполнять двойную функцию в студии. Убедитесь, что он выглядит стильно, удобно и универсально.
Создание комнат в комнате Важно создать отдельные зоны внутри пространств, чтобы придать каждому углу свою уникальную индивидуальность.
рекламное объявление
Если у вас около 500 квадратных футов
Когда Дэн Мазарини из BHDM Design купил свою студию площадью 480 квадратных футов в Гринвич-Виллидж на Манхэттене у своего 95-летний сосед, в ней не было ремонта более 40 лет. «Ванная и туалет были очень узкими, поэтому я увеличил их на два фута, — объясняет он. «Я передвинул входную дверь так, чтобы она находилась на одной оси с окнами, чтобы на кухню и в ванную было больше света, и открыл потолки, потому что половина пространства уменьшилась до восьми футов».
В результате получилась залитая светом студия с высокими потолками — чистый холст, на котором дизайнер может творить свое волшебство. Он использовал новообретенную высоту потолка, чтобы создать дополнительные полки для хранения и создать галерею для своих самых ценных произведений искусства. Теперь это открытое и просторное пространство, Mazzarini может даже устраивать вечеринки до 80 человек.
Три совета Мазарини для идеальной планировки
Включите множество организационных приспособлений Убедитесь, что у вас достаточно места для хранения. Я предпочитаю делать это вертикально, чтобы использовать укромные уголки и закоулки. Закрытые места хранения (такие как шкафы и ящики) также предпочтительнее, так что вы можете быть немного грязнее.
Подумайте, как вы будете использовать пространство Я люблю развлекаться, но редко ужинаю дома, поэтому обеденный стол мне был не нужен. Вместо этого я передвигаю свой телевизор на вечеринки и превращаю комод в барную стойку. Избавьтесь от мебели, которой вы не будете пользоваться.
рекламное объявление
Слой для образа Маленькие дома все еще могут быть теплыми и уютными. Разнообразные текстуры кожи, дерева, гипса и шерсти (или многослойные рисунки и украшения) могут рассказать вашу историю и согреть ваше пространство. Только не переусердствуйте (т.
е. не будьте мисс Хэвишем).
Иногда планировка квартиры-студии является скорее осознанным выбором, чем препятствием, которое необходимо преодолеть. В своем ярком бруклинском лофте дизайнер Джесс Блумберг из Dale Blumberg Interiors хотела сфокусировать внимание на потрясающих видах, одновременно максимизируя функциональность своего большого (но открытого) пространства. «Самая большая проблема заключалась в том, чтобы убедиться, что столовая, гостиная и спальная зоны достаточно отделены друг от друга без каких-либо реальных стен, очерчивающих их», — говорит она. «Я хотел обеспечить беспрепятственный поток от входной двери к большой оконной стене, из которой открывается потрясающий вид на южный Бруклин».
Так как передняя часть квартиры построена на приподнятой платформе, это было очевидное место для столовой. Спальня, которая должна была быть в более незаметном месте, спрятана между открытой балкой и большими окнами.
Три совета Blumberg для идеальной планировки
Выделите архитектурные детали Одна из моих любимых частей квартиры, которая находится в переоборудованном офисном здании, — это большая открытая паровая труба, разбрызгиватели и опорные колонны. Паровая труба по коду города окрашена в желтый цвет. Я решил подложить под нее большую старинную карту Западной Африки, чтобы убрать желтый цвет и сделать его более естественным.
рекламное объявление
Будь проще Иногда все, что вам нужно, чтобы ваша кровать чувствовалась отделенной от остального жилого пространства, — это пара растений среднего размера вместо большого книжного шкафа или парящей стены, которая может мешать обзору или делать пространство более закрытым.
Ограничьте свою цветовую палитру Используйте ограниченную цветовую схему и похожие материалы, чтобы связать все пространство воедино. Я сохранил нейтральную палитру белых, серых и черных цветов, а также расставил точки теплых древесных тонов повсюду.
1 Смотрите также
Грамотная расстановка элементов интерьера квартиры сделает ее многофункциональной, эргономичной, стильной, ведь помещение вытянутой формы имеет множество преимуществ.
Можно установить зеркало позади торшеров, помещение будет выглядеть более глубоким.