Стандартный размер карниза: потолочные, настенные, скрытые, ширина стены — Онлайн энциклопедия о шторах
потолочные, настенные, скрытые, ширина стены — Онлайн энциклопедия о шторах
Размеры карнизов для штор вычисляются с помощью простых способов в зависимости от особенностей окна и комнаты.
Опубликовано: Рубрика: КарнизАвтор: admin
Недостаточно подобрать модель карниза, подходящую к шторам и общему стилю интерьера. Немаловажную роль играют размеры и ширина карнизов для штор. Неправильно подобранные параметры могут не украсить, а наоборот, выделить недостатки оконного проема, испортив созданную в комнате атмосферу.
Размеры карниза для штор
Чем руководствоваться, выбирая размер карниза
Чтобы скрыть недостатки и подчеркнуть достоинства окна, необходимо правильно подобрать размеры держателя для штор. В расчетах необходимо учитывать следующие параметры:
- Размер оконного проема, есть ли необходимость его корректировать (например, если окно узкое, то можно его зрительно увеличить при помощи карниза).

- Вес штор. Для тяжелых портьер надо брать карнизную палку диаметром большего размера, чем для легких занавесок.
- Модель портьер. Например, падающие красивыми складками, с тюлем и ламбрекеном шторы потребуют конструкции большего размера, обладающей несколькими рядами для крепления занавесок, а практичные римские шторы нуждаются в соответствующей модели карниза, почти не превышающего размеры окна.
- Метод крепления. Держатели для занавесок могут быть настенными или потолочными. Рассчитываются размеры настенных карнизов для штор не так, как размеры для потолочных, а модель креплений для стильных римских штор, как правило, крепится внутри оконного проема или непосредственно над окном (реже под потолком).
- Для настенных карнизов, состоящих из штанги, декоративных наконечников и кронштейнов крепления, следует решить, на каком расстоянии от стены должна находиться конструкция. Исходя из этих размеров, надо подбирать длину кронштейнов. В кухне с легкими однорядными занавесками можно обойтись короткими и тонкими, которые придадут воздушность конструкции, особенно, если они сделаны из пластиковых полимеров и гармонируют с цветовым оформлением.
Размеры карниза для штор
Как выбрать оптимальные параметры карниза
Какие размеры карнизов для штор будут оптимальными? Эта величина высчитывается индивидуально:
В случае, когда размеры окна устраивают хозяев, длина карниза рассчитывается, исходя из ширины оконного проема с добавлением по 20 см с каждой стороны. Тогда раздвинутые шторы будут полностью открывать окно.
Для плотных тяжелых гардин, особенно если они плохо драпируются, лучше брать карнизную палку подлиннее, сильно выходящую за пределы окна.
Рассчитать размеры карниза для римской шторы просто, достаточно замерить ширину окна. Держатели для римских штор можно приобрести готовыми или заказать в мастерской. Их чаще всего изготавливают из дерева, металла или пластиковых полимеров. Пластиковые или металлические римские карнизы отлично впишутся в интерьер кухни.
Для двух расположенных рядом окон хорошо приобрести общий держатель для штор. Тогда замеряется ширина окон, ширина стенного проема и к этому результату добавляется 40 см.
Когда планируется установить скрытый потолочный держатель портьер, нужно учитывать размер подоконника. Занавеска не должна касаться подоконника и отопительной батареи. Скрытые потолочные держатели удобно устанавливать в комнатах с навесным потолком. Скрытые карнизы практичны и занимают мало места.
Размеры потолочных карнизов для штор невелики. Исключением служит вариант, когда потолочную конструкцию размещают по всей ширине комнаты, позволяя портьерам двигаться не только в пределах окна, но и от стены до стены. Применение потолочных карнизов позволяет красиво задекорировать окна, а также отделить при помощи занавески часть помещения.
Какой длины должен быть настенный или потолочный держатель для портьер, каждый выбирает для себя сам. Но стоит помнить, что правильно подобранные размеры карниза не только создадут уютную атмосферу, но и облегчат различные манипуляции с портьерами.
Как выбрать карниз для штор по размеру. Как выбрать оптимальные параметры карниза
Содержание
- Как выбрать карниз для штор по размеру.
Как выбрать оптимальные параметры карниза - Стандартные размеры штор. Как выбрать карниз по размеру окна
- Ширина карниза для штор. Как выбрать оптимальные параметры карниза
- Размер штор w h. Как определить размер штор
- Видео как выбрать карниз без проблем. 8 ошибок при выборе карниза от эксперта.
Как выбрать карниз для штор по размеру. Как выбрать оптимальные параметры карниза
Какие размеры карнизов для штор будут оптимальными? Эта величина высчитывается индивидуально:
В случае, когда размеры окна устраивают хозяев, длина карниза рассчитывается, исходя из ширины оконного проема с добавлением по 20 см с каждой стороны. Тогда раздвинутые шторы будут полностью открывать окно.
Для плотных тяжелых гардин, особенно если они плохо драпируются, лучше брать карнизную палку подлиннее, сильно выходящую за пределы окна.
Рассчитать размеры карниза для римской шторы просто, достаточно замерить ширину окна. Держатели для римских штор можно приобрести готовыми или заказать в мастерской.
Их чаще всего изготавливают из дерева, металла или пластиковых полимеров. Пластиковые или металлические римские карнизы отлично впишутся в интерьер кухни.
Для двух расположенных рядом окон хорошо приобрести общий держатель для штор. Тогда замеряется ширина окон, ширина стенного проема и к этому результату добавляется 40 см.
Когда планируется установить скрытый потолочный держатель портьер, нужно учитывать размер подоконника. Занавеска не должна касаться подоконника и отопительной батареи. Скрытые потолочные держатели удобно устанавливать в комнатах с навесным потолком. Скрытые карнизы практичны и занимают мало места.
Размеры потолочных карнизов для штор невелики. Исключением служит вариант, когда потолочную конструкцию размещают по всей ширине комнаты, позволяя портьерам двигаться не только в пределах окна, но и от стены до стены. Применение потолочных карнизов позволяет красиво задекорировать окна, а также отделить при помощи занавески часть помещения.
Какой длины должен быть настенный или потолочный держатель для портьер, каждый выбирает для себя сам. Но стоит помнить, что правильно подобранные размеры карниза не только создадут уютную атмосферу, но и облегчат различные манипуляции с портьерами.
Стандартные размеры штор. Как выбрать карниз по размеру окна
Ширина штор, ширина карниза – обычно разные цифры, потому что точь-в-точь размеры ткани подбираются для рулонных штор, остальные же предполагают прибавку для драпировки. Но перед тем как определяться с занавесями, необходимо знать, как рассчитывать длину карниза.
Если стандартный размер карниза не совпадает с вашим замером проема по длине, то его всегда можно подпилить.
Выбирают их под гардины следующим образом.
- К горизонтальному значению оконного проема надо прибавить 15 см. с каждой стороны. Это означает, что в сумме понадобится прибавить 30-40 сантиметров.
- Но есть и исключения, с которыми нужно считаться: способность материала к драпировке, и насколько гармонично размеры окошка вписываются в обстановку.
Необходимо увеличить до 50-60 см, если оно слишком маленькое и важно визуально увеличить. А если портьеры не предрасположены к складкам, тяжелые, то нужно продумать, чтобы их было удобно сдвигать в сторону, давать свету лучше проникать в помещение. - При наличии большого окна можно подобрать длину прибавки меньше обычного, но рекомендуется не делать короче, чем десять см с каждого конца.
Настенные карнизы длиной 3 м должны иметь минимум 3 точки опоры: 2 по бокам, одна посередине.
Ошибочное мнение новичков – подбор длины карниза впритык с оконным проемом, в таком случае возникнет просвет. А шторы тогда не выполняют своего прямого назначения: ограничение количества солнечного света внутри помещения и дизайн интерьера. Ведь это не будет иметь внешней привлекательности, а также останутся просветы, от которых обычно стараются избавиться.
Стандартные параметры выводились из эргономики типовых помещений, в которых окна и стены практически одинакового размера.
Ширина карниза для штор.
Как выбрать оптимальные параметры карнизаКакие размеры карнизов для штор будут оптимальными? Эта величина высчитывается индивидуально:
В случае, когда размеры окна устраивают хозяев, длина карниза рассчитывается, исходя из ширины оконного проема с добавлением по 20 см с каждой стороны. Тогда раздвинутые шторы будут полностью открывать окно.
Для плотных тяжелых гардин, особенно если они плохо драпируются, лучше брать карнизную палку подлиннее, сильно выходящую за пределы окна.
Рассчитать размеры карниза для римской шторы просто, достаточно замерить ширину окна. Держатели для римских штор можно приобрести готовыми или заказать в мастерской. Их чаще всего изготавливают из дерева, металла или пластиковых полимеров. Пластиковые или металлические римские карнизы отлично впишутся в интерьер кухни.
Для двух расположенных рядом окон хорошо приобрести общий держатель для штор. Тогда замеряется ширина окон, ширина стенного проема и к этому результату добавляется 40 см.
Когда планируется установить скрытый потолочный держатель портьер, нужно учитывать размер подоконника. Занавеска не должна касаться подоконника и отопительной батареи. Скрытые потолочные держатели удобно устанавливать в комнатах с навесным потолком. Скрытые карнизы практичны и занимают мало места.
Размеры потолочных карнизов для штор невелики. Исключением служит вариант, когда потолочную конструкцию размещают по всей ширине комнаты, позволяя портьерам двигаться не только в пределах окна, но и от стены до стены. Применение потолочных карнизов позволяет красиво задекорировать окна, а также отделить при помощи занавески часть помещения.
Какой длины должен быть настенный или потолочный держатель для портьер, каждый выбирает для себя сам. Но стоит помнить, что правильно подобранные размеры карниза не только создадут уютную атмосферу, но и облегчат различные манипуляции с портьерами.
Размер штор w h. Как определить размер штор
Не знаете, как определить размер штор? С вами «Штора на дом», эксперт в мире штор и домашнего текстиля.
Найдите 3 минуты и мы гарантируем, что за это время вы узнаете, как правильно подобрать нужный вам размер штор и избежать ошибок.
Приготовьте рулетку, ручку и лист бумаги, чтобы фиксировать все замеры. Для удобства вы можете скачать специальную форму-памятку для записи расчетов, которая была приготовлена для Вас.
Итак, приступаем:
Для того чтобы точно определить размеры штор, лучше всего сразу установить карниз. Это обезопасит Вас от возможных неприятностей, связанных с неправильными замерами.
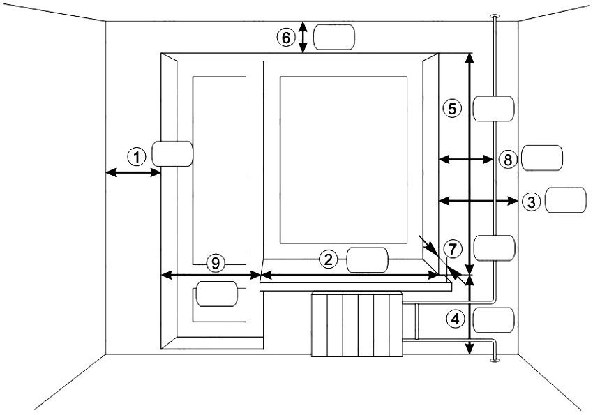
1. Определяем длину будущих штор. Снимать мерки следует начинать с замеров расстояния от крючка карниза до пола. Такие замеры необходимо произвести как минимум в 3-х местах для исключения неточностей измерений, связанных с неровностью пола и потолка. Если Вам нравится, когда шторы «лежат» на полу, необходимо прибавить к высоте штор 20-50 см снизу. Не советуем использовать сантиметр — может пострадать точность результатов.
Фиксируем результаты замеров.
Если Ваши шторы будут крепиться на петлях, кулиске или люверсах, измеряйте длину будущей шторы, начиная с самого карниза.
2. Определяем ширину будущих штор. Замеряем расстояние между правым и левым держателями карниза и делим на 2. Получили минимальную ширину портьеры.
3. Учитываем пышность. Не стоит забывать, что штора на окне красиво смотрится, когда она создает мягкие складки. Поэтому пользуемся правилом для определения пышности:
Плотные ткани имеют коэффициент пышности 2:1. ткани средней плотности — 2,5:1, легкие ткани — 3:1.
Это значит, что найденную нами минимальную ширину шторы умножаем на 2, 2,5 или 3 в зависимости от типа ткани нашей будущей шторы.
4. Закладываем припуск на заход полотен по центру . Это чаще всего 5-10 см.
5. Определяем окончательный размер штор согласно измерениям.
Вот и все, вы готовы к покупке штор. Спасибо что были с нами!
Видео как выбрать карниз без проблем. 8 ошибок при выборе карниза от эксперта.
Какой размер свода мне нужен?
Клиенты часто спрашивают нас, какого размера карниз выбрать для своей комнаты? Хотя, в конце концов, это всегда будет зависеть от личных предпочтений, вот несколько рекомендаций, которые помогут сузить выбор.
Распространенной ошибкой является недооценка фактического размера свода или карниза. Измерения всегда даются с точки зрения «падения», того, насколько патрубок проходит вниз по стене, и «выступа», насколько далеко патрубок проходит по потолку после его установки. Его часто путают с измерением по диагонали на лицевой стороне свода. Например, карниз с перепадом и выступом 120 мм, который мы бы назвали карнизом 120 мм (5 дюймов), при измерении по лицевой стороне фактически будет около 170 мм (7 дюймов). Этот размер подходит для большинства современных домов и многих старых зданий викторианской эпохи.
Определите размер свода при увеличении размера помещения
Самый большой гипсовый свод, который у нас есть, имеет высоту и выступ более 200 мм и находится в нашем большом разделе сводов. Это часто используется для сокрытия трубопроводов, так как они слишком велики для всего, кроме самых больших комнат с самыми высокими потолками в старых домах. Вы должны иметь потолки высотой 4,30 м или 4,60 м (14 или 15 футов), прежде чем свод такого размера начнет выглядеть пропорционально. При измерении по лицевой стороне свода ширина составляет 300 мм (12 дюймов).
Карниз с перепадом или выступом 120 мм и выше чаще всего устанавливается в помещениях с высотой потолков более 2,75 м (9 футов). Различные конструкции могут выглядеть более ярко, чем другие, поэтому опять же не существует абсолютного правила размера, которое диктует, какой карниз наиболее подходит. Многое будет зависеть от личного выбора, насколько важным элементом схемы оформления интерьера вы хотите видеть карниз и как он соотносится с другими декоративными элементами на стене.
При более высоких потолках часто используется гипсовый пьедестал или рейка для картин, чтобы разделить стену и позволить использовать разные цвета сверху и снизу.
Большой карниз (LPC015) хорошо смотрится в комнате с высоким потолком
Трудно представить, как большие своды будут смотреться в комнате, и мы всегда советуем сначала приобрести образец, если вы не уверены. Образцы всех наших различных дизайнов карнизов доступны на нашем веб-сайте, и мы также продаем пакеты образцов наших самых продаваемых линий.
Для потолков высотой менее 2,75 м (9 футов) часто используются наши меньшие стили сводов от 50 до 70 мм (от 2 до 2 3/4 дюймов), поскольку они выглядят намного лучше, чем простое соединение потолка со стеной. То же самое относится и к комнатам с высокими модулями, таким как ванные комнаты или кухни.
Для подавляющего большинства комнат и домов подойдет карниз из нашего среднего свода с перепадом и выступом от 70 мм до 120 мм.
Окончательным определяющим фактором будет то, насколько заметной будет карниз. Разослав сотни образцов, мы имеем хорошее представление о том, какие размеры карниза в конечном итоге выбирают клиенты, самые популярные размеры — от 90 мм до 120 мм с выступом и падением, и мы собрали наиболее часто выбираемые примеры этого в карнизе. образец упаковки.
Последние новости
Посмотреть все1 / из 3
Посмотреть все
Справочные руководства
Ассортимент гипсовых карнизов от Siniat
| Описание карниза | Ширина (мм) | Длина (мм) | Вес (кг/погонный метр) |
|---|---|---|---|
| карниз classiclook | 55 | 3600 | 0,65 |
| Карниз в классическом стиле | 55 | 4800 | 0,65 |
| карниз classiclook | 55 | 5400 | 0,65 |
| карниз classiclook | 75 | 4800 | 1,05 |
| карниз classiclook | 75 | 5400 | 1,05 |
| карниз classiclook | 90 | 3600 | 1,3 |
| Карниз в классическом стиле | 90 | 4800 | 1,3 |
| карниз classiclook | 90 | 5400 | 1,3 |
| Волнообразный карниз | 75 | 4200 | 1,98 |
| ступенчатый карниз 3 | 75 | 4200 | 2,17 |
| ступенчатый карниз 4 | 100 | 4200 | 2,78 |
| Карниз pacificlook | 90 | 4200 | 2. 1 |
| Карниз Skylook | 90 | 4200 | 1,96 |
| Карниз Описание | Ширина (мм) | Длина (мм) | Вес (кг/погонный метр) |
|---|---|---|---|
| карниз classiclook | 55 | 3600 | 0,65 |
| карниз classiclook | 55 | 4800 | 0,65 |
| карниз classiclook | 75 | 4800 | 1,05 |
| карниз classiclook | 90 | 3000 | 1,3 |
| карниз classiclook | 90 | 3600 | 1,3 |
| карниз classiclook | 90 | 4200 | 1,3 |
| карниз classiclook | 90 | 4800 | 1,3 |
| карниз classiclook | 90 | 5400 | 1,3 |
| Волнообразный карниз | 75 | 4200 | 1,98 |
| ступенчатый карниз 3 | 75 | 4200 | 2,17 |
| ступенчатый карниз 4 | 100 | 4200 | 2,78 |
| Карниз pacificlook | 90 | 4200 | 2. 1 |
| Карниз Skylook | 90 | 4200 | 1,96 |
| Карниз Описание | Ширина (мм) | Длина (мм) | Вес (кг/погонный метр) |
|---|---|---|---|
| карниз classiclook | 55 | 3600 | 0,65 |
| карниз classiclook | 55 | 4800 | 0,65 |
| карниз в классическом стиле | 75 | 4800 | 1,05 |
| карниз classiclook | 90 | 3600 | 1,3 |
| карниз classiclook | 90 | 4800 | 1,3 |
| Волнообразный карниз | 75 | 4200 | 1,98 |
| ступенчатый карниз 3 | 75 | 4200 | 2,17 |
| ступенька 4 карниз | 100 | 4200 | 2,78 |
| Карниз pacificlook | 90 | 4200 | 2. 1 |
| Карниз Skylook | 90 | 4200 | 1,96 |
| Карниз Описание | Ширина (мм) | Длина (мм) | Вес (кг/погонный метр) |
|---|---|---|---|
| классический карниз | 55 | 3600 | 0,65 |
| карниз classiclook | 55 | 4800 | 0,65 |
| карниз classiclook | 75 | 3600 | 1,05 |
| карниз classiclook | 75 | 4800 | 1,05 |
| карниз classiclook | 90 | 3600 | 1,3 |
| Карниз в классическом стиле | 90 | 4800 | 1,3 |
| ступенчатый карниз 3 | 75 | 4200 | 2,17 |
| Карниз Описание | Ширина (мм) | Длина (мм) | Вес (кг/погонный метр) |
|---|---|---|---|
| карниз classiclook | 55 | 3600 | 0,65 |
| карниз classiclook | 55 | 4800 | 0,65 |
| карниз classiclook | 75 | 4800 | 1,05 |
| карниз classiclook | 90 | 3600 | 1,3 |
| карниз classiclook | 90 | 4800 | 1,3 |
| Волнообразный карниз | 75 | 4200 | 1,98 |
| ступенчатый карниз 3 | 75 | 4200 | 2,17 |
| ступенчатый карниз 4 | 100 | 4200 | 2,78 |
| Карниз pacificlook | 90 | 4200 | 2.![]()
|

Как выбрать оптимальные параметры карниза
Необходимо увеличить до 50-60 см, если оно слишком маленькое и важно визуально увеличить. А если портьеры не предрасположены к складкам, тяжелые, то нужно продумать, чтобы их было удобно сдвигать в сторону, давать свету лучше проникать в помещение.
1
1
1