Планировка хрущевки 1 комната угловая: Хрущевка 1 комнатная планировка угловая. Из угловой однушки в хрущевке – просторная двушка
Хрущевка 1 комнатная планировка угловая. Из угловой однушки в хрущевке – просторная двушка
Содержание
- Хрущевка 1 комнатная планировка угловая. Из угловой однушки в хрущевке – просторная двушка
- Хрущевка 1 комнатная размеры. Хрущевки: описание, типовые планировки с фото
- Виды типовых планировок, серии, фото, описания и годы постройки хрущевок
- СЕРИЯ 1-464 – (год постройки 1960-1967)
- СЕРИЯ 1-335 – (год постройки 1963-1967)
- СЕРИЯ 1-434 – (год постройки 1958-1964)
- Планировка угловой однокомнатной хрущевки. Хрущевки. Типовые планировки
- Перепланировка однокомнатной хрущевки в двухкомнатную. Реальные примеры перепланировки «хрущевки»
- Что представляет собой двухкомнатная хрущевка?
- Планировка 1 комн хрущевки. 3 варианта перепланировки однокомнатной квартиры хрущевки
- Вариант 1
- Вариант 2
- Вариант 3
- Однокомнатная угловая хрущевка дизайн. Дизайн однокомнатной хрущевки — фото примеров
Хрущевка 1 комнатная планировка угловая.
Из угловой однушки в хрущевке – просторная двушкаМаленькая кухня, тесный коридор, единственная комната, да еще и в хрущевке. Казалось бы, такому жилью никакой дизайн интерьера не поможет. Возможно, опыт Марии Дадиани убедит вас в обратном. Ей удалось превратить хрущевку в современное жилье кухней-гостиной и солнечной изолированной спальней.
Сведения о квартире: однокомнатная квартира в пятиэтажном доме «хрущевской» серии, Москва.
Владелец квартиры: женщина.
Пожелание клиентов: перепланировка квартиры с выделением отдельной спальни и кухни-гостиной.
Казалось бы, нет более унылого для дизайнера объекта, чем угловая «однушка» в доме хрущевской серии – с низкими потолками, кухней на пять «квадратов» и ванной на три. Как обратить недостатки в достоинства, обмануть время и перехитрить пространство? Дизайнеру Марии Дадиани это определенно удалось. Проект «В 5 минутах от Патриарших…» — наглядное пособие по бытовому волшебству: перепланировка двухкомнатной квартиры из однокомнатной.
Унылая однушка получает кухню, гостиную и отдельную спальню с гардеробом. Вместе с новым обликом в жилище возвращается дух старой Москвы. В результате перепланировки стена между кухней и комнатой исчезла, образовав просторную кухню-гостиную. Половина бывшей комнаты стала изолированной спальней.
В результате перепланировки стена между кухней и комнатой исчезла, образовав просторную кухню-гостиную. Половина бывшей комнаты стала изолированной спальней. Комната в угловой «однушке» имеет два окна – благодаря этой особенности, перепланировка двухкомнатной квартиры дала полноценную солнечную спальню.
Почти вся мебель в квартире – невесомая, светлая, с объемными филенчатыми фасадами. Черные и металлические детали смотрятся на таком фоне очень выразительно. Их немного, поэтому воздушности интерьера это не вредит. Обратите внимание: рисунок гардин перекликается с принтом покрывала и формой ручек для гардероба.
Интерьер квартиры оформлен в черно-белых тонах, но преобладающий цвет в комнатах – белый, что визуально расширяет пространство.
Обои с мелким редким рисунком (на первый взгляд, в горошек, а на самом деле, в цветок) придают помещению дополнительный объем. Обои – вообще одна из главных «фишек» интерьера. За счет белого фона, рисунка с геральдическими мотивами и плотной фактуры они выглядят аристократично, светло и уютно.
В кухне-гостиной нет штор – это сознательное решение: ничего не должно мешать свету проникать в комнату. Столешница рабочего стола плавно переходит в подоконник – тут вам и экономия места, и никаких щелей. Так же дизайнер поступила с кухонным столом. Конструкция «комод и телевизор» условно разделяет зоны кухни и гостиной (как и плитка на полу), но при этом телевизор закреплен на кронштейне и поворачивается туда, куда в данный момент нужно хозяйке.
То, что на кухне нет традиционной обеденной зоны – тоже не случайность. Хозяйка квартиры редко готовит дома, а перекусить можно за рабочим столом или столиком у дивана. Духовой шкаф и варочная поверхность на кухне не пытаются образовать одно целое.
Духовка встроена выше, между шкафов — так гораздо удобнее с ней обращаться. Посудомоечная машина спряталась под варочной поверхностью.
Чтобы повесить кондиционер, пожертвовали одной секцией стеллажа в гостиной. Почему бы и нет?
Спрятать радиатор в маленькой квартире очень сложно. Поэтому здесь его не стали прятать, а наоборот, выделили. Черная ретро-батарея отлично вписывается в концепцию интерьера и играет роль визуальной доминанты в простенке.
Два зеркала в прихожей создают зеркальный коридор, визуально увеличивая пространство.
Хрущевка 1 комнатная размеры. Хрущевки: описание, типовые планировки с фото
Введение
Сегодня существует множество многоярусных домов различной планировки, годов постройки и размера жилой площади. В данной статей Мы более подробно рассмотрим основные планировки популярных многоэтажных «Хрущовок», которые можно встретить в каждой стране бывшего СССР. Как правило, это 4-х или 5-ти этажные многоквартирные дома, которые возводились во времена руководства Хрущева Никиты Сергеевича.
«Хрущевки» возводились в период с 1958 до 1985 года, при этом стройка была современного на то время типа, и тысячи семей смогли получить комфортабельные квартиры с проходными комнатами. С 1958 года действует собственный СНиП.
Общие сведенья о хрущевках
Первое поколение 4-х или 5-ти этажных «хрущевок» отличалось небольшой жилой площадью, проходными комнатами. В таких апартаментах высота потолков достигала всего 2,48 метра, в домах блочного типа высота потолка могла достигать 2,7 метра. В «хрущевках» была достаточно слабая звукоизоляция помещений, совмещенный санузел и отсутствовали лифты.
Стоит отметить, что некоторые «хрущевки» относились к временному жилью, которые рассчитывали на эксплуатацию до 25 лет. Однако большая часть, все еще используется гражданами бывших стран СССР. К «хрущевкам» не сносимой серии применялись другие эксплуатационные нормы до 50 лет. В последствие эксперты заявили, что эксплуатационный период можно продлить до 150 лет (в случае капитальных ремонтов согласно нормам).
На сегодняшний день «хрущевки» в Москве и Питере подлежат сносу. Однако в Минске, «хрущевкам» выполнили кап. ремонт и утеплили наружные стены.
Основные характеристики «хрущевок»:
- 3-комнатные с общей площадью 55-58 м²;
- 2-комнатные с общей площадью 30-46 м²;
- 1-комнатные с общей площадью 31-33 м².
Жилая площадь комнат:
- Гостиные комнаты – от 14 м²;
- Спальные комнаты – от 8 м²;
- Детские комнаты – от 6 м²;
- Кухни – от 4,5 м².
Виды типовых планировок, серии, фото, описания и годы постройки хрущевок
СЕРИЯ 1-464 – (год постройки 1960-1967)
Пяти ярусные дома панельного типа с четырьмя квартирами на одной площадке.
Особенности:
Высота помещений – 2,5 м;
Санузел совмещенный;
Кухня – 5,8 м²;
Особенности: кладовка, шкафы встроенного типа, балкон.
Площадь гостиной в 1-но комнатных «хрущевках» этого типа составляет 19 м², в 2-х и 3-х комнатных 17,3 м²; 19 м² и 20,4 м² в зависимости от планировки.
Кладовая размещается в конце спальни или между 1 и 2 спальней. Выход на балкон из гостиной. Санузел совмещенный рядом с кухней.
СЕРИЯ 1-335 – (год постройки 1963-1967)
Панельные пяти ярусные дома с четырьмя квартирами на одной площадке.
Особенности:
Высота помещений – 2,5 м;
Санузел совмещенный;
Кухня – 6,2 м²;
Особенности: кладовка, шкафы встроенного типа, балкон.
Площадь гостиной в 1-но комнатных «хрущевках» этого типа составляет 18 м², в 2-х и 3-х комнатных 17,1 м²; 18,2 м² и 19,1 м² в зависимости от планировки. Кладовая размещается в конце гостиной или между 1 и 2 спальней. Выход на балкон из гостиной. Санузел совмещенный рядом с кухней.
СЕРИЯ 1-434 – (год постройки 1958-1964)
Панельные пяти ярусные дома с четырьмя квартирами на одной площадке.
Источник: https://proremont-dom.ru/stati/plan-odnushki-hrushchevki-iz-uglovoy-odnushki-v-hrushchevke-prostornaya-dvushka
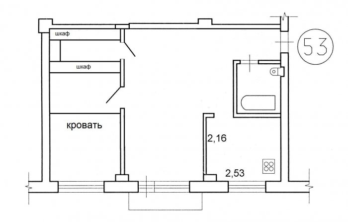
Планировка угловой однокомнатной хрущевки.
Хрущевки. Типовые планировкиМассовое строительство хрущевок началось в 1958 году и длилось до 1985. В то время тысячи семей получили собственное жилье в 4-5-ти этажных панельных и кирпичных домах. Комнаты были очень маленькими и в большинстве случаев проходными, коридоры были узкими и темными, а санузлы сразу были совместными. Высота потолков составляла 2.48 м, в редких случаях – 2.7 м. Площадь однокомнатных квартир не превышала 29-33 кв.м. из которых 5.8-6.2 метра отводились под кухню, от 15.9 до 20.7 метров – под гостиную. Остальную площадь занимал коридор и ванная комната. Размеры помещений зависели от года постройки и серии и имели следующие типовые планировки:Примечательно, что практически все однушки имели балкон и почти одинаковое расположение комнат. Прежде чем приступить к каким-то радикальным мерам , необходимо четко знать:
- Точное количество проживающих. Ведь одно дело проводить работы по организации комфортного проживания для одного человека, и совсем другое – для молодой семьи с ребенком.
Требования будут кардинально отличаться, разделение площади будет совсем иным; - Без каких функциональных зон вы точно не сможете прожить. Речь идет о таких «помещениях», как рабочий кабинет или полноценная изолированная спальня. Ведь некоторые люди запросто используют диван в гостиной для ежедневного сна и чувствуют себя при этом абсолютно нормально, а на других такая открытость действует угнетающе;
От двух вышеперечисленных факторов будет зависеть объем работ, которые нам предстоит распланировать, необходимость сноса межкомнатных перегородок или, наоборот, возведения дополнительных. Не удивляйтесь. Но действительно не все дизайнеры рекомендуют делать из однушки квартиру-студию . Для того, чтобы жилье отвечало всем требованиям хозяев, иногда устанавливаются полноценные глухие перестенки из легких материалов – гипсокартона или газобетона. Поэтому, предварительно рекомендуют составить список из обязательных пунктов, которые вы хотите иметь. Это может быть что угодно – раковина напротив окна в кухне, стеллаж под личную библиотеку, бытовая техника, от которой вы не в силах отказаться и т.
д. На основании этого списка нужно планировать дизайн интерьера и перераспределять пространство между зонами.
Перепланировка однокомнатной хрущевки в двухкомнатную. Реальные примеры перепланировки «хрущевки»
Если вы владелец двухкомнатной хрущевки и решили обновить и преобразовать свою квартиру в комфортное и стильное жилище, то обязательно встанет вопрос о создании дизайн-проекта. Перепланировка предполагает, что некоторые участки стен, возможно, будут убраны или наоборот поставлены новые перегородки там, где их не было. Поэтому сразу обращаем внимание на то, что демонтаж возможен только относительно не несущих перегородок. Перекрытия также рассчитаны на определенную нагрузку, иначе дом может просто рухнуть в один прекрасный момент.
Проект перепланировки квартиры должен быть абсолютно безопасным в этом отношении и обязательно согласован и утвержден соответствующими органами контроля. В связи с этим отметим, что значительная часть внутренних стен в хрущевках – это ненесущие конструкции, поэтому чаще всего их снос возможен без разрушительных последствий для дома.
Планировка 2-ух комнатной квартиры без планировки и с перепланировкой
Что представляет собой двухкомнатная хрущевка?
Это малогабаритная квартира площадью около 43 м2, имеющая:
- одну большую комнату-зал, как правило, проходную.
- комнату поменьше – спальню.
- очень тесные кухню – 6-5 м2 и
- коридор – 2-3 м2
- небольшой совмещеный санузел.
Итак, изначальный вариант планировки двухкомнатной хрущевки нас неустраивает и мы решительно хотим кардинального изменения жилого пространства. Однако эти изменения должны отвечать нашим потребностям (у всех они свои), образу жизни, составу семьи, увлечениям и т.д. Поэтому вы должны четко определиться, что должно получиться в результате перепланировки, какие зоны необходимы, или они уже есть, но очень малы и их нужно расширить, а от каких нужно совсем избавиться или уменьшить в размерах. Как правило, это стандартный набор зон: кухня, гостиная, рабочая зона или кабинет, спальная, детская, гардеробная.
Деление жилого пространства на функциональные зоны, соразмерные своим ролям добавляет существенные удобства для проживания. Например, кухня имеет рабочую зону для приготовления пищи и зону для ее принятия. Кроме того, именно на кухне проводится масса времени, там же принимают гостей, поэтому она еще выполняет функцию гостиной. Соответственно, проект зонирования должен предусматривать и грамотно совмещать эти зоны. Интересным решением этой задачи может стать объединение кухни и зала. Если вышеописанная роль зала действительно важна и необходима, то часть смежной стены между кухней и комнатой убирается, превращая полученную площадь в единое пространство, либо небольшое разделение остается в виде тонких декоративных перегородок, стеллажей, ширм или арок. Такое оформление представляет собой квартиру-студию . В результате образовалась многофункциональная просторная зона в квартире, существенно увеличивающая удобство и комфорт этой части хозяйской жизни.
Далее продумываются остальные зоны – зона отдыха, кабинет, спальная комната.
Необходимо произвести анализ: должны ли они полностью быть изолированы от гостинной зоны или быть встроены в нее и потребует ли это дополнительной капитальной перепланировки. Отметим, что дальнейшее зонирование можно произвести и исключительно дизайнерскими методами. Например, можно использовать разную напольную и стеновую отделку для зоны кабинета и зоны отдыха.
Добившись увеличения пространства с помощью перепланировки , ни в коем случае не стоит снова сокращать его громоздкой и массивной мебелью. Пусть это будут почти воздушные вещи и предметы, которые должны быть многофункциональными и удобными.
Планировка 1 комн хрущевки. 3 варианта перепланировки однокомнатной квартиры хрущевки
Планировка однокомнатной хрущевки в придачу с остальными недостатками (маленькие площади комнат, невысокие потолки) делают неприглядной эту квартиру. Однако владельцами подобных квартир является большое количество людей. Кто-то прожил в этой квартире всю жизнь, кому-то она досталась по наследству и т.
д. В настоящее время мир дизайна и пестрящие картинки в интернете побуждают людей делать свое жилье более красивым и комфортным. В связи с этим владельцы однокомнатных квартир все чаще интересуются темой перепланировки собственной квартиры. Мы решили помочь вам в этом вопросе и предлагаем 3 примера перепланировки 1-комнатной хрущевки.
Вариант 1
Для кого: Для семьи или молодой пары
Площади : Кухня – 6.4 кв.м., ванная – 2.7 кв.м., постирочная – 0.6 кв.м., спальня-гостиная – 16.6 кв.м., коридор – 3.3 кв.м.
Особенности: Расстановка мебели в гостиной-спальне достаточно распространенная. Зонирование в этой комнате осуществляется с помощью. Вход на кухню осуществляется через основную комнату, а на месте прежнего прохода появляется маленькая кладовка-постирочная. На кухне за дверью небольшой стеллаж для хранения. Вход в ванну перенесен, в ней вместо привычной ванны установлена душевая кабина. Основные места хранения: шкаф для верхней одежды в коридоре и два вместительных шкафа в гостиной.
Дополнительные места могут быть организованы на застекленном балконе.
Примеры дизайна предложенной перепланировки:
Вариант 2
Для кого: Для семьи или молодой пары
Площади : Кухня-гостиная-спальня – 19.9 кв.м., ванная – 2.7 кв.м., гардеробная – 4.3 кв.м., коридор – 1.6 кв.м, постирочная – 1.1 кв.м.
Особенности: Снос части стены между кухней и большой комнатой позволил правильно организовать пространство. В результате мы получили уютную кухню-гостиную и небольшую спальню, отделенную стеллажом перегородкой, на которой установлен телевизор. В глубине спальни вход в. В углу коридора занимает место постирочная с местами для хранения.
Примеры дизайна предложенной перепланировки:
Вариант 3
Для кого: Для семьи с ребенком
Площади : Кухня-гостиная-спальня – 14.9 кв.м., ванная – 2.7 кв.м., детская – 5.1 кв.м., гардеробная – 2.8 кв.м., коридор – 3.1 кв.м, кладовка – 0.8 кв.м.
Особенности: Сделать в однокомнатной хрущевке практически трехкомнатную квартиру достаточно реально.
Для этого достаточно грамотно распорядиться каждым квадратным метром. Две зоны хранения в коридоре: гардеробная и кладовка избавят остальные площади от массивной мебели. Перенесенная дверь ванны позволит использовать часть коридора и большой комнаты для гостиной и спальни, которая отделена стеллажом. Широкий проход в кухню необходим не только для, но и для достаточной вентиляции большого помещения. Оставшаяся площадь отдается под детскую, в которой расположены стол, кровать и шкаф. При желании можно застеклить и утеплить балкон, это позволит перенести туда стол или шкаф. Таким образом, увеличится свободное место в комнате.
Источник: https://dom-na-vodah.ru/novosti/plan-1-hrushchevki-osnovnye-pravila
Однокомнатная угловая хрущевка дизайн. Дизайн однокомнатной хрущевки — фото примеров
В свое время небольшие квартиры, получившие известность как хрущевки, смогли устранить жилищный кризис в стране. Но задержались в качестве жилья надолго. В настоящее время они уже не соответствуют современным требованиям, предъявляемым к квартирам и их оформлению.
Дизайнерские приемы для расширения пространства
Перепланировка пространства
Запрещенные моменты при дизайне однокомнатной квартиры
Дизайн однокомнатной хрущевки: особенности оформления помещений
Дизайн однокомнатной квартиры: требования к мебели и аксессуарам
Правило оформления прихожей
Фотогалерея – дизайн однокомнатной хрущевки
Говорить о недостатках можно до бесконечности. Но это не повод отказываться от жилья или выбирать благоустроенное в новом районе, но на самой окраине. Наиболее разумный вариант выполнить дизайн однокомнатной хрущевки и при этом получить современное комфортное и удобное для проживания жилье.
Современный дизайн однокомнатной хрущевки
При выполнении дизайнерских работ в небольшом пространстве применяют несколько приемов, чтобы визуально его расширить и адаптировать под современные условия.
к оглавлению ↑
Выполняя дизайн однокомнатной хрущевки, специалисты советуют особое внимание уделять пропорциям применяемой мебели.
В небольшом помещении плохо смотрится громоздкая тяжеловесная конструкция. Поэтому лучше исключить большие столы и шкафы, а использовать более мелкие аналоги.
При оформлении хрущевки откажитесь от громоздкой мебели
Приведенные ниже правила всем известны, но при выполнении таких работ, как дизайн однокомнатной хрущевки соблюдать их просто необходимо:
1. Используйте для покрытия поверхности только светлые тона. При этом придерживайтесь следующего правила: самыми светлыми должны быть стены. Потолок может быть на тон темнее. А вот пол допускается более темного оттенка. Использовать белый цвет — отличная идея. Но у него есть масса оттенков, чтобы визуально придать помещению большие размеры.
Отделка стен светлого света визуально увеличит пространство
2. Оттенок для поверхностей выбирайте с учетом создаваемого настроения: бодрящего, радостного, умиротворяющего.
3. Для помещения не стоит использовать более трех базовых цветов. Этого известного правила в масштабах небольшой площади лучше придерживаться, чтобы визуально не загромождать пространство и не превращать его в склад вещей и мебели.
При оформлении не используйте более трех базовых цветов
4. Постарайтесь избегать крупных рисунков и принтов на поверхностях. Если возникла необходимость, применяйте рисунок выборочно, на одной или нескольких сторонах, остальные оставьте окрашенными в подходящие под рисунок расцветки.
5. Увеличить пространство позволяет применение зеркал. При их размещении обратите внимание, чтобы в отражаемые поверхности не попала рабочая зона.
Используйте зеркальные поверхности для визуального увеличения пространства
6. Не украшайте подоконники традиционными горшками с цветами. Они только порежут пространство и сделают его меньше.
7. Ничто так визуально не увеличивает просторы, как дополнительный свет. Он может поступать из окон, для этого не загромождают оконные проемы и не создают препятствий на пути солнечного света. Не скупитесь на искусственное освещение. В противном случае комната может приобрести вид кладовки.
Пустые оконные проемы не препятствуют проникновению света
8.
Хорошее дизайнерское решение, которое помогает значительно расширить помещение, это на одной стене разместить 3D обои с перспективой — рисунком, уходящим вдаль.
3D обои помогут расширить пространство комнаты
Эти технические приемы помогают расширить пространство и придать ему визуально большие объемы. Но это не единственные способы увеличить помещение.
к оглавлению ↑
Наибольшее расширение пространства можно получить, выполнив перепланировку помещения однокомнатной квартиры. Эти работы необходимо обязательно согласовать со службами соответствующих организаций и допустимо претворять в жизнь только после консультации со специалистами. Потому что никакие эксперименты проводить с несущими стенами непозволительно. Они могут отразиться на целостности дома.
Несколько советов по перепланировке хрущевки:
1. Если квартира включает в себя балкон, то переоборудовав его и визуально соединив с жилой зоной, можно значительно увеличить площадь. Дополнительное пространство используют под кабинет, для расширения зоны отдыха, как гардеробную.
Присоединение балкона к комнате
2. Особенностью маленьких квартир является наличие кладовых помещений, часто неправильной сложной формы. Попробуйте их добавить в жилое пространство или санитарный узел. В первом случае у вас получится дополнительная жилая площадь. Во втором варианте перепланировки в небольшой санузел поместится стиральная машинка и освободит такое необходимое место на кухне.
Оборудование рабочего пространства в кладовке
3. Часто размеры квартиры увеличивают за счет совмещения в единое целое коридора, кухни и комнаты. В результате однокомнатная квартира превращается в студию из одного помещения и санитарного узла.
планировки однокомнатной хрущевки с размерами (14 вариантов)
Содержание.
- Планировочные решения для проживания 1-2 человек.
- Планировочные решения для проживания 2-3 человек(1 ребенок)
Однокомнатная хрущевка — одна из самых популярных квартир на вторичном рынке. Я постарался собрать наиболее интересные планировки для этой квартиры.
В различных домах 1-ком. хрущевки имеют разные варианты входа. Но в целом планировки очень схожие.
Так как эти квартиры имеют так же угловую планировку с дополнительным окном, то для них я написал отдельную стать с планировками для угловых однокомнатных хрущевок.
1) Планировка 1 комнатной квартиры для семьи их 1-2 человек
Планировка хрущевки для одного хозяина или для семьи из двух человек не сложная. Как правило, я бы не дробил общую комнату на какие-то отдельные зоны. Я бы поставил большой удобный диван, а кухню оставил на своем месте. Стоит заметить, что кухня с газовой плитой должна быть изолирована и не подлежит объединению. Если же очень хочется сделать большую студию, то в таком случае газ заглушают и делают обычную электроплиту.
Вариант 1-1
Данная планировка однокомнатной квартиры достаточно традиционна. Мы оставляем кухню на своем законном месте. Различные варианты кухни для хрущевки смотрите в отдельной статье. С балконом не делаем ничего «криминального», общую комнату оставляем большой и, так как форма комнаты вытянутая, то в конце можно сделать небольшой гардероб или кладовку.
«+»
- кухня изолирована
- гостиная просторная с нормальным диваном
- есть гардеробная комната
- есть шкаф в прихожей
«-»
- обеденный стол не так удобен, как хотелось бы
- стиральная машина на кухне
Согласование
Эту планировку можно согласовать
Вариант 1-2
Этот вариант планировки похож на вариант 1-1. Вместо гардеробной комнаты, которая не всем нужна в небольшой хрущевки, если в ней будет проживать 1-2 человека, я расположил небольшой удобный кабинетик. Диван так же развернул в сторону кухни. Считаю, что в кухне можно пожертвовать большим столом в пользу более просторной кухни.
«+»
- кухня не совмещена
- гостиная просторная с нормальным диваном
- есть кабинетная зона
- в прихожей присутствует шкаф-купе
«-»
- обеденный стол не так удобен, как хотелось бы
- стиральная машина — на кухне
- диван не такой большой, так как требуется проход на балкон
Согласование
Эту планировку можно согласовать
Вариант 1-3
В этом варианте я объединил кухню и гостиную в общий зал.
Хотя кухня и переходит в гостиную, но все же она визуально отделена от общей комнаты боковыми стенками. Такой вариант с газовой плитой согласовать сложно поэтому при желании можно установить распашные стеклянные дверки, или показать их на плане при согласовании.
«+»
- гостиная кажется больше за счет объединения с кухней
- по максимуму использован балкон
- в гостиной есть рабочее место
- Кухня удобной формы и размера
- достаточно места для хранения вещей
«-»
- гостиная — проходная для кухни
- балкон требует дополнительного утепления и согласования
- сложность с согласованием в квартире с газом
Согласование
Данную планировку согласовать можно, но между кухней и гостиной должны быть двери. Это же касается и объединенного балкона.
Вариант 1-4
Данный вариант однокомнатной хрущевки хорош тем, что балкон здесь не объединен, а обеденная столешница находится в пределах кухни и не вынесена в зал.
Визуально гостиная поделена на гостиную зону и рабочий стол со стеллажами. Так же получилось сделать отдельный туалет на месте бывшего коридора.
«+»
- отсутствие коридоров
- раздельный санузел
- в комнате есть рабочий стол
- кухня нормального размера, с обеденной группой
«-»
- проходная гостиная
- мало место для хранения вещей
- в кухне нет полноценного стола
Согласование
Данную планировку согласовать можно, так как ванная комната находится в пределах мокрых зон. Если на кухне газ, то нужны двери между кухней и гостиной.
Вариант 1-5
Вариант хорош тем, что здесь все пространство квартиры максимально открыто и доступно. Кухня имеет нормальный размер. Но следует помнить, что если на кухне газ, то кухню следует изолировать от гостиной. Оптимальный вариант для одного человека или молодой семейно пары.
«+»
- максимально возможное количество свободного места
- есть нормальный удобный стол
- в планировке присутствует большой шкаф
- есть рабочий стол
«-»
- гостиная-проходная
- стиральная машина находится в кухне
- с дивана видно и прихожую, и кухню
Согласование
Данную планировку согласовать можно, с учетом требований газовщиков.
Вариант 1-6
Наконец мы подошли к варианту с дополнительным спальным местом. Диван в планировке 1-комнатной хрущевки — так же может раскладываться. Кровать имеет уменьшенную ширину в 1400 мм, но удобный шкаф и проход. Часть шкафа можно развернуть в сторону прихожей. Так же присутствует удобный обеденный стол. Размеры кухни не очень большие.
«+»
- гостиная кажется больше за счет объединения с кухней
- есть спальное место, которое можно оборудовать и для кабинета, и для новорожденного ребенка
- в планировке присутствует удобный большой шкаф
- удобный обеденный стол
«-«
- гостиная — проходная для кухни и спальни
- визуально гостиная кажется меньше из-за зоны спальни
- в прихожей есть шкаф, но он удален от входа
- стиральная машина — в шкафу прихожей
Согласование
Данную планировку согласовать можно, так как ванная комната находится в пределах мокрых зон.
Требуется ограждение кухни, если на ней находится газовая плита.
2) Планировка однокомнатной хрущевки для семьи их 2-3 человек с одним ребенком
Планировки для семьи с ребенком для однокомнатной хрущевки-однушки уже сложнее, так как требуется выделение отдельной зоны для ребенка со своим столом, спальным местом и желательно еще и шкафом. Рассмотрим варианты, которые я придумал.
Вариант 2-1
Вариант интересен тем что кухня изолирована от большой комнаты. Детскую зону я бы расположил ближе к окну. для родителей остается раскладной диван. В этой планировке достаточно мест для хранения вещей.
«+»
- перепланировка не носит глобального характера
- зоны гостиной и детской визуально не пересекаются
- имеется большой шкаф-купе
«-»
- кухне не очень большая
- не задействован балкон для увеличения площади
- гостиная — проходная для детской
- отсутствует четкое разделение на комнаты, проблемы со звукоизоляцией
Согласование
Нарушений перепланировки нет.
Вариант 2-2
В этой планировке все глобально меняется. Помещение под кухню отдаем для детской мини-комнаты. Кухню располагаем на месте коридора, чтобы реально было согласовать эту планировку. Так как вместо кухни нельзя располагать жилую комнату, то при согласовании это помещение будем указывать как «гардероб» или «кладовка». Уже потом расставим мебель так, как нам надо.
«+»
- в планировке имеется удобный обеденный стол
- комната для ребенка мала, но более-менее четко изолирована
- в планировке имеется удобный диван
«-»
- положение кухни не очень удобное
- детская — проходная для гостиной
- не так много место для хранения вещей
- стиральная машина находится в шкафу
Согласование
Нарушений перепланировки нет. При согласовании детской нужно указывать, что это кладовка, иначе не согласуют. На кухне должна быть электроплита.
Вариант 2-3
Планировка интересна тем, что имеет изолированную комнату — спальню.
Кухня объединена с гостиной, поэтому в квартире более или менее просторно. В прихожей так же получилось расположить шкаф-купе.
«+»
- есть полноценная отдельная комната
- достаточно мест для хранения вещей
- есть удобный обеденный стол
- в прихожей есть нормальный шкаф-купе
«-»
- спальня не имеет полноценных окон
- кухня не такая большая как хотелось бы
- не совсем удобное расположение дивана относительно тв
Согласование
Нарушений перепланировки нет. Если на кухне газовая плита, то требуется разделение кухни и остальной части квартиры.
Вариант 2-4
В данной планировке пробуем добавить площадь коридора к гостиной. Спальня занимает место у балкона, а гостиная ближе к прихожей. Чтобы в гостиной не было темно, между спальней и комнатой размещена витражная перегородка. Вместо стола, на кухне сделана широкая столешница, которая служит столом или дополнительной рабочей поверхностью.
«+»
- гостиная кажется больше за счет объединения с коридором
- спальня большая и светлая
- в кухне достаточно рабочих поверхностей
«-»
- с дивана гостиной видна входная дверь
- нет полноценного обеденного стола
- мало места для хранения вещей
- в спальне нет шкафа
Согласование
Нарушений перепланировки нет.
Вариант 2-6
Предполагается, что в этой планировке однокомнатной квартиры может жить семья с маленьким ребенком. Спальне отдана большая часть бывшей гостиной для того, чтобы разместилась не только кровать, но и маленькая кроватка для новорожденного. Зона гостиной тесная и диван сложно будет разложить, но разместить здесь одного человека(гостя) вполне реально.
«+»
- кухня представляет собой отдельное помещение
- в квартире три спальных места
- с гостиной не просматривается ни кухня, ни прихожая
«-»
- гостиная мала и расстояние до телевизора слишком мало
- кухня не очень большая
- мало мест для хранения вещей
- сложно разложить диван в гостиной
Согласование
Нарушений перепланировки нет, если между кухней и остальной квартирой будет установлена дверь.
Вариант 2-5
Вариант планировки квартиры с попыткой разместить полноценную спальню. В этом варианте я решил отделить кухню и разместить там полноценный обеденный стол. Если объединить балкон и гостиную, то будет казаться что в гостиной нашей хрущевки больше воздуха и места. В спальне имеется два шкафа.
«+»
- гостиная кажется больше за счет объединения с балконом
- с дивана визуально не просматривается ни кухня, ни прихожая
- в квартире есть рабочая зона на балконе
- в спальне два шкафа
«-»
- гостиная проходная для кухни и спальни
- в спальне нет своего окна
Согласование
Нарушений перепланировки нет.
Вариант 2-8
Данная планировка — это попытка создать более-менее удобную спальню. Спальня должна иметь хотя бы одну тумбу и полноценный шкаф. Вместо стола, я решил разместить барную стойку шириной 500 мм. Балкон так же используется как мини-кабинет.
В прихожей получилось разместить удобный большой шкаф-купе.
«+»
- с дивана визуально не просматривается ни кухня, ни прихожая
- в гостиной много света за счет раздвижных дверей на балконе
- в планировке 1-ком. хрущевки реализована удобная спальная зона
- прихожая просторна и имеет удобный шкаф-купе
«-»
- кухня не имеет нормального стола
- в спальне нет полноценного окна
- гостиная тесная
Согласование
Если кухня с газом, то в проекте ее нужно изолировать дверью или раздвижными перегородками.
Вариант 2-7
В данной планировке хрущевки есть четкое деление на отдельные функциональные зоны. Изолированная детская имеет всю необходимую мебель. Между гостиной и детской вставлен стеклопакет для достаточного освещения. Гостиная небольшая, но за счет того, что можно присоединить балкон и кухню, кажется больше. Было решено вместо узкой ванной чаши, поставить удобную душевую кабину.
«+»
- гостиная кажется больше за счет объединения с кухней
- есть полноценная детская комната или спальня
- в гостиной есть рабочее место на балконе
- в прихожей удобный шкаф-купе
- кухня имеет полноценный стол, который можно раздвинуть
«-»
- гостиная все же тесновата
- определенные трудности с согласованием
- детская не имеет отдельного окна.
Согласование
Если кухня с газом, то в проекте ее нужно изолировать дверью или раздвижными перегородками.
80 идей планировки однокомнатной квартиры в хрущевке — INMYROOM
Любой
владелец квартиры, в независимости от количества квадратных метров и комнат,
старается сделать ее как можно удобней. Довольно трудной задачей является
сделать это в небольшой однокомнатной хрущевке или студии, но все-таки возможной
при применении верных и подходящих стилей. С таким подходом можно сделать не
только удобную, но и стильную, изящную квартиру.
Планировка однокомнатной квартиры – это очень кропотливая и сложная работа. Но даже в этом случае можно подобрать наиболее удачные варианты. В первую очередь необходимо все распланировать таким образом, чтобы у каждого из проживающих в квартире было свое личное пространство. Для этого часто применяется распределения комнат на зоны.
Планировка и зонирование
При выполнении планировки однокомнатных квартир, особенно в хрущевке или студии, часто проводят распределение пространства на зоны. При этом следует подбирать всю отделку и мебель только светлых тонов. Это очень важно, так как можно визуально сделать пространство шире и объемнее.
На сегодняшний день большой популярностью пользуется
бежевый оттенок, который сделает интерьер студии или хрущевки утонченным, и в
то же время достаточно простым. Для визуального увеличения пространства можно
остановить свой выбор на отделке в скандинавском стиле. Стоит заметить, что при
выборе точечного верхнего освещения также пространство станет гораздо просторнее.
Обратите внимание на то, что при разделении квартиры на функциональные зоны, нельзя обойтись без арок, некоторых перегородок, больших стеллажей и своеобразных подиумов. При умелом использовании всех перечисленных элементов может получиться уютная и функциональная квартира, которую сложно будет отнести к хрущевке, при этом площадь ее вовсе не изменится.
Также, при выполнении планировки однокомнатных квартир стоит уделить внимание и зеркалам, которые значительно расширяют пространство и добавляют в него много света. Большие зеркала можно применить и для выделения одной из зон.
Рассмотрите некоторые фото примеры планировки однокомнатных квартир по типу «хрущевки» и «студии».
Цветовая гамма
Цвет играет очень важную роль при отделке любой квартиры, неважно хрущевки или студии. Всем уже давно известно, что светлые тона являются прекрасным отражателем света, и поэтому благодаря им, пространство становиться в визуальном восприятии намного просторнее.
Очень важно знать, что теплые оттенки зрительно
приближают элементы.
К таким относятся оранжевый, желтый и красный тона. А вот
у холодных оттенков, наоборот, обратное действие, которое визуально отдаляет
элементы. К холодным тонам относятся синий, лиловый и зеленый. Именно поэтому,
при наличии небольшого пространства стоит отдавать предпочтение холодным
светлым оттенкам.
Часто применяют и такой способ зрительного увеличения пространства, как использование обоев с полосами, расположенными горизонтально либо вертикально. Их эффект зрительного увеличения хорошо заметен на фото.
Выбор мебели
Планировка однокомнатной квартиры также подразумевает правильный выбор мебели, который должен быть в соответствии с некоторыми факторами, такими как мобильность, малогабаритность и многофункциональность. Нельзя в хрущевке использовать объемные шкафы. Приспособления для хранения личных вещей стоит распределить по всей площади. Небольшие шкафчики и полки для хранения всяческих мелочей можно установить в прихожих либо коридорах.
Прекрасно будут подходить для хрущевки предметы
мебели со встроенными колесиками.
Также большое значение имеет материал, из
которого изготавливается мебель. Наиболее удачно в хрущевке будет смотреться
мебель в светлых пастельных тонах с глянцевыми светоотражающими фасадами. Здесь
неплохо смотрится поверхность из стекла либо из прозрачного пластика.
Расширение пространства Для того чтобы сделать помещение несколько шире в визуальном восприятии, стоит выполнять отделку, применяя только светлые тона, такие как охра, белый, слоновая кость, древесный, пастельный.
Чаще всего при оформлении хрущевки специалисты используют скандинавский стиль, поскольку он является наиболее подходящим из-за преобладания в нем белого цвета. Для данного стиля используется мебель, выполненная только в светлых оттенках и большое число различных светильников, которые добавляют помещению некоторую изысканность и особую привлекательность.
Обратите внимание на планировку однокомнатной квартиры фото, которой представлено ниже.
Кухня
Наиболее важным предназначением кухни является приготовление пищи.
Обеденный стол
можно поставить в другой комнате. В кухонном помещении размещаются только
основные рабочие поверхности, плита и холодильник. При желании оставить стол
все-таки на кухне, стоит остановить свой выбор на форме овала либо небольшого
круга.
При наличии хорошо функционирующей вытяжной системы можно обойтись без межкомнатных дверей, либо установить своеобразные выдвижные двери. Шторы либо жалюзи должны обязательно быть в светлых тонах, то же самое касается и стен.
Мебель должна быть в одной цветовой гамме со стенами. Для кухни в хрущевке или студии можно использовать мебель-трансформер, которая разбирается и собирается при необходимости. Для кухни с небольшими параметрами отлично подойдет люстра больших размеров, оформленная также в светлых тонах.
Санузел
Чаще всего хрущевки не отличаются раздельной ванной и туалетом, в обратном случае – для экономии пространства стоит совместить две комнаты в одну.
Для того чтобы значительно сэкономить пространство в ванной комнате существует некоторое количество маленьких хитростей:
- Расположение стиральной машины под
умывальником.
В таком случае выполняется подбор специальной раковины, у которой
отсутствует ножка. При этом раковина размещается на достаточно высоком уровне; - Еще один вариант, машинку разместить на кухне, но в хрущевке она также обычно маленького
размера;
- Установка небольшой душевой кабины
вместо ванны;
- Радиатор в ванной стоит заменить на
полотенцесушитель, который не займет большое количество пространства.
Квартира-студия
Планировка квартиры студии заключается в разделении всего пространства на несколько зон. При небольшом количестве проживающих – это четыре зоны:
- Зона для сна;
- Зона для приема гостей;
- Зона для приготовления пищи;
- Зона для работы.
При
планировке студии стоит придерживаться некоторых правил:
№1. Разделение на зоны можно проводить с помощью света, а точнее его оттенков. Чаще
всего наиболее яркое освещение относится к зоне для гостей, а самое рассеянное
– к зоне сна.
№2. Спальную зону можно обосновать на небольшом возвышении, в котором будут предусмотрены для удобства определенное количество ящиков.
№3. Распределение зон студии можно выполнять также с помощью различного напольного покрытия.
№4. Разделение кухонного пространства и гостиной от зоны отдыха можно выполнить с помощью специальных этажерок. Для этой же цели можно применить барную стойку.
№5. Также можно использовать мебель, способную трансформироваться. Для таких целей отлично подойдет шкаф-кровать.
Хрущёвка 30 кв. м
Помещение с такими параметрами обычно бывает в хрущевке. Планировка однокомнатной хрущевки является не самой легкой задачей. Обычно дизайнеры рекомендуют хрущевки разделять на несколько зон. С планировкой стоит постараться, поскольку места должно хватить на все необходимое.
Для
визуального увеличения крошечной хрущевки стоит отдавать предпочтение только
светлым тонам. Также не помешает размещение зеркальных поверхностей, которые
добавят в помещение дополнительный свет.
В хрущевке не стоит использовать большое количество украшений и аксессуаров. И желательно также применять трансформирующуюся мебель. В качестве кровати можно выбрать угловой диван, как это представлено на фото.
Однушка более 40 кв. м
Данный вариант хрущевки будет замечательным для молодой семьи с ребенком. В такой квартире нежелательно использовать объемные шкафы и массивные кровати. Сюда отлично впишутся шкафы-купе, этажерки до самого потолка, угловые диваны и другая подобная компактная мебель.
В варианты планировки однокомнатных квартир отлично вписываются компактные раздвижные двери. К достоинствам таких дверей относят экономичность пространства. Для небольшого помещения часто применяются складывающиеся двери, которые по принципу действия напоминают гармошку.
Интерьер для семьи с ребенком
Для
того чтобы разместить в небольшой хрущевке семью с ребенком стоит постараться
разделить одно помещение на две комнаты, потому что только так все смогут себя чувствовать
наиболее комфортно.
Для разделения помещения можно применять, как и различные шторы, так и специальные ширмы. Также желательно отвести пространство, которое будет предназначаться только для ребенка. Данную зону стоит выделить с помощью обоев с изображением любимых сказочных героев. Здесь отлично подойдет мебель, способная раскладываться и складываться.
Делая планировку однокомнатной квартиры, главное знать определенные правила и следовать им!
Фото галерея
Смотрите еще 80 фото красивого интерьера для однокомнатной квартиры.
Видео
дизайн однокомнатной квартиры с размерами, фото
Квартира (пускай и маленькая) в центре города – это здорово! Есть некоторые проблемы. Но с ними можно справиться, взяв во внимание действенные дизайнерские решения. Недостатков квартир, построенных в советские времена и призванных решить жилищную проблему, масса. Их можно обойти, превратив квартиру в комфортабельное жилье.
На сегодняшний день очень многие люди проживают в маленьких однокомнатных квартирах-хрущевках.
Чего делать нельзя при оформлении однокомнатных квартир в хрущевке
Содержание
- Чего делать нельзя при оформлении однокомнатных квартир в хрущевке
- Типовые серии хрущевок: основные плюсы и минусы домов
- Брежневки
- Монолитные
- Планировка однокомнатной квартиры в хрущевке
- Стиль и цветовая гамма в интерьере
- Освещение квартиры
- Выбор и размещение мебели
- Зонирование пространства
- Как оформить поверхности
- Нюансы оформления интерьера в однокомнатной хрущевке
- Интерьер для семьи с ребенком в однокомнатной хрущевке
- ВИДЕО: Планировка однокомнатной квартиры студии.
- 50 вариантов дизайна однокомнатной квартиры хрущёвки:
1 комнатная хрущевка планировка нуждается в творческом подходе. Существуют моменты, которые необходимо учесть в обязательном порядке:
- Все что касается санузла необходимо оставить в покое, как бы не хотелось что-то изменить в этом плане.
Необходимо подумать не только о своем комфорте, но и об удобстве людей, живущих под вашей квартирой. Возможный ущерб придется восполнять вам. - Вентиляционная система – общее достояние и трогать ее изначальную планировку не следует.
- Газовая плита – бесспорное достояние цивилизации. Пускай она останется в запланированном архитекторами месте. Трубы не нужно трогать. Придумайте альтернативный вариант.
Чаще всего они не только небольшие по метражу, но и имеют достаточно неудобную планировку, особенно это касается домов, построенных еще в советские времена.
Санузел необходимо по максимуму освободить от не имеющих к нему отношения вещей. Выбросьте лишнее, разгрузив пространство. Подвесные конструкции будут в пору – простор не будет загромождаться, а место наверху всегда найдется.
Если как следует продумать такие важные моменты, как планировка и дизайн интерьера, даже из совсем небольшой квартиры получится сделать очень уютное, удобное, стильное и современное жилище.
Типовые серии хрущевок: основные плюсы и минусы домов
В свое время это был выход для разрешения проблемы с жильем. Проекты предусматривали в основном пятиэтажные строения. План хрущевки был малогабаритным. Типовое отличие связано со строительными материалами:
- кирпич;
- панели.
Чтобы правильно спланировать зоны однокомнатной квартиры, потребуется выполнить перепланировку.
Возможность сэкономить привела к строительству панельных домов в 60-х годах прошлого столетия. Стремление обеспечить молодые семьи жильем – маленьким, но своим, оправдывало такие архитектурные решения, но на этом все преимущества таких творений заканчивается. Минусов хватает – компактность коридоров и лестничных клеток, отсутствие лифтов, отвратительная звуковая и теплоизоляция, неизолированность комнат, их маленькие площади, нависающие потолки. По проекту срок эксплуатации панелек составлял 25 лет.
Убирать перегородки необходимо только те, что можно снести без вреда для конструкции дома.
Брежневки
С середины 60-х до начала 80-х проектировались «тюнингованные» согласно введенным строительным ГОСТам жилые здания. Мусоропровод и лифт были обязательными, если речь шла не о пятиэтажках. Жилые комнаты изолировались. Кухни по-прежнему были маленькими. Изоляция отвратительная, панельные швы могли и разойтись. В 80-х планировку стали улучшать, увеличивая площадь квартир и этажность домов (до 10 этажей).
Оптимальным вариантом будет устранение перегородок, поскольку это позволит увеличить площадь комнаты и сформировать очень удобную и современную квартиру-студию.
Монолитные
Многоэтажность, разнообразие форм и быстрое строительство – плюсы монолитной строительной технологии. Планировки разные. Внутренние перегородки из газобетона и гипсоблоков. Каркас монолитный. Наружная стена выполняется из панелей, кирпича или пеноблоков.
Запрещено трогать несущие стены, вентиляцию и газопровод, а также располагать санузел над жилой комнатой или кухней соседей.
Планировка однокомнатной квартиры в хрущевке
Стиль и цветовая гамма в интерьере
Скандинавский стиль очень подходит однокомнатной хрущевке. Его преимущество в применении исключительно светлых оттенков с визуальным расширением пространства. В провансе и минимализме также есть свои преимущества для маленьких помещений. Увеличивают эффект игры светлых тонов большое количество зеркал.
На этапе принятия решения о перепланировке квартиры необходимо принять во внимание такой важный фактор, как количество людей, проживающих в 1-комнатной квартире.
Белый цвет является ведущим в использовании. Это идеальный фон для зрительного увеличения пространства почти вдвое. Для привнесения разнообразия разбавляем его несколькими оттенками. К примеру, для большого дивана выбираем нейтральный цвет, а подушки делаем яркими, стены украшаем цветными картинами, а журнальные столики подыскиваем причудливых форм.
Одна комната размером в 30 кв. м может выступать одновременно и в качестве спальни, и в качестве гостиной, и в качестве детской.
Важно! Компактность жилья позволяет применить в отделочных работах дорогие материалы. Их не потребуется много, поэтому демократичность бюджета не нарушится.
Освещение квартиры
Освещение играет важную роль в маленьких помещениях. Много света зрительно увеличит пространство. Не обязательно это должна быть одна большая люстра. Точечные светильники с разными цветами и оттенками дают возможность играть на контрастах: стены-потолок-мебель. Светодиодные элементы имеют отдельные включатели, освещая одни области и затеняя другие.
Дизайн однокомнатной хрущевки заставляет задуматься, как максимально эффективно использовать небольшие квадратные метры.
Для каждой зоны осветительные приборы индивидуальные. Помимо привнесения изюминки это позволит иметь всем членам семьи отдельные уголки для отдыха или каких-либо занятий. Монтаж точечных светильников производится в потолок. Наличие нескольких окон в комнате – это большой плюс. Их можно расширить.
Тогда естественное освещение будет заливать пространство.
Чаще всего владельцы однокомнатных хрущевок объединяют кухню с комнатой.
Выбор и размещение мебели
Перед покупкой мебели необходимо составление предварительного плана-схемы. Поскольку мы имеем дело с компактной студией, то использовать рационально придется каждый квадратный сантиметр территории. Планировка 1 комнатной квартиры хрущевки 30 кв м нуждается в угловом шкафе. Подумайте, какие предметы использовались не часто, а то и вообще не принимали участие в жизнедеятельности последние несколько месяцев. От таких вещей лучше избавиться.
Помимо правильной планировки квартиры, очень важно также грамотно оформить её внешний вид.
Распределение мебели должно осуществляться в соответствии со следующими рекомендациями:
- Установка дивана под стенкой предполагает заполнение пространства над ним стеллажами или полками.
- Сэкономить пространство помогут изготовленные на заказ шкафы, монтируемые в углах.

- В маленьком коридоре можно обойтись только полками на стенах.
- Новая мебель предполагает проведение ремонта иначе контраст будет не в пользу красоты.
Важно! Раскладные диваны – это дневная зона отдыха, которая на ночь превращается в комфортное место для сна.
Зонирование пространства
Планировку однушки в хрущевке для старушки или молодой семьи, где есть маленький ребенок необходимо осуществлять с учетом удобства для дальнейшего проживания. Для этого нужно пересмотреть изначальные строительные решения и избавиться от ненужных стен и перегородок. Планировка 1 комнатной квартиры 30 кв м хрущевка в идеале должна выглядеть как студия. В этом поможет разделение пространства грамотным зонированием.
Для того чтобы проживание к квартире было комфортным, необходимо правильно расставить мебель.
Важно. Угловой диван – обширная зона для отдыха, при этом много места он занимать не будет.
Правильный подход к планировке однокомнатной хрущевки предполагает устройство рабочих зон и мест для отдыха в неограниченном количестве.
Что касается дверей, то их число должно ограничиться двумя – это входная и для санузла. Разделение рабочих зон и мест для отдыха зависит от того, сколько в квартире проживает людей. Если два человека, то этот вопрос не существенен, если же три и больше, то проект необходимо продумать с учетом разделения и их форм (ширмы, перегородки, напольные полки и т.д.).
Чтобы визуально как можно больше расширить помещение, сделать его более воздушным и уютным, дизайн интерьера должен быть выполнен в светлых тонах.
Использование плитки, ламината, дерева в отделке пола в разных местах также сыграет свою роль в зонировании. Расстановка предметов мебели (стойки, стеллажи, тумбы) тоже немаловажный аспект. Дизайнеры советуют решать проблему комплексно. К полезной жилой площади можно присоединить балкон при его наличии с оборудованием на нем рабочей зоны (если он размещается со стороны комнаты) или обеденной зоны (со стороны кухни).
Можно задействовать в интерьере различные стеклянные и глянцевые поверхности.
Как оформить поверхности
Маленький метраж восполняем дизайнерскими хитростями.
- Светлые отделочные материалы и для акцента небольшое количество темного. При этом освещение должно быть хорошим.
- От крупных элементов декора (как и от громоздких мебельных предметов) необходимо отказаться в пользу стильных и оригинальных небольших вещиц (фото, маленькие подарки от родных и т.д.).
- Используем зеркала для визуального расширения пространства.
В хрущевке 1 комнатной 31 кв м, планировка и дизайн осуществляются в светлых тонах (потолок белый). Если это натяжной, то рисунок неяркий. Паркетная доска, линолеум, ламинат светлых тонов используем для оформления пола. В прихожую и санузел кладем керамическую плитку. Стены отделываем светлыми обоями, декоративной штукатуркой, пастельными акриловыми красками.
Лучшим решением в данной ситуации будет стиль «минимализм», поэтому мебели не должно быть много.
Нюансы оформления интерьера в однокомнатной хрущевке
План однокомнатной квартиры 31 кв м хрущевки предполагает комфорт с одновременной экономией пространства – навесной телевизор, к примеру.
Большие холодильники заменяем на горизонтальные модели. В дизайне стремимся к простоте и минимализму, привлекая в жизнь современные технологии.
Для небольшой однокомнатной хрущевки требуется максимальное количество света, поскольку таким образом вы сможете визуально сделать квартиру просторнее, объемнее и уютнее.
Интерьер для семьи с ребенком в однокомнатной хрущевке
Гостиная зона является основной – здесь можно разместить два кресла и раскладной диван (превращающийся в спальное место на ночь). Ребенок должен быть обеспечен полноценной детской зоной (до 10 кв. м.), отделенной перегородкой. Рабочему кабинету оставляем один-два квадрата. Окно делает кухонную зону светлой. В оформлении добавляем отличные от основных материалы. Санузел совмещаем, убирая перегородку. Ванну заменяем душевой кабинкой.
Используйте современные стильные модели светильников, которые можно устанавливать на потолке или на стенах.
Малогабаритная квартира не слишком удобна для жизнедеятельности семьи с ребенком.
Но, используя современные строительные технологии и дизайнерские решения все неудобства можно свести к минимуму, сделав жилье благоустроенным и комфортным для всех.
Если есть такая возможность, делайте размеры окон как можно больше – добиться этого получится за счет уменьшения расстояния между двумя окнами.
ВИДЕО: Планировка однокомнатной квартиры студии.
50 вариантов дизайна однокомнатной квартиры хрущёвки:
Интерьер маленькой однокомнатной квартиры с угловой планировкой
Вы не знаете, как расположить в апартаментах с общей площадью 30 кв. м. все необходимые вещи, мебель и бытовую технику, при этом, не загромождая ограниченного пространства? Сегодня мы вас познакомим с тремя уникальными и бесподобными вариантами интерьера маленькой квартиры, разработанными гениальным дизайнером Ольгой Бондарь.
Как считают многие конструкторы и архитекторы, угловые апартаменты являются самыми некомфортными для жизни и отдыха. Два окна в комнате создают плохую тепловую изоляцию и определённые затруднения с размещением гарнитура.
Сейчас мы вас познакомим с бесподобными вариациями обустройства жилья в типовом доме типа 1–511 для разных собственников.
Ольга Бондарь является талантливым дизайнером и специалистом, которая работала в области разработки уникальных проектов с 2012 года. Основной целью своей профессиональной деятельности она считает воплощение функционального, практичного и комфортабельного для жизни пространства.
Угловые однокомнатные апартаменты в необычных домах типа 1–511 имеют как недостатки планировки (маленький метраж кухонного помещения с ванной и отсутствие возможности их расширения), а также явные достоинства: наличие трёх оконных проёмов и внутренних стен. Эти конструкции обладают большим потенциалом для декорирования убранства.
Сегодня мы вам расскажем о 3 вариациях перепланировки угловой однушки с метражом 31 кв. м. для разных видов жильцов. Обратите внимание, что все изменения вы должны изначально согласовать в БТИ.
Информация
- Типовая серия 5-этажных сооружений 1–511 имеется практически во всех районах Москвы.
Возведение этих строений осуществлялось в 50-60-е гг. прошлого столетия. - Различные модификации планировки квартир имеют существенные отличия, связанные с высотой потолков, качеством кирпичной кладки и типом кровельного материала.
- Наружные фасады выполнены с помощью семищелевого или пористо-дырчатого кирпича, их толщина равна 40 см.
- Межкомнатные перегородки возведены с применением гипсобетонных блоков с размером в 8 см, а потолочные перекрытия из железобетонных плит.
Вариант №1: квартирка для неженатого мужчины
Цели
Оборудовать комнату для просмотра телевизора и приёма гостей; разделить пространство на разные функциональные зоны с великолепным дизайном интерьера – спальню, кухню и кабинет, а также организовать большую гардеробную; гармонично соединить гостевой салон и место для приготовления пищи, оснастить ванную всеми необходимыми приспособлениями.
Решение
Необходимо удалить перегородку, разделяющую кухню и большой зал, а также установить дополнительные стены для изоляции будуара.
За счёт такой перепланировки спальня располагается в закрытой области, а все остальные области представляют собой открытое свободное пространство.
Достоинства
Зонирование помещения на разные сферы – личную и общественную; множество мест для хранения одежды, посуды и других вещей.
Недостатки
Строительство стационарных конструкций, загромождающих скромное помещение.
Вариант №2: квартирка для семейной пары
Цели
Сформировать вместительное жилое пространство; оборудовать уголок для просмотра телевизора и приёма друзей; установить большую двухместную постель; оснастить функциональную кухонную область дизайнерской мебелью с П-образной столешницей.
Решение
Дверь была перенесена на кухню, демонстрирована стена и проём в комнату из коридора. От входной зоны спальное место было отделено маленькой ширмой, изготовленной с применением тонкого матового стекла.
Такая бесподобная планировка даёт возможность в крохотных апартаментах расположить все необходимые зоны, не загромождающие убранство стационарными конструкциями.
К тому же будуар при необходимости можно зонировать при помощи подиума с выдвижными ящиками для хранения, постельного белья и одежды, шторками или низким книжным стеллажом. Также вы можете оборудовать раздвижные перегородки на лоджии.
Достоинства
Множество шкафов для хранения; уютный салон для отдыха, трапезы и просмотра телепередач.
Недостатки
Открытое спальное место.
Вариант №3: квартирка для семьи с маленьким ребёнком
Цели
Оборудовать изолированную детскую для малыша (практичный стол, постель, шкаф), отдельный родительский будуар и комфортную гостиную, оснастить санузел сантехникой и бытовыми приборами.
Решение
Зонирование выполнено с помощью стеллажей и стен.
В главном будуаре расположен диван-кровать (который можно складывать во время прихода гостей), а дверной проём был оснащён полотном с раздвижной конструкцией. Планировка кухни и ванной комнаты оставлены без изменений.
Достоинства
Изолированная детская и родительская спальня; уютный зал для приёма гостей; оборудован вместительный гардероб.
Недостатки
Нет полноценной постели в спальне для взрослых; большое количество перегородок, загромождающих помещение.
Попробуйте использовать одну из этих бесподобных и практичных вариаций перепланировки для преображения собственного дома мечты. В результате вы сможете создать комфортный, красивый и эстетичный интерьер, поражающий своей функциональностью.
Категории: Про перепланировки в квартиреМеста: Планировка квартиры
Вам также может понравиться
Итак, решение принято – вы будете соединять две области в одной.
Но как вы распорядитель…
Вы можете с лёгкостью превратить однокомнатную квартиру в функциональное и эстетически…
Вы хозяин скромного жилья, расположенного в панельном доме. В сегодняшней статье мы вам…
Знакома ли вам проблема обустройства маленьких квартир? Наш портал, вооружившись советами…
Сегодня мы расскажем о том, как английский дизайнер Хьюз сумел превратить неказистое помещение…
Многим, наверняка, знакомо имя Amorello?! Это гениальная женщина-дизайнер, которая потрясающе…
Дизайн угловой 1 комнатной хрущевки на 30 м в студию
Однушка в не более чем тридцать квадратов – идеальный вариант, чтобы попробовать собственные силы в дизайне. Это не трешка, для отделки которой потребуется изрядно стройматериалов и времени.
Ограниченное пространство к тому же заставляет продумывать наполнение комнат и выискивать неочевидные практичные дизайнерские решения – это пригодится в будущем, если семья решит переехать или дать добрый совет родственникам. Ниже мы рассмотрим особенности типичных и нестандартных (в частности, угловых) 1-комнатных хрущевок площадью около 30 кв. м., и предложим несколько вариантов ремонта: студия, типовая планировка, перепланировка в двушку.
Типовой проект однокомнатной квартирки отличается скромными площадями – габариты подобного жилья варьируются от двадцати восьми до тридцати с небольшим метров. Планировка состоит из:
- прихожей минимальных размеров, из которой есть выходы в спальню и ванную,
- совмещенного санузла квадратной формы, также занимающего минимум площади,
- кухни 5-6 квадратов с одним окном,
- жилой комнаты 17-19 кв. м., с одним оконным проемом,
- балкона или лоджии.
Это – основа, к которой в двух- и трехкомнатных квартирах плюсуются дополнительные жилые комнаты, кладовка и коридор, их соединяющий.
Что делают, чтобы обновить невыразительный внешний вид жилья, рассказываем и показываем дальше.
1. Шесть квадратных метров для кухни – очень мало. В лучшем случае сюда втиснется небольшой гарнитур и стол на две-три персоны. Снос стены, отделяющей кухонное помещение от жилого, даст столовой зоне больше пространства. А чтобы завершить преображение в студию, разбирают перегородки, отделяющие прихожую от гостиной, либо ограничиваются тем, что снимают дверь с петель и переделывают проем под арку.
Помешают перепланировке технические ограничения (кухня с проведенным газом, несущие стены) – лучше заранее продумать эти моменты, например, ознакомившись с материалами по теме на сайте.
И не идите на поводу модных тенденций против своей воли. Если вам иррационально не нравится идея студии, где в одном месте едят, спят и проводят время с друзьями, не поддавайтесь на уговоры знакомых и дизайнеров. Даже если их мнение одержит верх, жить-то придется вам, и вряд ли это будет комфортно.
2. Без перепланировки обновить дизайн поможет новый взгляд на отделку, меблировку и освещение.
Открытые дверные проемы добавят немного света той части гостиной, что соединяет кухню и коридор. Светлые тона облегчат дизайн, визуально сделают его более воздушным. В интерьере часто применяют пастельные, спокойные тона. Оживят декор сочные детали – например, текстиль насыщенных оттенков в разных вариациях, от обивки мягкой мебели до штор, покрывал и диванных подушек. Перегородки из пластика и дерева, шторы, стеллажи поделят комнату на зоны – в результате получается почти-двушка. Мебель подбирается в первую очередь по функциональности, и во вторую – по виду.
3. Две комнаты из одной делают и по всем правилам – с возведением тонких крепких перегородок, и «символически» – при помощи зонирования.
В 1-комнатной хрущевке 30 кв. м. жилой площади около 17-19 квадратов. Для хорошего дизайна этого достаточно, чтобы заложить в проект уединенную спальню и гостиную. Объединение последней с кухней даст помещение типа студии и еще немного увеличит зону отдыха.
Если квартира досталась с лоджией, то после остекления и утепления ее присоединяют к жилой комнате, это также станет полезной прибавкой к квадратуре.
Жилье угловой планировки пользуется меньшим спросом, несмотря на главный очевидный плюс – дополнительное окно. Наверное, потому, что в хрущевских домах плохая теплоизоляция, и преимущество оборачивается неудобствами в холодное время года. А зима на основной территории страны далеко не всегда соответствует трем календарным месяцам.
Проблема низкой температуры решается установкой стеклопакетов, заменой советских батарей на современные радиаторы и электронагревателями. Теплоизоляция – спорное мероприятие, обязательно нужно проконсультироваться со специалистом. Что тот посоветует сделать, зависит от типа дома. Например, панельки утепляют снаружи, только тогда эффект ощутимый и долгосрочный.
Что касается интерьера, то вот какими идеями делятся дизайнеры.
1. Из угловой 1-комнатной хрущевки получается светлая студия.
Их площадь обычно чуть больше 30 кв. м, поэтому окно не мешает реализовать сногсшибательный дизайн. В типовой планировке приходилось решать, поместить у единственного окна кровать, рабочий стол или диван. С вторым окном в наличии определиться гораздо проще.
- Освещены стол и кровать, гостиная в затемненном уголке – повышается удобство просмотра телевизора.
- Освещены гостиная и кровать, рабочая зона переносится на кухню.
- Освещены гостиная и рабочий стол, вместо кровати – большой диван-кровать.
2. Выбирая интерьер без перепланировки, придется обратиться к мобильным или стационарным перегородкам, чтобы разделить зоны. Внимательно рассматривают возможность установки шкафа-купе – он и станет вместилищем одежды, и проведет границу между спальней и общим пространством. Подробнее о том, как с толком поделить помещение на функциональные участки, мы писали в специальных материалах – там есть и про зонирование однушки.
3. От превращения в двушку владельцев однокомнатного жилья обычно останавливает нехватка света.
Как ни изворачивайся, но одна комната станет темной. Стены маленького помещения будут действовать угнетающе, если не прибегнуть к визуальному обману – яркому освещению или пейзажу на стене.
Угловые квартирки из-за особенностей планировки буквально созданы для деления на спальню и гостиную. На площади в три десятка квадратных метров дизайнеры ухитряются разместить все необходимое – и о том, насколько успешно у них это получилось, вы можете судить по фото.
Поделитесь в соцсетях или сохраните ссылку:
Ремонт в хрущевке 30 кв.м. Дизайн однокомнатной хрущевки
Оставить перегородки или сделать студию; поставить кровать или обойтись диваном, куда можно втиснуть полноценный шкаф. Квартиры площадью 30 «квадратов» часто нуждаются в размещении полного функционала просторной квартиры, а это непростая задача. а журналист Евгений Иванов делится идеями из шести планировочных решений крошечных квартир.
1. Малогабаритная квартира на Мосфильмовской (Москва)
Здесь гостиную объединили с кухней, а спальню сделали изолированной.
Но главное, что они окончательно отошли от правила «маленькая квартира — белая квартира».
Макет. Изначально комната в квартире была разделена перегородкой — ее снесли, как и стену между кухней и жилой зоной. Получившееся пространство вмещает в себя довольно просторную спальню, коридор, кухню-гостиную и санузел.
Границы перегородок рассчитывали буквально до сантиметра, ориентируясь на габариты выбранной мебели. Будь, например, диван шире или длиннее, его бы просто не пронесли по коридору. Так, в ванной (2,7 кв.м) пришлось поменять душевую кабину — та, что была выбрана изначально, дверь не открывалась полностью, упираясь в раковину.
Кухня. В пятиметровой кухне подарили обеденный стол — вместо него сделали барную стойку. Чтобы освободить рабочую зону, мы выбрали варочную панель на две конфорки. Особенно ярко проявился эклектичный стиль квартиры на кухне: классический гарнитур, «кабанчик» на фартуке, современная техника и барная стойка с дизайнерскими стульями.
Хранение. Хозяйка квартиры — молодая девушка, ей нужно как минимум два шкафа. Одну поставили напротив кровати в спальне. Чтобы массивная мебель не давила психологически, в ниши по бокам шкафа вставили зеркала – появилось ощущение перспективы. Второй большой шкаф был сделан на заказ, встроен вдоль стены в коридоре.
Дизайн однокомнатной хрущевки нельзя назвать скучным. Фишка в том, что яркий цвет интерьера отвлекает от маленькой площади квартиры. Желтый диван, зеленый комод, черно-белые шторы, фуксия на подушках и пуфе, геометрические и цветочные орнаменты – на все это хочется смотреть. Диван для гостиной куплен в ИКЕА, но его не узнать — чехол шили на заказ в текстильной мастерской. Тумбы и барная стойка изготовлены частным мастером.
2. «Двушка» от «однушки» в Перово (Москва)
Еще одна угловая квартира, но организованная совершенно иначе, чем предыдущая. Однокомнатная квартира в хрущевке на фото – пример нехарактерного для нашего времени дизайна.
Пока другие владельцы малогабаритных квартир массово размывают границы между комнатой и кухней, молодая пара из Москвы решила ничего не убирать, а еще добавить в планировку перегородки. «Однушка» на пятом этаже дома серии И-515 со временем превратилась в «двушку».
Макет. Хозяева квартиры — Анна и Алексей — обошлись без помощи дизайнера. Комфорт в их представлении означал изолированную спальню и отдельную гостиную. Поэтому комната была разделена на две — угловая планировка позволяла выделить окно в каждую комнату. Спальня получилась 7 кв м, гостиная чуть больше. Границы кухни остались нетронутыми. И Анне, и Алексею нужны были рабочие места: одного устроили в гостиной, второго в спальне.
Спальня. В номере два спальных места: полноценная кровать в спальне и раскладной диван в гостиной.
Кухня. Комплект подобран в соответствии с дизайном квартиры 30 кв.м: белый глянцевый. Плитка на фартуке травянистого оттенка, летом образует единый ансамбль с зеленью за окном.
Окно между кухней и ванной пришлось закрыть, чтобы повесить шкафчик в углу.
Хранение. Достаточно много места для хранения. Сюда входит большой угловой шкаф в гостиной, красный сундук, в котором хранятся гостевые подушки и одеяла, и внутренние ящики кровати для картин хозяев.
Для визуального увеличения площади квартиры стены отделаны белой штукатуркой, а окна не закрыты шторами. Это японская практика: деревья за окном играют роль визуального акцента, улица становится декоративным элементом интерьера.
Стол Алексея в гостиной на колесиках. Когда приходят гости, она превращается в столовую.
3. Монохромная квартира, в которой все помещается
Дизайн однокомнатной квартиры в Текстильщиках (Москва) имеет скандинавские «корни». Его владелец Сергей — специалист по продажам. Рационально использовать каждый сантиметр квартиры – такова была задача дизайнера.
Макет. Лишние разделы здесь не понадобились, но полностью от них не отказались.
Для спального места сделали нишу из светлых блоков, а вход в кухню перенесли из центра квартиры к окну. При входе сделали мини-кабинет. Небольшая ниша отделяет рабочее место от гостиной.
На кухне 4,9 кв.м хозяин хотел разместить посудомойку. Бытовая техника использовалась только узкая: посудомоечная машина шириной 45 см, холодильник – 55 см, варочная панель на три конфорки. Столешницу вынесли под окно — здесь можно и готовить, и есть, и работать.
Проем между кухней и гостиной 80 см, чтобы можно было легко вставить дверь, например, при продаже. Кухня с газовой плитой, без двери, квартира не продается. Сегодня за безопасностью следит газовый контролер.
По сути, спальня и гостиная находятся в одной комнате, но у изножья кровати всегда можно опустить широкую рулонную штору и спрятаться от гостей или загородить свет уличных фонарей. Размер спальни был предопределен мебелью: ширина спальни равна ширине кровати ИКЕА, длина равна шкафу, примыкающему к прихожей. Гостиная зонирована угловым диваном у окна.
Для спальни было слишком шумно — квартира на втором этаже, окна выходят на дорогу.
Хранение. Большинство предметов помещается в угловой шкаф, купленный в ИКЕА. Он состоит из нескольких модулей и располагается вдоль стены прихожей и вдоль перегородки спальни. В центре есть секция со скошенными углами, именно здесь хранится пылесос и другой громоздкий инвентарь. Кроме того, небольшие шкафы и полки располагаются у изголовья кровати. Также есть места для хранения под кроватью с подъемным механизмом и под сиденьем дивана.
Тот же трюк, что и с узкой техникой на кухне, повторили и в ванной: подвесной унитаз Hatria – один из самых маленьких, которые можно найти в продаже. А глубина стиральной машины всего 37 см. Благодаря этому удалось втиснуть в полноценную ванну 120 см.
3. Хрущевка со стеклянной спальней
Еще одна хрущевка. Архитекторы продумывали дизайн однокомнатной квартиры для молодой девушки, дочери заказчиков. Пока он подрастает, недвижимость будет сдаваться в аренду.
Квартиру хотели видеть светлой, с изолированной спальней. Особое пожелание хозяйки – раковина у окна.
Макет. Поскольку традиционные перегородки делают пространство более темным и тесным, от них повсеместно отказались. Кухню объединили с гостиной, на потолке оставили брус — на тот случай, если нужно быстро возвести стену, не снимая натяжной потолок. Зоны кухни, столовой и гостиной разместили в одну линию вдоль стены.
Спальня отделена от гостиной и прихожей стеклянными перегородками. За ними плотные шторы (дающие полное затемнение даже днем). Перегородки доходят до половины стены, и когда шторы убраны, пространство выглядит единым.
Спальные места — двуспальная кровать в спальне и раскладной диван в гостиной. Одежда и постельное белье размещаются в большом шкафу в спальне. Пока достаточно. Когда юная хозяйка войдет в квартиру, в прихожей появится еще один шкаф — для него будет выделено место в плане.
Для организации раковины у окна подоконник пришлось поднять до уровня столешницы.
Кухонные шкафы в верхней линии сделаны под потолок — так вы получите больше места для хранения. Обеденная зона располагалась ровно посередине между кухней и гостиной. Стол рассчитан на четверых.
Чтобы в квартиру попадало как можно больше солнечного света, уменьшили высоту подоконного блока в комнате, превратив подоконник в скамейку. На лоджии сделано панорамное остекление.
Стиральная машина висела на стене в ванной. Это специальная модель для загрузки 3 кг белья.
4. Средиземноморская квартира у метро Севастопольская в Москве
Собственник квартиры работает инженером в строительной компании и проживает в Московской области. Ему нужна квартира в столице для коротких остановок в городе.
Однокомнатная квартира 30 кв.м переделанная под студию. Стену санузла немного увеличили в сторону кухни, чтобы в образовавшейся нише спрятать холодильник. Основная идея: чем больше света и воздуха, тем лучше. Поэтому даже окна подбираются с полностью белым профилем (и внутри) и чуть шире стандартных.
Все пространство квартиры просматривается из прихожей.
Отдельной кровати нет — есть ярко-синий диван для сна. Кроме того, в спальне гостиной нет телевизора. На его месте фотография моря и неба. Фотография сделана владельцем на Майорке и напечатана на ткани. Оборудование в квартире не бросается в глаза. Например, музыкальная система маленькая и белая.
Вещей в квартире немного, поэтому все поместилось в белый шкаф из ИКЕА и комод, изготовленный по индивидуальному заказу… Комод поставили рядом с диваном.
Кухня стала частью комнаты. Он сочетается с остальным пространством и с помощью цвета: белые фасады, раковины, техника. Рабочая поверхность на кухне — столешница из клееного дуба (ИКЕА), из нее сделаны все подоконники в квартире. Мозаика на кухонном фартуке объединяет все цвета интерьера: терракотовый, голубой, голубой и белый. Нижняя часть ванной комнаты украшена такой же мозаикой. Перекличка цветов и фактур в маленьком пространстве нужна, чтобы не создавать пестроты.
Полы во всей квартире выложены однотипной испанской плиткой.
Большая часть мебели в квартире из ИКЕА.
5. Квартира для гостей Санкт-Петербурга
Квартира предназначена для краткосрочной аренды гостям города. И дизайн квартиры 30 кв м, и планировка связана с общей идеей временного жилья. Хозяин задумал это как «путешествие для себя». Например, здесь полноценная кровать, а не диван. Пусть она занимает больше места, но для туриста, прибывающего ночным поездом или бегающего по культурной столице днем, кровать удобнее и уместнее.
Для сохранения объема помещения отказались от перегородки между комнатой и кухней и двери между комнатой и прихожей. Благодаря этому солнечный свет из окон достигает самой входной двери. Да и со стороны входа квартира-студия кажется более просторной. Пространство разделено на три зоны: входную, жилую и зону отдыха. Последний расположен на лоджии, за прозрачными дверями. У окна с панорамным видом установили барную стойку.
Путешественникам не нужна большая кухня, поэтому в одну линию сделали несколько кухонных шкафов и обеденную зону.
Верхние шкафы вешать не стали, кухню дополнили открытой полкой. Холодильник и небольшой стеллаж с техникой разместили в конструктивной нише на соседней стене. Над обеденным столом повесили телевизор, который можно смотреть лежа на кровати.
Кровать выходит на кухню и столовую. За ступенчатой перегородкой находится зона гостиной, где есть дополнительное спальное место – раскладной диван.
Места для хранения немного, но туристам большего и не надо. Шкаф в коридоре сделан из гипсокартона, двери жалюзийные куплены для него в строительном гипермаркете.
Половина шкафа предназначена для одежды и чемодана, вторая – для хранения пылесоса, швабры, гладильной доски.
Основной фон в квартире спокойный, но детали яркие и цветные. Это отличает квартиру от гостиничного номера: в квартире так же уютно, как дома.
Вся палитра интерьера представлена в изголовье кровати.
В совмещенном санузле верхняя часть стен окрашена в ярко-горчичный цвет. Этот цвет поднимет вам настроение по утрам, ведь в Петербурге часто бывает пасмурно.
Несмотря на популярность новостроек почти во всех регионах России, многие, если не большинство из нас, живут в хрущевках в панельных домах… Так в народе называют малогабаритные квартиры времен хрущевок. Они отличаются относительно небольшими кухнями, раздельным санузлом. В этой статье мы поговорим о дизайне однокомнатной хрущевки. Ориентировочная площадь отделочных работ 30 — 32 кв.м. Как из маленькой квартиры сделать визуально большую, просторную однокомнатную, если перепланировка вам недоступна. В статье — дизайн однокомнатной хрущевки.
В маленькой квартире, как однокомнатная хрущевка, при ремонте хозяева борются за каждый миллиметр, чтобы и визуально пространство выглядело больше, и физически можно было уместить необходимое на минимальной площади. Попробуем обсудить тонкости этой задачи. Ниже мы поговорим о стиле, которого вы могли бы придерживаться в отделке квартиры, о тонкостях отделки и ремонта всех комнат, об отдельных деталях отделочных работ. Например, выбор обоев, их существующие виды.
Зонирование пространства, все возможные варианты… Отделка полов. Двери в малогабаритных квартирах. Также раскроем тему влияния цвета в пространстве на поведение и настроение людей. Надеемся, что, ознакомившись с современными тенденциями, вы сможете сделать тот выбор, который принесет максимально качественный результат вашим работам.
Выбор стиля
В хрущевке бывает сложно выбрать какой-то один определенный стиль, что-то может нравиться из одного, а что-то совершенно из противоположного. Не бойтесь смешивать стили, выбирайте то, что близко вашему вкусу. Выдержать один образ в помещении хрущевки достаточно сложно, и тогда разумнее всего будет использовать материалы разных жанров, руководствуясь собственным выбором форм и отделки.
1. Классика. Сочетание традиции, солидности, дороговизны и качества используемых материалов. Мебель из натурального дерева, обивка дорогой тканью. Тона в этом стиле спокойные, сдержанные. Бежевый, пастельный, темно-коричневый или зеленоватый.
Сюда хорошо впишутся картины разного размера и в массивной, дорогой раме.
2. Национальное направление. Квартира в виде культуры, традиций другой страны. Это выбор путешественников, ценителей определенной страны, когда хочется окунуться в самобытный интерьер чужих традиций, возвращаясь домой. Это может быть китайский, английский, африканский, египетский. Можно, конечно, смешать несколько этносов в одной квартире. Такая 1-комнатная хрущевка будет достаточно экзотичной и оригинальной.
3. Модерн. Это кантри, арт-деко, минимализм, модерн, хай-тек, лофт. В этом стиле нет лишнего комфорта. Особенно выражен контраст соседних оттенков. К основному свету применяется много контрового света. Четкие формы мебели.
Дизайн комнаты
1. Если в однокомнатной квартире проживает несколько человек, то удобно сделать зонирование помещения. Выделение минимум двух зон. Для каждого варианта такие зоны уместны по-своему. Зонировать можно в прямом порядке возведения визуально реальной стены или забора.
Например, из пеноблоков (тогда стена будет настоящей), ДСП или гипсокартона. Такую перегородку можно звукоизолировать и утеплить, например, стекловатой.
Дизайн однокомнатной хрущевки: гостиная и спальня в одном флаконе
Перегородки из дерева образованы обивкой дранкой, штукатуркой. Чтобы максимально сэкономить жилую площадь, многие стараются сделать перегородку как можно тоньше, либо замаскировать под нее что-то другое. Например, установить раздвижные двери, они не занимают лишнего места, открываясь в обе стороны за счет скольжения. Разделить части можно просто шкафом, полками от пола до потолка, стеллажом или мебелью.
Дизайн однокомнатной хрущевки — спальни
2. Отделка может быть на любой вкус, цветовая гамма теперь разнообразна. Конечно, они зрительно увеличивают площадь зеркала, правильно подобранного интерьера однокомнатной хрущевки. Стоит сразу определиться с гаммой, так как от этого потом может зависеть цвет текстиля и мебели.
Чем светлее тона, тем больше кажется пространство. Высоту потолка можно увеличить, используя вертикальные полосы на стенах. И горизонтальное пространство будет казаться больше. Недавняя новинка – жидкие обои, декоративная штукатурка, двухцветные краски. Современное дизайнерское решение – разный цвет стен. Например, три стены имеют одинаковую отделку, а одна стена сделана под кирпич, или наклеены интересные фотообои.
Обои теперь всех видов, цветов, рисунков. Виниловые, бумажные, объемные, простые. Подробнее об их выборе и цветах мы поговорим ниже. Если пол неровный, сейчас есть множество способов от заливки до выравнивания деревянными панелями и уровнем. Пол во всей квартире лучше сделать на одном уровне, без порожков и резкого перепада высоты. Еще одним моментом в оформлении гостиной 1 комнаты в однокомнатной квартире являются картины или фотографии, которые можно повесить на стену в определенном порядке.
Стоит заранее выбрать места, где будут висеть картины, чтобы потом не пришлось заделывать дырки от гвоздя.
3. Потолок в помещении часто отделывают так называемыми подвесными потолками или, например, обоями под покраску. Есть еще технология простого натягивания красивой натуральной ткани между самодельными брусьями. Балки можно сделать квадратами и покрыть лаком. Получается что-то вроде шведского потолка.
Обратите внимание на домашний текстиль. Вы можете комбинировать на свой вкус, выбирать все в разных цветах: от штор до обивки дивана, от ковра до скатертей. Кто-то предпочитает более грубые ткани, благородные, кто-то более легкие, прозрачные. На небольшом пространстве лучше использовать мебель-трансформер, современные стенки, не утяжеляющие шкафы. оставляет простор для фантазии в его расположении.
4. Для пола используйте паркет или более дешевый вариант ламината. Как правило, спальню-гостиную украшают ковром. разных размеров. На темном полу выигрышно будет смотреться светлый ковер небольшого размера. Если цвет светлый, то ковер, например, в зоне спальни может быть разного цвета.
Дизайн кухни
1. Пол на кухне может быть разным. Самое главное, что он водостойкий. Например, линолеум, напольная плитка. Ламинат применяют редко, так как при попадании влаги между стыками досок могут появиться вздутия и деформации пола, исправить которые потом очень сложно.
2. Конечно, желательно, чтобы вся мебель на кухне имела свойство мыться. Но краска и плитка на стенах сегодня не удовлетворяют изысканному вкусу. Поэтому на данный момент существует большой выбор обоев для кухни, которые можно стирать.
3. Мебель на кухне теперь может быть не только удобной, но и стильной, яркой, оригинальной. На разных сайтах можно подобрать мебель по фото, и в реальности она будет такой. Доставят и заберут, это не большая проблема. В маленьком пространстве лучше максимально использовать стены, уменьшить глубину шкафов, использовать более узкую бытовую технику.
4. Кухонный «фартук» можно выложить разнообразной плиткой.
Сейчас появился новый тренд: стеклянный фотофартук.
5. Если потолок на кухне ровный, то можно начинать покраску без штукатурки.
Дизайн ванной комнаты
Ремонту ванной комнаты уделяют много времени и сил. В однокомнатной хрущевке можно совместить санузел. Основная проблема при дизайне санузла в однокомнатной хрущевке и отделке здесь – маленькие площади. На такой площади сложно разместить: ванну, унитаз, раковину, стиральную машину. Где что будет стоять лучше продумать с самого начала ремонта и желательно до миллиметра. Сидячую ванну следует заменить душевой кабиной. Спрячьте унитаз в стену.
1. Основным материалом для отделки стен в ванной комнате является плитка. Сейчас она может быть разных размеров, производители придумывают декор плитки. На данный момент также используют пластиковые панели для отделки ванной комнаты. Их выпускают различных цветов, с рисунком, а также «под плитку».
2. Подбор мебели.
Кто-то уделяет особое внимание функциональной части шкафов и полок, кто-то старается скрыть под этими элементами неприглядные части труб, кто-то вообще не использует мебель в ванной комнате. Если площадь небольшая, то можно будет разместить максимум тумбу с зеркалом над и под раковиной. Плюс несколько полок на стенах.
Двери в маленькой однокомнатной квартире могут занимать много лишнего места. Можно установить раздвижные двери, либо просто оставить арку, например, из коридора в кухню.
Свет
В специализированных магазинах и на интернет источниках большое количество разнообразных люстр, бра, торшеров. Они могут дополнять друг друга и выполнены в едином стиле, из одних и тех же материалов, продаются комплектом. Можно подобрать разнородные источники света, но выгодно подчеркивающие дизайн. Вы можете приобрести светодиодные ленты для подсветки периметра потолка. В моде сейчас и шкафы, с полками, подсвеченными теми же светодиодными лентами.
В любом случае свет в квартире должен быть многоуровневым, чтобы можно было оставить ее более интимной, выключив основной свет.
Цветовая гамма
Как сделать так, чтобы в вашей квартире было не только приятно и уютно, но и придавало сил и бодрости? Психологи задались этим вопросом. Они изучали влияние на состояние человека, принятие решений таких компонентов дизайна, как цвета, формы, фактуры, изображения. Цвет дизайна может кардинально изменить отношение, навыки и привычки.
Красный придает бодрости, активности, способствует принятию правильного решения. Это как призыв к действию. Если стены оформлены красным, то у человека появится ощущение тепла в комнате. Но красный способен уменьшить визуальное пространство. Поскольку он помогает пищеварению, его лучше всего использовать на кухне.
Оранжевый поднимает настроение, а также сближает людей в оранжевой комнате, поэтому оранжевым лучше украсить комнату, где вы часто проводите время вместе.
Желтый может создать в комнате ощущение солнечного света. Это повышает творческий потенциал. Это образ гармонии и радости. Если у вас окна выходят на север или в вашем климате мало солнца, то вы можете использовать желтый цвет в качестве основы своей комнаты.
Зеленый – символ природы, спокойствия, созерцания, умиротворения. Это мягкий образ, призывающий к душевному спокойствию.
Синий успокаивает чувства человека, слегка подавляет активность. Как и зеленый, это пассивный цвет. Он способствует ощущению прохлады и снимает эмоциональное и физическое напряжение.
Синий — форма мечтателей. Как и с синим, в жаркий день в комнате будет прохладно.
Фиолетовый выглядит довольно загадочно, оригинально. Но при выборе его в помещении может снизить работоспособность, жизненный тонус, некую пассивность.
Розовый – символ романтики, может быстро надоесть, не подходит к классическому образу квартиры.
Коричневый — это стиль надежности, безопасности.
Вызывает легкое настроение.
Белый так называемый больничный фон. Может вызывать чувство холода, а также впечатление скромности.
Выбирая дизайн, вы должны четко понимать функциональность помещения и особенности цвета, который вы хотите использовать в основном оформлении. Можно комбинировать оттенки, чтобы добиться оптимального воздействия на всех членов семьи.
Выбор обоев
При выборе обоев следует понимать, что ближе: однотонные полотна или отделка стен с орнаментом.
Однотонные обои имеют следующие преимущества. Они визуально расширяют пространство. Позволяет сочетать более светлые и яркие тона. Они отлично подходят для зонирования комнаты. Выгодно выделяют мебель, шторы, интерьер комнаты однокомнатной хрущевки.
Дизайн однокомнатной хрущевки — гостиной
К ним проще подобрать шторы. Они не перегружают зрительное восприятие человека, вызывают умиротворение. Такие обои хорошо подходят для стилей минимализм и хай-тек.
Комбинируя обои, можно подчеркнуть особенности планировки, расставить акценты, изменить пропорции. Правда, на обоях могут сильно выделяться все неровности поверхности. Поэтому следует идеально подготовить стены к оклейке. Обои можно разделить на:
- по материалу изготовления (бумага, флесилин, винил, ткань и др.)
- по структуре полотна (дуплекс и одинарный)
- по фактуре (под натуральные материалы, под ткань или без фактуры)
- по текстура (гладкая и рельефная)
Обои с рисунком способны отражать все основные цвета интерьера и выгодно завершать основной стиль помещения.
Существует несколько видов обоев с рисунком:
- с однотонным рисунком. Это обои, когда рисунок и основа одного цвета. Рисунок может быть выделен просто определенным контуром или просто выделен, быть более объемным.
- абстрактная иллюстрация. Характерной чертой таких обоев являются пятна, широкие мазки, точки, разводы.
Благодаря такому рисунку на них практически незаметен стык или шов. - геометрический узор. На таких обоях располагаются различные линии и геометрические фигуры. Они хорошо вписываются в нейтральный интерьер.
- полосатый. Эти обои могут удачно вписаться не только в современный, но и в классический стиль. Как мы уже говорили, такие обои расширяют пространство или приподнимают его.
- классический рисунок. Вот переплетения, которые образуют единый узор. Можно использовать различные опрыскивания. Такие обои лучше впишутся в классический стиль интерьера.
- с натуральным рисунком. Они могут быть из переплетения листьев, цветов, стеблей. В этом случае необходима стыковка полотен.
Полы
Раскроем тему современных полов подробнее. Ведь это тоже очень важный вопрос, которому уделяется очень много внимания. Отделку белым ключом лучше начинать после отделки стен и пола. Материалы делятся на: натуральные и искусственные.
Паркет.
Паркет обладает высочайшей износостойкостью, практически не деформируется. Штучный паркет более подвержен внешнему воздействию, например, влаге, чем все остальные виды. Паркет долговечен, но его лучше использовать в малопроходимых в плане проходимости помещениях.
Пробковый пол. Экологически чистый материал. Пробка производится в виде плиток, состоящих из спрессованных слоев. Внешний слой – это шпон, сверху покрытый лаком. При этом очень хорошая звуко- и теплоизоляция. Даже при незначительной деформации такой материал снова выравнивается. Обладает антибактериальными свойствами.
Дизайн однокомнатной хрущевки — коридор
Мармолеум изготовлен из натуральных компонентов. Эти плитки склеены. Достаточно огнестойкий.
Ламинат состоит из нескольких слоев. Основание МДФ, с применением пластика, сверху декоративный слой.
Линолеум прочный и долговечный, не боится влаги и легко укладывается.
Ковер лучше всего использовать в спальнях, гостиных, в комнатах, где лучше смотрится уютная, мягкая обстановка.
В заключение хочу сказать, что даже сам процесс ремонта и отделки может принести настоящее удовольствие, ведь это перемены. Ремонт – это все новое, смена обстановки, цвета. Конечно, это не даст вашей однокомнатной квартире новой жизни, но существенно ее изменит, вы увидите, насколько радостнее вы будете дома. Это новое дыхание вашего дома, и только от вас зависит, принесет ли оно вам истинное удовольствие. Удачи!
Дизайн и отделка небольшой квартиры-студии довольно сложны, особенно если располагаемая площадь всего 30 кв.м. В таком маленьком пространстве необходимо грамотно разместить все функциональные зоны и при этом не загромождать комнату. Важно знать, как это сделать правильно, какие рекомендации соблюдать.
Современный интерьер квартиры
Чаще всего площадь 30 кв.м имеют стандартные однокомнатные «хрущевки». Многие думают, что выбор дизайна в этом случае ограничен и скуден, но это не так. Комнату можно выгодно оформить, сделав ремонт в современном стиле, разместив в ней всю необходимую мебель и отделив функциональные зоны.
Правильно подобрав дизайн квартиры, можно наполнить ее уютом.
Прихожая
Каждая квартира имеет небольшую прихожую. Если квартира 30 кв. м – «хрущевка», то в ней есть еще и кладовая, которая часто заменяет гардероб. В кладовку можно установить удобные раздвижные двери, не требующие места для открывания. Таким образом, в комнате будет встроенный шкаф, занимающий минимум места. Кроме того, нужно правильно спланировать его наполнение: полки, вешалки, ящики.
В небольшой прихожей также можно повесить крючки и сделать полку для обуви: качественная и плотная, она заменит стул для переобувания. В маленькой прихожей нужно разместить на стене большое зеркало, которое зрительно расширит комнату.
Если в такой прихожей нет встроенного шкафа, то отличным решением будет установка углового шкафа, но его может заменить и шкаф-купе.
В двери также можно установить зеркала; такая мебель с дополнительной подсветкой выглядит очень модно и интересно.
Он прекрасно освещает небольшую прихожую, а кроме того, дополнительное освещение позволяет расставить световые акценты и наполнить прихожую легкостью. В квартире с маленькими прихожими ни в коем случае нельзя использовать системы хранения открытого типа, так как они будут загромождать комнату.
Мебель лучше покупать не слишком большую, узкую и легкую. Глянцевые и стеклянные поверхности – то, что вам нужно. Важно подобрать очень яркие и качественные источники освещения, они помогут прихожей казаться не слишком маленькой,
Кухня
В современной 1-комнатной квартире 30 кв.м около 6 кв.м попадает на кухню, но даже при таких небольших размерах кухню можно сделать уютной … Мебель здесь должна быть оборудована встроенной техникой. Таким образом, вы сможете максимально эффективно использовать пространство на кухне. В таких случаях прибегают даже к расширению подоконника. Там можно организовать рабочее место хозяйки или разместить кухонную утварь, посуду, мелкую бытовую технику и другие вещи.
Полки и ящики можно сделать под подоконником. В них хранятся столовые приборы, кастрюли и даже некоторые продукты, например крупы.
фото
Дизайн кухни должен создавать атмосферу наполненности светом и пространством. Всю мебель лучше расположить вдоль одной стены, а с противоположной стороны сделать обеденную зону. Таким образом, дизайн станет более современным и модным, а помещение – более функциональным. Оформив комнату в минималистическом стиле, вы сможете разместить там только самые важные кухонные предметы, полностью избавившись от обеденного стола. Его роль может сыграть расширенный подоконник или узкая и функциональная барная стойка.
В такой комнате лучше использовать табуретки, так как их легко задвинуть под стол, и они освободят дополнительное пространство в комнате.
Комната
Комната в современных квартирах площадью 30 кв.м является единственным жилым помещением. Его необходимо формализовать, разделив на зоны.
Сделать это можно с помощью разных цветов или перегородок. При выборе мебели и отделочных материалов важно обращать внимание на модели, дизайн которых будет легким и легким. Стену оформить в пастельных тонах, а окна в светлых тонах.
В качестве штор лучше приобретать только шифоновые модели, которые являются отличным решением для дизайна и оформления такой комнаты. Интерьер не должен быть роскошным и вычурным – важно не перегружать обстановку лишними деталями и аксессуарами.
Для обустройства интерьера лучше использовать стильную и функциональную мебель трансформируемого типа. Он может складываться и меняться. Это касается как столов, так и спальных мест.
Современные апартаменты площадью 30 кв.м. важно учитывать наличие балкона. Таким образом, лоджию лучше утеплить, чтобы там можно было разместить удобную систему хранения, например, шкаф с закрытыми полками. Такой дизайн выбирают для того, чтобы «разгрузить» интерьер.
На балкон часто переносят зону отдыха, там же ставят журнальный столик.
Дизайн однокомнатной квартиры
В настоящее время большой популярностью пользуются квартиры-студии. Это отличное решение как для молодых пар, так и для одиноких, но часто даже всей семьей приходится жить в студиях. Если квартира изначально не задумывалась как студия, ее всю можно заранее перепланировать под такой тип помещения, что многие и делают. Лучше всего, если квартира будет рассчитана на совместное проживание в ней.
В этом случае не рекомендуется устанавливать разделы. , зонирование можно осуществить и другими способами. Комната разделена на функциональные зоны с мебелью, освещением, разным уровнем пола, потолка и прочим. В первую очередь, решая, каким будет дизайн интерьера такой квартиры, нужно решить, какие функциональные зоны необходимо выделить.
После этого следует решить, как удобнее разграничивать участки.
В квартире-студии кухня должна плавно переходить в гостиную, а дизайн всех зон должен быть цельным и гармоничным, в интерьере не допускаются резкие переходы. Гостиная и кухня часто соседствуют, а разделить их можно с помощью современной барной стойки … Она отлично подойдет как для семейного обеда, так и для ужина с друзьями, а также отлично справляется с зонированием.
В гостиной можно применить интересный дизайнерский ход: расширив подоконник, превратить ее в полноценное рабочее место с хорошим освещением. Если площади такого «стола» недостаточно, то пригодится дополнительный компактный столик-трансформер для ноутбука. Он отлично впишется в современный интерьер комнаты и не займет много места, за ним удобно работать, даже лежа на диване.
Под расширенным подоконником организована система хранения одежды путем оснащения комода. Есть выдвижные ящики для белья и одежды. На кухне подоконник используется как раковина, что делает кухню более удобной и функциональной..jpg)
Спальная зона оборудована легкой занавеской. Выглядит элегантно, напоминает балдахин, но в то же время защищает кровать от посторонних глаз. Спальная зона должна располагаться как можно дальше от входа в комнату. Спальная зона также отделена с помощью подиума. Дополнительным преимуществом такого решения является возможность монтировать в подиум ящики, в которых удобно хранить постельное белье и другие аксессуары.
При создании модного дизайна однокомнатной квартиры площадью 30 кв.м. большое внимание следует уделить освещению. Центральную зону, которой обычно является гостиная, нужно максимально осветить, а спальную и кухонную зоны — рассеянными источниками. Также модны дизайнерские идеи по разделению зон с помощью полупрозрачных ширм, которые смотрятся легко и в то же время разграничивают помещение.
Большие декоративные элементы следует выбросить. Высокий и плоский аквариум отлично справится с зонированием. Он не займет много места, но отлично скроет спальную зону.
Также при принятии решения о дизайне интерьера квартиры-студии следует помнить о некоторых нюансах:
- Лучше, если мебель и мебельная фурнитура будут выполнены в белых или серебристых оттенках.
- Приветствуются глянцевые и зеркальные поверхности.
- Зонирование в однокомнатной квартире можно осуществить с помощью разных фактур.
- На контрасте цветов лучше не играть; яркие оттенки следует включать в интерьер осторожно. Лучшим решением будет выбор одной цветовой гаммы и использование смежных оттенков. Идеально подойдет сочетание белого, синего и серого.
- При отделке использовать метод смены видов настила. Пол устроен таким образом, что плитка в кухонной зоне заменяет паркет жилой зоны, как бы отграничивая их друг от друга.
В прихожей лучше всего постелить ламинат, а в спальной зоне постелить ковер.
Варианты и стили
В маленькой квартире 30 кв.м можно воплотить практически все стили, при этом мебель должна быть небольшой, не громоздкой.
Лучше отдать предпочтение компактным «уголкам» и трансформерам. Крупную мебель лучше располагать вдоль стен ближе к углам или вовсе отдать предпочтение угловым моделям. Для оформления такого пространства отлично подойдут следующие стилистические направления.
Прованс
Этот красивый и утонченный стиль красиво подчеркнет достоинство небольшой гостиной или спальной зоны. При оформлении комнаты в этом стиле нужно использовать только пастельные тона , приобретая элементы белого, молочного, бледно-розового, бежевого, светло-персикового оттенков. Шторы должны быть полупрозрачными, легкими. Мебель лучше выбирать с белой обивкой. Напольное покрытие также должно быть светлым; отлично подойдет ламинат или паркет с искусственно состаренной поверхностью. Для стиля прованс характерен цветочный принт на стенах и мебели.
Хрущевские дома — это панельные, кирпичные или блочные дома, строительство которых было массовым в советское время под руководством Н.
С. Хрущева. Отсюда и народное название – «хрущевка». Наиболее распространены серии 1-335 (впоследствии модернизированные до 1-335 А, 1-335 К, 1-335 АК, 1-335 Д), 1-447, 1-464.
Архитектура и планировка
Их строительство началось еще в 1959 году, но уже в 1966 году было приостановлено из-за несоответствия построек климатическим условиям. Но, несмотря на это, позже создание этого типа домов было возобновлено и продолжалось до 80-х годов.
Изначально они рассматривались как временное жилье для переселения жителей из деревень и деревень, но, как известно, нет ничего более постоянного, чем временное. Поэтому и сейчас таких домов очень много. В Москве и Санкт-Петербурге их должны снести в ближайшее время. А на периферии такого нет. Максимум — занимаются капитальным ремонтом.
«Хрущевки» — простые, четырех-пятиэтажные дома без лишнего архитектурного оформления. Лифт для такой этажности не предусмотрен, мусоропровод — редкость. В основном, это панельный тип конструкции.
Это объясняется тем, что г. их строительство требовало коротких сроков и минимальных затрат.
В небольших городах «хрущевки» строились из кирпича с железобетонными перекрытиями… Иногда дома утепляли минеральной ватой, а фасад отделывали керамической плиткой. Внешне они казались более привлекательными, но внутри ничем не отличались.
Квартиры имеют одну или две комнаты (тогда самая большая из них проходная), реже три, небольшую кухню площадью от 5 до 7 м2, совмещенный санузел. Высота потолков колеблется от 2,5 м до 2,6 м. Окна двустворчатые, почти квадратные. Все коммуникации центральные. Иногда на кухне устанавливали газовую колонку для обеспечения горячей водой.
Преимуществом таких домов был балкон и кладовка. Балкона на первых этажах не было. Под окном на кухне в хрущевках стоял небольшой шкаф, служивший зимой холодильником.
К недостаткам относятся:
- низкая теплоизоляция стен;
- тонких звукоизолированных перегородок;
- маленькая кухня;
- небольшая площадь всей квартиры;
- узких коридоров и прихожей.

Некоторые недостатки этих помещений можно исправить. Поэтому в последнее время широкое распространение получила перепланировка «хрущевок». В однокомнатной квартире делают студию, в двухкомнатной изолируют комнаты. Все больше квартир обзаводится кухней-столовой-гостиной.
Рассмотрим подробнее однокомнатные варианты.
Особенности
В основном «однушка» имеет общую площадь около 30 м2, из них жилая — около 18 м2, кухня — около 6 м2. Эти цифры могут незначительно отличаться. В угловых квартирах два окна, в простых — одно. Окна кухни и гостиной выходят на одну сторону. Часто между ванной и кухней есть небольшое окно.
Однокомнатная «хрущевка» выполнена в виде куба с внутренними перегородками. Внутри нее нет несущих стен. Это дает возможность сносить и перемещать барьеры по вашему желанию.
Однако сначала нужно получить на это разрешение, а уже потом легализовать новшества.
Студия
Модным трендом нынче является квартира-студия, в которой объединены пространство кухни, комнаты и прихожей.
Выбранная пространственная модель может быть реализована для многоквартирных «хрущевок» любой серии зданий.
Такой вариант подойдет для одного человека или молодой пары без детей. Для юридического подтверждения планировки требуется замена газовой плиты на электрическую.
Также можно оставить отдельный коридор, за которым находится небольшая гардеробная и санузел. Остальное пространство будет состоять из гостиной, кухонной поверхности и спальни.
Декор стен и установка мебели помогут визуально разделить пространство. Отделить спальню от гостиной можно стеллажом со встроенным телевизором, который при необходимости поворачивается то в одну, то в другую сторону.
Для ответвления кухонной зоны барная стойка или символическая круглая арка… Никакой нагрузки, кроме эстетической, она не несет.
Кровать можно отделить ширмой или занавеской в тон мебели. Удачным местом для нее будет щель за прихожей.
Таким образом, вы получаете незаметное спальное место, не утяжеляющее пространство.
Подходит для интерьера Скандинавский стиль , суть которого заключается в светлом незанятом помещении с минимумом декора. Это визуально расширит квартиру и добавит легкости вашему дому.
В результате получается свободное пространство, не загроможденное никакими стенами. Из минусов можно отметить отсутствие изолированных комнат в номере.
Модернизация санузла
Рассматриваемый вариант подходит для «хрущевок» с раздельным санузлом (серии 1-511, 1-515). Суть метода заключается в том, чтобы увеличить ванную комнату за счет коридора, чтобы там поместились ванна, раковина и стиральная машина. Вы можете просто совместить ванную комнату и ванную комнату. Затем последний расширится до нужных размеров и вместит в себя перечисленные элементы и унитаз.
Таким образом, прихожая исчезает, но увеличивается пространство для кухонной зоны и зоны отдыха.
Барьер между ними можно передвигать несколько вглубь комнаты. Тогда получится и достаточно широкая кухня, способная вместить за стол из четырех человек, и гостиная, в которой размещается раскладной диван, над которым можно разместить разного рода полочки, и шкаф для одежды. Сиденья можно увеличить за счет небольших пуфиков, компактно складывающихся в журнальный столик.
Современные художники и дизайнеры создают многофункциональную мебель, которая поможет сэкономить место в небольшой квартире. Это может быть раскладной шкаф-кровать, комод-трансформер, складные и складные стулья и множество других интересных вариантов.
К плюсам можно отнести относительно большой санузел и кухню. Исчезает и узкий ненужный коридор. Такое жилье подходит для людей, собирающих дома гостей, для одиноких жильцов и для молодежи. Из минусов — отсутствие спальни.
Кухня-столовая
Предполагается, что небольшая спальня отделена от основного пространства, в котором размещены только кровать и комод.
Остальная часть комнаты совмещена с кухней. Таким образом получается кухня-столовая с диваном. В такой комнате вместо обычного стола можно разместить барную стойку. Она послужит продолжением рабочей зоны и сэкономит место.
Выделение спальни особенно важно для угловых квартир, где на комнату приходится два окна.
Одну из стен спальни можно сделать диагональной, в которой разместить входную дверь. Параллельно напротив нее будет располагаться барная стойка, которая визуально разделит пространство. От входной двери до самой столовой шкафы желательно разместить вдоль стены. Это позволит создать необходимое место для хранения вещей и аксессуаров.
В некоторых дизайнерских проектах для такого вида трансформации используются прозрачные перегородки. Это создаст дополнительную легкость и свободу пространству. Для уединения стекло оборудуют жалюзи или рулонными шторами. Мебели в таком интерьере тоже должен быть изготовлен из прозрачных материалов, будь то стекло или пластик.
Зеркальные поверхности будут смотреться необычно. Они «расширят» пространство, но уход за ними будет трудоемким.
В ванной можно разместить душевую кабину, а на освободившееся место поставить стиральную машину, над которой будет столешница во весь рост. В нее же вмонтирован умывальник.
Несомненным плюсом такой планировки является наличие полноценного спального места и зоны отдыха с гостями. Он подойдет для небольшой семьи, предпочитающей отдыхать дома. Из недостатков можно отметить отсутствие мест для хранения и отсутствие полноценного стола (в случае замены его на барную стойку).
Увеличение количества комнат
Если обязательным условием жилого помещения является наличие второй комнаты и изолированной кухни, можно сделать небольшую проходную гостиную. Особенно это актуально при наличии дополнительного окна (в угловых вариантах). Задняя комната будет спальней, в которой возможно разместить не только взрослую двуспальную кровать, но и детскую кроватку.
Если площадь была выбрана немного больше, то и шкаф может поместиться в ней.
Стену между гостиной и коридором, ведущим на кухню, в этом варианте лучше заменить складными дверями-гармошками по всей ширине. В зависимости от обстоятельств можно получить отдельное место для отдыха или совместить с коридором для увеличения помещения.
Преимуществом данной перепланировки будет изолированная кухня и спальня. Он подойдет молодым родителям с ребенком и людям, которые не часто приглашают друзей на ужин. Но такая планировка предполагает маленькие, узкие комнаты с небольшим количеством места для хранения.
Объединение балкона с жилой зоной возможно при любом виде перепланировки. Там можно сделать мини-кабинет, поставить вдоль балконного окна высокий барный стол или даже оборудовать спальную зону.
Дизайн
Планировка «хрущевок» во всех городах и районах типовая. Поэтому одна и та же мебель была расставлена в комнате аналогичным образом.
Теперь все по-другому. Дизайну маленькой квартиры специалисты уделяют большое внимание. Ведь именно в нем важно учесть все нюансы для удобства и красоты помещения.
Очень популярно зонирование пространства с помощью обоев и напольных покрытий. Для этого следует подбирать модели, сочетающиеся в одном помещении, но визуально разделяющие площадь на части. Это могут быть обои одного цвета, но с разным рисунком. Можно покрасить все стены в один цвет, а функциональные зоны выделить обоями с орнаментом. То же самое касается напольного покрытия.
Россия и «квартирный вопрос»
Двое начальников поездов 9-го0741 Беркут Транссибирский экспресс из Иркутска, и их глубокое знание города привело к тому, что у наших гостей появилась новая возможность — посетить русскую семью дома. За чаем и домашним яблочным пирогом наша хозяйка Татьяна с радостью ответит на любые заданные ей вопросы о жилье и других аспектах быта, как в советском прошлом, так и в российском настоящем.
Слушая вопросы и ответы, я часто думал, что некоторые предварительные знания о жилищной ситуации в Советском Союзе и России и условиях жизни в целом могли бы помочь нашим гостям получить больше от этого исключительного опыта. Таким образом, следует изложение жилищного кризиса в Советской России на протяжении большей части двадцатого века.
Жилищный вопрос: Фридрих Энгельс
Жилищный кризис был одним из главных кризисов на протяжении всей советской истории. На самом деле она предшествовала Октябрьской революции; промышленное развитие конца 19 века привело к тому, что растущее городское население было сосредоточено в небольшом количестве отчаянно перенаселенных городов. В то время как аристократы и директора заводов владели роскошными квартирами и таунхаусами, рабочие жили в фабричных общежитиях, казармах, углу чужой комнаты или «нары и чулана» — кровати и крохотного шкафа, в комнате, разделенной на столько же частей. эти крошечные сегменты, насколько это возможно.
Такие условия жизни не соответствовали социалистическим идеалам большевиков.
Друг и соратник Карла Маркса Фридрих Энгельс, чья семья владела хлопчатобумажной фабрикой недалеко от Манчестера, настаивал на том, что нехватку жилья в этом городе можно решить немедленно путем «экспроприации нынешних владельцев и размещения в их домах бездомных рабочих или рабочих, переполненных в их нынешние дома»[1]. Конечно, в капиталистической Англии этого не могло быть, но после Октябрьской революции большевики применили решение Энгельса к русским городам. Если им везло, прежним хозяевам разрешалось жить дальше в одной или двух комнатах, а в остальных жили чужаки, причем из совсем другого сословия. Как заметил Ричард Стайтс, «два типа людей […] с двух разных планет» теперь делили жизненное пространство[2].
В попытке возродить экономику после катастрофической Гражданской войны была введена так называемая Новая экономическая политика, позволившая развивать смешанную экономику. Крупные фабрики и основные отрасли промышленности остались в руках государства, но теперь был разрешен малый частный бизнес.
Эта мелкая приватизация распространилась на жилье, и дома меньшего размера были возвращены их владельцам. Однако политика «сжатия» — обеспечение максимального использования ограниченной жилой площади — означала, что собственники по-прежнему были вынуждены делить свою жилплощадь с другими, хотя теперь они, по крайней мере, могли взимать арендную плату.
Изначально конечная цель заключалась в том, чтобы люди жили в «домовых коммунах». Их продвигали как по практическим, так и по идеологическим причинам: они были бы дешевле, чем предоставление всем односемейного жилья, и поощряли бы новый общинный образ жизни. Они также освободили бы женщин от домашнего рабства, что было важно, поскольку равенство женщин было центральным элементом социализма. Некоторые из наиболее радикальных коммунистов хотели, чтобы дети воспитывались вдали от родителей, либо в отдельных домах, либо даже в отдельных деревнях. В Советской России этого не произошло, но идеи были воплощены в жизнь русскими эмигрантами в Палестине, а затем и в Израиле в виде кибуцев.
В России действительно возникли идеалистические коммуны, созданные, как правило, студенческой и рабочей молодежью. Немецкий гость в стране в 19В 20-е годы Клаус Менерт столкнулся с одной радикальной коммуной, члены которой были полны решимости искоренить все аспекты опасного индивидуализма: «Если бы коммунар предпочитал носить свое собственное нижнее белье, это было бы охарактеризовано как откат к мрачнейшему капитализму; как предрассудок, порожденный мелкобуржуазной идеологией»[3].
Сталинская эпоха
Вход в сталинскую квартиру Татьяны в Иркутске Когда Сталин стал советским лидером в конце 1920-х годов, произошел огромный идеологический сдвиг. Был положен конец новой экономической политике, а вместе с ней и почти всем формам частной собственности. Тем не менее к концу первой пятилетки приверженность правительства к общинной жизни также закончилась. Одна из причин заключалась просто в том, что в социальных вопросах Сталин был консервативен и конвенционален; он не одобрял вызов коммуны традиционным семейным и гендерным ролям.
Что еще более важно, его стремительная индустриализация привела к огромным социальным потрясениям, которые включали тревожное падение уровня рождаемости и рост «хулиганства». Была надежда, что старомодные семьи будут функционировать как «островки стабильности в море социального хаоса»[4].
Индустриализация потребовала огромного увеличения городского населения, которое необходимо было разместить. Поскольку ресурсы страны в основном направлялись в промышленность, их не оставалось ни на что, кроме примитивного жилья. Несмотря на реабилитацию семьи, свои односемейные квартиры могла иметь только новая сталинская элита. Типом жилья, характерным для сталинской эпохи, была эвфемистически называемая «коммунальная квартира», в которой каждая комната была занята отдельной семьей, каждая из которых делила кухню и умывальник. По крайней мере, один из жителей будет обязан сообщать властям о мнениях и действиях своих соседей. Редко предпринимались попытки пообщаться; женщины не готовили вместе, а неприязнь семей к совместной жизни видна из того, что в большинстве квартир у каждой семьи на стене висело собственное сиденье для унитаза.
Жилые комплексы Хрущевки
После смерти Сталина новый руководитель Никита Хрущев решил разрешить жилищный кризис. Он запустил масштабную жилищную программу, направленную на обеспечение каждой семьи собственной квартирой в течение 12 лет. Он признал, что эти новые квартиры не будут высшего качества, но «вы должны решить; ты строишь тысячу приличных квартир или семьсот очень хороших? И будет ли гражданин довольствоваться приличной квартирой сейчас или ждать 10-15 лет очень хорошей?» [5]. То, что стало известно как «хрущевки», представляло собой почти идентичные сборные железобетонные многоквартирные дома, как правило, пятиэтажные (не было ни технологий, ни денег, чтобы оборудовать лифты, и был предел количества лестничных пролетов, с которыми могла справиться женщина). если она несла тяжелые пакеты с покупками), полные маленьких квартир, в которых могла разместиться только «многофункциональная» мебель: диваны и кресла, которые превращались в кровати, шкафы, скрывающие складные столики.
Ежегодно в хрущевскую эпоху строилось 2,2 миллиона «квартир» (квартир), меняющих как облик советских городов, так и жизнь счастливчиков, — но даже этого было недостаточно для удовлетворения спроса.
Хрущев был свергнут в 1964 году, и Леонид Брежнев занял пост лидера Советского Союза. Жилищная программа продолжалась, и новые технологии означали, что теперь стали возможны лифты, а значит, и небоскребы. Тем не менее, новых квартир по-прежнему не хватало для удовлетворения спроса, а коммунальная квартира оставалась важной чертой городской жизни.
Эпоха Горбачева: разоблачение жилищного кризиса
Масштабы жилищного кризиса публично не признавались до тех пор, пока Горбачев не пришел к власти в 1985 г., когда его политика «гласности» (открытости) выявила масштабы социальных проблем страны. В 1986 году выяснилось, что каждая пятая семья в Советском Союзе, а всего около восьми миллионов человек, стояла в очереди на получение лучшего жилья. В 1987 г. эта цифра возросла до 9 млн.
человек, а в 1989 г. 17% населения по-прежнему проживало в коммунальных квартирах или общежитиях или не имело постоянного места жительства. Молодоженам обычно приходилось начинать семейную жизнь с той или иной группой родителей; в среднем им пришлось бы ждать собственной квартиры 20 лет[6]. Введена обновленная версия хрущевского залога. Теперь к 2000 году у каждой семьи будет своя квартира. Как оказалось, к тому времени Советского Союза уже давно не существует.
Как распределялось жилье гражданам в Советском Союзе? Небольшая сумма находилась в руках местного муниципалитета, но в подавляющем большинстве случаев распределялась по месту работы. Это имело преднамеренный эффект привязки людей к их работе.
В 1989 году были предприняты первые шаги по приватизации жилья: жильцам было предоставлено право покупать свои квартиры по очень низкой цене. Одной из причин этой явной щедрости было облегчение бремени государства по содержанию ветхих и ветхих жилых домов. Арендаторы увидели это, и немногие воспользовались предложением.
Приватизация жилья
Приватизация всего государственного имущества была ключевой особенностью режима Бориса Ельцина, и жилье должно было быть включено в этот процесс. Освобождение государства от бремени содержания было не единственной причиной. Также считалось, что домовладение является «признаком стабильного общества и хорошо функционирующей рыночной экономики»[7]. Это создаст «кадры заинтересованных сторон», которые помогут построить «стабильное, цивилизованное, процветающее общество»[8]. Чтобы побудить неохотных жильцов к приватизации своих квартир, с 1991 им давали их бесплатно — и в качестве дополнительного стимула права аренды тех, кто не смог приватизировать, были бы значительно сокращены. Это сработало. К 1995 году 53% жилья находилось в частной собственности; к 2007 году этот показатель вырос до более чем 70 процентов.
Приватизация привела к уникальной для России форме «выпуска акций». К пожилой женщине, не имеющей иждивенцев, может обратиться кто-то, предложивший ей ежемесячную стипендию до конца жизни, если она завещает этому человеку свою приватизированную квартиру.
В некоторых случаях это работало очень хорошо; мой друг договорился с бывшей актрисой, которая жила в квартире в центре Москвы, и в конце концов унаследовал ее квартиру. Старушка упорно цеплялась за жизнь, а моя подруга заплатила несколько больше, чем она ожидала, но в целом это пошло на пользу им обоим. Однако журналы и газеты пестрели рассказами о пожилых женщинах, жизнь которых оборвали недобросовестные люди, не собиравшиеся дожидаться их смерти, прежде чем они доберутся до их квартир.
Со временем перепродажа и сдача в аренду приватизированных квартир в сочетании с масштабной программой строительства (преимущественно элитного жилья) в крупных городах привели к возникновению большого рынка частного жилья. Большинство людей, у которых не было квартиры для приватизации, каким-то образом находили деньги, чтобы купить ее сразу; существовала ипотечная система, но большинство людей отталкивали как боязнь банковской нестабильности, так и чрезвычайно высокие процентные ставки.
Пошла ли на пользу России приватизация жилья? Положительным моментом является то, что люди, у которых были квартиры, которые они могли бы приватизировать, находятся в уникальном положении, поскольку они получили собственное жилье, не влезая в огромные долги.
Есть также некоторые признаки того, что владение жильем привело к тому, что люди почувствовали, что теперь у них больше интересов в обществе и, следовательно, больше ответственности за местную среду. Однако приватизация привела к тому, что эксплуатационные расходы переложили на людей, которые не всегда могут позволить себе их оплачивать, что привело к увеличению ветхости жилого фонда. По оценке одного российского эксперта по вопросам жилья, ежегодно около 150 000 квартир становятся непригодными для проживания человека[9].].
Поскольку люди могли приватизировать только то жилье, в котором они жили, это закрепило существовавшее ранее неравенство в распределении жилья. Те, у кого были хорошие квартиры, оказались в очень привилегированном положении; те, у кого была только комната в коммуналке, теперь застряли в ней и уже не могли связывать свои надежды на лучшее жилье с медленным продвижением вверх по очереди на получение квартиры. Социальное жилье больше не вариант; он доступен только малоимущим (малоимущим) и определенным категориям людей, например ветеранам войны.
В советское время жилье использовалось как награда, наказание и поощрение. В современной России это во многом вопрос везения.
Как в эту историю вписывается жилищный опыт Татьяны? Ее квартира находится в сталинском доме, поэтому в ней комнаты больше и потолки выше, чем в тех, что строились при Хрущеве и Брежневе.
Не нужна компактная многофункциональная мебель хрущевок; действительно, у Татьяны достаточно места для произведений искусства, украшений и сувениров из путешествий, которые она явно любит. Как и все городское жилье в Советском Союзе, квартира в советское время принадлежала государству, а в поздние сталинские времена была закреплена за отцом; сейчас он приватизирован. Сейчас Татьяна делит его со своим внуком, который учится в Иркутском университете. Как ее семья получила такую приятную квартиру? Как она относится к изменениям, которые произошли в ее жизни? Есть ли у нее ностальгия по советскому прошлому? А что ее внук, родившийся уже после распада Советского Союза, думает о непростой истории своей страны? Вам придется посетить квартиру Татьяны, чтобы узнать!
Посещение квартиры Татьяны включено в экскурсионную программу «Свобода выбора» на всех летних рейсах Беркут Транссибирский экспресс.
Подробности смотрите в маршруте.
Для получения дополнительной информации по теме советского жилья см. д-р Линн Эттвуд, Гендер и жилье в Советской России (Manchester University Press, 2010).
Список ресурсов:
1. Цит. по В.И. Ленин в Избранных произведениях (ИД «Прогресс», 1977).
2. Ричард Стайтс, Революционные мечты (издательство Оксфордского университета, 1989).
3. Менерт К. Молодежь в Советской России (Аллен и Анвин, 1933).
4. Г. В. Лапидус, Женщины в советском обществе (University of California Press, 1979).
5. Н.С. Хущев, Хрущев вспоминает (Андре Дойч, 1974).
6. Дж.Г. Чепмен, «Изменения в советском общественном договоре», в книге Дж. Адама (ред.) Экономические реформы и системы социального обеспечения в СССР, Польше и Венгрии. (Издательство Св. Мартина, 1991).
7. Р. Вихавайнен, «Жилье в России – политика и практика», доклад на семинаре в Санкт-Петербурге 24-26 апреля 2005 г.
8.
П. Старобин и О. Кравченко, «Средний класс в России», Businessweek online, 16 октября 2000 г.
9. М. Хаммер, «Россия: нерегулируемая приватизация жилья в России угрожает усугубить жилищный кризис», интервью с Е. Шоминой в Global Tenant: Ежеквартальный журнал Международного союза арендаторов, июнь 2007 г.
Планировка «Брежнев» — описание и типовые варианты (49 фото): ремонт 1-й комнаты
«Брежневка» — типовые дома, появившиеся в нашей стране в середине 1960-е годы правления Л.И. Брежнева и заменили «хрущевки». Это очень распространенный тип жилья, не требующий описания: нет ни одного города, где нельзя было бы увидеть постройки такого типа.
Особенности
«Брежневки» активно застраивались до конца 1980-х годов, но и в наши дни иногда этот тип жилья берется за основу строительства.
В самом начале, как и «хрущевки», «брежневки» имели 5 этажей, но постепенно стали появляться 9, 10-этажные и даже 14- и 17-этажные дома.
«Брежневки» строились в основном из панелей, реже встречаются кирпичные и блочные варианты.
Достоинства и недостатки
«Брежневка» — улучшенная версия «хрущевки». Квартиры стали больше. Если минимальная площадь «хрущевки» была 31 кв. м, то в «брежневке» она увеличилась до 33 кв. м. Максимальная площадь в 4-комнатных квартирах может достигать 76 кв. м
В многоэтажных домах в них появились лифты и мусоропроводы, что значительно повысило комфортность проживания в этих домах. В то же время засорение мусоропроводов может вызвать появление неприятных запахов, насекомых и грызунов.
Если говорить о проекте, то в «брежневке» несущими стали не только наружные стены дома (как в «хрущевке»), но и стены между квартирами, что, с одной стороны, придавало зданию большую стабильности, а с другой, затрудняло перепланировку, т.
к. Несущие стены запрещены.
Еще одним преимуществом стало то, что ванная комната стала отдельной. В совокупности он остался только в некоторых двухкомнатных квартирах. Несомненно, это был большой плюс. Высота потолков в «хрущевках» была около 2,4 метра, в «брежневках» — 2,7 метра. Площадь лестничных клеток также стала немного больше.
Если в «хрущевке» одна из комнат была проходной, то в в «брежневке» все комнаты стали изолированными и могли выходить на разные стороны . Вместо балконов иногда появлялись лоджии. Несомненно, это был большой плюс.
Впрочем, кухня если и увеличилась в размерах, то ненамного. В среднем, как и в хрущевках, их площадь составляла 6-7 квадратных метров. Дворы также остались довольно благоустроенными и уютными.
Если говорить о недостатках «брежневки», то можно сказать, что в домах этого типа, построенных из тонких панелей, зимой было холодно, а летом жарко. Кроме того, эти панели обладают плохими звукоизоляционными свойствами.
Также в «хрущевке» были встроенные шкафы и кладовки, а в «брежневке» они остались только в коридорах.
Количество комнат
Если говорить о количестве комнат, то в «Брежневке» есть как однокомнатные, так и двухкомнатные, трехкомнатные и даже четырехкомнатные квартиры. Совмещенный санузел теперь можно встретить только в «однушках», проходной комнаты не было.
Увеличилась общая площадь квартир:
- Средняя площадь 1-комнатной квартиры теперь составляла 27-34 кв. м. (31-33 кв.м. в «хрущевке»).
- 2-комнатная квартира площадью 38-53 кв. м. Для сравнения: в «хрущевке» площадь 2-х комнатной квартиры была около 30-46 кв. м
- 3-х комнатная квартира имела среднюю площадь 49-67 кв. м. В «хрущевках» — 55-58 кв. м
- 4-комнатная квартира площадью 58-76 кв. м. В «хрущевках» не было 4 комнат.
Соответственно увеличились размеры комнат:
- Минимальная площадь гостиной теперь 15 кв.
м. В «хрущевке» гостиная была от 14 кв. м - Минимальный размер спальни по сравнению с «хрущевкой» не изменился и составил 8 кв. м
- Детская комната, как и спальня, была не менее 8 квадратных метров. м. В «хрущевках» детская была от 6 кв. м
- Кухня осталась такой же, как в хрущевке, 6-7 кв. м
Можно ли улучшить?
Несмотря на свои достоинства, «Брежневки» по своему уровню и комфортности проживания в них все же не дотягивают до современных домов. Чтобы сделать квартиру более уютной, одного косметического ремонта может быть недостаточно. А вот в «брежневке» можно сделать удачную перепланировку. Однако важно делать это правильно и правильно. По правилам любые существенные изменения должны быть зафиксированы в техническом паспорте на квартиру.
Это можно сделать, обратившись в специальную инспекцию с документами.
В противном случае собственнику грозит административный штраф, и продать квартиру ему будет сложно.
Необходимо соблюдать несколько правил:
- При перепланировке нельзя затрагивать несущие стены, так как это может привести к обрушению дома.
- Нельзя переносить санузел в другое место во избежание затопления помещений.
- Запрещается использовать чердачное помещение и объединять его с квартирой.
- Жилплощадь делать меньше 8 кв. м
- Нельзя менять, сносить перекрытия между этажами.
- Запрещается менять местами газовые и водопроводные трубы.
- Переносить радиаторы из комнаты на балкон нельзя: иначе жителям соседних квартир в комнатах будет холодно.
Есть изменения, не требующие согласования:
- В квартире можно сделать косметический ремонт.

- Заменить радиаторы отопления на другие, похожие на старые.
- Не ставить кондиционер.
- Можно немного изменить место газовой плиты на кухне.
Другие варианты перепланировки обязательно должны быть согласованы в специальной инспекции, а во избежание ошибок лучше доверить это дело специалистам, знающим все нюансы. Лучше всего делать перепланировку в 3-х комнатной квартире, но даже с 2-х и 1-х комнатной перепланировка возможна:
- Часто в коридоре есть встроенные шкафы — их можно убрать, и это немного увеличит площадь комнаты.
- Можно совместить балкон или лоджию с комнатой.
- Хороший вариант – соединить комнату с кухней, сделав в стене проем в виде красивой арки. Это очень удобно и функционально. В некоторых случаях можно даже снести стену, получив в результате квартиру-студию. Зонирование лучше делать с помощью цвета, чтобы отделить кухню от гостиной.
- В «брежневке» санузел раздельный, но его размеры крайне малы, и это может доставлять дискомфорт владельцам квартир.
Иногда для увеличения пространства разумно совместить туалет и ванную. В результате стиральная машина сможет поместиться в ванную комнату, а на кухне будет больше свободного места. Кроме того, есть возможность расширить пространство санузла за счет площади коридора. Коридор, конечно, станет уже, но места в ванной станет больше. При этом можно изменить расположение двери, ведущей в ванную комнату, перенести ее в коридор и повесить зеркало, сэкономив таким образом пространство. - Есть возможность разделить одну большую комнату с двумя окнами на две маленькие. При перепланировке нужно учитывать материал, из которого сделана «брежневка», и расположение комнат в квартире.
- В кирпичном доме проще сделать перепланировку, так как несущих конструкций меньше, чем в панельном
- В панельном доме, в котором много несущих конструкций, самым популярным и простым видом перепланировки является санузел.
- Квартира «распашонка» (в которой комнаты расположены по разные стороны от подъезда) дает множество возможностей для перепланировки.
Чаще всего гостиную объединяют с кухней, либо из одной большой комнаты делают две маленькие комнаты. - Сложнее всего сделать перепланировку в так называемой квартире-«вагончике». Здесь комнаты имеют прямоугольную форму, одна из них проходная. Этот дизайн похож на вагон поезда и более характерен для «хрущевок», но иногда встречается и в «брежневках».
Удачные примеры
Удачная перепланировка способна преобразить квартиру и сделать жизнь ее обитателей более удобной и комфортной. На плане ниже представлен пример такой планировки «Брежневки» с 3 комнатами.
Ванную комнату соединили с туалетом, а пространство расширили за счет коридора. Дверь в ванную переместилась на другое место. То же самое сделали с дверью на кухню, в результате стало больше места. Коридор стал намного меньше, но он переходит прямо в гостиную, и из-за этого нет ощущения замкнутого пространства.
Две комнаты по 14 кв. м, которые были изначально, одну из них сделали большой гостиной. Для экономии места в помещении привычные двери заменили на «складные».
На переднем плане нарисована еще одна комната в 10 квадратных метров. м и небольшая кладовая. На заднем плане видно, что одну большую комнату разделили на две маленькие и убрали кладовку.
Кроме того, на плане видно, что положение двери на лоджии изменилось. Она начала открываться в другую сторону.
Для создания квартиры в определенном дизайне необходимо не только сделать правильную перестановку, косметический ремонт, но и грамотно расставить мебель. Если говорить о мебели в комнате на заднем плане, то она тоже достаточно удачно расположена.
В ванной для экономии места обычная ванна заменена на угловую.
На кухне есть стол со стульями, плита и кухонные шкафы. В гостиной, состоящей из двух комнат, есть небольшое количество мебели: телевизор, кресла с журнальным столиком, диван и шкаф.
Вместо одной комнаты сделали две небольшие комнаты — спальню и детскую. В детской есть шкаф для одежды, кровать и письменный стол со стулом. В спальне только кровать и шкаф. Стена между этими двумя комнатами необычного дизайна, выполненная в виде «змейки».
Подробнее о компоновке «брежневки» вы узнаете из следующего видео.
Мы потрясли мир | Журнал Air & Space
Отец автора, Никита Хрущев, в 1959 году. Голландский национальный архив Вечером 4 октября 1957 года мой отец ждал телефонного звонка. Главный конструктор Сергей Королев должен был позвонить с космодрома Тюратам (позднее переименованный в космодром Байконур) в Казахстане, чтобы сообщить об итогах запуска первого в мире искусственного спутника Земли.
В тот же день мой отец был в Киеве, Украина, по военным делам. Он присутствовал на демонстрации переправы танков через Днепр, затем обсуждал с некоторыми советскими генералами судьбу министра обороны маршала Георгия Жукова. (Жукова подозревали в заговоре с целью захвата власти, и перед тем, как отправить в отставку титулованного генерала Второй мировой войны, политические лидеры заручились поддержкой высших генералов. Все генералы согласились с планом.)
Вечером того же дня в Мариинском дворце , ныне официальная резиденция президента Украины, мой отец сидел за обеденным столом, разговаривая с украинскими лидерами. Я уселся на стул в конце стола, не обращая особого внимания на разговор. Было поздно, все устали, но отец не спешил прощаться. Около полуночи дверь приоткрылась, и секретарь попросила отца ответить на телефонный звонок. Когда он вернулся в комнату, он улыбался, и я сразу понял, что запуск спутника прошел успешно.
— Минуту назад произошло выдающееся событие, — сказал мой отец в комнате голосом, который не мог полностью скрыть своего восторга.
«Мне позвонил Королев и сообщил, что два часа назад искусственный спутник был выведен на орбиту».
Имя Королев ничего не говорило украинскому руководству. Отец начал говорить о ракетах, инженерах и наших достижениях. Украинцы вежливо соглашались, но особо не интересовались. Они хотели вернуться к прерванным телефонным звонком разговорам о сельском хозяйстве, финансах и других вопросах региона.
Секретарша снова вошла в комнату, молча включила коротковолновое радио в углу и настроила его. Теперь из динамиков пошли сигналы спутника: бип… бип… бип. Отец внимательно слушал, затем сигналы постепенно становились тише, когда спутник уходил за горизонт. Сессия закончилась, как и разговор. Отец извинился, сказал, что уже поздно, и пошел спать.
Автор, отец которого был первым секретарем ЦК КПСС с 1953 по 1919 гг.64 года, отдыхает в своем кабинете в Университете Брауна в Провиденсе, Род-Айленд. Институт международных исследований Уотсона На следующий день «Правда» и другие советские газеты опубликовали на первой полосе 50-строчное официальное сообщение информационного агентства ТАСС в двух колонках.
Он начинался так: «Проектирование и разработка искусственных спутников на околоземной орбите велись в Советском Союзе несколько лет».
Инженеры приступили к проектированию спутника в январе 1956 года. Планировалось запустить его с помощью межконтинентальной баллистической ракеты Р-7, над которой группа Королева работала с 1954. Как и более поздние советские ракеты, Р-7 в первую очередь предназначалась для военных целей, а для космических исследований — в качестве вторичной. 26 февраля 1956 года мы с отцом (я был студентом Московского электроэнергетического института, по-американски инженерного вуза) посетили конструкторское бюро Королева в Подлипках и осмотрели ракеты, в том числе полноразмерный макет ракеты Р. -7. В завершение визита мы выслушали краткий доклад о возможности запуска Р-7 искусственного спутника Земли. Пристрастившись к технологическим новинкам, отец этим заинтересовался, но предупредил Королева: «Главный приоритет — безопасность страны».
ТАСС в то время сообщал, что запуски спутников запланированы в связи с Международным геофизическим годом, всемирной программой скоординированных научных наблюдений за геофизическими явлениями.
Советские газеты даже публиковали частоты спутниковых радиопередатчиков. Но все отчеты были расплывчатыми, без упоминания дат запуска. Никто в остальном мире не обратил бы внимания на такие заявления; все за пределами Советского Союза знали, что Соединенные Штаты скоро запустят первый в мире спутник.
Королев боялся, что американцы могут опередить. Он особенно встревожился, когда узнал, что проведенные армией США в июле 1957 года испытания баллистической ракеты «Юпитер» прошли успешно. После этого он думал, что американцы откроют дверь в космос еще до того, как его Р-7 полетит. Королев торопился. Заседание комитета МГГ было назначено на начало октября, когда американские ученые намеревались рассказать о своих планах в отношении космоса.
Королев считал, что американцы будут держать свои планы в секрете до тех пор, пока им не удастся запустить спутник, поэтому он приложил все усилия, чтобы опередить американцев. В августе и сентябре его ракета дважды успешно запускалась.
Королев заставил всех в своей команде работать круглосуточно. Он хотел запустить спутник до открытия заседания МГГ. И он уложился в срок.
Запуск спутника попал на первую полосу «Правды», но едва. Рассказ занимал столько же места, сколько отчет о визите маршала Жукова в Югославию, и занимал менее престижное место на странице. Не было громких заголовков, не было восторженных комментариев. На самом деле, кроме официального аккаунта ТАСС, там не было ни строчки о событии, поразившем весь остальной мир. Как такое могло случиться?
Объяснение очень простое. Мы с отцом и все советские люди думали, что это естественно, что шаг за шагом мы опережаем американцев. Ведь мы, а не американцы, ввели в строй первую в мире атомную электростанцию. Это был советский МиГ, прототип нового истребителя конструкции А.И. Микояна, установившего ряд мировых рекордов в 1950-е годы. Советский Ту-104 был самым экономичным авиалайнером в своем классе. В результате достижение запуска на орбиту первого в мире спутника вызвало у советских граждан гордость и восторг, но не удивление.
В Советском Союзе было издано много популярных книг о будущих космических станциях и полетах на Луну и Марс. Космические путешествия казались вполне осуществимыми, и читатели этих книг, включая меня, с нетерпением ждали этого. Мы просто не могли понять, почему инженеры так долго тянули.
5 октября мировая пресса не могла писать ни о чем, кроме «советской красной луны». В тот день в Москве все поняли, что произошло на самом деле, каким научным и пропагандистским достижением был запуск: первого в мире искусственного спутника. 6 октября «Правда» с опозданием на день посвятила космосу всю свою первую полосу. Вверху был огромный заголовок: «Первый в мире искусственный спутник был создан в Советском Союзе!» За ним последовали комментарии со всего мира с фотографиями людей, слушающих сигнал Sputnik по радио. На 2-й странице газеты напечатана статья о космических исследованиях и планах на будущее.
Через пару дней пришла рассекреченная фотография спутника, представляющего собой 84-килограммовую (184-фунтовую) сферу с четырьмя хлыстообразными антеннами.
Тогда газеты сообщали, сколько тысяч километров преодолел спутник, параметры его орбиты, где и в какое время люди могли его увидеть на небе. 12 октября «Правда» опубликовала фотографию следа спутника: тонкая яркая полоска в кромешно-черном ночном небе над Мельбурном, Австралия.
Чего не сообщали газеты, так это имени человека, проектировавшего ракету, начальника конструкторского бюро, где создавался спутник. В то время никто не знал имени Сергея Королева; это было засекречено. В КГБ знали, что на самом деле незачем держать в секрете имя конструктора, но, как сказал мне шеф КГБ Иван Серов, ресурсы противника ограничены, так что пусть тратят силы на раскрытие «несекретных» тайн, а что касается настоящие тайны, руки врага были слишком коротки, чтобы до них добраться.
В газетах начальник конструкторского бюро назывался «Главный конструктор», а Королев подписывал свои статьи в «Правде» «Инженер Сергеев». Но мир отчаянно пытался узнать его личность. Нобелевский комитет решил присудить награду «Главному конструктору» без опроса ученых мира, но сначала ему нужно было имя человека.
Комитет запросил его у Советского правительства.
Мой отец должен был подумать над своим ответом. Дело было сложным, и его заботила не конфиденциальность. Совет главных конструкторов ведал всеми космическими проектами; главой совета был Королев, но и другие главные конструкторы — более десятка — считали себя не менее значительными. После «Спутника» все они были в равной степени удостоены Ленинской премии и других советских наград.
Отец понимал, что Главные конструкторы — люди честолюбивые и завистливые. Если бы Нобелевский комитет присудил награду только Королеву, думал отец, его члены пришли бы в ярость. Они отказались бы работать с Королевым. Хорошо организованная команда развалится, как карточный домик, и надежды на будущие космические исследования и разработку ракет рухнут. Это, в свою очередь, поставит под угрозу безопасность страны. По мнению моего отца, можно было приказать ученым и инженерам работать вместе, но нельзя заставить их что-то создавать.
В конце концов, мой отец сказал Нобелевскому комитету, что все советские люди отличились в работе над спутником и все они заслужили награду.
Конечно, Королев обиделся, но промолчал. Остальные Главные конструкторы спокойно одобрили решение моего отца. Нобеля присудили другому.
Но, несмотря на усилия, которые предпринял мой отец, результат, которого он опасался, был достигнут. Другие конструкторы выражали все большее и большее недовольство тем, что Королев получает всю огласку, пусть и анонимно. В их «секретном» мире не было никакой тайны, кто стоит за званием «Главный конструктор», написанным с заглавной буквы.
Первым взбунтовался Валентин Глушко, конструктор двигателей, более значимый в научных кругах, чем Королев. (Сегодня это жидкостный двигатель Глушко РД-170, который летает на российских и некоторых американских ракетах.) На одном из заседаний совета Глушко сказал: «Мои двигатели могут отправить в космос любой кусок металла». Королев обиделся; его ракета не была просто куском металла, и после успеха со спутником он уже не считал Глушко равным себе. Спор замяли, но обида осталась. Вскоре Глушко предложил свои услуги другим советским ракетостроителям, Михаилу Янгелю и Владимиру 9.
0003
Челомей — соперники Королева. Королев в ярости назвал Глушко змеей в траве и отказался снова с ним сотрудничать.
Даже мой отец не смог их помирить. Технически Глушко по госзаказу продолжал конструировать двигатели для Королева, но работа под давлением не ладилась. Без всех усилий Глушко Королеву пришлось нелегко; в результате он — и Советы — проиграли гонку на Луну американцам, несмотря на первоначальный триумф спутника.
Перевод Людмилы Хоменко Chillico
Рекомендуемые видео
Промышленное строительство Речь 1954 г. — Архис
О широком внедрении индустриальных методов, повышении качества и удешевлении строительства
Выдержки из выступления Никиты Хрущева на Всероссийском совещании строителей, архитекторов, рабочих строительных материалов и производства строительного и дорожного машиностроения и работников проектных и научно-исследовательских организаций 7, 19 декабря54
Товарищи!
Прошло много времени с тех пор, как мы в последний раз проводили Национальную конференцию строителей, и теперь есть большая потребность в такой конференции.
Я думаю, что настоящее собрание пойдет на пользу не только строительству, но и всей нашей работе как в промышленности, так и в других отраслях нашего народного хозяйства. […]
Актуальные вопросы индустриализации строительства
[….] В настоящее время существуют условия для широкой индустриализации строительства. Что это за условия? Прежде всего, у нас появился большой резерв квалифицированных рабочих и специалистов. В наших строительных организациях и промышленности строительных материалов работают многие тысячи прекрасных мастеров и новаторов. У нас есть заводы, способные обеспечить наших строителей современным оборудованием, облегчающим работу и повышающим производительность. У нас есть расширяющиеся производственные мощности, которые позволяют нам поставлять строительной отрасли быстровозводимые железобетонные конструкции, детали и строительные материалы. […]
Широкое расширение производства сборных железобетонных конструкций и деталей даст огромный экономический эффект.
Наши строители знают, что до недавнего времени шли споры о том, по какому из двух путей идти в строительстве – использовать сборные конструкции или монолитный бетон. Не будем называть имен и упрекать тех работников, которые пытались направить нашу стройиндустрию на использование монолитного бетона. Я думаю, что эти товарищи теперь сами понимают, что позиция, которую они заняли, была неправильной. Теперь же, кажется, всем ясно, что надо идти по более прогрессивному пути – пути использования сборных железобетонных конструкций и деталей. (Аплодисменты.)
Какие последствия применения монолитного бетона в строительстве? Повышенная грязь на строительных площадках. Использование пресс-форм всех видов и форм. Ненужный расход железа. Расход цемента. Потери инертных материалов и бетона.
Каковы последствия использования готовых деталей? Использование сборного железобетона позволит изготавливать детали так, как это делают в заводостроении, — даст возможность перейти на заводские методы строительства.
(Аплодисменты.) […]
Стеновые панели и секции потолка/пола должны быть декорированы в заводских условиях. Эти изделия должны поступать на строительную площадку уже готовыми, полностью готовыми к установке. Иначе какая выгода от использования заводского изготовления, если мы изготовим деталь на заводе, установим ее на 8-м этаже, а потом начнем думать, как почистить или доработать ее поверхность?
Бетонные конструкции должны быть легкими, без лишнего веса. […]
Кирпич, основной строительный материал, всегда использовался и продолжает использоваться в тех случаях, когда строительство в основном ведется вручную. В таких случаях большое значение имеет вес материала, использованного в стенах, вес кирпича. В наш век — при наличии бетона, электродвигателей, кранов и других механизмов — у нас нет оправдания тому, чтобы продолжать использовать старые методы работы. Всем известно, сколько времени и труда нужно для изготовления кирпича. Глину нужно выкапывать из каменоломен, обрабатывать глинобитной машиной для производства кирпича-сырца.
Затем этот материал сушат, загружают в печь, обжигают, а готовые кирпичи переносят на склад, вывозят на строительную площадку, поднимают на леса и укладывают на стену. И все это нужно проделывать много раз, манипулируя каждым кирпичиком, как кусочками мозаики.
Не лучше ли вместо кирпича сделать бетонные секции стен такого размера, который будет удобен для имеющихся в нашем распоряжении грузоподъемных механизмов – т.е. весом в две, три, пять тонн? Преимуществом использования секций является высокий уровень производительности и высокая производительность. Не случайно во многих других странах в строительстве широко используется не кирпич, а бетон. […]
О индустриализации строительства не может быть и речи, если мы будем продолжать увеличивать число строительных организаций. Все, конечно, понимают, что не в силах мелких и, следовательно, слабых строительных организаций применять индустриальные методы работы. Мы должны взяться за решительное укрепление наших строительных организаций.
Без этого не может быть и речи о индустриализации строительства.
Весьма показательно в этом отношении сокращение числа строительных организаций в Москве, где на базе 56 строительных трестов Моссовета и различных министерств и ведомств создана единая организация — Главмосстрой. Когда обсуждалось создание Главмосстроя, много говорилось о том, что Моссовет не справится с такой крупной организацией, и были опасения, что отстранение министерств приведет к срыву плана строительства жилых домов. Можно было предположить, что в первый год существования Главмосстроя возникнут некоторые организационные проблемы, которые могут помешать выполнению плана. Однако все подобные опасения оказались беспочвенными. […]
Наша страна в больших масштабах занимается строительством промышленных предприятий, жилых домов, школ, больниц и других сооружений. Эта программа строительства имеет жизненно важное значение. Мы обязаны значительно ускорить, улучшить качество и удешевить строительство. Для этого есть только один путь – путь самой широкой индустриализации строительства.
Устранение недостатков конструкции; улучшение работы архитекторов
[…] Учитывая масштабы, в которых мы строим промышленные предприятия, жилые дома, школы, больницы, объекты культуры и быта, любые задержки в проектных работах недопустимы. Вся наша страна покрыта стройками. Советское государство ежегодно выделяет на строительство многие миллиарды рублей. Буквально каждый из нас заинтересован в том, чтобы строительные работы шли гладко. Недопустимо, чтобы строительные работы часто затягивались из-за нерасторопности наших проектных организаций, а иногда проектирование даже простых зданий затягивалось на два года и более.
Интересы индустриализации строительства диктуют необходимость перестроить работу наших проектных организаций, сделать основным элементом их работы изготовление типовых проектов и использование уже существующих типовых проектов. […]
Многие работники проектных и проектных организаций недооценивают важность типового проектирования.
Доказательством этого служат следующие факты.
Из 1100 строительно-проектных организаций в нашей стране лишь 152 частично занимаются изготовлением типовых проектов. с 19С 51 по 1953 г. на изготовление типовых образцов уходило не более одного процента средств, выделяемых на конструкторские работы. В 1953 г. по типовым проектам было построено лишь 12% от общего объема возведенных промышленных зданий. И в этом году произошло лишь небольшое улучшение ситуации. […]
Все они [архитекторы] согласны с тем, что использование типовых проектов значительно упростит и улучшит качество строительства, но на практике многие архитекторы, инженеры, а в промышленном строительстве и технологи тоже стремятся создавать только свои от дизайнов.
Почему это происходит? Одной из причин, очевидно, является то, что в том, как мы обучаем наших архитекторов, есть изъяны. Руководствуясь примером великих мастеров, многие молодые архитекторы, едва переступив порог своих архитектурных институтов или как следует встав на ноги, захотят спроектировать не что иное, как уникальные здания, и поспешат воздвигнуть себе памятник.
Если Пушкин создал себе памятник «нерукотворный», то многие архитекторы считают, что они просто обязаны создать себе «рукотворный» памятник в виде здания, построенного по уникальному проекту. (Смех, аплодисменты.) […]
Почему в настоящее время используется 38 типовых проектов школ? Это целесообразно? Причина этого, очевидно, в том, что многие рабочие подходят к своей работе в строительстве, не заботясь об экономии.
Мы должны отобрать небольшое количество типовых проектов жилых домов, школ, больниц, детских садов, детских садов, магазинов и других зданий и сооружений и вести программы массового строительства только по этим проектам в течение, скажем, пяти лет. По истечении этого периода мы проведем обсуждение и, если не появятся лучшие проекты, продолжим в том же духе следующие пять лет. Что не так в этом подходе, товарищи?
[…] Хочу поделиться с вами своими впечатлениями и комментариями о том, как работают архитекторы. Прежде всего хочу обратиться к президенту Академии архитектуры товарищу Мордвинову.
Товарищ Мордвинов, мы часто встречались в Москве по рабочим вопросам. Я знаю вас как хорошего организатора: вы показали свои способности в проекте строительства высокоскоростного конвейера при благоустройстве Большой Калужской улицы. Тогда впервые велось строительство скоростного конвейера, и в нем участвовал товарищ Мордвинов. Однако после войны товарищ Мордвинов претерпел изменения. Он стал другим человеком. Как в песне из оперы «Королевская невеста»: «Это не тот Григорий Грязнов, которого я знала!» (Смех, аплодисменты).0021 Общей чертой строительства в этой стране является растрата ресурсов, и в этом большая доля вины лежит на многих архитекторах, которые используют архитектурные излишества для украшения зданий, построенных по разовым проектам.
Такие архитекторы — камень преткновения на пути индустриализации строительства. Чтобы строить быстро и успешно, мы должны использовать в нашем здании типовые проекты, а это, видимо, не по вкусу некоторым архитекторам…
Если архитектор хочет идти в ногу с жизнью, он должен знать и уметь применять не только архитектурные формы, орнаменты и различные декоративные элементы, но и новые прогрессивные материалы, железобетонные конструкции и детали, и, прежде всего, должен быть специалистом по экономии средств в строительстве.
И вот за что на конференции критиковали товарища Мордвинова и многих его коллег – за то, что они забыли о главном, т. фасадов, допуская множество излишеств.
Фасады жилых домов иногда увешаны множеством всевозможных излишних украшений, указывающих на отсутствие вкуса у зодчих. Строители иногда даже испытывают трудности с выполнением этих украшений.
Большое влияние в этом вопросе оказало строительство высотных зданий. При проектировании таких зданий архитекторы в основном интересовались созданием силуэта и не задумывались о том, сколько будет стоить строительство и эксплуатация этих зданий.
Придание стене сложного контура просто в целях благоустройства приводит к излишним расходам на эксплуатацию здания из-за больших теплопотерь. Вот почему ежегодный перерасход на топливо для здания на Смоленской площади, например, составляет 250 000 рублей. Это для одного здания отдельно.
Приведу некоторые цифры пропорций площадей этажей в высотных домах.
Общая площадь: 100%.
Здание на Красных воротах
рабочие помещения 28,1%
подсобные помещения 23,1%
инфраструктура и услуги 14,9%
строительство 33,9%Здание на Смоленской площади
рабочие помещения 30%
подсобные помещения 24%
инфраструктура и услуги 11%
строительство 35% переданы так называемым «строительным конструкциям». Под «строительными конструкциями» мы подразумеваем стены и другие конструкции. В высотных зданиях такое пространство намного превышает норму в результате акцента на придании зданиям впечатляющего силуэта. Это пространство, на которое можно только смотреть; не для жизни и работы. (Оживленная реакция, смех, аплодисменты.) […]
Когда говорил тов. Мордвинов, я спросил его о стоимости высотной гостиницы «Украина», архитектором которой он был. Надо сказать, что тов. Мордвинов не отстает, а идет в ногу с теми, кто допускает излишества в архитектурном убранстве зданий. Стоимость одного квадратного метра площади, занимаемой под основные функции в гостинице «Украина», составляет 175 процентов от стоимости такой площади в гостинице «Москва».![]()
Неужели допустимо, что в одном и том же городе – Москве – разница в стоимости строительства жилых домов по проектам разных авторов составляет 600-800 рублей за каждый квадратный метр жилой площади. […]
Некоторые архитекторы страстно любят добавлять шпили на вершины зданий, что придает этой архитектуре церковный вид. Нравится ли вам силуэт церквей? О вкусах спорить не хочу, но для жилых домов такой внешний вид излишен. Неправильно использовать архитектурное убранство, чтобы превратить современный жилой дом в нечто, напоминающее церковь или музей. Это не создает дополнительных удобств для жильцов, а лишь удорожает эксплуатацию здания и удорожает его стоимость. И все же есть архитекторы, которые этого не учитывают.
Архитектор Захаров, например, представил планы застройки Большой Тульской улицы в Москве со строительством домов, очертания которых мало отличаются от церквей. На просьбу объяснить причины, по которым он это делает, он ответил: «Наши проекты подходят для высотных зданий; мы должны показать силуэты зданий».Вот что, оказывается, больше всего волнует товарища Захарова: ему нужны красивые силуэты, а людям нужны квартиры. У них нет времени любоваться силуэтами; им нужны дома, чтобы жить! (Аплодисменты). В своих проектах домов на Люсиновской улице Захаров решил поставить скульптуры по углам своих домов, начиная с 8-го этажа и выше. На верхнем этаже он срезал углы, а в этих косых углах поставил окна, снаружи которых на подоконниках должны были стоять скульптуры. Пятистенная комната с угловым окном неудобна для проживания, не говоря уже о том, что жители этой комнаты должны всю жизнь пялиться на спину скульптуры. Конечно, жить в такой комнате не особо приятно. Хорошо же, что эти дома так и не были построены и что тов. Захарова удержали от его искусства.
И все это называется архитектурно-художественной отделкой зданий! Нет, товарищи, это архитектурное извращение, приводящее к порче материалов и к ненужной трате ресурсов. Московские организации приняли правильное решение, освободив товарища Захарова от должности руководителя архитектурной мастерской.Но для блага всех нас это нужно было сделать намного раньше. […]
Серьезные ошибки проектных организаций и отдельных архитекторов во многом объясняются неправильными указаниями Академии архитектуры и многих ведущих архитекторов. Подумайте о том, какие указания давались до недавнего времени:А.Г. Мордвинов, президент Академии Архитектуры, в статье «Художественные проблемы в советской архитектуре», опубликованной в «Архитектуре» № 1 (1945 г.), пишет:
«Архитектура служит цели удовлетворения эстетических запросов народа… Создание важных произведений архитектуры требует строительных объемов, не продиктованных прямой практической необходимостью (портики, монументальные залы, башни)… Сомневаюсь, что найдется хоть один город, который, если хочет быть красивым, может обойтись без высотных композиций.
Профессор А.В. Бунин в статье «Об использовании городского наследия в послевоенном восстановительном строительстве», также опубликованной в вышеуказанном сборнике, утверждает:
«Для украшения города нужны целые здания — в том числе с куполами и башнями.– которые не оправдываются никакой утилитарной функцией… Советский город переживает кризис вертикального развития… Городские центры с их общественными зданиями, башнями и купольными сооружениями должны быть уникальными конструкциями, не прибегающими к какой-либо стандартизации»9.0003
Я мог бы привести еще много примеров таких высказываний. […]
Некоторые архитекторы пытаются оправдать свои неправильные принципы и излишества в своих проектах ссылками на необходимость борьбы с конструктивизмом. Но борьба с конструктивизмом — это флаг, которым размахивают, чтобы скрыть растрату государственных ресурсов.
Что такое конструктивизм? Вот как, например, определяет это направление Большая советская энциклопедия: «Конструктивизм… заменяет художественное творчество «исполнением построений» (отсюда и название «конструктивизм»), т. е. голым техничизмом. Публично призывая к функциональной, конструктивной «целесообразности» и «рациональности», конструктивисты на самом деле двигались в направлении эстетического любования формой, оторванной от содержания… Следствием этого был тот антихудожественный, депрессивный «коробочный стиль», который характерен для современной буржуазной архитектуры… Образцы конструктивизма подвергались резкой критике во многих инструкциях и постановлениях партии…» (Большая советская энциклопедия, 1953, т.22, с. 437)
Это определение конструктивизма, конечно, не является исчерпывающим. Но и эта характеристика конструктивизма показывает несостоятельность некоторых зодчих, которые, прикрываясь фразами о борьбе с конструктивизмом, на деле приносят в жертву фасадам, т. е. форме, удобству внутренней планировки и эксплуатации здания, и тем проявляют пренебрежение к насущным нуждам людей.
Некоторые архитекторы, выступающие за необходимость борьбы с конструктивизмом, виновны в обратном: украшают фасады зданий излишними, а иногда и вовсе ненужными декоративными элементами, требующими затрат государственных средств.
Здания, не имеющие башен, надстроенных портиками, колоннами или фасады которых не украшены элементами сценических декораций, эти архитекторы называют «коробками»; и они обвиняют их в рецидиве конструктивизма. Таких архитекторов, пожалуй, можно было бы назвать «конструктивистами наизнанку», поскольку они сами находятся на скользком пути к «эстетическому любованию формой, оторванной от содержания».[…]
Борьба с конструктивизмом должна вестись разумными средствами. Мы не должны увлекаться архитектурным декором или эстетическим украшением, а также не должны венчать наши здания совершенно неоправданными башнями и скульптурами. Мы не против красоты, но мы против излишеств. Фасады зданий должны иметь красивый и привлекательный внешний вид, а это должно достигаться за счет соблюдения пропорций всего здания, стройности оконных и дверных проемов, удачного расположения балконов, правильного использования фактуры и цвета облицовки. материалы, правильное представление стеновых частей и конструкций в зданиях из крупногабаритных секций и панелей. […]
В этой связи хочу рассказать о впечатлениях, которые у нас сложились после нашей конференции в городе Свердловске. Свердловск — большой красивый город, в котором ясно видна мощь Советского Союза. Здесь есть важные фабрики, производящие прекрасное оборудование. Но когда дело доходит до городского строительства и благоустройства, у этого крупного центра есть несколько серьезных недостатков.Например, при реконструкции здания горисполкома главный фасад был дополнен башней и шпилем. Строительство одного только шпиля обошлось почти в два миллиона рублей, а реконструкция всего здания обошлась в девять миллионов. Большая часть этих расходов, вероятно, была связана с работами по подготовке фасада высотной части здания и возведению башни. Денег, потраченных на строительство шпиля, хватило бы на строительство двух школ на 400 учеников каждая.
На одной из улиц Свердловска стоит большой пятиэтажный дом.– «Это мельница, – объяснил нам секретарь обкома тов. Кутырев, а потом добавил: – Но мы хотим построить новую мельницу и превратить это здание в гостиницу». это — как?» — спросили мы его.
– Да, – сказал тов. Кутырев. «Мы планируем превратить его в гостиницу».
– «Но зачем перестраивать мельницу под гостиницу?» – сказали мы ему. «Не лучше ли построить новую гостиницу?»
Судите сами. Есть ли смысл переоборудовать здание, которое в настоящее время используется как мельница, в гостиницу, а затем построить совершенно новую мельницу? (Смех, аплодисменты.)
На эти деньги можно построить новую хорошую гостиницу, которая будет лучше и дешевле. Где здравый смысл, где экономическая целесообразность?
Дальше мы продолжили путь вокруг Свердловска. Секретарь обкома сказал:
«Эту мостовую тоже думаем переделать».
— «А что вы хотите с ней сделать?»0021 – «Заасфальтируйте».
Проезжая часть была выложена гранитным булыжником. Он переживет наших внуков, а асфальт не продержится и десяти лет. К чему, спрашивается, желание портить гранитную проезжую часть?
Когда мы подъехали к зданию обкома партии, секретарь обкома объявил:
– «Вот наше здание обкома. Думаем реконструировать.
– «Что за реконструкция? С какой целью?’
– ‘Нам не нравится фасад. Он должен быть полностью изменен».Что подразумевается под «измененным»? Сколько будет стоить модификация шестиэтажного дома? Очевидно, что построить новое здание дешевле, чем реконструировать старое.
Когда слышишь такого рода предложения, невольно вспоминаешь, как Щедрин высмеивал губернатора, снесшего все построенное его предшественником.Оказывается, привычки, высмеянные великим русским сатириком Щедриным, живы среди нас и сегодня! (Аплодисменты.) […]
Повышение качества: важнейшая задача, стоящая перед нашими строителями
Товарищи, особое внимание следует уделить повышению качества строительства. Мы должны строить не просто быстро, а неизменно хорошо и крепко, и мы должны дорожить своей репутацией строителей. Здания должны быть удобными для проживания и удобными в эксплуатации. Плохо построенные здания приходится ремонтировать через короткие промежутки времени, а это означает необходимость тратить дополнительные деньги. Это касается всех видов строительства.
В первую очередь хотелось бы сказать о качестве строительства в жилых домах. Хорошо ли сделаны стены и потолки наших зданий? Я думаю, что они очень хорошо сделаны. В наших жилых домах, школах, больницах и других зданиях стены и потолки устроены так, что будут выполнять свои функции сотни лет. В этом не может быть никаких сомнений, поскольку мы используем железобетон для строительства.Но надо сказать, что отделка зданий часто выполняется плохо. Более того, многие рабочие мирились с явно недобросовестной работой по отделке зданий. Об этом с полной справедливостью говорили многие товарищи на конференции.
В последнее время нам с товарищами Булганиным и Микояном пришлось побывать во многих городах Дальнего Востока, Сибири и Урала. За нами хорошо ухаживали. Что и понятно — учитывая, что мы требовательные гости и имеем право критиковать — и на самом деле делаем даже больше, чем просто критиковать. Поэтому, естественно, они старались обеспечить нам наилучшие условия. (Смех, аплодисменты.) В городе Свердловске мы жили в гостинице. Этот отель был хорошо и крепко сделан. Надо полагать, что нам дали далеко не самые плохие номера. (Смех.) А в этой гостинице мы увидели, что санузел и санузел построены очень плохо, качество отделки плохое. Мы вызвали директора отеля и руководителей города и сказали им: «Посмотрите, какая плохая работа!»
Очевидно, при строительстве не были соблюдены надлежащие стандарты.Плитка плохого качества, уложена небрежно. Трубы в туалетах и ванных комнатах покрылись ржавчиной и были наспех выкрашены какой-то серой краской еще до нашего приезда, при этом на стены еще разбрызгивалась краска. Соединяли эти трубы очень плохо, и я, как бывший сантехник, очень возмущался: даже в дореволюционное время стыки труб в шахте делались лучше и чище, чем в этой гостинице в Свердловске. […]
Строителям нужно сообщить о таких недостатках — а их много — и попросить резко улучшить качество своей работы. Товарищ Юдин, министр промышленности строительных материалов, и другие работники промышленности строительных материалов не должны зазнаваться, а должны учиться у наших друзей в Чехословакии, которые делают прекрасные строительные материалы и детали. (Аплодисменты.) Им тоже есть чему поучиться у ГДР, где производят прекрасную облицовочную плитку. Надо сказать без обиняков, что некоторые товарищи слишком мало учатся у других и, главное, даже не хотят учиться. (Аплодисменты.) […]
Особое внимание следует уделить повышению качества панелей из дерева.Во многих домах оконные переплеты и двери сделаны плохо. А вы знаете, когда кто-то входит в дом, то прежде всего замечает дверь — как хорошо она закрывается, есть ли в ней щели, как она покрашена. Он также смотрит, как сделаны окна и на что похожа различная фурнитура. Мы должны постоянно и настойчиво работать над улучшением качества отделочных работ. Лестничные клетки в жилых домах также должны быть хорошо оформлены.
Многое предстоит сделать для улучшения качества звукоизоляции домов. Особенно нужно поработать над изоляцией между квартирами; это должно быть безупречным. В этом случае необходимо убедиться, что стены между квартирами и между этажами соответствуют требованиям по звукоизоляции. […]
Производство линолеума необходимо расширить. Полы, покрытые линолеумом, не хуже паркетных; они гигиеничнее и умнее. Ухаживать за такими полами проще, чем за паркетными. Всем известно, что паркет нужно натирать воском – дело сложное и требующее дополнительных затрат. Мы должны ценить женский труд и всячески стараться его облегчить.[…]
Для отделки наружных стен зданий лучшим материалом является керамическая плитка. Керамическая облицовка долговечна, эстетична и не меняет цвет в процессе эксплуатации. […]
[…] Главное, порядок должен соблюдаться: ни одно строительство не должно начинаться без архитектурного проекта, без сметы, без детального плана. (Аплодисменты.) А что сейчас происходит на практике? Не успело принять решение что-то строить, как приходит отчет о том, что строительство началось. И нет даже архитектурного плана здания. Общеизвестно, что перед началом строительства необходимо хорошо подготовить площадку, проложить дороги, позаботиться о водо- и электроснабжении, составить полные архитектурные планы […]
Мы много теряем из-за того, что на наши стройки не поступает металл и другие материалы в нужном ассортименте. Я приведу два примера, но строители могли бы плодить такие примеры без конца. Для железобетона нужна проволока диаметром 5,5 мм. Никакого нет. Строителям говорят: берите проволоку на 1 мм больше в диаметре.Вы можете подумать, что это почти не имеет значения — всего один миллиметр, из-за которого не стоит спорить. А ведь в 1953 году при строительстве Минстроя на этот миллиметр приходилось лишние 4800 тонн металла. Вот за такую фигуру Госплан ратует — и совершенно справедливо. Так вот, товарищи, чего стоит этот миллиметр […]!
Повышение производительности труда, создание резерва квалифицированных строителей
[…] Хорошо известно, что в строительном секторе есть много возможностей для повышения производительности труда и, следовательно, для увеличения заработной платы рабочих. Такой простор имеется в механизации строительных работ; правильное использование мощного оборудования на наших строительных площадках; переход на промышленные методы строительства; повышение квалификации рабочих; более эффективное использование передового опыта, полученного новаторами; укрепление производственной дисциплины. […]
Для повышения реальной заработной платы рабочих необходимо обеспечить рост производительности труда и рост заработной платы каждого работника.![]()
Есть много примеров, убедительно доказывающих возможности повышения производительности труда и повышения заработной платы рабочих. Вот один из таких примеров. Я сравню две школы из множества построенных в Москве в 1954 году – одну в Томмаковском переулке, построенную из кирпича; другой, в Кутузовской слободе, построенный из крупных блоков. Обратите внимание на разницу в количестве труда, требуемого двумя школами. На кладку кирпичных стен и возведение карнизов, потолков и полов, лестниц и перегородок было затрачено 7360 человеко-дней, в то время как на такие же работы в крупноблочном здании потребовалось 1780 человеко-дней – или всего 24% от количества работ. человеко-дней, затраченных на школу из кирпича. Средняя заработная плата рабочего за указанные виды работ в кирпичной школе составляла 268 руб. за человеко-день, а в блочной школе — 1432 руб., т. е. в 5,3 раза больше. Если рассматривать все виды работ в кирпичной школе, то оплата за человеко-день составила 142 рубля, а во второй школе 261 рубль, т.е. в 1,8 раза больше. Что касается использования кранов, то при строительстве первой школы было задействовано 314 машино-смен; в то время как для второго требовалось 164, или 54%. Вот где есть, товарищи, простор для роста производительности труда и повышения заработной платы! […]
Товарищи! Заканчиваю свое выступление выражением уверенности в том, что строители, архитекторы, инженеры, рабочие промышленности строительных материалов и машиностроительного и дорожного машиностроения, работники проектных и научно-исследовательских организаций выполнят с честью возложенные на них партией и правительством задачи; еще больше повысит уровень, темпы и качество строительства в нашей стране; ускорит ввод фабрик, рудников, электростанций и мануфактур; и будут строить жилые дома, школы и больницы лучше и красивее. До новых встреч на очередной конференции строителей. Желаю вам дальнейших успехов, товарищи! (Бурные, непрерывные аплодисменты. Все встают)
Ядерное образование Никиты Хрущева | Государственные деятели времен холодной войны противостоят бомбе: ядерная дипломатия с 1945 года
Фильтр поиска панели навигации Oxford Academic Государственные деятели времен холодной войны противостоят бомбе: ядерная дипломатия с 1945 годаМеждународные отношенияКнигиЖурналы Термин поиска мобильного микросайта
Закрыть
Фильтр поиска панели навигации Oxford Academic Государственные деятели времен холодной войны противостоят бомбе: ядерная дипломатия с 19 лет45Международные отношенияКнигиЖурналы Термин поиска на микросайте
Расширенный поиск
Иконка Цитировать Цитировать
Разрешения
- Делиться
- Твиттер
- Подробнее
Cite
Зубок, Владислав М.
и Хоуп М. Харрисон,
«Ядерное образование Никиты Хрущева»
,
в John Gaddis and others (eds)
,
3 Бомба: ядерная дипломатия с 1945 года
(
Оксфорд,
1999;
онлайн-издание,
Oxford Academic
, 16 ноября 2004 г.
), https://doi.org/10.1093/0198294689.003.0007,
, по состоянию на 4 октября 2002 г. Выберите формат Выберите format.ris (Mendeley, Papers, Zotero).enw (EndNote).bibtex (BibTex).txt (Medlars, RefWorks)
Закрыть
Фильтр поиска панели навигации Oxford Academic Государственные деятели времен холодной войны противостоят бомбе: ядерная дипломатия с 19 лет45Международные отношенияКнигиЖурналы Термин поиска мобильного микросайта
Закрыть
Фильтр поиска панели навигации Oxford Academic Государственные деятели времен холодной войны противостоят бомбе: ядерная дипломатия с 1945 годаМеждународные отношенияКнигиЖурналы Термин поиска на микросайте
Расширенный поиск
Аннотация
Хрущев был первым советским лидером, который осознал, что ядерная биполярность диктует постоянное «мирное сосуществование» двух антагонистических социальных систем.
Хотя он никогда не отказывался от идеи использования ядерного оружия, он рассматривал его в первую очередь как положительную силу и стремился использовать его в своей игре за мир — попытке заключить постоянное перемирие с США, которое высвободило бы советские ресурсы. за строительство коммунизма и помощь «прогрессивным» движениям и режимам по всему миру. Хрущев почти не сомневался, что за ядерным щитом Советский Союз выиграет мирное экономическое соревнование с капиталистическим лагерем.
Ключевые слова: капитализм, коммунизм, Никита Хрущев, ядерное оружие, мирное сосуществование, социальные системы, Советский Союз, США
Тема
Международные отношения
В настоящее время у вас нет доступа к этой главе.
Войти
Получить помощь с доступом
Получить помощь с доступом
Доступ для учреждений
Доступ к контенту в Oxford Academic часто предоставляется посредством институциональных подписок и покупок.
Если вы являетесь членом учреждения с активной учетной записью, вы можете получить доступ к контенту одним из следующих способов:
Доступ на основе IP
Как правило, доступ предоставляется через институциональную сеть к диапазону IP-адресов. Эта аутентификация происходит автоматически, и невозможно выйти из учетной записи с IP-аутентификацией.
Войдите через свое учреждение
Выберите этот вариант, чтобы получить удаленный доступ за пределами вашего учреждения. Технология Shibboleth/Open Athens используется для обеспечения единого входа между веб-сайтом вашего учебного заведения и Oxford Academic.
- Нажмите Войти через свое учреждение.
- Выберите свое учреждение из предоставленного списка, после чего вы перейдете на веб-сайт вашего учреждения для входа.
- При посещении сайта учреждения используйте учетные данные, предоставленные вашим учреждением.
Не используйте личную учетную запись Oxford Academic.
- После успешного входа вы вернетесь в Oxford Academic.
Если вашего учреждения нет в списке или вы не можете войти на веб-сайт своего учреждения, обратитесь к своему библиотекарю или администратору.
Войти с помощью читательского билета
Введите номер своего читательского билета, чтобы войти в систему. Если вы не можете войти в систему, обратитесь к своему библиотекарю.
Члены общества
Доступ члена общества к журналу достигается одним из следующих способов:
Войти через сайт сообщества
Многие общества предлагают единый вход между веб-сайтом общества и Oxford Academic. Если вы видите «Войти через сайт сообщества» на панели входа в журнале:
- Щелкните Войти через сайт сообщества.
- При посещении сайта общества используйте учетные данные, предоставленные этим обществом.
Не используйте личную учетную запись Oxford Academic.
- После успешного входа вы вернетесь в Oxford Academic.
Если у вас нет учетной записи сообщества или вы забыли свое имя пользователя или пароль, обратитесь в свое общество.
Вход через личный кабинет
Некоторые общества используют личные аккаунты Oxford Academic для предоставления доступа своим членам. Смотри ниже.
Личный кабинет
Личную учетную запись можно использовать для получения оповещений по электронной почте, сохранения результатов поиска, покупки контента и активации подписок.
Некоторые общества используют личные аккаунты Oxford Academic для предоставления доступа своим членам.
Просмотр учетных записей, вошедших в систему
Щелкните значок учетной записи в правом верхнем углу, чтобы:
- Просмотр вашей личной учетной записи, в которой выполнен вход, и доступ к функциям управления учетной записью.
Требования будут кардинально отличаться, разделение площади будет совсем иным;
Необходимо подумать не только о своем комфорте, но и об удобстве людей, живущих под вашей квартирой. Возможный ущерб придется восполнять вам.
Возведение этих строений осуществлялось в 50-60-е гг. прошлого столетия.
Благодаря такому рисунку на них практически незаметен стык или шов.

м. В «хрущевке» гостиная была от 14 кв. м
В противном случае собственнику грозит административный штраф, и продать квартиру ему будет сложно.
Иногда для увеличения пространства разумно совместить туалет и ванную. В результате стиральная машина сможет поместиться в ванную комнату, а на кухне будет больше свободного места. Кроме того, есть возможность расширить пространство санузла за счет площади коридора. Коридор, конечно, станет уже, но места в ванной станет больше. При этом можно изменить расположение двери, ведущей в ванную комнату, перенести ее в коридор и повесить зеркало, сэкономив таким образом пространство.
Чаще всего гостиную объединяют с кухней, либо из одной большой комнаты делают две маленькие комнаты.
Вот что, оказывается, больше всего волнует товарища Захарова: ему нужны красивые силуэты, а людям нужны квартиры. У них нет времени любоваться силуэтами; им нужны дома, чтобы жить! (Аплодисменты). В своих проектах домов на Люсиновской улице Захаров решил поставить скульптуры по углам своих домов, начиная с 8-го этажа и выше. На верхнем этаже он срезал углы, а в этих косых углах поставил окна, снаружи которых на подоконниках должны были стоять скульптуры. Пятистенная комната с угловым окном неудобна для проживания, не говоря уже о том, что жители этой комнаты должны всю жизнь пялиться на спину скульптуры. Конечно, жить в такой комнате не особо приятно. Хорошо же, что эти дома так и не были построены и что тов. Захарова удержали от его искусства.
Но для блага всех нас это нужно было сделать намного раньше. […]
– которые не оправдываются никакой утилитарной функцией… Советский город переживает кризис вертикального развития… Городские центры с их общественными зданиями, башнями и купольными сооружениями должны быть уникальными конструкциями, не прибегающими к какой-либо стандартизации»9.0003
22, с. 437)
[…]