Размер стальной ванны: Размеры стальных ванн
Размеры стальных ванн
Содержание статьи
Содержание статьи
- Какие размеры бывают у изделий из стали
- Стоячие
- Сидячие
- Лежачие
- Угловые
- Купить стальную или чугунную ванну в интернет-магазине
Стоячие
Сидячие
Лежачие
Угловые
При замене сантехники важным вопросом является правильный ее подбор. Поскольку ванная комната считается местом, где проводятся основные гигиенические, косметические и лечебные процедуры, она должна быть идеально чистой и компактной. Для того чтобы сделать ее комфортной, в первую очередь необходимо правильно рассчитать размеры стальных ванн.
Какие размеры бывают у изделий из стали
Есть несколько видов ванн, для изготовления которых используются листы стали.
Стоячие
Редкий вид стальной конструкции, который используется в качестве купели. Габариты:
- высота – около 2 м;
- длина и ширина — 0,8-1,5 м.
Представляет собой емкость, оснащенную входной дверью. Наполнение водой происходит во время нахождения внутри. С виду напоминает компактный бассейн, масса которого — от 40 кг до 75 кг.
Сидячие
Стандартные размеры ванной стальной составляют 0,9 м в ширину и 1,м в длину. Высота емкости достигает 0,8м. Ванна отличается небольшим весом, который составляет от 25 кг до 45 кг, в ней невозможно утонуть. Рекомендованное количество наполняемой воды составляет 0,4-0,6 кубометров. Указанное изделие предназначено для купания людей с ограниченными возможностями.
Лежачие
Выпускаются в нескольких размеров, которые зависят от величины полезной площади в ванной комнате. Производимые отечественными товаропроизводителями стальные ванны соответствуют следующим параметрам:
- длина – 1,50 – 1,70 м;
- ширина – 0,70 – 0,75 м;
- глубина – 0,40 – 0,50 м;
- угол наклона бортов 40° – 50°.

Толщина качественной стальной конструкции — не менее 4 мм, что позволяет увеличить срок службы изделия.
Ванны стальные больших размеров должны соответствовать параметрам, указанным ниже параметрам:
- длина – 1,7 м;
- ширина – 0,71 м;
- высота – 0,565 см;
- глубина — 40 см;
Конечно, нынче по желанию возможно изготовление персональной конструкции, с индивидуальными размерами. Но такие вариации в продаже встречаются очень редко.
Угловые
Относятся к сантехнике комфортного класса, имеют прямоугольную или округлую форму и следующие габариты:
- общие размеры — 0,8 – 1,2 м;
- длина – 0,8-1,6 м;
- глубина — 0,65 м.
Толщина стенки из стали составляет 4,5 мм, борты имеют небольшие уклоны округлой формы, которые делают конструкцию уникальной и придают ей шарм.
Купить стальную или чугунную ванну в интернет-магазине
Сделать заказ легко.
Достаточно позвонить по указанному на официальной интернет-странице телефону, или оформить покупку через интернет. Наш менеджер в ближайшее время свяжется с вами и обсудит размеры и качественные характеристики предполагаемой покупки. По желанию заказчика консультанты магазина предоставят бесплатную информацию по интересующим вас вопросам. Доставка купленного товара организуется удобным для вас способом в указанное время.
Бренды стальных ванн в нашем каталоге
Kaldewei
EMALIA
DONNA-VANNA
ANTIKA
REIMAR
Maroni
Kaiser
какие бывают параметры стандартной металлической купели 170х70, 150х70, 120х70, а также высота железных моделей с ножками от пола
Стальные ванны пользуются огромной популярностью из-за своих достоинств: доступной цены, простоты установки и достаточно лёгкого веса — немаловажного фактора при транспортировке и подъеме в квартиру.
Есть и определенные недостатки: многие потребители жалуются, что не могут найти чаши какой-то интересной формы: круглой, квадратной, ассиметричной. Это связано с технологией производства.
Из акрила гораздо проще сделать купель причудливой формы, чем из стали. Металлические ванны производят преимущественно прямоугольными, но зато предлагаемый размерный ряд позволяет выбрать купель под любые нужды.
На этом мы и остановимся в нашей статье. Расскажем вам, как выбрать размер железных ванн, какой объем они вмещают, и на какую высоту их обычно устанавливают.
Параметры стандартных металлических купелей, какие бывают?
Как уже было сказано выше, производители предлагают огромное количество вариантов размеров. Это связано с тем, что рынок железных купелей ориентирован на разные аудитории.
Ассортимент представлен изделиями от 100 до 200 см. в длину и от 70 до 80 см. в ширину. Ниже приведена таблица с самыми распространенными стандартными размерами стальных ванн.
| Маркировка (мм) | Габаритные размеры (мм) | Глубина (мм) | Эффективная длина | ||
| длина | ширина | высота | |||
| 100х70 | 1000 | 600 | 560 | 600 | 960 |
| 120х70 | 1200 | 700 | 580 | 380 | 1060 |
| 140х70 | 1400 | 700 | 580 | 400 | 1250 |
| 150х70 | 1500 | 700 | 580 | 400 | 1400 |
| 160х70 | 1600 | 700 | 580 | 400 | 1500 |
| 170х70 | 1700 | 700 | 600 | 400 | 1600 |
| 180х80 | 1800 | 800 | 600 | 420 | 1680 |
| 200х80 | 2000 | 800 | 650 | 420 | 1860 |
Под эффективной длиной здесь понимается размер внутреннего пространства без учёта бортов.
Конечно,
параметры моделей разных производителей могут кардинально отличаться. В таблице приведены лишь самые обычные параметры, для того, что бы вам было легче ориентироваться. Поэтому при покупке, обязательно спрашивайте паспорт на конкретное изделие, где будут указаны все его характеристики.
Стандартные размеры различных ванн
Размер любой ванны – это несколько показателей. Одни отражают длину, ширину и глубину чаши или купели ванны, т.е. ее внутреннего объема, другие свидетельствуют о внешних размерах изделия. Первые пригодятся, когда ванна подбирается под потребности конкретных людей, вторые – при составлении плана интерьерного наполнения ванной комнаты.
В последнем случае учитывают и длину ножек, на которых стоит ванна. Обычно они имеют регулируемый размер, позволяющий выставить изделие горизонтально.
Схема демонстрирует различные варианты параметров стандартных ванн типовой конфигурации. Чем короче изделие, тем больше его глубина, обеспечивающая комфортное купаниеСамый распространенный размер чаши обычной ванны – 150Х70 см, а глубина – 60 см.
Большинству покупателей эти размеры считаются подходящими, но модельный ряд современных ванн более разнообразный. Можно выбрать ванну шире или уже, длиннее или короче и даже глубже.
Выбирая подходящую ванну, следует учитывать комплекцию и рост каждого жильца в доме, а также размеры ванной комнаты. Не секрет, что в домах старой постройки санузлы имеют более чем скромные размеры. Здесь нередко используют малоразмерные ванны с размерами 130Х70 или даже 120Х70 см. Чтобы вода скрывала колени человека, находящегося в такой ванне, ее глубина должна быть около 70 см.
Изделия с нестандартными размерами, необычной конфигурации или выполненные по индивидуальному заказу могут обойтись недешево. К счастью, и среди моделей типовых размеров можно выбрать подходящий вариант.
Изделия с нестандартными размерами, необычной конфигурации или выполненные по индивидуальному заказу могут обойтись недешево. К счастью, и среди моделей типовых размеров можно выбрать подходящий вариант.
Малоразмерные изделия не так часто встречаются в продаже, иногда их изготовление приходится специально заказывать.
К моделям среднего размера относят ванны с параметрами 150Х70 и 140Х70см. Как уже упоминалось, это распространенные параметры, которые пользуются наибольшей популярностью.
В просторной ванной комнате можно с комфортом поместить изделие с размерами чаши 170Х70 и 180Х80 см. Это оптимальный выбор для людей высокого роста, которым средние параметры подходят с трудом. Но следует помнить, что чем больше объем чаши, тем дольше ванна будет наполняться, и тем выше будут расходы на воду.
Кроме того, размеры ванны типа стандарт во многом зависят от материала, из которого она изготовлена, поскольку производители обычно ограничены не только запросами рынка, но и возможностями своего оборудования. Чаще всего ванны изготавливают из следующих материалов:
- чугуна;
- эмалированной стали;
- акрила.
Широким размерным рядом могут похвастаться чугунные изделия. Их длина варьируется в пределах 120Х185 см, а ширина может составлять 70-85 см. Чтобы подобрать модель с конкретными параметрами, можно воспользоваться специальной таблицей.
На этой схеме наглядно представлены внешние и внутренние размеры типовых моделей ванн, изготовленных из чугуна. Модельный ряд таких изделий довольно широк
Чугунные ванны пользуются высоким спросом, поскольку обладают исключительной надежностью. Но такие изделия обладают немалым физическим весом. Любую ванну из чугуна будет не так просто поднять на верхние этажи. Кроме того, крупное изделие, наполненное водой, может стать существенной нагрузкой для строения. Приобретая большую ванну из чугуна, следует соотнести ее вес с несущей способностью перекрытий здания.
Стальные ванны весят значительно меньше чугунных аналогов, да и стоят заметно дешевле. И это два главных достоинства таких изделий. В остальном они демонстрируют не лучшие эксплуатационные характеристики: плохо удерживают тепло, хуже переносят износ, неустойчивы при воздействии значительных весовых нагрузок, шумят, когда набирается вода и т.д.
И все же стальные ванны вполне востребованы, хотя и не так популярны, как чугунные модели, поскольку отличается очень доступной ценой.
А проблему избыточного шума и повышенной теплопроводности иногда успешно решают с помощью слоя монтажной пены, которым обрабатывают наружную поверхность ванны.
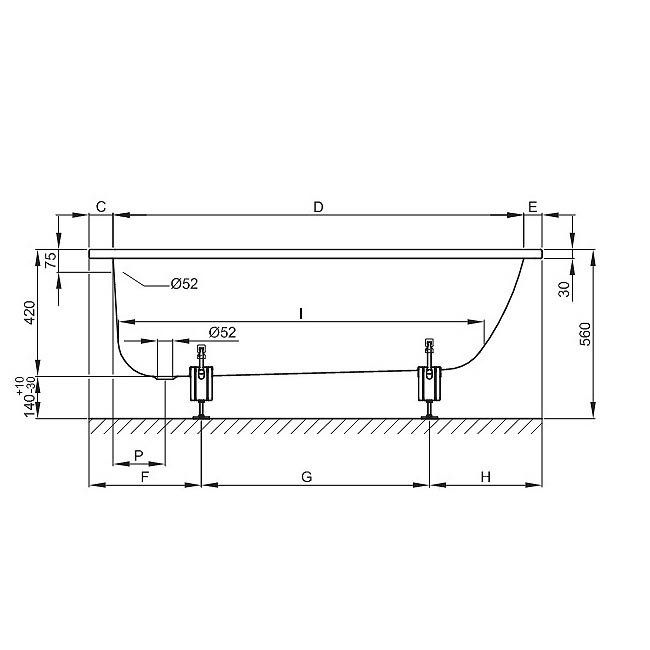
Стандартные размеры ванны из стали составляют 150-180 см по длине и 70-85 см по ширине. Высота такого изделия обычно равна 65 см. Более подробные данные содержатся в сводных таблицах.
С помощью этой таблицы и сопровождающей ее схемы можно подобрать подходящую по размерам стальную ванну прямой конфигурации
Ванны из акрила сочетают прочность и способность сохранять тепло, характерное для чугуна, при этом они очень легкие по весу. Акрил окрашивают в различные оттенки, что существенно расширяет возможности для дизайна ванной комнаты. По конфигурации и размерам акриловые ванны также очень разнообразны. Длина типовой акриловой ванны обычно варьируется в пределах 160-180 см, а ширина может составлять 70-120 см.
На этой схеме изображены размеры стандартной акриловой ванны, чаше которой придана удобная анатомическая форма.
Акрил – прочный материал с низкой теплопроводностьюЭто данные очень условные, поскольку акрил – очень пластичный материал. Большую часть ванн нестандартного размера изготавливают именно из него. Моделям со стандартными размерами часто придают анатомическую форму, чтобы сделать использование ванны более комфортной и уменьшить ее внутренний объем.
Современные ванны, изготовленные из акрила, могут быть очень разнообразными по размерам, конфигурации и цветовой палитре. Умеренный вес изделия облегчает его монтаж
Разновидностью акриловых ванн являются изделия из похожего полимера – кварила. Это материал нового поколения, который значительно лучше переносит механические нагрузки. К тому же его поверхность обладает грязеотталкивающими свойствами, что значительно упрощает уход за такой сантехникой. Квариловые ванны стоят дороже, чем аналогичные изделия из акрила.
Интересную информацию по проблемам выбора подходящей ванны можно посмотреть на этом видео:
Как выбирать размер, 170х70 или 150х70?
При выборе размера нужно учесть следующие моменты:
- площадь ванной комнаты;
- габариты мебели и техники, которую также необходимо разместить в санузле;
- рост и вес всех членов семьи;
- есть ли в семье пожилые люди;
- есть ли счетчики на воду и критичен ли для размер коммунальных платежей.

Площадь помещения
Логично предположить, что нужно выбирать чашу максимального размера, который только возможно установить в данном помещении. Ниже мы расскажем об особенностях выбора каждого типоразмера чаши.
До 120 см
Такие чаши принято называть сидячими. О комфорте в этом случае говорить не приходиться — сидячая ванна может быть удобна разве что младенцу.
Такие устанавливают в очень маленьких помещениях, например, общежитиях семейного типа, где разместить стандартную ванну невозможно.
Альтернатива — только душевой поддон.
Плюсы:
- установка маленькой купели позволяет снизить расход воды;
- освобождается место для стиральной машины.
В настоящее время разработаны специальные компактные сантехнические изделия, предназначенные для людей с ограниченными возможностями. Это инвалиды и просто пожилые люди, которым может быть не комфортно пользоваться слишком глубокой ванной. Часто в них предусмотрена специальная дверца, которую можно закрыть после входа.
140-150
Такая длина уже считается стандартной и устанавливается в санузлах площадью до 4 м2, в типовых квартирах домов 60-80 годов постройки.
Преимущества:
- возможность разместить в любом стандартном жилье;
- в такой чаше уже удастся сесть, согнув ноги в коленях.
160-170
Установить подобную купель удастся не везде, но для квартир улучшенной планировки с санузлом площадью не меньше 4-8 м2 этот вариант подойдет лучше всего.
Достоинства:
- данный размер ванны позволяет комфортно разместиться человеку среднего роста;
- за счет большого объема вода остывает медленнее.
180 и больше
Прекрасный вариант, если не нужно экономить место. Подойдет для помещений от 8 м2 . Такие ванны позоволят со всем удобством разместиться даже высокому владельцу. Правда в квитанции на оплату воды будут не самые приятные цифры.
Особенности выбора размера ванн из стали
Стальная ванна должна отвечать пожеланиям всех членов семьи, быть удобной, а также удачно вписываться в помещение по дизайнерскому решению.
В любом случае начинать лучше с замера комнаты и составления подробного эскиза, ведь кроме ванны там должны разместиться стиральная машинка, аксессуары и другая мебель. Обязательно отмечают точки подсоединения сантехники.
При выборе ванны стоит учитывать ряд нюансов:
- Габариты санузла. Если пространство позволяет, то можно выбрать сидячий вариант размером 120 × 110 см. В этом случае необычная длина компенсируется увеличенной шириной и высотой 80 см.
- Для высоких людей подходящий размер – 170 × 70 см, а для низкорослых – достаточно длины 140 см.
- Объём изделия зависит не только от его параметров, но и от уклона боковых стенок.
- Глубина конструкции. Делая выбор между двумя изделиями одинаковой ширины и длины, стоит обратить внимание на глубину. Большая глубина смотрится эффектно, но пользоваться таким изделием крайне неудобно. Особенно это важно для пожилых людей и детей.
- Подбирая ширину, следует учесть габариты самого крупного члена семейства.
Для комфортного размещения расстояние между стенками ванны и телом человека должно быть не меньше 5 см. - Немаловажен и вопрос экономии. Так, для заполнения ванны размером 150 × 70 см потребуется гораздо меньший объём жидкости, чем для параметров 170 × 70 см.
Внимание! Стоит знать, что хорошо разместиться и полноценно отдохнуть можно лишь в полулежачем состоянии, поэтому большое значение надо уделить длине ванны.
Рост владельцев
Для того что бы водные процедуры было принимать удобно и комфортно, при покупке железной купели стоит обращать внимание на рост членов семьи. Согласитесь, что крупному человеку никак не уместиться в чаше 120 или 140 см. Такую можно использовать только как душевой поддон. Для человека же ростом выше среднего рассматривать ванну длиной от 170, а лучше 200 — это оптимальный вариант, который позволить разместиться в ней с комфортом.
На картинке наглядно показано, как разместится человек в ваннах стандартных размеров.![]()
Габариты и формы акриловых ванн
Чаши из акрила используют чаще при оформлении санузлов в квартирах. Изделия из указанного материала отличаются легкостью, что упрощает их подъем на этажи. Также клиент может выбрать чашу любой формы. Благодаря характеристикам материала производители изготавливают чаши стандартных и оригинальных форм (овал, круг, прямоугольник, треугольник). На дне могут присутствовать ступеньки или сиденье.
Размеры чаш из акрила различные, как и форма:
- 150 см.
- 160 см.
- 170 см.
Размеры
Рассмотрим какие бывают размеры акриловой ванной. Для удобства эксплуатации чаши из акрила оснащают такими элементами:
- ступеньки;
- подлокотники;
- выемки;
- сиденье.
В отличие от других материалов, изделия из акрила считаются многофункциональными. Их оснащают дополнительными функциями, повышая удобство использования:
- гидромассажные форсунки;
- система самоочищения;
- защита от переливания;
- подсветка.

Чаши из акрила популярны потому, что этот материал быстро греется. Неоспоримым достоинством считается возможность заказа размера чаши. Пластичный материал легко поддается формированию нужного изделия. Размеры чаш из акрила в каталоге магазина следующие (указано в сантиметрах):
- 150×70. Такие модели маленькие и подходят для тесных санузлов, которые нельзя расширить. Проводить водные процедуры в них можно только сидя.
- 170×70. Более удобный вариант, который используют люди средней комплекции. Устанавливают чаши 170х70 см в небольшие ванные комнаты. В них возможен прием ванны лежа с полусогнутыми коленями.
- 170×75. Модель шириной в 75 см. пользуется большим спросом.
- 170×80. Более широкие чаши предназначены для крупных людей. Указанная ширина позволяет максимально комфортно попариться и помыться крупным членам семьи.
- 170×90. Просторные чаши, которые пользуются особым спросом. Оптимальный размер для квартиры. Акриловые изделия заказывают из-за простоты монтажа, легкого ухода, долгого срока службы.

Формы
Акрил позволяет производителям изготавливать ванны различных форм. Этот материал довольно легкий и пластичный. В каталоге магазина предложены чаши следующих форм:
- угловые. Предназначена эта форма чаш для рационального использования свободного места в ванной комнате. Подходящий вариант для маленького санузла
- асимметричные. Любители новизны заказывают чаши в форме фасоли или угловые модели, причудливой формы. Они позволяют экономить пространство и добавить изысканности в интерьер санузла.
- прямоугольные. Эту форму принято считать стандартной. Из акрила могут изготавливать прямоугольные сидячие и полноразмерные чаши. Прямоугольная форма позволяет расположить изделие возле стены, в нише. Также прямоугольные чаши могут располагать в любом месте просторного санузла.
- овальные. Изделия указанной формы заказывают любители мягких, лаконичных форм. Они вписываются в любой интерьер. Овальные чаши часто располагают в центре просторного санузла.
Такие модели оснащают гидромассажем, аэромассажем. Стандартные размеры овальных чаш – 140–210 см.
Также на рынке встречаются чаши круглой формы. Обычно они предназначены для релакса. В чаши такой формы удобнее устанавливать форсунки для аэро-, гидромассажа. Для монтажа круглой ванны необходимо просторное помещение.
Для того что бы понять какой размер ванны подходит именно вам – нужно произвести замер и определиться с дизайном ванной комнаты.
Объём
Сколько же литров вмещает в себя стальная ванна? Такой вопрос прежде всего задают люди, которым не безразлична экономия воды. Ведь чем больше чаша, тем больше нужно воды что бы её наполнить.
Объем в первую очередь зависит от формы и размеров купели. Поэтом что бы точно узнать этот параметр — нужно посмотреть паспорт изделия. Если хотите оценить приблизительно:
- 120х70 — 120-140 л;
- 140х70 — 150-170 л;
- 150х70 — 160-180 л;
- 170х70 — 185-215 л;
Отдельностоящие ванны | KALDEWEI
Отдельно стоящие ванны — последняя тенденция.
Отдельно стоящие ванны являются воплощением гибкости дизайна ванной комнаты, особенно для тех, кто любит дизайн. Свободное расположение, свободный доступ, свободный выбор цветов — вот как ванная комната привлекает внимание. KALDEWEI предлагает два варианта отдельностоящих ванн: отдельно стоящие ванны с панелями и наши ванны MEISTERSTÜCK. №
Независимо от того, какой вариант вас интересует, отдельно стоящие ванны являются воплощением необычного дизайна в ванной комнате. Благодаря новым отдельно стоящим ваннам от KALDEWEI мы делаем велнес еще более уникальным, еще более индивидуальным, еще более подходящим для повседневного использования. Оцените наши отдельно стоящие модели ванн различных модных цветов со стильными панелями. Вы увидите: эти ванны формируют новое понимание времени из повседневной жизни, времени для себя и чистого удовольствия от купания.
Создайте ванную комнату своей мечты с непревзойденным спа-эффектом
Релаксация и хорошее самочувствие в спа-салоне во многом зависят от внешнего вида и щедрости дизайна помещения.
Эстетика уступает место чистой практичности. Это именно тот подход, который используется в наших новых моделях ванн: перестройка эстетического дизайна ванной комнаты, которая фокусируется на чистом моменте благополучия, которым всегда наслаждалась классическая отдельно стоящая ванна, обогащенная ультрасовременным дизайном ванны, который оставляет пространство. для совершенно новых возможностей. Представляем вам три отдельно стоящие ванны с облицовкой. С введением этого сегмента ванн мы расширяем наш прежний ассортимент KALDEWEI интересными двухцветными вариантами, и, в дополнение к нашим полностью эмалированным ваннам MEISTERSTÜCK, мы также можем предложить отдельно стоящие, задающие тренд ванны в своем классе. в качестве элементов дизайна для повседневного велнеса.
Идеальная отдельностоящая ванна для двоих
Наши отдельно стоящие ванны отличаются большой глубиной от 43 см до 46,5 см. Две одинаковые спинки и центральное отверстие для стока гарантируют, что два человека могут наслаждаться купанием с большим удовольствием и комфортом.
Абсолютный must-have для отдыха!
Сделайте ванную комнату своей мечты реальностью с помощью отдельно стоящих ванн CLASSIC DUO OVAL FREE-STANDING, CONODUO FREE-STANDING и ELLIPSO DUO OVAL FREE-STANDING. Современные панели позволяют разместить ванну в любом месте комнаты. В четырех различных версиях в черном, черном матовом, альпийском белом или альпийском белом матовом панели идеально обрамляют ванну и придают классической элегантности отдельно стоящей ванне лаконичный дизайн. Он производит самое лучшее впечатление со всех сторон, потому что прочная обшивка выполнена из полиуретана. Это означает, что нет швов… и он полностью пригоден для вторичной переработки. Вкладки изготовлены из высококачественной и прочной стали-эмали. Опционально их поверхность может быть обработана эффектом KALDEWEI Pearl, а также нашими противоскользящими поверхностями Anti-slip и Full anti-slip.
Двухцветные ванны: тенденция в современной ванной комнате
Наши отдельно стоящие ванны, обшитые панелями, в совершенстве отражают современный сдвиг парадигмы в дизайне ванн от одноцветных к двухцветным.
Вставки доступны в различных цветовых оттенках* нашей новой КОЛЛЕКЦИИ COORDINATED COLORS COLLECTION и поэтому могут идеально сочетаться с современными тенденциями плитки. Яркие цвета ванны создают захватывающий контраст с панелями отдельно стоящей ванны, которая доступна в белом, матовом альпийском белом, черном и матовом черном цветах.
*(см. прайс-лист с обзором цветов)
Сколько стоит отдельно стоящая ванна?
Отдельно стоящие ванны всегда дороже встроенных моделей. Что делает отдельно стоящую ванну такой особенной, так это ее высококачественный внешний вид. Вы выбираете безусловную изюминку в ванной комнате, которая будет привлекать всеобщее внимание.
Какой материал лучше всего подходит для отдельностоящих ванн? №
Без сомнения: сталь-эмаль KALDEWEI. Он отличается особой прочностью, устойчивостью к царапинам и огню. Свеча на краю ванны? Без проблем. Капля лака для ногтей? Это не имеет значения. В то же время этот материал особенно легко чистить, он потрясающе выглядит и устойчив.
Какой смеситель лучше всего подходит для отдельно стоящей ванны? №
Идеальным смесителем для отдельно стоящей ванны является напольный смеситель. Он расположен рядом с ванной, его элегантный стиль идеально сочетается с отдельно стоящей ванной и обогащает зону купания еще большей эксклюзивностью и атмосферой хорошего самочувствия.
Насколько велика отдельно стоящая ванна?
Отдельно стоящие ванны доступны в различных размерах. Наши модели KALDEWEI доступны длиной от 1,70 м до 2 м и шириной от 75 см до 1 м, так что каждый сможет найти идеальный размер для отдельно стоящей ванны своей мечты.
Модели
- длина (дюйм) Показать все757167
- ширина (дюйм) Показать все393130
Список согласно По алфавиту Актуальность
18 на странице36 на страницеПоказать все
CAYONO 5 FEET | KALDEWEI
Настройка продукта
Размеры
Пожалуйста, выберите размер (дюйм)
Размеры (длина х ширина х глубина, дюймы) 60 х 30 Икс 14 60 х 30 Икс 14
Модель №.
155
156
-1: Ванна / душевой поддон
-2: Ванна / душевой поддон с опорой
-3: Ванна / душевой поддон с опорой и передней панелью
-4 и -6: в зависимости от модели
-5: Душевой поддон с низкопрофильная поддержка
-7: Ванна с отдельно стоящей панелью (исключение Vaio Duo 3 с передней панелью)
Цвета
Выберите цвет вашей новой ванны:
- Alpine White
- Alpine White Matt
- Теплый бежевый
Обратите внимание: изображение соответствует эталонному продукту! Фактический товар может отличаться. Реальные цвета товара могут незначительно отличаться от представленных на изображении из-за настроек монитора.


Для комфортного размещения расстояние между стенками ванны и телом человека должно быть не меньше 5 см.

Такие модели оснащают гидромассажем, аэромассажем. Стандартные размеры овальных чаш – 140–210 см.